to
Reset
Houses
Townhouses
Condos
Land
Price
to
SQFT
to
Bdrms
to
Baths
to
Lot
to
Yr Built
to
Sold
Listed within...
Listed at least...
Offer Review
New Construction
Waterfront
Short-Sales
REO
Parking
to
Unit Flr
to
Unit Nbr
Listings
Neighborhoods
Complexes
Developments
Cities
Counties
Zip Codes
Neighborhood · Condo · Development
School District
Zip Code
City
County
Builder
Listing Numbers
Broker LAG
Boundary Lines
Labels
View
Sort
Sold Closed December 4, 2025
$650,000
Originally $675,000
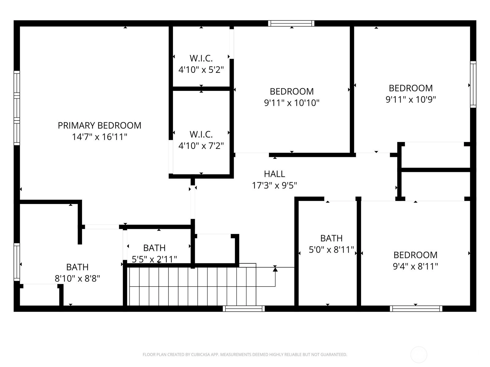
4 Bedrooms
2.25 Bathrooms
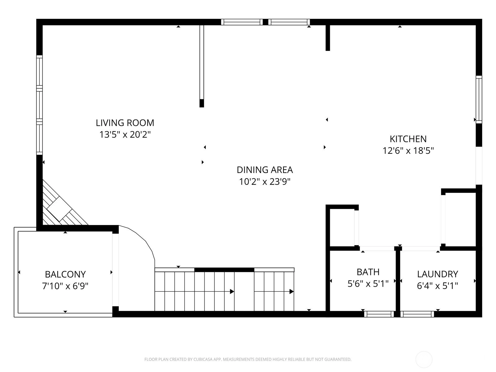
1,960 Sqft Townhome
Floor 1
Built 2013
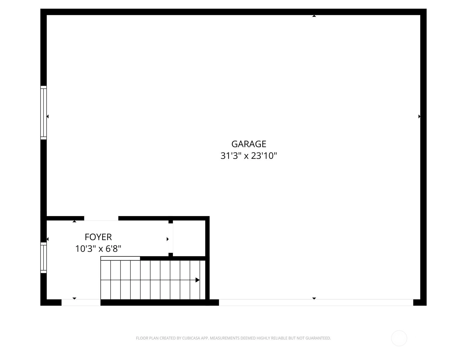
No assigned parking spaces
HOA Dues $60 / month
SALE HISTORY
List price was $675,000
The price was later changed to $650,000.
It took 39 days to go pending.
Then 27 days to close at $650,000
Closed at $332/SQFT.
Lake Views! This 1,960 sq. ft. Lake Point home is perfectly placed to capture some of the best vistas in the neighborhood. The open great room with corner fireplace flows to a covered deck overlooking Lake Stevens. The kitchen features granite tile counters, Samsung appliances, and a breakfast bar. Upstairs, the primary suite offers a spa-inspired bath and walk-in closet. Central A/C, hardwired surround sound, new water heater installed in 2024, and a serviced furnace ensure comfort. A private driveway, oversized garage, and fully fenced patio complete this exceptional property—just minutes to Frontier Village and Lundeen Park.
Offer Review
No offer review date was specified
Project
Lake Pointe at Lake Stevens
Listing source NWMLS MLS #
2436137
Listed by
Phill Chumley, COMPASS
Buyer's broker
Shalen H Southard, eXp Realty
Contact our
Lake Stevens
Real Estate Lead
Buck Real Estate
Phone...
Time Adjusted Estimated Value
Assumptions: The original sale amount reflected a normal arms length sale. Any major updates would add to the value. Any damage or deferred maintenance would subtract from the value.
Bedroom & Bathroom Layout
SECOND
BDRM
BDRM
BDRM
BDRM
FULL
BATH
¾
BATH
MAIN
½
BATH
Property History
Dec 04, 2025
Sold
$650,000
NWMLS #2443393
Dec 04, 2025
Sold
$650,000
NWMLS #2436137
Nov 11, 2025
Went Pending
$650,000
NWMLS #2443393
Nov 11, 2025
Went Pending
$650,000
NWMLS #2436137
Nov 07, 2025
Went Pending Inspection
$650,000
NWMLS #2443393
Nov 07, 2025
Went Pending Inspection
$650,000
NWMLS #2436137
Oct 24, 2025
Price Reduction arrow_downward
$650,000
NWMLS #2443393
Oct 24, 2025
Price Reduction arrow_downward
$650,000
NWMLS #2436137
More
Listing Details
  • Sale Price
    $650,000
  • Closing Date
    December 4, 2025
  • Last List Price
    $650,000
  • Original Price
    $675,000
  • List Date
    September 29, 2025
  • Pending Date
    November 7, 2025
  • Days to go Pending
    39 days
  • $/sqft (Total)
    $332/sqft
  • $/sqft (Finished)
    $332/sqft
  • Listing Source
  • MLS Number
    2436137
  • Listing Broker
    Phill Chumley
  • Listing Office
    COMPASS
  • Buyer's Broker
    Shalen H Southard
  • Buyer Broker's Firm
    eXp Realty
Monthly Payment Estimate
  • Principal and Interest
    $3,407 / month
  • HOA
    $60 / month
  • Property Taxes
    $461 / month
  • Homeowners Insurance
    $132 / month
  • TOTAL
    $4,060 / month

  • based on 20% down
    ($130,000)
  • and a
    6.85% Interest Rate
  • About:
    All calculations are estimates only and provided by Mainview LLC. Actual amounts will vary.
Condo Details
  • Unit #
    Unspecified
  • Unit Floor
    1
  • Sqft (Total)
    1,960 sqft
  • Sqft (Finished)
    Unspecified
  • Sqft (Unfinished)
    None
  • Property Type
    Townhome
  • Sub Type
    Townhouse
  • Bedrooms
    4 Bedrooms
  • Bathrooms
    2.25 Bathrooms
  • Lot Size
    Unspecified
  • Lot Size Source
    Unspecified
  • Project
    Lake Pointe at Lake Stevens
  • Total Stories
    Unspecified
  • Sqft Source
    Realist
Property Tax Info
  • 2025 Property Taxes
    $5,532 / year
  • No Senior Exemption
Public Parcel Data & Maps
Schools
  • School District
    Lake Stevens
  • Elementary
    Buyer To Verify
  • Middle
    Buyer To Verify
  • High School
    Lake Stevens Snr Hig
HOA
  • HOA Dues
    $60 / month
  • Fees Assessed
    Monthly
  • HOA Dues Include
    Common Area Maintenance
  • Pets Allowed
    Yes
  • HOA Contact
    Unspecified
  • Management Contact
    Unspecified
Building
  • Name
    Lake Pointe at Lake Stevens
  • Units in Complex
    44
  • Units in Building
    1
  • Stories in Building
    2
Parking
  • Types
    Individual Garage
  • Has Garage
    Yes
  • Nbr of Assigned Spaces
    Unspecified
  • Parking Space Info
    Unspecified
Views
  • Lake
    Mountain(s)
    Territorial
Construction
  • Year Built
    2013
  • Home Builder
    Unspecified
Cooling
  • Includes
    Forced Air
Heating
  • Includes
    Forced Air
Interior
  • Flooring
    Hardwood
    Carpet
  • Features
    Fireplace
    Water Heater
Property
  • Lot Features
    Corner Lot
    Dead End Street
    Paved
    Sidewalk
Appliances
  • Included
    Dishwasher(s)
    Disposal
    Microwave(s)
    Refrigerator(s)
    Stove(s)/Range(s)
Terms
  • Bank Owned (REO)
    No
Utilities
  • Energy
    Electric
    Natural Gas
Additional Info
  • Waterfront
    No
  • Air Conditioning (A/C)
    Yes
  • Buyer Broker's Compensation
    2.5%
  • MLS Area #
    Area 760
  • Number of Photos
    40
  • Last Modification Time
    Sunday, January 4, 2026 4:03 AM
  • System Listing ID
    5487928
Update Info
  • Closed
    2025-12-04 17:06:45
  • Pending Or Ctg
    2025-11-11 05:46:19
  • Price Reduction
    2025-10-24 14:13:20
  • First For Sale
    2025-09-29 18:54:59
Listing details based on information submitted to the MLS GRID as of Sunday, January 4, 2026 4:03 AM. All data is obtained from various sources and may not have been verified by broker or MLS GRID. Supplied Open House Information is subject to change without notice. All information should be independently reviewed and verified for accuracy. Properties may or may not be listed by the office/agent presenting the information.
View
Sort

Sharing

 
Sold December 4, 2025
$650,000  
4 BR    2.25 BA    1,960 SQFT  
NWMLS #2436137. Phill Chumley, COMPASS
Map
 
Listing information is provided by the listing agent except as follows: BuilderB indicates that our system has grouped this listing under a home builder name that doesn't match the name provided by the listing broker. DevelopmentD indicates that our system has grouped this listing under a development name that doesn't match the name provided by the listing broker.