to
Reset
Houses
Townhouses
Condos
Land
Price
to
SQFT
to
Bdrms
to
Baths
to
Lot
to
Yr Built
to
Sold
Listed within...
Listed at least...
Offer Review
New Construction
Waterfront
Short-Sales
REO
Parking
to
Unit Flr
to
Unit Nbr
Listings
Neighborhoods
Complexes
Developments
Cities
Counties
Zip Codes
Neighborhood · Condo · Development
School District
Zip Code
City
County
Builder
Listing Numbers
Broker LAG
Boundary Lines
Labels
View
Sort
Sold Closed November 10, 2025
$635,000
2 Bedrooms
1.75 Bathrooms
1,056 Sqft Townhome
Built 2022
75 Sqft Lot
No Garage
SALE HISTORY
List price was $635,000
It took 2 days to go pending.
Then 38 days to close at $635,000
Closed at $601/SQFT.
This is it! An end-unit townhome in North Beacon Hill close to everything! This two-bedroom, two-bath home features highly functional spaces and amazing views. The bonus is the quiet street with great neighbors all around you. Enjoy a great layout that feels open and roomy, unlike many narrower townhomes. The main floor features a kitchen with plenty of room to cook and eat. The living room hints at the views you'll get in the primary suite and the rooftop deck. Great for entertaining friends or WFH with a view. The primary suite has west-facing windows everywhere. Head to the private rooftop for sweeping sunset views of West Seattle and the Sound. Ditch the car - you're so close to light rail, cafes and dining! No HOA! Walkscore of 84!
Offer Review
No offer review date was specified
Listing source NWMLS MLS #
2438858
Listed by
Land Cook, Urban Living
Buyer's broker
Stephanie C. Hart, Unlock Seattle Real Estate LLC
Lyrica S. Hart, Unlock Seattle Real Estate LLC
Contact our
Beacon Hill
Real Estate Lead
John L. Scott
Phone...
Time Adjusted Estimated Value
County Wide
  • In
    King County WA
  • prices for
    Townhomes
  • have changed
    -3%
  • since
    Nov 10, 2025
  • so a sale price of
    $635,000
  • would be approximately this amount today
    $615,950
City Wide
  • In
    Seattle WA
  • prices for
    Townhomes
  • have changed
    -3%
  • since
    Nov 10, 2025
  • so a sale price of
    $635,000
  • would be approximately this amount today
    $615,950
Assumptions: The original sale amount reflected a normal arms length sale. Any major updates would add to the value. Any damage or deferred maintenance would subtract from the value.
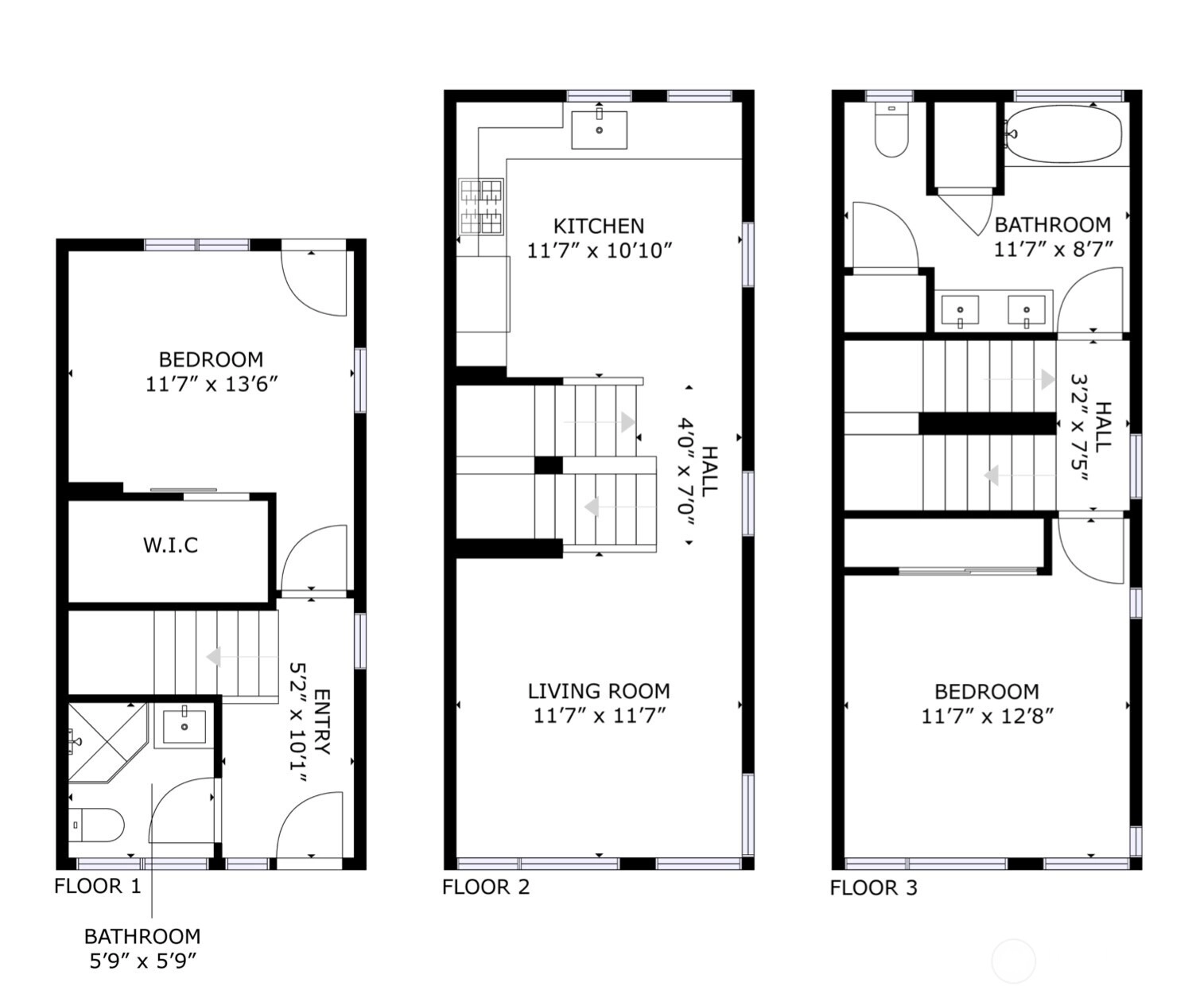
Bedroom & Bathroom Layout
SECOND
BDRM
FULL
BATH
LOWER
BDRM
¾
BATH
Property History
Nov 10, 2025
Sold
$635,000
NWMLS #2438858 Annualized -0.3% / yr
Oct 03, 2025
Went Pending
$635,000
NWMLS #2438858
Oct 01, 2025
Listed
$635,000
NWMLS #2438858
Apr 21, 2023
Sold
$639,950
Mar 23, 2023
Went Pending
$639,950
Mar 21, 2023
Listed
$639,950
More
Listing Details
  • Sale Price
    $635,000
  • Closing Date
    November 10, 2025
  • Last List Price
    $635,000
  • Original Price
    Same
  • List Date
    October 1, 2025
  • Pending Date
    October 3, 2025
  • Days to go Pending
    2 days
  • $/sqft (Total)
    $601/sqft
  • $/sqft (Finished)
    $601/sqft
  • Listing Source
  • MLS Number
    2438858
  • Listing Broker
    Land Cook
  • Listing Office
    Urban Living
  • Buyer's Broker
    Stephanie C. Hart
  • Buyer Broker's Firm
    Unlock Seattle Real Estate LLC
Monthly Payment Estimate
  • Principal and Interest
    $3,329 / month
  • Property Taxes
    $478 / month
  • Homeowners Insurance
    $129 / month
  • TOTAL
    $3,936 / month

  • based on 20% down
    ($127,000)
  • and a
    6.85% Interest Rate
  • About:
    All calculations are estimates only and provided by Mainview LLC. Actual amounts will vary.
Townhouse Details
  • Unit Floor
    Unspecified
  • Sqft (Total)
    1,056 sqft
  • Sqft (Finished)
    1,056 sqft
  • Sqft (Unfinished)
    None
  • Property Type
    Townhome
  • Sub Type
    Townhouse
  • Bedrooms
    2 Bedrooms
  • Bathrooms
    1.75 Bathrooms
  • Lot
    75 sqft Lot
  • Lot Size Source
    Realist
  • Lot #
    Unspecified
  • Project
    Unspecified
  • Total Stories
    Unspecified
  • Basement
    None
  • Sqft Source
    Realist
Property Tax Info
  • 2025 Property Taxes
    $5,734 / year
  • No Senior Exemption
Public Parcel Data & Maps
Schools
  • School District
    Seattle
  • Elementary
    Buyer To Verify
  • Middle
    Buyer To Verify
  • High School
    Buyer To Verify
HOA
  • HOA Dues
    Unspecified
  • Fees Assessed
    Unspecified
  • HOA Dues Include
    Unspecified
  • HOA Contact
    Unspecified
  • Management Contact
    Unspecified
Building
  • Name
    Unspecified
  • Units in Complex
    Unspecified
  • Units in Building
    Unspecified
  • Stories in Building
    Unspecified
Parking
  • Covered
    Unspecified
  • Types
    None
  • Has Garage
    No
Views
  • City
    Mountain(s)
    Sound
Construction
  • Year Built
    2022
  • Home Builder
    Unspecified
Cooling
  • Includes
    Ductless
Heating
  • Includes
    Ductless
Interior
  • Flooring
    Ceramic Tile
    Engineered Hardwood
    Carpet
  • Features
    Double Pane/Storm Window
    High Tech Cabling
    Water Heater
Property
  • Lot Features
    Paved
    Sidewalk
  • Site Features
    Fenced-Fully
    High Speed Internet
    Rooftop Deck
Appliances
  • Included
    Dishwasher(s)
    Disposal
    Dryer(s)
    Microwave(s)
    Refrigerator(s)
    Stove(s)/Range(s)
    Washer(s)
Terms
  • Bank Owned (REO)
    No
Utilities
  • Energy
    Electric
  • Sewer
    Sewer Connected
  • Water Source
    Public
Additional Info
  • Waterfront
    No
  • Air Conditioning (A/C)
    Yes
  • Buyer Broker's Compensation
    2.5%
  • MLS Area #
    Area 385
  • Number of Photos
    32
  • Last Modification Time
    Thursday, December 11, 2025 4:01 AM
  • System Listing ID
    5488358
Update Info
  • Closed
    2025-11-10 17:49:28
  • Pending Or Ctg
    2025-10-03 18:59:46
  • First For Sale
    2025-10-01 11:31:33
Listing details based on information submitted to the MLS GRID as of Thursday, December 11, 2025 4:01 AM. All data is obtained from various sources and may not have been verified by broker or MLS GRID. Supplied Open House Information is subject to change without notice. All information should be independently reviewed and verified for accuracy. Properties may or may not be listed by the office/agent presenting the information.
View
Sort

Sharing

 
Sold November 10, 2025
$635,000  
2 BR    1.75 BA    1,056 SQFT  
NWMLS #2438858. Land Cook, Urban Living
Map
 
Listing information is provided by the listing agent except as follows: BuilderB indicates that our system has grouped this listing under a home builder name that doesn't match the name provided by the listing broker. DevelopmentD indicates that our system has grouped this listing under a development name that doesn't match the name provided by the listing broker.