to
Reset
Houses
Townhouses
Condos
Land
Price
to
SQFT
to
Bdrms
to
Baths
to
Lot
to
Yr Built
to
Sold
Listed within...
Listed at least...
Offer Review
New Construction
Waterfront
Short-Sales
REO
Parking
to
Unit Flr
to
Unit Nbr
Listings
Neighborhoods
Complexes
Developments
Cities
Counties
Zip Codes
Neighborhood · Condo · Development
School District
Zip Code
City
County
Builder
Listing Numbers
Broker LAG
Boundary Lines
Labels
View
Sort
For Sale 19 Days Online
$950,000
5 Bedrooms
5 Bathrooms
4,677 Sqft House
Built 2007
17,859 Sqft Lot
3-Car Garage
HOA Dues $13 / month
Perched on the desirable 5 Mile Bluff where luxury meets comfort. The chef’s kitchen is ideal for entertaining with high-end granite counters, custom cherry cabinetry, a massive island, top-tier stainless appliances, gas grill-top stove, & a brand-new French door fridge. The main floor primary ensuite is a retreat with breathtaking views, spa-like bath & a walk-in closet any fashionista will love. Floor-to-ceiling windows & soaring ceilings showcase 180 degree panoramas & unforgettable sunsets. Outdoor living includes a welcoming covered front porch, composite deck perfect for sunset dining, and shaded back patio. Updates in 2025 include refinished hardwoods, new LVP flooring, landscaping and fresh professional exterior paint.
Offer Review
Will review offers when submitted
Listing source NWMLS MLS #
2439790
Listed by
Stephanie Peterson, Windermere RE/City Group
We don't currently have a buyer representative in this area. To be sure that you're getting objective advice, we always suggest buyers work with their own agent, someone who is not affiliated with the seller.
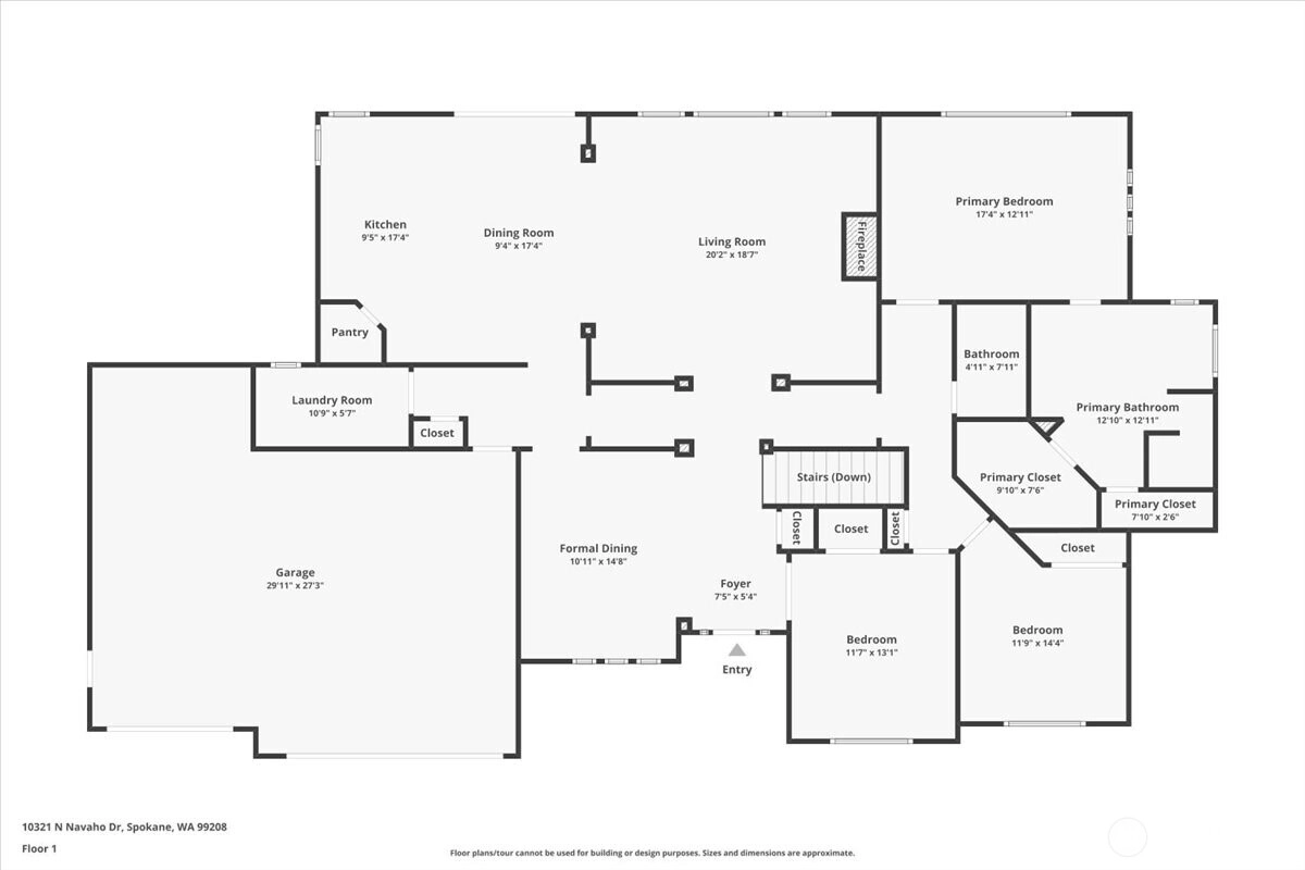
Bedroom & Bathroom Layout
MAIN
BDRM
BDRM
BDRM
FULL
BATH
FULL
BATH
FULL
BATH
LOWER
BDRM
BDRM
FULL
BATH
FULL
BATH
Property History
Oct 01, 2025
Listed
$950,000
NWMLS #2439790
More
Listing Details
  • Status
    For Sale
  • Price
    $950,000
  • Original Price
    Same as current
  • List Date
    October 1, 2025
  • Last Status Change
    October 1, 2025
  • Last Update
    October 2, 2025
  • Days on Market
    19 Days
  • Cumulative DOM
    19 Days
  • $/sqft (Total)
    $203/sqft
  • $/sqft (Finished)
    $203/sqft
  • Listing Source
  • MLS Number
    2439790
  • Listing Broker
    Stephanie Peterson
  • Listing Office
    Windermere RE/City Group
Monthly Payment Estimate
  • Principal and Interest
    $4,980 / month
  • HOA
    $13 / month
  • Property Taxes
    $721 / month
  • Homeowners Insurance
    $187 / month
  • TOTAL
    $5,901 / month

  • based on 20% down
    ($190,000)
  • and a
    6.85% Interest Rate
  • About:
    All calculations are estimates only and provided by Mainview LLC. Actual amounts will vary.
House Details
  • Sqft (Total)
    4,677 sqft
  • Sqft (Finished)
    4,677 sqft
  • Sqft (Unfinished)
    None
  • Property Type
    House
  • Sub Type
    1 Story + Basement
  • Bedrooms
    5 Bedrooms
  • Bathrooms
    5 Bathrooms
  • Lot
    17,859 sqft Lot
  • Lot Size Source
    Public Records
  • Lot #
    Unspecified
  • Project
    Unspecified
  • Total Stories
    2 stories
  • Basement
    Daylight
    Finished
  • Sqft Source
    Public Records
Property Tax Info
  • 2025 Property Taxes
    $8,657 / year
  • No Senior Exemption
Public Parcel Data & Maps
  • County
    Spokane County
  • Parcel #
    26151.4814
  • County Website
    Unspecified
  • County Parcel Map
    Unspecified
  • County GIS Map
    Unspecified
  • About
    County links provided by Mainview LLC
Schools
  • School District
    Spokane
  • Elementary
    Woodridge Elem
  • Middle
    Salk Mid
  • High School
    Shadle Park High
HOA
  • HOA Dues
    $13 / month
  • Fees Assessed
    Annually
  • HOA Dues Include
    Unspecified
  • HOA Contact
    Unspecified
  • Management Contact
Community Features
  • Community Features
    CCRs
Parking
  • Covered
    3-Car
  • Types
    Attached Garage
  • Has Garage
    Yes
  • Nbr of Assigned Spaces
    3
Views
  • City
    Mountain(s)
    Territorial
Construction
  • Year Built
    2007
  • Home Builder
    Unspecified
Cooling
  • Includes
    Central A/C
Heating
  • Includes
    Forced Air
Interior
  • Flooring
    Hardwood
    Laminate
    Carpet
  • Features
    Bath Off Primary
    Double Pane/Storm Window
    Dining Room
    Fireplace
    Security System
    Vaulted Ceiling(s)
    Walk-In Closet(s)
    Walk-In Pantry
Property
  • Lot Features
    Paved
  • Site Features
    Cable TV
    Deck
    Fenced-Partially
    High Speed Internet
    Patio
    Sprinkler System
Appliances
  • Included
    Dishwasher(s)
    Disposal
    Double Oven
    Microwave(s)
    Refrigerator(s)
    Stove(s)/Range(s)
Terms
  • 3rd Party Approval Required)
    No
  • Bank Owned (REO)
    No
  • Complex FHA Availability
    Unspecified
  • Potential Terms
    Cash Out
    Conventional
    VA Loan
Utilities
  • Energy
    Electric
    Natural Gas
  • Sewer
    Sewer Connected
  • Water Source
    Public
Additional Info
  • Waterfront
    No
  • Air Conditioning (A/C)
    Yes
  • Buyer Broker's Compensation
    3%
  • MLS Area #
    Area 561
  • Number of Photos
    40
  • Last Modification Time
    Thursday, October 2, 2025 5:03 AM
  • System Listing ID
    5488555
Update Info
  • First For Sale
    2025-10-01 15:46:24
Listing details based on information submitted to the MLS GRID as of Thursday, October 2, 2025 5:03 AM. All data is obtained from various sources and may not have been verified by broker or MLS GRID. Supplied Open House Information is subject to change without notice. All information should be independently reviewed and verified for accuracy. Properties may or may not be listed by the office/agent presenting the information.
View
Sort

Sharing

 
For Sale 19 Days Online
$950,000  
5 BR    5 BA    4,677 SQFT  
Offer Review: Anytime
NWMLS #2439790. Stephanie Peterson, Windermere RE/City Group
Map
 
Listing information is provided by the listing agent except as follows: BuilderB indicates that our system has grouped this listing under a home builder name that doesn't match the name provided by the listing broker. DevelopmentD indicates that our system has grouped this listing under a development name that doesn't match the name provided by the listing broker.