to
Reset
Houses
Townhouses
Condos
Land
Price
to
SQFT
to
Bdrms
to
Baths
to
Lot
to
Yr Built
to
Sold
Listed within...
Listed at least...
Offer Review
New Construction
Waterfront
Short-Sales
REO
Parking
to
Unit Flr
to
Unit Nbr
Listings
Neighborhoods
Complexes
Developments
Cities
Counties
Zip Codes
Neighborhood · Condo · Development
School District
Zip Code
City
County
Builder
Listing Numbers
Broker LAG
Boundary Lines
Labels
View
Sort
Sold Closed October 28, 2025
$925,000
4 Bedrooms
2 Bathrooms
2,500 Sqft House
Built 1973
8,269 Sqft Lot
2-Car Garage
SALE HISTORY
List price was $925,000
It took 5 days to go pending.
Then 21 days to close at $925,000
Closed at $370/SQFT.
Welcome home to the perfect location in Lake Forest Park! With three bedrooms/two baths and plenty of room both upstairs and downstairs, it has something for everyone. An updated kitchen and baths along with new flooring and carpet allows you to move right in! A two car garage and oversized laundry room give you ample space for storage. This lovely home is the ideal place to build lasting memories.
Offer Review Date
This listing's offer review date was Tuesday, October 7, 2025.
Listing source NWMLS MLS #
2436385
Listed by
Diane Moorman, Keller Williams Seattle Metro
Buyer's broker
Elisa Wirkala, Lake & Company
Contact our
Lake Forest Park
Real Estate Lead
Windermere Real Estate / North, Inc
Phone...
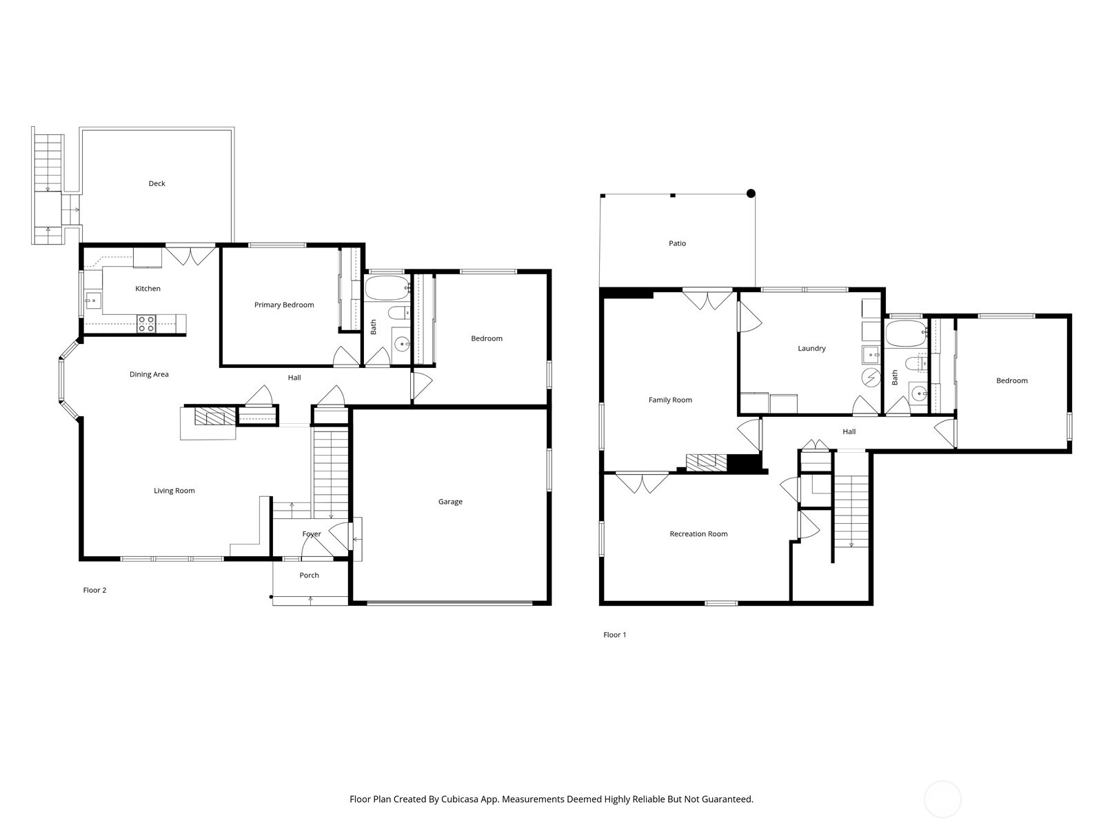
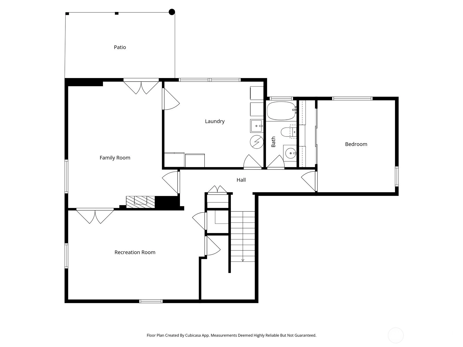
Bedroom & Bathroom Layout
SECOND
MAIN
BDRM
BDRM
FULL
BATH
LOWER
BDRM
BDRM
FULL
BATH
Property History
Oct 29, 2025
Sold
$925,000
NWMLS #2436385
Oct 16, 2025
Went Pending
$925,000
NWMLS #2436385
Oct 07, 2025
Went Pending Inspection
$925,000
NWMLS #2436385
Oct 02, 2025
Listed
$925,000
NWMLS #2436385
More
Listing Details
  • Sale Price
    $925,000
  • Closing Date
    October 28, 2025
  • Last List Price
    $925,000
  • Original Price
    Same
  • List Date
    October 2, 2025
  • Pending Date
    October 7, 2025
  • Days to go Pending
    5 days
  • $/sqft (Total)
    $370/sqft
  • $/sqft (Finished)
    Same
  • Listing Source
  • MLS Number
    2436385
  • Listing Broker
    Diane Moorman
  • Listing Office
    Keller Williams Seattle Metro
  • Buyer's Broker
    Elisa Wirkala
  • Buyer Broker's Firm
    Lake & Company
Monthly Payment Estimate
  • Principal and Interest
    $4,849 / month
  • Property Taxes
    $691 / month
  • Homeowners Insurance
    $182 / month
  • TOTAL
    $5,722 / month

  • based on 20% down
    ($185,000)
  • and a
    6.85% Interest Rate
  • About:
    All calculations are estimates only and provided by Mainview LLC. Actual amounts will vary.
House Details
  • Sqft (Total)
    2,500 sqft
  • Sqft (Finished)
    2,500 sqft
  • Sqft (Unfinished)
    None
  • Property Type
    House
  • Sub Type
    Split Entry
  • Bedrooms
    4 Bedrooms
  • Bathrooms
    2 Bathrooms
  • Lot
    8,269 sqft Lot
  • Lot Size Source
    Realist
  • Lot #
    Unspecified
  • Project
    Unspecified
  • Total Stories
    2 stories
  • Sqft Source
    Realist
Property Tax Info
  • 2025 Property Taxes
    $8,297 / year
  • No Senior Exemption
Public Parcel Data & Maps
Schools
  • School District
    Shoreline
  • Elementary
    Buyer To Verify
  • Middle
    Buyer To Verify
  • High School
    Buyer To Verify
HOA
  • HOA Dues
    Unspecified
  • Fees Assessed
    Unspecified
  • HOA Dues Include
    Unspecified
  • HOA Contact
    Unspecified
  • Management Contact
    Unspecified
Parking
  • Covered
    2-Car
  • Types
    Attached Garage
  • Has Garage
    Yes
  • Nbr of Assigned Spaces
    2
Construction
  • Year Built
    1973
  • Home Builder
    Unspecified
Cooling
  • Includes
    Forced Air
Heating
  • Includes
    Forced Air
Interior
  • Flooring
    Vinyl Plank
    Carpet
  • Features
    Double Pane/Storm Window
    Dining Room
    Fireplace
    Vaulted Ceiling(s)
    Water Heater
Property
  • Lot Features
    Cul-De-Sac
  • Site Features
    Deck
    Patio
Appliances
  • Included
    Dishwasher(s)
    Dryer(s)
    Microwave(s)
    Refrigerator(s)
    Stove(s)/Range(s)
    Washer(s)
Terms
  • Bank Owned (REO)
    No
Utilities
  • Energy
    Electric
    Natural Gas
  • Sewer
    Sewer Connected
  • Water Source
    Public
Additional Info
  • Waterfront
    No
  • Air Conditioning (A/C)
    Yes
  • Buyer Broker's Compensation
    2.5%
  • MLS Area #
    Area 720
  • Number of Photos
    27
  • Last Modification Time
    Wednesday, October 29, 2025 9:54 PM
  • System Listing ID
    5488721
Update Info
  • Closed
    2025-10-29 21:57:07
  • Pending Or Ctg
    2025-10-16 09:43:09
  • First For Sale
    2025-10-02 08:14:44
Listing details based on information submitted to the MLS GRID as of Wednesday, October 29, 2025 9:54 PM. All data is obtained from various sources and may not have been verified by broker or MLS GRID. Supplied Open House Information is subject to change without notice. All information should be independently reviewed and verified for accuracy. Properties may or may not be listed by the office/agent presenting the information.
View
Sort

Sharing

 
Sold October 28, 2025
$925,000  
4 BR    2 BA    2,500 SQFT  
NWMLS #2436385. Diane Moorman, Keller Williams Seattle Metro
Map
 
Listing information is provided by the listing agent except as follows: BuilderB indicates that our system has grouped this listing under a home builder name that doesn't match the name provided by the listing broker. DevelopmentD indicates that our system has grouped this listing under a development name that doesn't match the name provided by the listing broker.