to
Reset
Houses
Townhouses
Condos
Land
Price
to
SQFT
to
Bdrms
to
Baths
to
Lot
to
Yr Built
to
Sold
Listed within...
Listed at least...
Offer Review
New Construction
Waterfront
Short-Sales
REO
Parking
to
Unit Flr
to
Unit Nbr
Listings
Neighborhoods
Complexes
Developments
Cities
Counties
Zip Codes
Neighborhood · Condo · Development
School District
Zip Code
City
County
Builder
Listing Numbers
Broker LAG
Boundary Lines
Labels
View
Sort
Pending Went pending in 5 days
$1,300,000
5 Bedrooms
2.5 Bathrooms
2,890 Sqft House
Built 1959
8,213 Sqft Lot
2-Car Garage
PENDING SALE. This listing went Pending on October 7, 2025

Some pending sales don't become final. Contact Us if this property is really important to you so we can check on it right now. The seller has reached an agreement with a buyer to sell this property. If things go as planned, the sale will become final in the near future. The buyer and seller have agreed on a price but it's not public until the sale closes. The last published list price was $1,300,000.
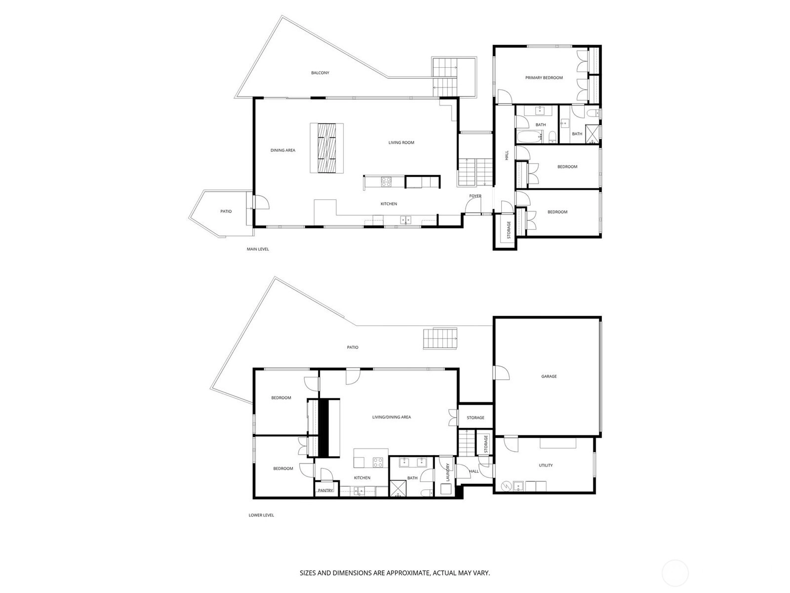
Enjoy the splendor of Cedar Park & the finesse of elevated design in this stunning mid-century modern home. Enter the main floor and you are welcomed by views of Lake Washington from almost every room. The enormous kitchen flows into equally expansive living and dining rooms, bisected by a striking double-sided fireplace.  A deck off the dining room offers more superb views of Lake Washington and treetop outlooks.  Also on the main floor, primary suite with ample closet space and a fabulous 50s-inspired primary bath and 2 additional large bedrooms. On the lower level (which could easily function as a separate unit), find 2 more bedrooms, a massive rec room with custom built-in book case, a 2nd kitchen, and more views from the patio.
Offer Review Date
This listing's offer review date was Tuesday, October 7, 2025.
Listing source NWMLS MLS #
2439847
Listed by
Bruce Ainslie, Windermere RE Greenwood
Sharilyn Patterson, Windermere RE Greenwood
Contact our
Cedar Park
Real Estate Lead
John L. Scott
Phone...
Bedroom & Bathroom Layout
MAIN
BDRM
BDRM
BDRM
FULL
BATH
¾
BATH
LOWER
BDRM
BDRM
¾
BATH
Property History
Oct 07, 2025
Went Pending
$1,300,000
NWMLS #2439847
Oct 02, 2025
Listed
$1,300,000
NWMLS #2439847
Jul 07, 2010
Sold
$545,000
More
Listing Details
  • Status
    Pending
  • Last Listed Price
    $1,300,000
  • Original Price
    Same as current
  • List Date
    October 2, 2025
  • Last Status Change
    October 8, 2025
  • Last Update
    October 8, 2025
  • Days on Market
    12 Days
  • Cumulative DOM
    5 Days
  • Pending Date
    October 7, 2025
  • Days to go Pending
    5
  • $/sqft (Total)
    $450/sqft
  • $/sqft (Finished)
    $450/sqft
  • Listing Source
  • MLS Number
    2439847
  • Listing Broker
    Bruce Ainslie
  • Listing Office
    Windermere RE Greenwood
Monthly Payment Estimate
  • Principal and Interest
    $6,815 / month
  • Property Taxes
    $940 / month
  • Homeowners Insurance
    $251 / month
  • TOTAL
    $8,006 / month

  • based on 20% down
    ($260,000)
  • and a
    6.85% Interest Rate
  • About:
    All calculations are estimates only and provided by Mainview LLC. Actual amounts will vary.
House Details
  • Sqft (Total)
    2,890 sqft
  • Sqft (Finished)
    2,890 sqft
  • Sqft (Unfinished)
    Unspecified
  • Property Type
    House
  • Sub Type
    1 Story + Basement
  • Bedrooms
    5 Bedrooms
  • Bathrooms
    2.5 Bathrooms
  • Lot
    8,213 sqft Lot
  • Lot Size Source
    Realist
  • Lot #
    Unspecified
  • Project
    Unspecified
  • Total Stories
    2 stories
  • Basement
    Daylight
    Finished
  • Sqft Source
    Realist
Property Tax Info
  • 2025 Property Taxes
    $11,274 / year
  • No Senior Exemption
Public Parcel Data & Maps
Schools
  • School District
    Seattle
  • Elementary
    Cedar Park Elementary
  • Middle
    Jane Addams
  • High School
    Nathan Hale High
HOA
  • HOA Dues
    Unspecified
  • Fees Assessed
    Unspecified
  • HOA Dues Include
    Unspecified
  • HOA Contact
    Unspecified
  • Management Contact
Parking
  • Covered
    2-Car
  • Types
    Attached Garage
    RV Parking
  • Has Garage
    Yes
  • Nbr of Assigned Spaces
    2
Views
  • Lake
    Mountain(s)
    Territorial
Construction
  • Year Built
    1959
  • Home Builder
    Unspecified
Cooling
  • Includes
    Ductless
Heating
  • Includes
    Ductless
    Forced Air
Interior
  • Flooring
    Bamboo/Cork
    Ceramic Tile
    Hardwood
    Slate
  • Features
    Second Kitchen
    Bath Off Primary
    Double Pane/Storm Window
    Dining Room
    Fireplace
    Skylight(s)
    Vaulted Ceiling(s)
    Walk-In Closet(s)
Property
  • Lot Features
    Paved
  • Site Features
    Cable TV
    Deck
    Fenced-Partially
    High Speed Internet
    Patio
    RV Parking
Appliances
  • Included
    Dishwasher(s)
    Dryer(s)
    Microwave(s)
    Refrigerator(s)
    Stove(s)/Range(s)
    Washer(s)
Terms
  • 3rd Party Approval Required)
    No
  • Bank Owned (REO)
    No
  • Complex FHA Availability
    Unspecified
  • Potential Terms
    Cash Out
    Conventional
    FHA
    VA Loan
Utilities
  • Energy
    Electric
  • Sewer
    Sewer Connected
  • Water Source
    Public
Additional Info
  • Waterfront
    No
  • Air Conditioning (A/C)
    Yes
  • Buyer Broker's Compensation
    2.5%
  • MLS Area #
    Area 710
  • Number of Photos
    40
  • Last Modification Time
    Tuesday, October 7, 2025 8:33 PM
  • System Listing ID
    5488749
Update Info
  • Pending Or Ctg
    2025-10-07 20:50:05
  • First For Sale
    2025-10-02 08:53:51
Listing details based on information submitted to the MLS GRID as of Tuesday, October 7, 2025 8:33 PM. All data is obtained from various sources and may not have been verified by broker or MLS GRID. Supplied Open House Information is subject to change without notice. All information should be independently reviewed and verified for accuracy. Properties may or may not be listed by the office/agent presenting the information.
View
Sort

Sharing

 
Pending October 7, 2025
$1,300,000  
5 BR    2.5 BA    2,890 SQFT  
NWMLS #2439847. Bruce Ainslie, Windermere RE Greenwood
Map
 
Listing information is provided by the listing agent except as follows: BuilderB indicates that our system has grouped this listing under a home builder name that doesn't match the name provided by the listing broker. DevelopmentD indicates that our system has grouped this listing under a development name that doesn't match the name provided by the listing broker.