to
Reset
Houses
Townhouses
Condos
Land
Price
to
SQFT
to
Bdrms
to
Baths
to
Lot
to
Yr Built
to
Sold
Listed within...
Listed at least...
Offer Review
New Construction
Waterfront
Short-Sales
REO
Parking
to
Unit Flr
to
Unit Nbr
Listings
Neighborhoods
Complexes
Developments
Cities
Counties
Zip Codes
Neighborhood · Condo · Development
School District
Zip Code
City
County
Builder
Listing Numbers
Broker LAG
Boundary Lines
Labels
View
Sort
Sold Closed November 13, 2025
$1,100,000
3 Bedrooms
2.5 Bathrooms
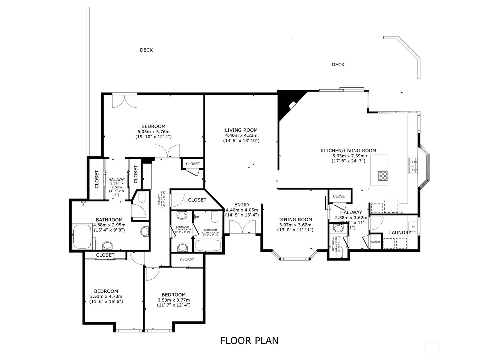
2,362 Sqft House
Built 1988
10,019 Sqft Lot
2-Car Garage
HOA Dues $61 / month
SALE HISTORY
List price was $1,100,000
It took 18 days to go pending.
Then 24 days to close at $1,100,000
Closed at $466/SQFT.
Move-in ready, stylishly updated rambler in the desirable Douglas Fir neighborhood! Recent updates include a new deck, refinished hardwoods, new carpet, updated hardware, lighting & plumbing fixtures & 1 year old furnace, heat pump (A/C) & water heater. Fantastic floor plan w/ only 1-step to the front door boasts living & dining rooms, family room w/cozy gas fireplace, kitchen w/ pantry, island and breakfast nook, and primary suite w/deck access, vaulted ceilings, walk-in closet & 5-piece bath. Beautiful backyard is ¾ fenced w/permit obtained for fencing along Trillium. Ideally located near Mill Creek Town Center, schools, golf & tennis clubs, aquatic center, Arena Sports, scenic nature trails, parks, SWIFT Transit Line, Park & Ride & more.
Offer Review
No offer review date was specified
Listing source NWMLS MLS #
2440831
Listed by
Jessie L. Grandpre, Windermere Real Estate/M2, LLC
Buyer's broker
Amanda Standley, Windermere Real Estate Central
Contact our
Mill Creek
Real Estate Lead
Buck Real Estate
Phone...
Bedroom & Bathroom Layout
MAIN
BDRM
BDRM
BDRM
FULL
BATH
FULL
BATH
½
BATH
Property History
Nov 13, 2025
Sold
$1,100,000
NWMLS #2440831
Oct 20, 2025
Went Pending
$1,100,000
NWMLS #2440831
Oct 02, 2025
Listed
$1,100,000
NWMLS #2440831
Sep 05, 2024
Listed
$1,229,000
NWMLS #2286700
Aug 29, 2021
Sold
$1,100,000
Aug 03, 2021
Listed
$885,000
More
Listing Details
  • Sale Price
    $1,100,000
  • Closing Date
    November 13, 2025
  • Last List Price
    $1,100,000
  • Original Price
    Same
  • List Date
    October 2, 2025
  • Pending Date
    October 20, 2025
  • Days to go Pending
    18 days
  • $/sqft (Total)
    $466/sqft
  • $/sqft (Finished)
    $466/sqft
  • Listing Source
  • MLS Number
    2440831
  • Listing Broker
    Jessie L. Grandpre
  • Listing Office
    Windermere Real Estate/M2, LLC
  • Buyer's Broker
    Amanda Standley
  • Buyer Broker's Firm
    Windermere Real Estate Central
Monthly Payment Estimate
  • Principal and Interest
    $5,766 / month
  • HOA
    $61 / month
  • Property Taxes
    $814 / month
  • Homeowners Insurance
    $214 / month
  • TOTAL
    $6,855 / month

  • based on 20% down
    ($220,000)
  • and a
    6.85% Interest Rate
  • About:
    All calculations are estimates only and provided by Mainview LLC. Actual amounts will vary.
House Details
  • Sqft (Total)
    2,362 sqft
  • Sqft (Finished)
    2,362 sqft
  • Sqft (Unfinished)
    None
  • Property Type
    House
  • Sub Type
    1 Story
  • Bedrooms
    3 Bedrooms
  • Bathrooms
    2.5 Bathrooms
  • Lot
    10,019 sqft Lot
  • Lot Size Source
    Realist
  • Lot #
    Unspecified
  • Project
    Douglas Fir
  • Total Stories
    1 story
  • Basement
    None
  • Sqft Source
    Realist
Property Tax Info
  • 2025 Property Taxes
    $9,763 / year
  • No Senior Exemption
Public Parcel Data & Maps
Schools
  • School District
    Everett
  • Elementary
    Mill Creek Elem
  • Middle
    Heatherwood Mid
  • High School
    Henry M. Jackson Hig
HOA
  • HOA Dues
    $61 / month
  • Fees Assessed
    Annually
  • HOA Dues Include
    Common Area Maintenance
    Security
  • HOA Contact
    Unspecified
  • Management Contact
    Unspecified
Community Features
  • Community Features
    CCRs
Parking
  • Covered
    2-Car
  • Types
    Attached Garage
  • Has Garage
    Yes
  • Nbr of Assigned Spaces
    2
Construction
  • Year Built
    1988
  • Home Builder
    Unspecified
Cooling
  • Includes
    90%+ High Efficiency
    Central A/C
Heating
  • Includes
    90%+ High Efficiency
Interior
  • Flooring
    Ceramic Tile
    Hardwood
    Vinyl
    Carpet
  • Features
    Bath Off Primary
    Ceiling Fan(s)
    Dining Room
    Fireplace
    French Doors
    Skylight(s)
    Sprinkler System
    Vaulted Ceiling(s)
    Walk-In Closet(s)
    Water Heater
Property
  • Lot Features
    Corner Lot
    Curbs
    Paved
  • Site Features
    Cable TV
    Deck
    Fenced-Partially
    Patio
    Sprinkler System
Appliances
  • Included
    Dishwasher(s)
    Disposal
    Dryer(s)
    Microwave(s)
    Refrigerator(s)
    Stove(s)/Range(s)
    Washer(s)
Terms
  • Bank Owned (REO)
    No
Utilities
  • Energy
    Natural Gas
  • Sewer
    Sewer Connected
  • Water Source
    Public
Additional Info
  • Waterfront
    No
  • Air Conditioning (A/C)
    Yes
  • Buyer Broker's Compensation
    3%
  • MLS Area #
    Area 740
  • Number of Photos
    40
  • Last Modification Time
    Thursday, November 13, 2025 5:37 PM
  • System Listing ID
    5489074
Update Info
  • Closed
    2025-11-13 17:50:00
  • Pending Or Ctg
    2025-10-20 17:29:03
  • First For Sale
    2025-10-02 14:15:55
Listing details based on information submitted to the MLS GRID as of Thursday, November 13, 2025 5:37 PM. All data is obtained from various sources and may not have been verified by broker or MLS GRID. Supplied Open House Information is subject to change without notice. All information should be independently reviewed and verified for accuracy. Properties may or may not be listed by the office/agent presenting the information.
View
Sort

Sharing

 
Sold November 13, 2025
$1,100,000  
3 BR    2.5 BA    2,362 SQFT  
NWMLS #2440831. Jessie L. Grandpre, Windermere Real Estate/M2, LLC
Map
 
Listing information is provided by the listing agent except as follows: BuilderB indicates that our system has grouped this listing under a home builder name that doesn't match the name provided by the listing broker. DevelopmentD indicates that our system has grouped this listing under a development name that doesn't match the name provided by the listing broker.