to
Reset
Houses
Townhouses
Condos
Land
Price
to
SQFT
to
Bdrms
to
Baths
to
Lot
to
Yr Built
to
Sold
Listed within...
Listed at least...
Offer Review
New Construction
Waterfront
Short-Sales
REO
Parking
to
Unit Flr
to
Unit Nbr
Listings
Neighborhoods
Complexes
Developments
Cities
Counties
Zip Codes
Neighborhood · Condo · Development
School District
Zip Code
City
County
Builder
Listing Numbers
Broker LAG
Boundary Lines
Labels
View
Sort
Pending Went pending in 3 days
$850,000
4 Bedrooms
1.75 Bathrooms
1,647 Sqft House
Built 1955
10,260 Sqft Lot
2-Car Garage
PENDING SALE. This listing went Pending on October 5, 2025

Some pending sales don't become final. Contact Us if this property is really important to you so we can check on it right now. The seller has reached an agreement with a buyer to sell this property. If things go as planned, the sale will become final in the near future. The buyer and seller have agreed on a price but it's not public until the sale closes. The last published list price was $850,000.
Impeccably maintained one-story rambler on a prominent corner lot in prestigious Uplake. This residence blends timeless updates with enduring quality: 2024 flooring, 2025 exterior paint & landscaping, a 2017 kitchen remodel with quartz counters & custom cabinetry, plus a newer furnace. Granite accents elevate kitchen & bath finishes, while the open floor plan flows seamlessly to a private backyard with covered patio. Oversized 2-car garage with RV parking. Pre-inspected and exceptionally well maintained. Residents enjoy access to the exclusive Aqua Club pool & tennis with effortless access to I-5, 405, and area amenities.
Offer Review Date
This listing's offer review date was Sunday, October 5, 2025.
Listing source NWMLS MLS #
2437169
Listed by
Hao N. Dang, Windermere Real Estate/East
Contact our
Kenmore
Real Estate Lead
Windermere Real Estate / North, Inc
Phone...
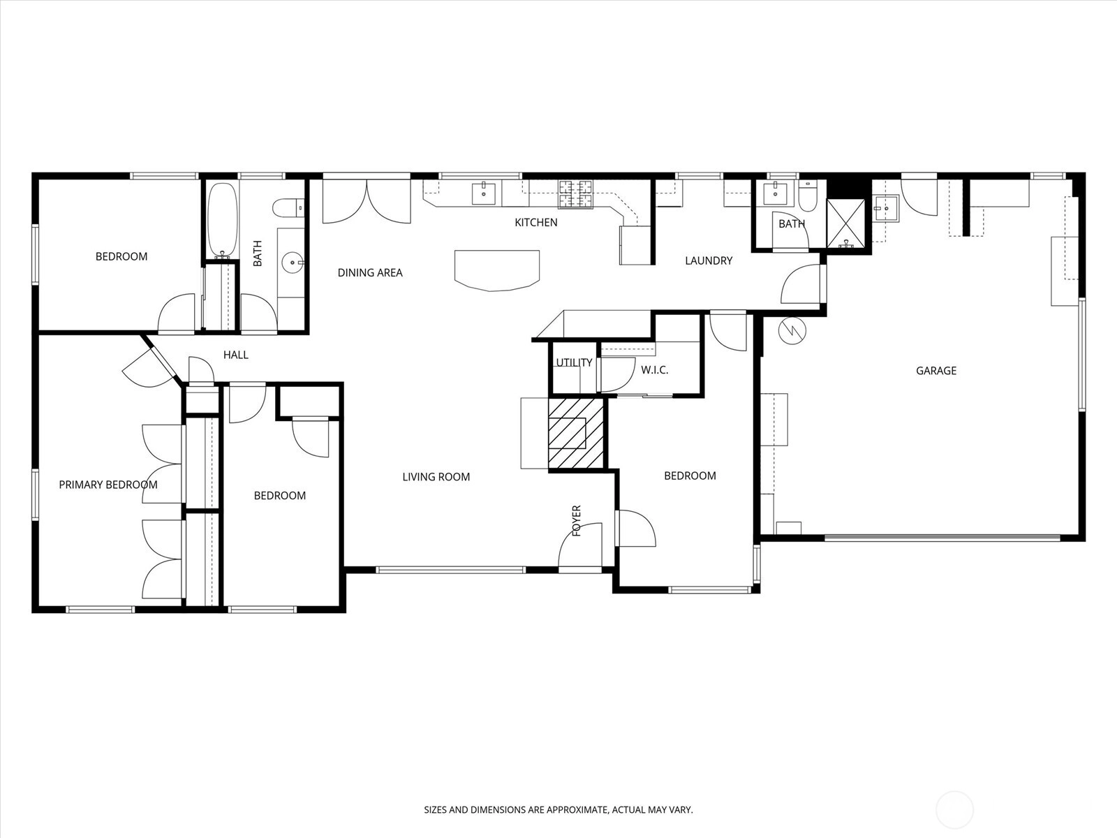
Bedroom & Bathroom Layout
MAIN
BDRM
BDRM
BDRM
BDRM
FULL
BATH
¾
BATH
Property History
Oct 05, 2025
Went Pending
$850,000
NWMLS #2437169
Oct 02, 2025
Listed
$850,000
NWMLS #2437169
More
Listing Details
  • Status
    Pending
  • Last Listed Price
    $850,000
  • Original Price
    Same as current
  • List Date
    October 2, 2025
  • Last Status Change
    October 6, 2025
  • Last Update
    October 6, 2025
  • Days on Market
    8 Days
  • Cumulative DOM
    3 Days
  • Pending Date
    October 5, 2025
  • Days to go Pending
    3
  • $/sqft (Total)
    $516/sqft
  • $/sqft (Finished)
    $516/sqft
  • Listing Source
  • MLS Number
    2437169
  • Listing Broker
    Hao N. Dang
  • Listing Office
    Windermere Real Estate/East
Monthly Payment Estimate
  • Principal and Interest
    $4,456 / month
  • Property Taxes
    $767 / month
  • Homeowners Insurance
    $168 / month
  • TOTAL
    $5,391 / month

  • based on 20% down
    ($170,000)
  • and a
    6.85% Interest Rate
  • About:
    All calculations are estimates only and provided by Mainview LLC. Actual amounts will vary.
House Details
  • Sqft (Total)
    1,647 sqft
  • Sqft (Finished)
    1,647 sqft
  • Sqft (Unfinished)
    None
  • Property Type
    House
  • Sub Type
    1 Story
  • Bedrooms
    4 Bedrooms
  • Bathrooms
    1.75 Bathrooms
  • Lot
    10,260 sqft Lot
  • Lot Size Source
    Realist
  • Lot #
    Unspecified
  • Project
    Unspecified
  • Total Stories
    1 story
  • Basement
    None
  • Sqft Source
    Realist
Property Tax Info
  • 2025 Property Taxes
    $9,199 / year
  • No Senior Exemption
Public Parcel Data & Maps
Schools
  • School District
    Northshore
  • Elementary
    Kenmore Elem
  • Middle
    Kenmore Middle School
  • High School
    Inglemoor Hs
HOA
  • HOA Dues
    Unspecified
  • Fees Assessed
    Unspecified
  • HOA Dues Include
    Unspecified
  • HOA Contact
    Unspecified
  • Management Contact
Community Features
  • Community Features
    Athletic Court
    CCRs
    Club House
Parking
  • Covered
    2-Car
  • Types
    Attached Garage
    RV Parking
  • Has Garage
    Yes
  • Nbr of Assigned Spaces
    2
Views
  • Territorial
Construction
  • Year Built
    1955
  • Home Builder
    Unspecified
Cooling
  • Includes
    None
Heating
  • Includes
    Forced Air
Interior
  • Flooring
    Laminate
    Stone
    Vinyl Plank
    Carpet
  • Features
    Double Pane/Storm Window
    Dining Room
    Fireplace
    High Tech Cabling
    Water Heater
Property
  • Lot Features
    Corner Lot
    Open Space
    Paved
  • Site Features
    Cable TV
    Fenced-Partially
    Gas Available
    High Speed Internet
    Patio
    RV Parking
Appliances
  • Included
    Dishwasher(s)
    Disposal
    Dryer(s)
    Microwave(s)
    Refrigerator(s)
    Stove(s)/Range(s)
Terms
  • 3rd Party Approval Required)
    No
  • Bank Owned (REO)
    No
  • Complex FHA Availability
    Unspecified
  • Potential Terms
    Cash Out
    Conventional
    FHA
    VA Loan
Utilities
  • Energy
    Electric
    Natural Gas
  • Sewer
    Sewer Connected
  • Water Source
    Public
Additional Info
  • Waterfront
    No
  • Air Conditioning (A/C)
    No
  • Buyer Broker's Compensation
    2.5%
  • MLS Area #
    Area 720
  • Number of Photos
    32
  • Last Modification Time
    Sunday, October 5, 2025 7:52 PM
  • System Listing ID
    5489094
Update Info
  • Pending Or Ctg
    2025-10-05 20:08:21
  • First For Sale
    2025-10-02 14:15:56
Listing details based on information submitted to the MLS GRID as of Sunday, October 5, 2025 7:52 PM. All data is obtained from various sources and may not have been verified by broker or MLS GRID. Supplied Open House Information is subject to change without notice. All information should be independently reviewed and verified for accuracy. Properties may or may not be listed by the office/agent presenting the information.
View
Sort

Sharing

 
Pending October 5, 2025
$850,000  
4 BR    1.75 BA    1,647 SQFT  
NWMLS #2437169. Hao N. Dang, Windermere Real Estate/East
Map
 
Listing information is provided by the listing agent except as follows: BuilderB indicates that our system has grouped this listing under a home builder name that doesn't match the name provided by the listing broker. DevelopmentD indicates that our system has grouped this listing under a development name that doesn't match the name provided by the listing broker.