to
Reset
Houses
Townhouses
Condos
Land
Price
to
SQFT
to
Bdrms
to
Baths
to
Lot
to
Yr Built
to
Sold
Listed within...
Listed at least...
Offer Review
New Construction
Waterfront
Short-Sales
REO
Parking
to
Unit Flr
to
Unit Nbr
Listings
Neighborhoods
Complexes
Developments
Cities
Counties
Zip Codes
Neighborhood · Condo · Development
School District
Zip Code
City
County
Builder
Listing Numbers
Broker LAG
Boundary Lines
Labels
View
Sort
Sold Closed October 27, 2025
$225,000
3 Bedrooms
1.75 Bathrooms
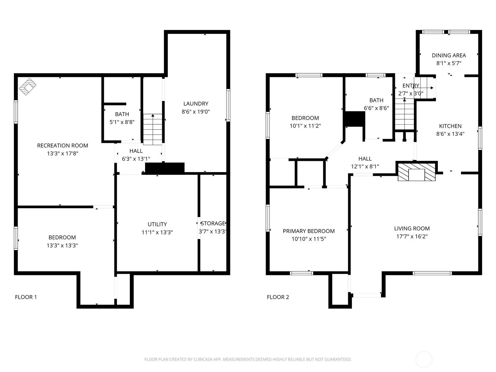
1,712 Sqft House
Built 1940
6,213 Sqft Lot
1-Car Garage
SALE HISTORY
List price was $200,000
It took 8 days to go pending.
Then 12 days to close at $225,000
Closed at $131/SQFT.
Great opportunity on a FIXER with tons of charm and potential! Look at the arched doorways, real wood floors, wood fireplace with traditional brick mantle and tile hearth. Coved ceilings with picture molding in living room and bedrooms, traditional millwork and trim, along with ceiling fans! All appliances stay, as-is, including front-loader laundry machines. Downstairs, the basement offers 3rd bedroom, lots of flex space, large laundry area, rec room that could be used as 4th bedroom (egress?) a 3/4 bath, ample storage, work shop area and access to 1 car garage. Priced well for the investor who's ready turn this into a charming home again.
Offer Review Date
This listing's offer review date was Tuesday, October 14, 2025.
Listing source NWMLS MLS #
2442018
Listed by
George Graham, John L. Scott, Inc
Buyer's broker
Non Member ZDefault, ZNonMember-Office-MLS
We don't currently have a buyer representative in this area. To be sure that you're getting objective advice, we always suggest buyers work with their own agent, someone who is not affiliated with the seller.
Bedroom & Bathroom Layout
MAIN
BDRM
BDRM
FULL
BATH
LOWER
BDRM
¾
BATH
Property History
Oct 29, 2025
Sold
$225,000
NWMLS #2442018
Oct 15, 2025
Went Pending
$200,000
NWMLS #2442018
Oct 07, 2025
Listed
$200,000
NWMLS #2442018
More
Listing Details
  • Sale Price
    $225,000
  • Closing Date
    October 27, 2025
  • Last List Price
    $200,000
  • Original Price
    Same
  • List Date
    October 7, 2025
  • Pending Date
    October 15, 2025
  • Days to go Pending
    8 days
  • $/sqft (Total)
    $131/sqft
  • $/sqft (Finished)
    $131/sqft
  • Listing Source
  • MLS Number
    2442018
  • Listing Broker
    George Graham
  • Listing Office
    John L. Scott, Inc
  • Buyer's Broker
    Non Member ZDefault
  • Buyer Broker's Firm
    ZNonMember-Office-MLS
Monthly Payment Estimate
  • Principal and Interest
    $1,179 / month
  • Property Taxes
    $229 / month
  • Homeowners Insurance
    $70 / month
  • TOTAL
    $1,478 / month

  • based on 20% down
    ($45,000)
  • and a
    6.85% Interest Rate
  • About:
    All calculations are estimates only and provided by Mainview LLC. Actual amounts will vary.
House Details
  • Sqft (Total)
    1,712 sqft
  • Sqft (Finished)
    1,712 sqft
  • Sqft (Unfinished)
    None
  • Property Type
    House
  • Sub Type
    1 Story
  • Bedrooms
    3 Bedrooms
  • Bathrooms
    1.75 Bathrooms
  • Lot
    6,213 sqft Lot
  • Lot Size Source
    County
  • Lot #
    Unspecified
  • Project
    Unspecified
  • Total Stories
    1 story
  • Basement
    Partially Finished
  • Sqft Source
    County
Property Tax Info
  • 2024 Property Taxes
    $2,750 / year
  • No Senior Exemption
Public Parcel Data & Maps
  • County
    Yakima County
  • Parcel #
    18132611477
  • County Website
    Unspecified
  • County Parcel Map
    Unspecified
  • County GIS Map
    Unspecified
  • About
    County links provided by Mainview LLC
Schools
  • School District
    Yakima
  • Elementary
    Unspecified
  • Middle
    Unspecified
  • High School
    Unspecified
HOA
  • HOA Dues
    Unspecified
  • Fees Assessed
    Unspecified
  • HOA Dues Include
    Unspecified
  • HOA Contact
    Unspecified
  • Management Contact
    Unspecified
Parking
  • Covered
    1-Car
  • Types
    Attached Garage
  • Has Garage
    Yes
  • Nbr of Assigned Spaces
    1
Construction
  • Year Built
    1940
  • Home Builder
    Unspecified
Cooling
  • Includes
    None
Heating
  • Includes
    Forced Air
Interior
  • Flooring
    Ceramic Tile
    Hardwood
    Vinyl
    Carpet
  • Features
    Ceiling Fan(s)
    Double Pane/Storm Window
    Dining Room
    Fireplace
Property
Appliances
  • Included
    Dishwasher(s)
    Stove(s)/Range(s)
Terms
  • Bank Owned (REO)
    No
Utilities
  • Energy
    Electric
  • Sewer
    Sewer Connected
  • Water Source
    Public
Additional Info
  • Waterfront
    No
  • Air Conditioning (A/C)
    No
  • Buyer Broker's Compensation
    3%
  • MLS Area #
    Area 475
  • Number of Photos
    31
  • Last Modification Time
    Wednesday, October 29, 2025 12:12 PM
  • System Listing ID
    5490346
Update Info
  • Closed
    2025-10-29 12:15:40
  • Pending Or Ctg
    2025-10-15 12:27:33
  • First For Sale
    2025-10-07 14:23:21
Listing details based on information submitted to the MLS GRID as of Wednesday, October 29, 2025 12:12 PM. All data is obtained from various sources and may not have been verified by broker or MLS GRID. Supplied Open House Information is subject to change without notice. All information should be independently reviewed and verified for accuracy. Properties may or may not be listed by the office/agent presenting the information.
View
Sort

Sharing

 
Sold October 27, 2025
$225,000   $200,000
3 BR    1.75 BA    1,712 SQFT  
NWMLS #2442018. George Graham, John L. Scott, Inc
Map
 
Listing information is provided by the listing agent except as follows: BuilderB indicates that our system has grouped this listing under a home builder name that doesn't match the name provided by the listing broker. DevelopmentD indicates that our system has grouped this listing under a development name that doesn't match the name provided by the listing broker.