to
Reset
Houses
Townhouses
Condos
Land
Price
to
SQFT
to
Bdrms
to
Baths
to
Lot
to
Yr Built
to
Sold
Listed within...
Listed at least...
Offer Review
New Construction
Waterfront
Short-Sales
REO
Parking
to
Unit Flr
to
Unit Nbr
Listings
Neighborhoods
Complexes
Developments
Cities
Counties
Zip Codes
Neighborhood · Condo · Development
School District
Zip Code
City
County
Builder
Listing Numbers
Broker LAG
Boundary Lines
Labels
View
Sort
For Sale 3 Days Online
$2,400,000
5 Bedrooms
4 Bathrooms
3,824 Sqft House
New Construction
Built 2026
6,273 Sqft Lot
2-Car Garage
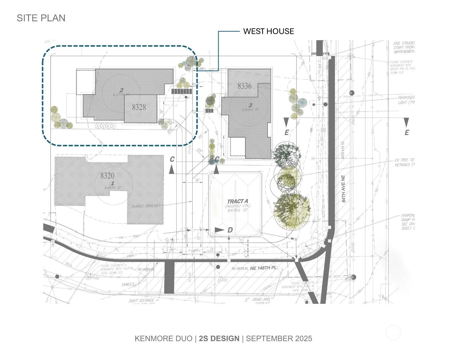
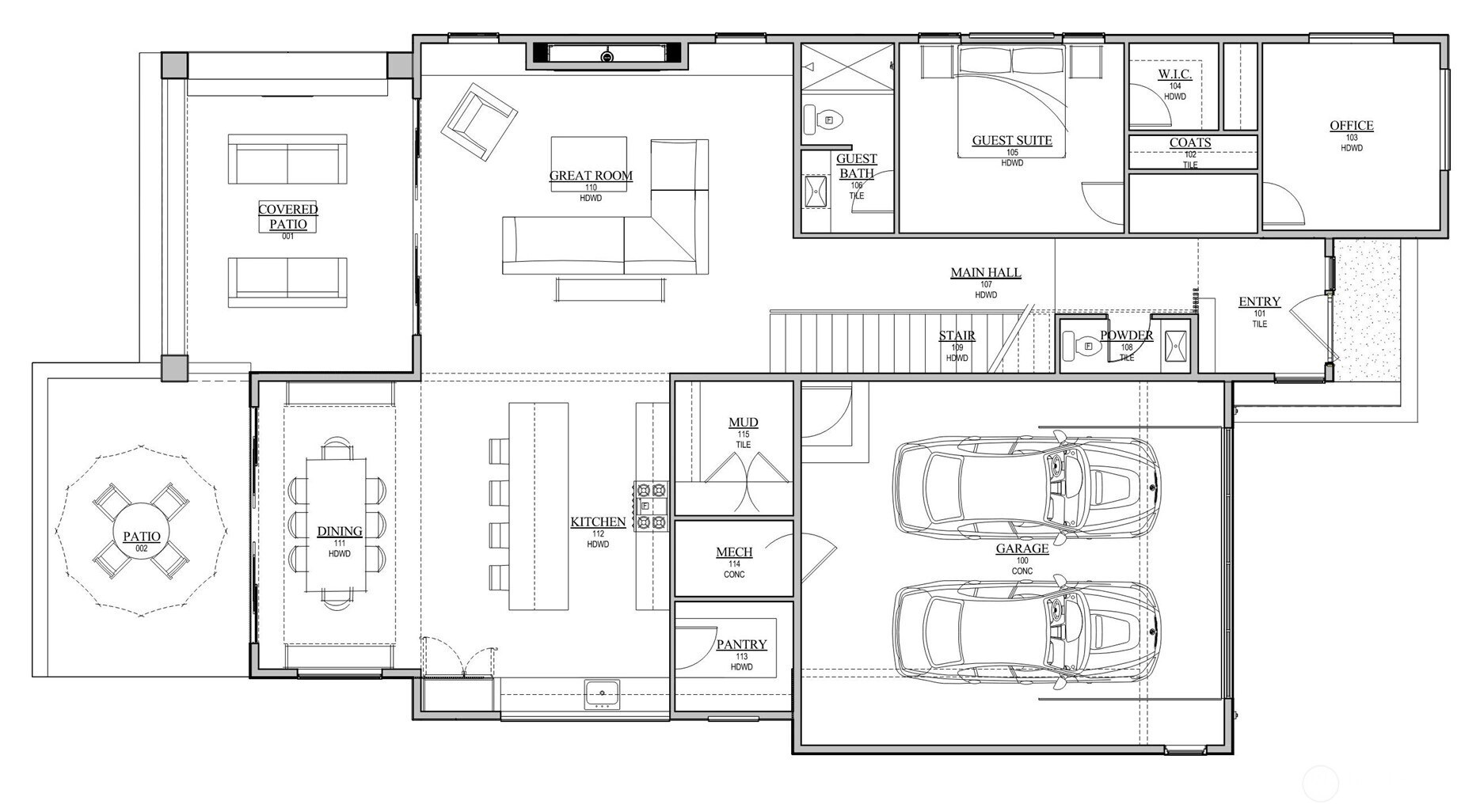
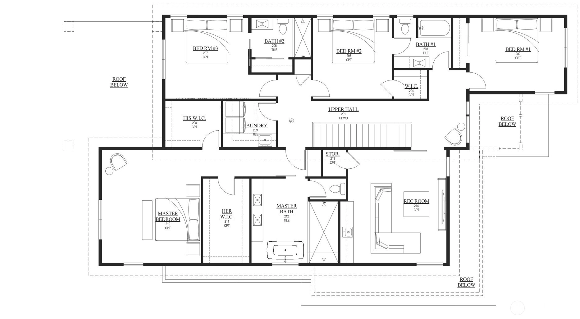
Modern New Build. Permits are in hand and construction has not started, unlock a rare chance to purchase land&build your custom home w/ a single mortgage. At closing, buyer takes title to the lot and signs a fixed-price construction agreement with the builder. No HOA. Main level built for entertaining: chef’s kitchen w/ oversized island + walk-in pantry opens to dining & great room with sliders to a covered outdoor patio. Main-floor guest suite (¾ bath) + office, mud room, powder, and 2-car garage. Upstairs: primary suite w/ dual WICs & spa bath, plus 3 more bedrooms, 2 baths, laundry & rec room. Finishes similar to renderings; buyers may personalize. Minutes to Log Boom Park, Burke-Gilman Trail, Juanita Beach & Saint Edward; Northshore SD.
Offer Review
Will review offers when submitted
Builder
2S Design Build
Listing source NWMLS MLS #
2442402
Listed by
Teri Chanturiya, Armada Homes Real Estate LLC
Contact our
Kenmore
Real Estate Lead
Windermere Real Estate / North, Inc
Phone...
Bedroom & Bathroom Layout
SECOND
BDRM
BDRM
BDRM
BDRM
FULL
BATH
FULL
BATH
¾
BATH
MAIN
BDRM
¾
BATH
½
BATH
Property History
Oct 07, 2025
Listed
$2,400,000
NWMLS #2442402
More
Listing Details
  • Status
    For Sale
  • Price
    $2,400,000
  • Original Price
    Same as current
  • List Date
    October 7, 2025
  • Last Status Change
    October 7, 2025
  • Last Update
    October 8, 2025
  • Days on Market
    3 Days
  • Cumulative DOM
    3 Days
  • $/sqft (Total)
    $628/sqft
  • $/sqft (Finished)
    $628/sqft
  • Listing Source
  • MLS Number
    2442402
  • Listing Broker
    Teri Chanturiya
  • Listing Office
    Armada Homes Real Estate LLC
Monthly Payment Estimate
  • Principal and Interest
    $12,581 / month
  • Property Taxes
    $211 / month
  • Homeowners Insurance
    $453 / month
  • TOTAL
    $13,245 / month

  • based on 20% down
    ($480,000)
  • and a
    6.85% Interest Rate
  • About:
    All calculations are estimates only and provided by Mainview LLC. Actual amounts will vary.
House Details
  • Sqft (Total)
    3,824 sqft
  • Sqft (Finished)
    3,824 sqft
  • Sqft (Unfinished)
    None
  • Property Type
    House
  • Sub Type
    2 Story
  • Bedrooms
    5 Bedrooms
  • Bathrooms
    4 Bathrooms
  • Lot
    6,273 sqft Lot
  • Lot Size Source
    King County
  • Lot #
    Unspecified
  • Project
    Unspecified
  • Total Stories
    2 stories
  • Basement
    None
  • Sqft Source
    Architectural Plans
Property Tax Info
  • 2025 Property Taxes
    $2,526 / year
  • No Senior Exemption
Public Parcel Data & Maps
Schools
  • School District
    Northshore
  • Elementary
    Unspecified
  • Middle
    Unspecified
  • High School
    Unspecified
HOA
  • HOA Dues
    Unspecified
  • Fees Assessed
    Unspecified
  • HOA Dues Include
    Unspecified
  • HOA Contact
    425-941-5211
  • Management Contact
Parking
  • Covered
    2-Car
  • Types
    Attached Garage
  • Has Garage
    Yes
  • Nbr of Assigned Spaces
    2
Construction
  • Year Built
    2026
  • New Construction
    Yes
  • Construction State
    Unspecified
  • Home Builder
    2S Design Build
Cooling
  • Includes
    90%+ High Efficiency
    Central A/C
    Forced Air
    Heat Pump
Heating
  • Includes
    90%+ High Efficiency
Interior
Property
  • Lot Features
    Secluded
Appliances
Terms
  • 3rd Party Approval Required)
    No
  • Bank Owned (REO)
    No
  • Complex FHA Availability
    Unspecified
  • Potential Terms
    Cash Out
    Conventional
    See Remarks
    State Bond
    USDA Loan
    VA Loan
Utilities
  • Energy
    Electric
    Natural Gas
  • Sewer
    Sewer Connected
  • Water Source
    Public
Additional Info
  • Waterfront
    No
  • Air Conditioning (A/C)
    Yes
  • Buyer Broker's Compensation
    2.5%
  • MLS Area #
    Area 600
  • Number of Photos
    8
  • Last Modification Time
    Wednesday, October 8, 2025 5:04 AM
  • System Listing ID
    5490363
Update Info
  • First For Sale
    2025-10-07 14:42:32
Listing details based on information submitted to the MLS GRID as of Wednesday, October 8, 2025 5:04 AM. All data is obtained from various sources and may not have been verified by broker or MLS GRID. Supplied Open House Information is subject to change without notice. All information should be independently reviewed and verified for accuracy. Properties may or may not be listed by the office/agent presenting the information.
View
Sort

Sharing

 
For Sale 3 Days Online
$2,400,000  
5 BR    4 BA    3,824 SQFT  
Offer Review: Anytime
NWMLS #2442402. Teri Chanturiya, Armada Homes Real Estate LLC
Map
 
Listing information is provided by the listing agent except as follows: BuilderB indicates that our system has grouped this listing under a home builder name that doesn't match the name provided by the listing broker. DevelopmentD indicates that our system has grouped this listing under a development name that doesn't match the name provided by the listing broker.