to
Reset
Houses
Townhouses
Condos
Land
Price
to
SQFT
to
Bdrms
to
Baths
to
Lot
to
Yr Built
to
Sold
Listed within...
Listed at least...
Offer Review
New Construction
Waterfront
Short-Sales
REO
Parking
to
Unit Flr
to
Unit Nbr
Listings
Neighborhoods
Complexes
Developments
Cities
Counties
Zip Codes
Neighborhood · Condo · Development
School District
Zip Code
City
County
Builder
Listing Numbers
Broker LAG
Boundary Lines
Labels
View
Sort
Pending Inspection Went pending in 4 days
$735,000
4 Bedrooms
2 Bathrooms
2,720 Sqft House (1,710 Finished)
Built 1923
8,450 Sqft Lot
1-Car Garage
PENDING SALE. This listing went Pending Inspection on October 11, 2025

Some pending sales don't become final. Contact Us if this property is really important to you so we can check on it right now. The seller has reached an agreement with a buyer to sell this property. If things go as planned, the sale will become final in the near future. The buyer and seller have agreed on a price but it's not public until the sale closes. The last published list price was $735,000.
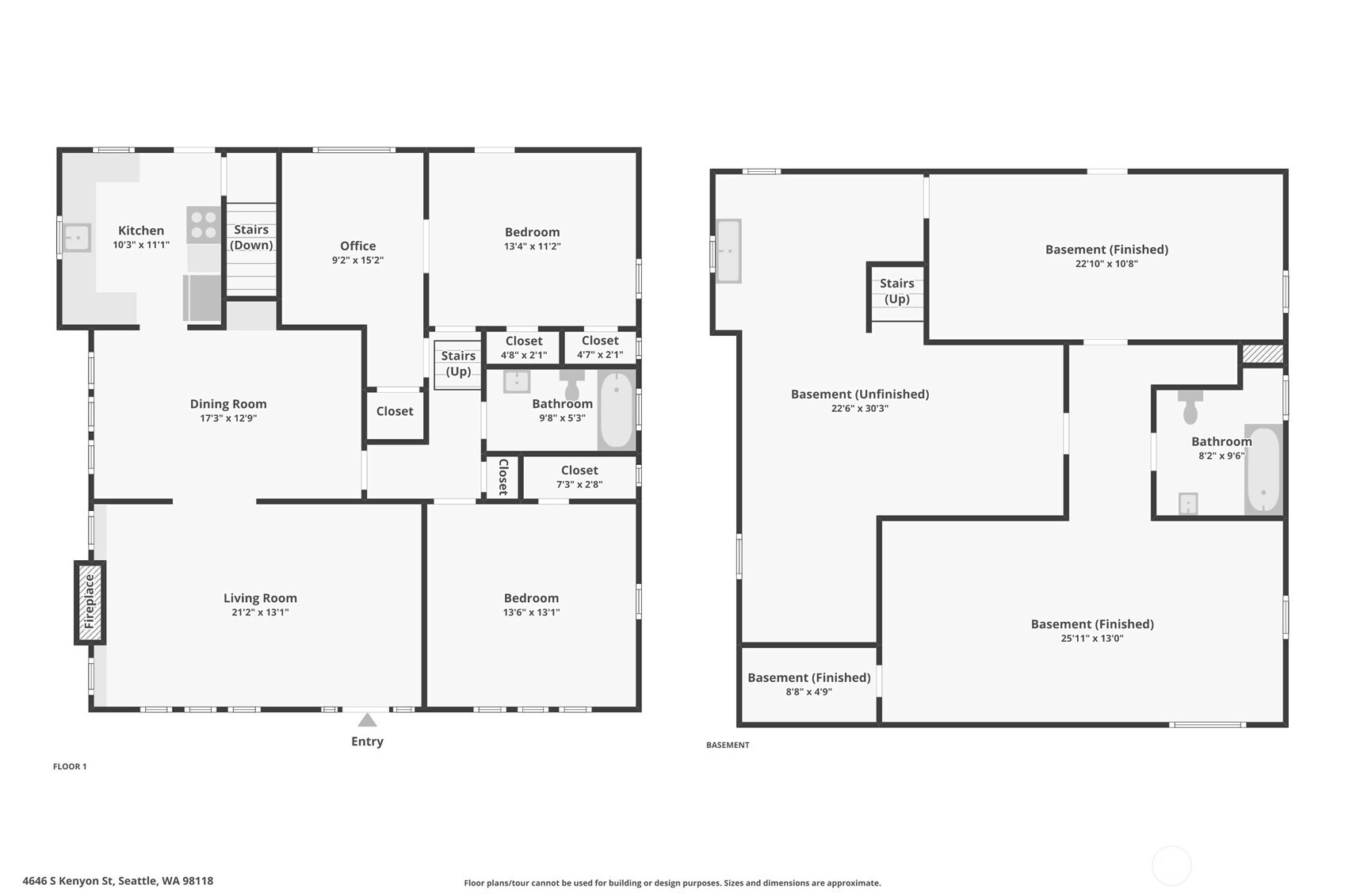
Meticulously restored craftsman blends timeless character w/ modern comfort. Owners uncovered the original wood siding & restored front windows & columns. Hardwood floors & built-ins surround the wood-burning f/p. Updated kitchen with newer appliances & slab counters. Large formal dining room perfect for entertaining. 3 beds on the main level + several large non-conforming rooms in the basement. Sprawling backyard oasis ideal for gardening & play. Basement offers tons of flex space including bath w/clawfoot tub, nonconforming bed & tons of storage. EV ready 1 car garage + extra off-street parking. Newer heat pump w/ A/C & brand new solar panels offset up to 98% of electric costs! Expansion potential in large attic or DADU in backyard?
Offer Review
No offer review date was specified
Listing source NWMLS MLS #
2441443
Listed by
Stacey A. Brower, KW Greater Seattle
Kendra Todd, KW Greater Seattle
Contact our
Brighton
Real Estate Lead
John L. Scott
Phone...
Bedroom & Bathroom Layout
MAIN
BDRM
BDRM
BDRM
FULL
BATH
LOWER
BDRM
FULL
BATH
Property History
Oct 11, 2025
Went Pending Inspection
$735,000
NWMLS #2441443
Oct 07, 2025
Listed
$735,000
NWMLS #2441443
Sep 27, 2020
Sold
$607,000
More
Listing Details
  • Status
    Pending Inspection
  • Last Listed Price
    $735,000
  • Original Price
    Same as current
  • List Date
    October 7, 2025
  • Last Status Change
    October 12, 2025
  • Last Update
    October 12, 2025
  • Days on Market
    6 Days
  • Cumulative DOM
    4 Days
  • Pending Date
    October 11, 2025
  • Days to go Pending
    4
  • $/sqft (Total)
    $270/sqft
  • $/sqft (Finished)
    $430/sqft
  • Listing Source
  • MLS Number
    2441443
  • Listing Broker
    Stacey A. Brower
  • Listing Office
    KW Greater Seattle
Monthly Payment Estimate
  • Principal and Interest
    $3,853 / month
  • Property Taxes
    $504 / month
  • Homeowners Insurance
    $147 / month
  • TOTAL
    $4,504 / month

  • based on 20% down
    ($147,000)
  • and a
    6.85% Interest Rate
  • About:
    All calculations are estimates only and provided by Mainview LLC. Actual amounts will vary.
House Details
  • Sqft (Total)
    2,720 sqft
  • Sqft (Finished)
    1,710 sqft
  • Sqft (Unfinished)
    1,010 sqft
  • Property Type
    House
  • Sub Type
    1 Story + Basement
  • Bedrooms
    4 Bedrooms
  • Bathrooms
    2 Bathrooms
  • Lot
    8,450 sqft Lot
  • Lot Size Source
    Realist
  • Lot #
    22
  • Project
    Cedar Grove Add
  • Total Stories
    2 stories
  • Basement
    Partially Finished
  • Sqft Source
    Realist
Property Tax Info
  • 2025 Property Taxes
    $6,042 / year
  • No Senior Exemption
Public Parcel Data & Maps
Schools
  • School District
    Seattle
  • Elementary
    Dunlap
  • Middle
    Aki Kurose
  • High School
    Rainier Beach High
HOA
  • HOA Dues
    Unspecified
  • Fees Assessed
    Unspecified
  • HOA Dues Include
    Unspecified
  • HOA Contact
    Unspecified
  • Management Contact
Parking
  • Covered
    1-Car
  • Types
    Driveway
    Detached Garage
    RV Parking
  • Has Garage
    Yes
  • Nbr of Assigned Spaces
    1
Views
  • Territorial
Construction
  • Year Built
    1923
  • Home Builder
    Unspecified
Cooling
  • Includes
    Forced Air
    Heat Pump
Heating
  • Includes
    Forced Air
    Heat Pump
Interior
  • Flooring
    Ceramic Tile
    Hardwood
    Vinyl
  • Features
    Dining Room
    Fireplace
    Water Heater
Property
  • Lot Features
    Paved
    Sidewalk
  • Site Features
    Cable TV
    Electric Car Charging
    Fenced-Partially
    Gas Available
    High Speed Internet
    Patio
    RV Parking
Appliances
  • Included
    Dishwasher(s)
    Microwave(s)
    Refrigerator(s)
    Stove(s)/Range(s)
Terms
  • 3rd Party Approval Required)
    No
  • Bank Owned (REO)
    No
  • Complex FHA Availability
    Unspecified
  • Potential Terms
    Cash Out
    Conventional
    FHA
    VA Loan
Utilities
  • Energy
    Electric
    Natural Gas
    Solar (Unspecified)
  • Sewer
    Sewer Connected
  • Water Source
    Public
Additional Info
  • Waterfront
    No
  • Air Conditioning (A/C)
    Yes
  • Buyer Broker's Compensation
    2.5%
  • MLS Area #
    Area 380
  • Number of Photos
    40
  • Last Modification Time
    Saturday, October 11, 2025 5:14 PM
  • System Listing ID
    5490407
Update Info
  • Pending Or Ctg
    2025-10-11 17:22:16
  • First For Sale
    2025-10-07 16:56:19
Listing details based on information submitted to the MLS GRID as of Saturday, October 11, 2025 5:14 PM. All data is obtained from various sources and may not have been verified by broker or MLS GRID. Supplied Open House Information is subject to change without notice. All information should be independently reviewed and verified for accuracy. Properties may or may not be listed by the office/agent presenting the information.
View
Sort

Sharing

 
Pending Inspection October 11, 2025
$735,000  
4 BR    2 BA    2,720 SQFT  
NWMLS #2441443. Stacey A. Brower, KW Greater Seattle
Map
 
Listing information is provided by the listing agent except as follows: BuilderB indicates that our system has grouped this listing under a home builder name that doesn't match the name provided by the listing broker. DevelopmentD indicates that our system has grouped this listing under a development name that doesn't match the name provided by the listing broker.