to
Reset
Houses
Townhouses
Condos
Land
Price
to
SQFT
to
Bdrms
to
Baths
to
Lot
to
Yr Built
to
Sold
Listed within...
Listed at least...
Offer Review
New Construction
Waterfront
Short-Sales
REO
Parking
to
Unit Flr
to
Unit Nbr
Listings
Neighborhoods
Complexes
Developments
Cities
Counties
Zip Codes
Neighborhood · Condo · Development
School District
Zip Code
City
County
Builder
Listing Numbers
Broker LAG
Boundary Lines
Labels
View
Sort
Sold Closed December 19, 2025
$855,000
Originally $899,000
3 Bedrooms
2.25 Bathrooms
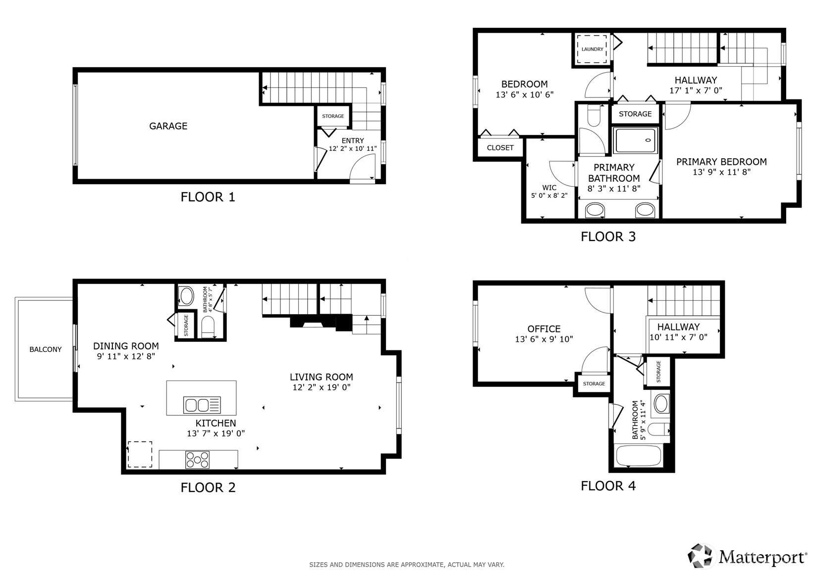
1,707 Sqft Townhome
Built 2012
997 Sqft Lot
2-Car Garage
HOA Dues $345 / month
SALE HISTORY
List price was $899,000
The price was later changed to $859,000.
It took 46 days to go pending.
Then 26 days to close at $855,000
Closed at $501/SQFT.
Discover the best of West Highlands Park in Issaquah Highlands, a premier community close to parks, trails, restaurants, Park & Ride, theater & so much more. This spacious townhome features large windows that provide warm natural light. The main level features a great room w/hardwood floors, gas fireplace, open concept kitchen & SS appliances. Upstairs leads you to 2 bedrooms, including the primary suite that has vaulted ceilings & a spacious ensuite bath w/duel vanities & w/in shower & walk-in closet. The top floor boasts an amazing guest suite/flex space that can be used as a bedroom, playroom or office, plus full bath. Garage is two bay. Low HOA dues. No Rental Cap. Award winning Issaquah schools, this is one home you don't want to miss.
Offer Review
No offer review date was specified
Listing source NWMLS MLS #
2433694
Listed by
Moises E. Juarez, Redfin
Buyer's broker
Phi Bui, Tran Property Group
Contact our
Issaquah
Real Estate Lead
John L. Scott
Phone...
Time Adjusted Estimated Value
County Wide
  • In
    King County WA
  • prices for
    Townhomes
  • have changed
    9%
  • since
    Dec 19, 2025
  • so a sale price of
    $855,000
  • would be approximately this amount today
    $931,950
Assumptions: The original sale amount reflected a normal arms length sale. Any major updates would add to the value. Any damage or deferred maintenance would subtract from the value.
Bedroom & Bathroom Layout
SECOND
BDRM
BDRM
BDRM
FULL
BATH
¾
BATH
MAIN
½
BATH
Property History
Dec 19, 2025
Sold
$855,000
NWMLS #2433694 Annualized 3.9% / yr
Nov 23, 2025
Went Pending
$859,000
NWMLS #2433694
Nov 12, 2025
Price Reduction arrow_downward
$859,000
NWMLS #2433694
Oct 21, 2025
Price Reduction arrow_downward
$875,000
NWMLS #2433694
Oct 08, 2025
Listed
$899,000
NWMLS #2433694
Aug 31, 2017
Sold
$620,000
NWMLS #1145397 Annualized 12.5% / yr
Dec 14, 2014
Sold
$450,000
More
Listing Details
  • Sale Price
    $855,000
  • Closing Date
    December 19, 2025
  • Last List Price
    $859,000
  • Original Price
    $899,000
  • List Date
    October 8, 2025
  • Pending Date
    November 23, 2025
  • Days to go Pending
    46 days
  • $/sqft (Total)
    $501/sqft
  • $/sqft (Finished)
    $501/sqft
  • Listing Source
  • MLS Number
    2433694
  • Listing Broker
    Moises E. Juarez
  • Listing Office
    Redfin
  • Buyer's Broker
    Phi Bui
  • Buyer Broker's Firm
    Tran Property Group
Monthly Payment Estimate
  • Principal and Interest
    $4,482 / month
  • HOA
    $345 / month
  • Property Taxes
    $531 / month
  • Homeowners Insurance
    $169 / month
  • TOTAL
    $5,527 / month

  • based on 20% down
    ($171,000)
  • and a
    6.85% Interest Rate
  • About:
    All calculations are estimates only and provided by Mainview LLC. Actual amounts will vary.
Townhouse Details
  • Unit Floor
    Unspecified
  • Sqft (Total)
    1,707 sqft
  • Sqft (Finished)
    1,707 sqft
  • Sqft (Unfinished)
    None
  • Property Type
    Townhome
  • Sub Type
    Townhouse
  • Bedrooms
    3 Bedrooms
  • Bathrooms
    2.25 Bathrooms
  • Lot
    997 sqft Lot
  • Lot Size Source
    Realist - Buyer to Verify
  • Lot #
    Unspecified
  • Project
    West Highlands Park
  • Total Stories
    Unspecified
  • Basement
    None
  • Sqft Source
    Realist - Buyer to Verify
Property Tax Info
  • 2025 Property Taxes
    $6,374 / year
  • No Senior Exemption
Public Parcel Data & Maps
Schools
  • School District
    Issaquah
  • Elementary
    Buyer To Verify
  • Middle
    Buyer To Verify
  • High School
    Buyer To Verify
HOA
  • HOA Dues
    $345 / month
  • Fees Assessed
    Monthly
  • HOA Dues Include
    Common Area Maintenance
    See Remarks
  • HOA Contact
    Unspecified
  • Management Contact
    Unspecified
Community Features
  • Community Features
    CCRs
Building
  • Name
    West Highlands Park
  • Units in Complex
    Unspecified
  • Units in Building
    Unspecified
  • Stories in Building
    Unspecified
Parking
  • Covered
    2-Car
  • Types
    Attached Garage
  • Has Garage
    Yes
  • Nbr of Assigned Spaces
    2
Views
  • Mountain(s)
    Territorial
Construction
  • Year Built
    2012
  • Home Builder
    Unspecified
Cooling
  • Includes
    None
Heating
  • Includes
    Forced Air
    High Efficiency (Unspecified)
Interior
  • Flooring
    Ceramic Tile
    Hardwood
    Carpet
  • Features
    Bath Off Primary
    Double Pane/Storm Window
    Fireplace
    Walk-In Closet(s)
    Water Heater
Property
  • Lot Features
    Alley
    Curbs
    Open Space
    Paved
    Sidewalk
  • Site Features
    Cable TV
    High Speed Internet
    Patio
Appliances
  • Included
    Dishwasher(s)
    Disposal
    Dryer(s)
    Microwave(s)
    Refrigerator(s)
    Stove(s)/Range(s)
    Washer(s)
Terms
  • Bank Owned (REO)
    No
Utilities
  • Energy
    Electric
    Natural Gas
  • Sewer
    Sewer Connected
  • Water Source
    Public
Additional Info
  • Waterfront
    No
  • Air Conditioning (A/C)
    No
  • Buyer Broker's Compensation
    2.5%
  • MLS Area #
    Area 540
  • Number of Photos
    28
  • Last Modification Time
    Monday, January 19, 2026 4:01 AM
  • System Listing ID
    5490642
Update Info
  • Closed
    2025-12-19 16:24:39
  • Pending Or Ctg
    2025-11-23 17:09:26
  • Price Reduction
    2025-11-12 14:03:03
  • First For Sale
    2025-10-08 13:10:29
Listing details based on information submitted to the MLS GRID as of Monday, January 19, 2026 4:01 AM. All data is obtained from various sources and may not have been verified by broker or MLS GRID. Supplied Open House Information is subject to change without notice. All information should be independently reviewed and verified for accuracy. Properties may or may not be listed by the office/agent presenting the information.
View
Sort

Sharing

 
Sold December 19, 2025
$855,000   $859,000
3 BR    2.25 BA    1,707 SQFT  
NWMLS #2433694. Moises E. Juarez, Redfin
Map
 
Listing information is provided by the listing agent except as follows: BuilderB indicates that our system has grouped this listing under a home builder name that doesn't match the name provided by the listing broker. DevelopmentD indicates that our system has grouped this listing under a development name that doesn't match the name provided by the listing broker.