to
Reset
Houses
Townhouses
Condos
Land
Price
to
SQFT
to
Bdrms
to
Baths
to
Lot
to
Yr Built
to
Sold
Listed within...
Listed at least...
Offer Review
New Construction
Waterfront
Short-Sales
REO
Parking
to
Unit Flr
to
Unit Nbr
Listings
Neighborhoods
Complexes
Developments
Cities
Counties
Zip Codes
Neighborhood · Condo · Development
School District
Zip Code
City
County
Builder
Listing Numbers
Broker LAG
Boundary Lines
Labels
View
Sort
For Sale 2 Days Online
$998,000
3 Bedrooms
2.25 Bathrooms
1,615 Sqft Townhome
New Construction
Built 2025
1,192 Sqft Lot
No Garage
New Modern Wallingford Home with the best Quality & Walking availability ever ! Just steps to Light rail, restaurant's, Coffee, & more. Home features High ceilings & hardwood floors throughout, Rear entry mud room, large windows for Natural light, Elegant powder room, Gourmet kitchen with Custom cabinets, High end Fisher & Paykel stainless appliances, Large eating bar, Custom tile back splash & quartz counters, 2 lower bedrooms or office, 3rd floor with spacious Master & Elegant tile shower, Spacious closets, large walk in laundry, AC mini splits for AC/heat, Large roof deck facing SE with City, Mtn & territorial views for entertaining & gardening. Off street parking.
Offer Review
Will review offers when submitted
Builder
Solo 51 llc
Listing source NWMLS MLS #
2442224
Listed by
Barrick Benson, Windermere Real Estate Co.
Linda Phan, Windermere Real Estate Co.
Contact our
Wallingford
Real Estate Lead
John L. Scott
Phone...
Bedroom & Bathroom Layout
SECOND
BDRM
¾
BATH
MAIN
½
BATH
LOWER
BDRM
BDRM
FULL
BATH
Property History
Oct 10, 2025
Listed
$998,000
NWMLS #2442224
More
Listing Details
  • Status
    For Sale
  • Price
    $998,000
  • Original Price
    Same as current
  • List Date
    October 10, 2025
  • Last Status Change
    October 10, 2025
  • Last Update
    October 12, 2025
  • Days on Market
    2 Days
  • Cumulative DOM
    3 Days
  • $/sqft (Total)
    $618/sqft
  • $/sqft (Finished)
    $618/sqft
  • Listing Source
  • MLS Number
    2442224
  • Listing Broker
    Barrick Benson
  • Listing Office
    Windermere Real Estate Co.
Monthly Payment Estimate
  • Principal and Interest
    $5,232 / month
  • Property Taxes
    / month
  • Homeowners Insurance
    $195 / month
  • TOTAL
    $5,427 / month

  • based on 20% down
    ($199,600)
  • and a
    6.85% Interest Rate
  • About:
    All calculations are estimates only and provided by Mainview LLC. Actual amounts will vary.
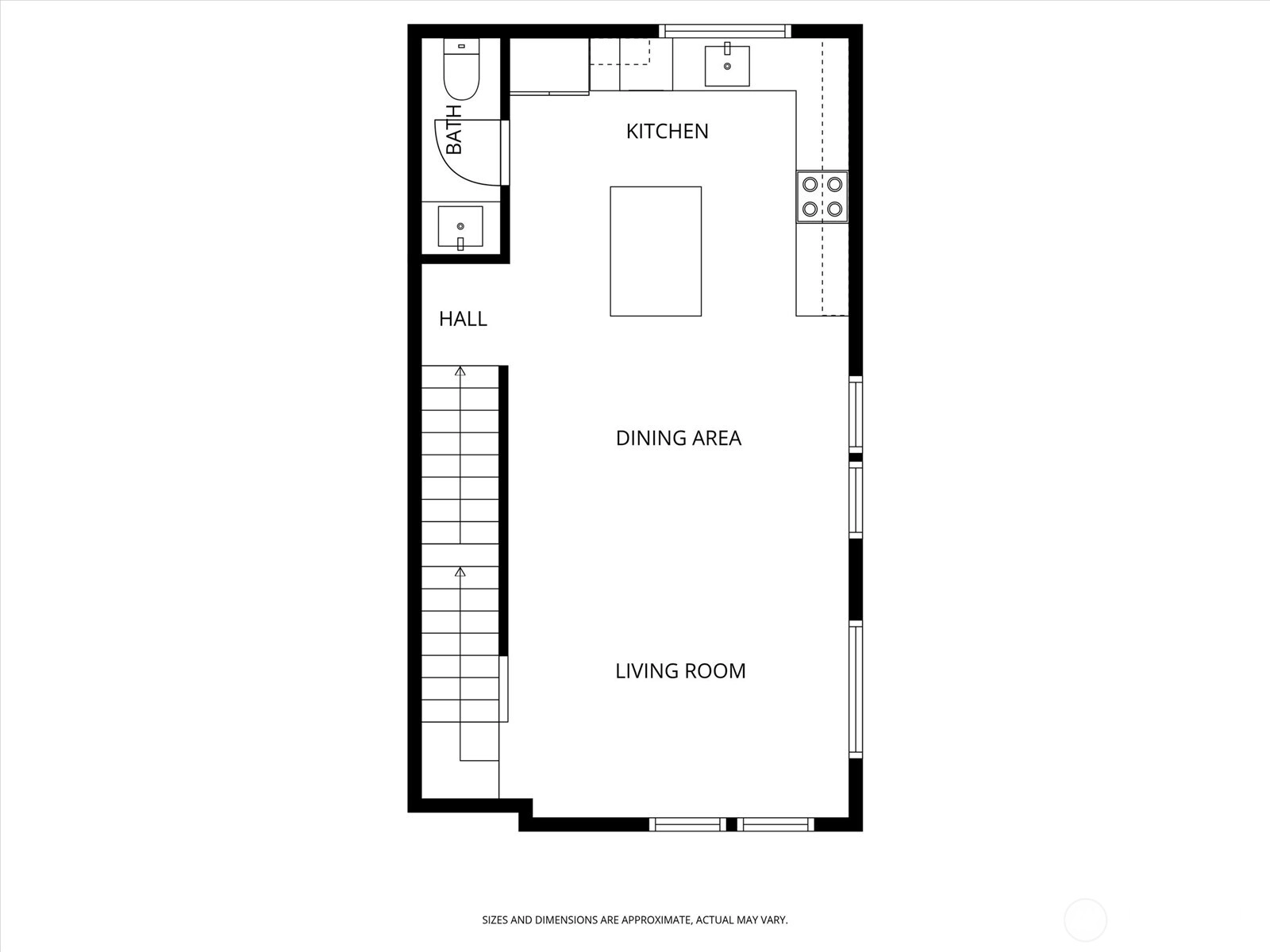
Townhouse Details
  • Unit Floor
    Unspecified
  • Sqft (Total)
    1,615 sqft
  • Sqft (Finished)
    1,615 sqft
  • Sqft (Unfinished)
    None
  • Property Type
    Townhome
  • Sub Type
    Townhouse
  • Bedrooms
    3 Bedrooms
  • Bathrooms
    2.25 Bathrooms
  • Lot
    1,192 sqft Lot
  • Lot Size Source
    survey
  • Lot #
    B
  • Project
    Unspecified
  • Total Stories
    Unspecified
  • Basement
    None
  • Sqft Source
    plans
Property Tax Info
  • Property Taxes
    Unspecified
  • Yes Senior Exemption
Public Parcel Data & Maps
Schools
  • School District
    Seattle
  • Elementary
    John Stanford Intl
  • Middle
    Hamilton Mid
  • High School
    Lincoln High
HOA
  • HOA Dues
    Unspecified
  • Fees Assessed
    Unspecified
  • HOA Dues Include
    Unspecified
  • HOA Contact
    Unspecified
  • Management Contact
Community Features
  • Community Features
    CCRs
Building
  • Name
    Unspecified
  • Units in Complex
    Unspecified
  • Units in Building
    Unspecified
  • Stories in Building
    Unspecified
Parking
  • Covered
    Unspecified
  • Types
    None
  • Has Garage
    No
Views
  • City
    Mountain(s)
    Territorial
Construction
  • Year Built
    2025
  • New Construction
    Yes
  • Construction State
    Unspecified
  • Home Builder
    Solo 51 llc
Cooling
  • Includes
    Ductless
    Forced Air
Heating
  • Includes
    Ductless
    Forced Air
Interior
  • Flooring
    Ceramic Tile
    Hardwood
  • Features
    Bath Off Primary
    Double Pane/Storm Window
    Dining Room
    Vaulted Ceiling(s)
    Water Heater
Property
  • Lot Features
    Paved
    Sidewalk
  • Site Features
    Cable TV
    Fenced-Partially
    High Speed Internet
    Rooftop Deck
Appliances
  • Included
    Dishwasher(s)
    Disposal
    Microwave(s)
    Refrigerator(s)
    Stove(s)/Range(s)
Terms
  • 3rd Party Approval Required)
    No
  • Bank Owned (REO)
    No
  • Complex FHA Availability
    Unspecified
  • Potential Terms
    Cash Out
    Conventional
    FHA
Utilities
  • Energy
    Electric
  • Sewer
    Sewer Connected
  • Water Source
    Public
Additional Info
  • Waterfront
    No
  • Air Conditioning (A/C)
    Yes
  • Buyer Broker's Compensation
    2.5%
  • MLS Area #
    Area 705
  • Number of Photos
    37
  • Last Modification Time
    Sunday, October 12, 2025 10:23 AM
  • System Listing ID
    5491565
Update Info
  • First For Sale
    2025-10-10 09:51:44
Listing details based on information submitted to the MLS GRID as of Sunday, October 12, 2025 10:23 AM. All data is obtained from various sources and may not have been verified by broker or MLS GRID. Supplied Open House Information is subject to change without notice. All information should be independently reviewed and verified for accuracy. Properties may or may not be listed by the office/agent presenting the information.
View
Sort

Sharing

 
For Sale 2 Days Online
$998,000  
3 BR    2.25 BA    1,615 SQFT  
Offer Review: Anytime
NWMLS #2442224. Barrick Benson, Windermere Real Estate Co.
Map
 
Listing information is provided by the listing agent except as follows: BuilderB indicates that our system has grouped this listing under a home builder name that doesn't match the name provided by the listing broker. DevelopmentD indicates that our system has grouped this listing under a development name that doesn't match the name provided by the listing broker.