to
Reset
Houses
Townhouses
Condos
Land
Price
to
SQFT
to
Bdrms
to
Baths
to
Lot
to
Yr Built
to
Sold
Listed within...
Listed at least...
Offer Review
New Construction
Waterfront
Short-Sales
REO
Parking
to
Unit Flr
to
Unit Nbr
Listings
Neighborhoods
Complexes
Developments
Cities
Counties
Zip Codes
Neighborhood · Condo · Development
School District
Zip Code
City
County
Builder
Listing Numbers
Broker LAG
Boundary Lines
Labels
View
Sort
Pending Went pending in 13 days
$699,900
3 Bedrooms
1.75 Bathrooms
1,550 Sqft Townhome
New Construction
Built 2025
689 Sqft Lot
No Garage
HOA Dues $47 / month
PENDING SALE. This listing went Pending on October 23, 2025

Some pending sales don't become final. Contact Us if this property is really important to you so we can check on it right now. The seller has reached an agreement with a buyer to sell this property. If things go as planned, the sale will become final in the near future. The buyer and seller have agreed on a price but it's not public until the sale closes. The last published list price was $699,900.
Rates start at 1.875%* Welcome to Elm built by Shelter Homes, tucked into the heart of Greenwood. This standout 3-bedroom PLUS den/office home spans 1677 sq ft & has a private EV-capable parking spot right outside the back door. blending modern style w/ natural warmth, the entry level features a large kitchen w/ generous utility island & spacious great room-creating a calm & welcoming atmosphere. The 2nd level offers two large bedrooms, a laundry room, & full bath. The third level is the primary suite w/ vaulted ceiling, spa bath w/ floor2ceiling windows, and an office/den (nursery? yoga room? studio?). Luxurious finishes; including quartz countertops, LVP throughout & efficient ductless mini-split systems. Don't miss this! *Terms Apply
Offer Review
No offer review date was specified
Builder
Project
Elm
Listing source NWMLS MLS #
2442723
Listed by
Kate Douglas, Windermere RE/Capitol Hill,Inc
Ian Porter, Windermere RE/Capitol Hill,Inc
Contact our
Greenwood
Real Estate Lead
John L. Scott
Phone...
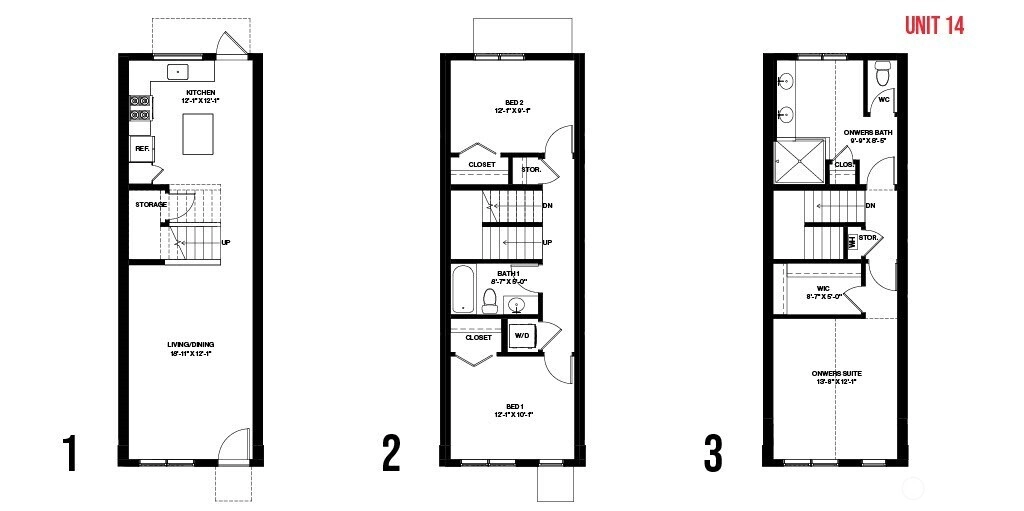
Bedroom & Bathroom Layout
SECOND
BDRM
BDRM
BDRM
FULL
BATH
¾
BATH
Property History
Oct 23, 2025
Went Pending
$699,900
NWMLS #2442723
Oct 23, 2025
Went Pending
$699,900
Oct 13, 2025
Listed
$699,900
Oct 10, 2025
Listed
$699,900
NWMLS #2442723
More
Listing Details
  • Status
    Pending
  • Last Listed Price
    $699,900
  • Original Price
    Same as current
  • List Date
    October 10, 2025
  • Last Status Change
    October 23, 2025
  • Last Update
    November 7, 2025
  • Days on Market
    42 Days
  • Cumulative DOM
    13 Days
  • Pending Date
    October 23, 2025
  • Days to go Pending
    13
  • $/sqft (Total)
    $452/sqft
  • $/sqft (Finished)
    $452/sqft
  • Listing Source
  • MLS Number
    2442723
  • Listing Broker
    Kate Douglas
  • Listing Office
    Windermere RE/Capitol Hill,Inc
Monthly Payment Estimate
  • Principal and Interest
    $3,669 / month
  • HOA
    $47 / month
  • Property Taxes
    $0 / month
  • Homeowners Insurance
    $141 / month
  • TOTAL
    $3,857 / month

  • based on 20% down
    ($139,980)
  • and a
    6.85% Interest Rate
  • About:
    All calculations are estimates only and provided by Mainview LLC. Actual amounts will vary.
Townhouse Details
  • Unit Floor
    Unspecified
  • Sqft (Total)
    1,550 sqft
  • Sqft (Finished)
    1,550 sqft
  • Sqft (Unfinished)
    None
  • Property Type
    Townhome
  • Sub Type
    Townhouse
  • Bedrooms
    3 Bedrooms
  • Bathrooms
    1.75 Bathrooms
  • Lot
    689 sqft Lot
  • Lot Size Source
    County Records
  • Lot #
    14
  • Project
    Elm
  • Total Stories
    Unspecified
  • Basement
    None
  • Sqft Source
    Builder Plan Set
Property Tax Info
  • 2025 Property Taxes
    $1 / year
  • No Senior Exemption
Public Parcel Data & Maps
Schools
  • School District
    Seattle
  • Elementary
    Viewlands
  • Middle
    Whitman Mid
  • High School
    Ingraham High
HOA
  • HOA Dues
    $47 / month
  • Fees Assessed
    Monthly
  • HOA Dues Include
    See Remarks
  • HOA Contact
    Elm HOA 206-486-9209
  • Management Contact
Building
  • Name
    Elm
  • Units in Complex
    Unspecified
  • Units in Building
    Unspecified
  • Stories in Building
    Unspecified
Parking
  • Covered
    Unspecified
  • Types
    Off Street
  • Has Garage
    No
Views
  • Mountain(s)
    Territorial
Construction
  • Year Built
    2025
  • New Construction
    Yes
  • Construction State
    Unspecified
  • Home Builder
    Shelter Homes
Cooling
  • Includes
    Ductless
Heating
  • Includes
    Ductless
    Wall Unit(s)
Interior
  • Flooring
    Ceramic Tile
    Laminate
    Carpet
  • Features
    Double Pane/Storm Window
    Dining Room
    High Tech Cabling
    Vaulted Ceiling(s)
    Walk-In Closet(s)
    Water Heater
Property
  • Lot Features
    Curbs
    Paved
    Sidewalk
Appliances
  • Included
    Dishwasher(s)
    Disposal
    Microwave(s)
    Refrigerator(s)
    Stove(s)/Range(s)
Terms
  • 3rd Party Approval Required)
    No
  • Bank Owned (REO)
    No
  • Complex FHA Availability
    Unspecified
  • Potential Terms
    Conventional
    FHA
Utilities
  • Energy
    Electric
  • Sewer
    Sewer Connected
  • Water Source
    Public
Additional Info
  • Waterfront
    No
  • Air Conditioning (A/C)
    Yes
  • Buyer Broker's Compensation
    3.0%
  • MLS Area #
    Area 705
  • Number of Photos
    18
  • Last Modification Time
    Thursday, November 6, 2025 6:36 PM
  • System Listing ID
    5491587
Update Info
  • Pending Or Ctg
    2025-10-23 13:27:03
  • First For Sale
    2025-10-10 10:17:48
Listing details based on information submitted to the MLS GRID as of Thursday, November 6, 2025 6:36 PM. All data is obtained from various sources and may not have been verified by broker or MLS GRID. Supplied Open House Information is subject to change without notice. All information should be independently reviewed and verified for accuracy. Properties may or may not be listed by the office/agent presenting the information.
View
Sort

Sharing

 
Pending October 23, 2025
$699,900  
3 BR    1.75 BA    1,550 SQFT  
NWMLS #2442723. Kate Douglas, Windermere RE/Capitol Hill,Inc
Map
 
Listing information is provided by the listing agent except as follows: BuilderB indicates that our system has grouped this listing under a home builder name that doesn't match the name provided by the listing broker. DevelopmentD indicates that our system has grouped this listing under a development name that doesn't match the name provided by the listing broker.