to
Reset
Houses
Townhouses
Condos
Land
Price
to
SQFT
to
Bdrms
to
Baths
to
Lot
to
Yr Built
to
Sold
Listed within...
Listed at least...
Offer Review
New Construction
Waterfront
Short-Sales
REO
Parking
to
Unit Flr
to
Unit Nbr
Listings
Neighborhoods
Complexes
Developments
Cities
Counties
Zip Codes
Neighborhood · Condo · Development
School District
Zip Code
City
County
Builder
Listing Numbers
Broker LAG
Boundary Lines
Labels
View
Sort
Pending Went pending in 7 days
$599,950
3 Bedrooms
2.5 Bathrooms
1,654 Sqft Condo
Unit 9
Floor 1
Built 2006
No assigned parking spaces
HOA Dues $38 / month
PENDING SALE. This listing went Pending on October 17, 2025

Some pending sales don't become final. Contact Us if this property is really important to you so we can check on it right now. The seller has reached an agreement with a buyer to sell this property. If things go as planned, the sale will become final in the near future. The buyer and seller have agreed on a price but it's not public until the sale closes. The last published list price was $599,950.
Welcome to Ashley Place, an established & conveniently located neighborhood in Lake Stickney! This charming, detached condo offers 3 generously sized bedrooms, 2.5 baths, & is move-in ready. Enjoy brand new carpet throughout, freshly cleaned windows & recently refreshed roofing, gutters, exterior & landscaping. The inviting gas fireplace adds warmth to the spacious main-floor living room, while the two-car garage has ample storage. Perfectly situated for commuters, you get quick + easy access to THREE Park & Rides (Ash Way, Mariner + McCollum Park), I-5 & I-405, along with nearby shopping, dining, parks, beaches, & lakes. It is just minutes from Boeing. An exceptional opportunity to own a home in Snohomish County for under $600K!
Offer Review
No offer review date was specified
Project
Ashley Place Condo
Listing source NWMLS MLS #
2440697
Listed by
Katie Hanchinamani, Windermere Real Estate GH LLC
Contact our
Everett
Real Estate Lead
Buck Real Estate
Phone...
Bedroom & Bathroom Layout
SECOND
BDRM
BDRM
BDRM
FULL
BATH
FULL
BATH
MAIN
½
BATH
Property History
Oct 18, 2025
Went Pending
$599,950
Oct 18, 2025
Went Pending
$599,950
NWMLS #2440697
Oct 10, 2025
Listed
$599,950
More
Listing Details
  • Status
    Pending
  • Last Listed Price
    $599,950
  • Original Price
    Same as current
  • List Date
    October 10, 2025
  • Last Status Change
    October 18, 2025
  • Last Update
    October 18, 2025
  • Days on Market
    37 Days
  • Cumulative DOM
    7 Days
  • Pending Date
    October 17, 2025
  • Days to go Pending
    7
  • $/sqft (Total)
    $363/sqft
  • $/sqft (Finished)
    $363/sqft
  • Listing Source
  • MLS Number
    2440697
  • Listing Broker
    Katie Hanchinamani
  • Listing Office
    Windermere Real Estate GH LLC
Monthly Payment Estimate
  • Principal and Interest
    $3,145 / month
  • HOA
    $38 / month
  • Property Taxes
    $436 / month
  • Homeowners Insurance
    $122 / month
  • TOTAL
    $3,741 / month

  • based on 20% down
    ($119,990)
  • and a
    6.85% Interest Rate
  • About:
    All calculations are estimates only and provided by Mainview LLC. Actual amounts will vary.
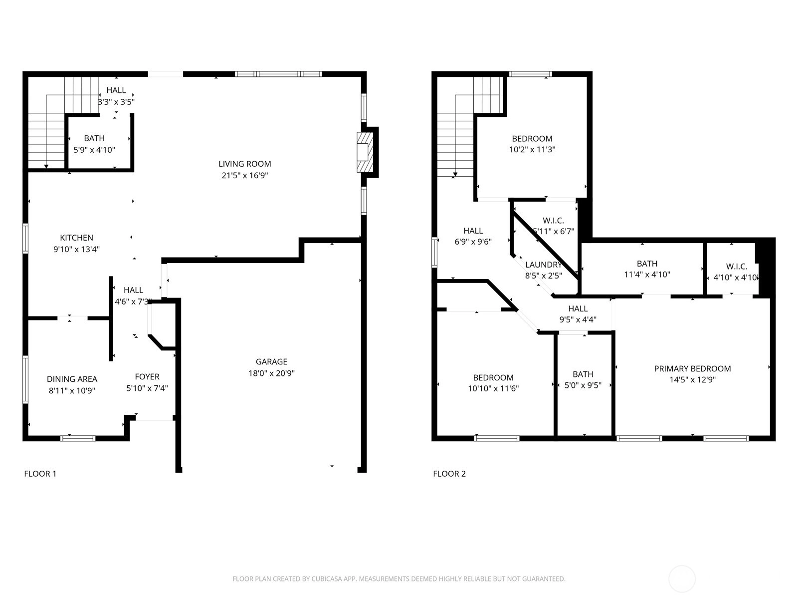
Condo Details
  • Unit #
    9
  • Unit Floor
    1
  • Sqft (Total)
    1,654 sqft
  • Sqft (Finished)
    Unspecified
  • Sqft (Unfinished)
    None
  • Property Type
    Condo
  • Sub Type
    Condo (2 Levels)
  • Bedrooms
    3 Bedrooms
  • Bathrooms
    2.5 Bathrooms
  • Lot
    3,000 sqft Lot
  • Lot Size Source
    Realist
  • Project
    Ashley Place Condo
  • Total Stories
    2 stories
  • Sqft Source
    Realist
Property Tax Info
  • 2025 Property Taxes
    $5,235 / year
  • No Senior Exemption
Public Parcel Data & Maps
Schools
  • School District
    Mukilteo
  • Elementary
    Buyer To Verify
  • Middle
    Buyer To Verify
  • High School
    Buyer To Verify
HOA
  • HOA Dues
    $38 / month
  • Fees Assessed
    Monthly
  • HOA Dues Include
    Common Area Maintenance
    Road Maintenance
    See Remarks
  • Pets Allowed
    See Remarks
    Subject to Restrictions
  • HOA Contact
    Zorna Hosea 425-939-0095
  • Management Contact
Building
  • Name
    Ashley Place Condo
  • Units in Complex
    56
  • Units in Building
    1
  • Stories in Building
    2
Parking
  • Covered
    2-Car
  • Types
    Individual Garage
  • Has Garage
    Yes
  • Nbr of Assigned Spaces
    Unspecified
  • Parking Space Info
    Unspecified
Views
  • Territorial
Construction
  • Year Built
    2006
  • Home Builder
    Unspecified
Cooling
  • Includes
    None
Heating
  • Includes
    Forced Air
Interior
  • Flooring
    Hardwood
    Vinyl
    Carpet
  • Features
    Fireplace
    Insulated Windows
    Primary Bathroom
    Walk-In Closet(s)
    Water Heater
Property
  • Lot Features
    Paved
Appliances
  • Included
    Dishwasher(s)
    Dryer(s)
    Microwave(s)
    Refrigerator(s)
    Stove(s)/Range(s)
    Washer(s)
Terms
  • 3rd Party Approval Required)
    No
  • Bank Owned (REO)
    No
  • Complex FHA Availability
    Unspecified
  • Potential Terms
    Cash Out
    Conventional
    VA Loan
Utilities
  • Energy
    Natural Gas
Additional Info
  • Waterfront
    No
  • Air Conditioning (A/C)
    No
  • Buyer Broker's Compensation
    3.0%
  • MLS Area #
    Area 740
  • Number of Photos
    39
  • Last Modification Time
    Saturday, October 18, 2025 9:25 AM
  • System Listing ID
    5491672
Update Info
  • Pending Or Ctg
    2025-10-18 09:39:56
  • First For Sale
    2025-10-10 11:58:00
Listing details based on information submitted to the MLS GRID as of Saturday, October 18, 2025 9:25 AM. All data is obtained from various sources and may not have been verified by broker or MLS GRID. Supplied Open House Information is subject to change without notice. All information should be independently reviewed and verified for accuracy. Properties may or may not be listed by the office/agent presenting the information.
View
Sort

Sharing

 
Pending October 17, 2025
$599,950  
3 BR    2.5 BA    1,654 SQFT  
NWMLS #2440697. Katie Hanchinamani, Windermere Real Estate GH LLC
Map
 
Listing information is provided by the listing agent except as follows: BuilderB indicates that our system has grouped this listing under a home builder name that doesn't match the name provided by the listing broker. DevelopmentD indicates that our system has grouped this listing under a development name that doesn't match the name provided by the listing broker.