to
Reset
Houses
Townhouses
Condos
Land
Price
to
SQFT
to
Bdrms
to
Baths
to
Lot
to
Yr Built
to
Sold
Listed within...
Listed at least...
Offer Review
New Construction
Waterfront
Short-Sales
REO
Parking
to
Unit Flr
to
Unit Nbr
Listings
Neighborhoods
Complexes
Developments
Cities
Counties
Zip Codes
Neighborhood · Condo · Development
School District
Zip Code
City
County
Builder
Listing Numbers
Broker LAG
Boundary Lines
Labels
View
Sort
▼ Recently Reduced $5K
For Sale 41 Days Online
$1,049,900
Originally $1,070,000
4 Bedrooms
3.25 Bathrooms
3,200 Sqft House
Built 2022
8,620 Sqft Lot
3-Car Garage
HOA Dues $58 / month
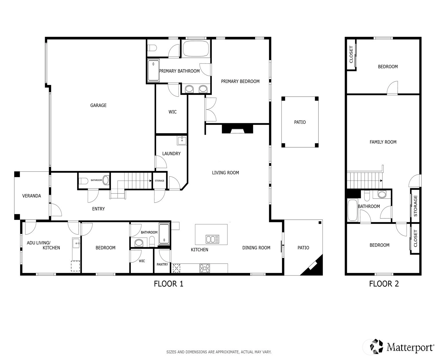
Stunning craftsman-style home offers main-level living w/ a spacious primary suite featuring a 5-pc bath & walk-in closet. The Willow floor plan at The Terrace at Twin Lakes by Pacific Lifestyle Homes is designed for comfort & versatility. Includes a multi-gen living space, open floorplan, LVP floors, & a gourmet kitchen w/ a huge island, stainless apps & walk-in pantry. Upstairs boasts an open loft area & 2 guest bedrooms, bath & a massive storage! Enjoy year-round outdoor living under the covered back patio w/ fireplace. Complete w/ central heat & A/C, 3-car garage, private driveway, & fully fenced yard. Close to shopping, trails & schools. A perfect blend of elegance, function & modern design!
Offer Review
Will review offers when submitted
Listing source NWMLS MLS #
2442045
Listed by
Andrew Maglalang-Weakley, Redfin
Contact our
Federal Way
Real Estate Lead
RE/MAX Northwest Realtors
Phone...
Bedroom & Bathroom Layout
SECOND
BDRM
BDRM
FULL
BATH
MAIN
BDRM
BDRM
FULL
BATH
¾
BATH
½
BATH
Property History
Nov 18, 2025
Price Reduction arrow_downward
$1,049,900
NWMLS #2442045
Oct 28, 2025
Price Reduction arrow_downward
$1,054,900
NWMLS #2442045
Oct 10, 2025
Listed
$1,070,000
NWMLS #2442045
More
Listing Details
  • Status
    For Sale
  • Price
    $1,049,900
  • Original Price
    $1,070,000
  • List Date
    October 10, 2025
  • Last Status Change
    October 10, 2025
  • Last Update
    November 18, 2025
  • Days on Market
    41 Days
  • Cumulative DOM
    41 Days
  • $/sqft (Total)
    $328/sqft
  • $/sqft (Finished)
    $328/sqft
  • Listing Source
  • MLS Number
    2442045
  • Listing Broker
    Andrew Maglalang-Weakley
  • Listing Office
    Redfin
Monthly Payment Estimate
  • Principal and Interest
    $5,504 / month
  • HOA
    $58 / month
  • Property Taxes
    $832 / month
  • Homeowners Insurance
    $205 / month
  • TOTAL
    $6,599 / month

  • based on 20% down
    ($209,980)
  • and a
    6.85% Interest Rate
  • About:
    All calculations are estimates only and provided by Mainview LLC. Actual amounts will vary.
House Details
  • Sqft (Total)
    3,200 sqft
  • Sqft (Finished)
    3,200 sqft
  • Sqft (Unfinished)
    None
  • Property Type
    House
  • Sub Type
    2 Story
  • Bedrooms
    4 Bedrooms
  • Bathrooms
    3.25 Bathrooms
  • Lot
    8,620 sqft Lot
  • Lot Size Source
    Realist - Buyer to Verify
  • Lot #
    Unspecified
  • Project
    Unspecified
  • Total Stories
    2 stories
  • Basement
    None
  • Sqft Source
    Realist - Buyer to Verify
Property Tax Info
  • 2025 Property Taxes
    $9,982 / year
  • No Senior Exemption
Public Parcel Data & Maps
Schools
  • School District
    Federal Way
  • Elementary
    Sherwood Forest Elem
  • Middle
    Illahee Jnr High
  • High School
    Todd Beamer High
HOA
  • HOA Dues
    $58 / month
  • Fees Assessed
    Annually
  • HOA Dues Include
    Common Area Maintenance
  • HOA Contact
    CM&M Property Mgmt 253-874-5250
  • Management Contact
Community Features
  • Community Features
    CCRs
    Trail(s)
Parking
  • Covered
    3-Car
  • Types
    Driveway
    Attached Garage
    Off Street
  • Has Garage
    Yes
  • Nbr of Assigned Spaces
    3
Views
  • Territorial
Construction
  • Year Built
    2022
  • Home Builder
    Unspecified
Cooling
  • Includes
    Central A/C
    Heat Pump
Heating
  • Includes
    90%+ High Efficiency
    Forced Air
    Heat Pump
Interior
  • Flooring
    Ceramic Tile
    Vinyl
    Carpet
  • Features
    Second Kitchen
    Second Primary Bedroom
    Bath Off Primary
    Double Pane/Storm Window
    Dining Room
    Fireplace
    High Tech Cabling
    Loft
    Security System
    SMART Wired
    Sprinkler System
    Walk-In Closet(s)
    Walk-In Pantry
    Water Heater
Property
  • Lot Features
    Cul-De-Sac
    Curbs
    Paved
    Sidewalk
  • Site Features
    Cabana/Gazebo
    Cable TV
    Electric Car Charging
    Fenced-Fully
    Gas Available
    High Speed Internet
    Patio
    Sprinkler System
Appliances
  • Included
    Dishwasher(s)
    Disposal
    Microwave(s)
    Refrigerator(s)
    Stove(s)/Range(s)
Terms
  • 3rd Party Approval Required)
    No
  • Bank Owned (REO)
    No
  • Complex FHA Availability
    Unspecified
  • Potential Terms
    Cash Out
    Conventional
    FHA
    VA Loan
Utilities
  • Energy
    Electric
    Natural Gas
  • Sewer
    Sewer Connected
  • Water Source
    Public
Additional Info
  • Waterfront
    No
  • Air Conditioning (A/C)
    Yes
  • Buyer Broker's Compensation
    2.5%
  • MLS Area #
    Area 110
  • Number of Photos
    40
  • Last Modification Time
    Tuesday, November 18, 2025 3:12 PM
  • System Listing ID
    5491729
Update Info
  • Price Reduction
    2025-11-18 15:06:34
  • First For Sale
    2025-10-10 13:19:45
Listing details based on information submitted to the MLS GRID as of Tuesday, November 18, 2025 3:12 PM. All data is obtained from various sources and may not have been verified by broker or MLS GRID. Supplied Open House Information is subject to change without notice. All information should be independently reviewed and verified for accuracy. Properties may or may not be listed by the office/agent presenting the information.
View
Sort

Sharing

 
For Sale 41 Days Online
$1,049,900     ▼ Price Reduction $5K
4 BR    3.25 BA    3,200 SQFT  
Offer Review: Anytime
NWMLS #2442045. Andrew Maglalang-Weakley, Redfin
Map
 
Listing information is provided by the listing agent except as follows: BuilderB indicates that our system has grouped this listing under a home builder name that doesn't match the name provided by the listing broker. DevelopmentD indicates that our system has grouped this listing under a development name that doesn't match the name provided by the listing broker.