to
Reset
Houses
Townhouses
Condos
Land
Price
to
SQFT
to
Bdrms
to
Baths
to
Lot
to
Yr Built
to
Sold
Listed within...
Listed at least...
Offer Review
New Construction
Waterfront
Short-Sales
REO
Parking
to
Unit Flr
to
Unit Nbr
Listings
Neighborhoods
Complexes
Developments
Cities
Counties
Zip Codes
Neighborhood · Condo · Development
School District
Zip Code
City
County
Builder
Listing Numbers
Broker LAG
Boundary Lines
Labels
View
Sort
Pending Went pending in 74 days
$599,950
Originally $625,000
4 Bedrooms
2.5 Bathrooms
2,481 Sqft House
Built 1989
8,712 Sqft Lot
3-Car Garage
PENDING SALE. This listing went Pending on December 28, 2025

Some pending sales don't become final. Contact Us if this property is really important to you so we can check on it right now. The seller has reached an agreement with a buyer to sell this property. If things go as planned, the sale will become final in the near future. The buyer and seller have agreed on a price but it's not public until the sale closes. The last published list price was $599,950.
Appraised in September at $650,000, this spacious 4bdrm, 2.5bth home is an amazing value! This Ridgetop home offers light-filled living spaces w/vaulted ceilings, skylights, & expansive windows to capture the lovely Olympic Mountain views. Inviting layout features both a formal dining room, sunny eat-in kitchen, living room, & a family room w/gas FP. The primary suite is a retreat w/5-piece bath & walk-in closet. Freshly painted inside & out, with roomy 3-car garage & fully fenced backyard ready for garden, pets or play! Just 5 min to downtown Silverdale, Costco, shopping, dining, hospital, w/quick highway access— between Naval Base Kitsap & Bangor. CK schools: A wonderful lifestyle + a great value for the size of home! Tons of parking!
Offer Review
No offer review date was specified
Listing source NWMLS MLS #
2438997
Listed by
Summer G. Davy, Windermere RE West Sound Inc.
Steve Derrig, Windermere RE West Sound Inc.
Contact our
Silverdale
Real Estate Lead
My Kitsap Homes, LLC
Phone...
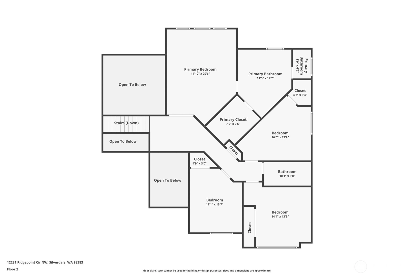
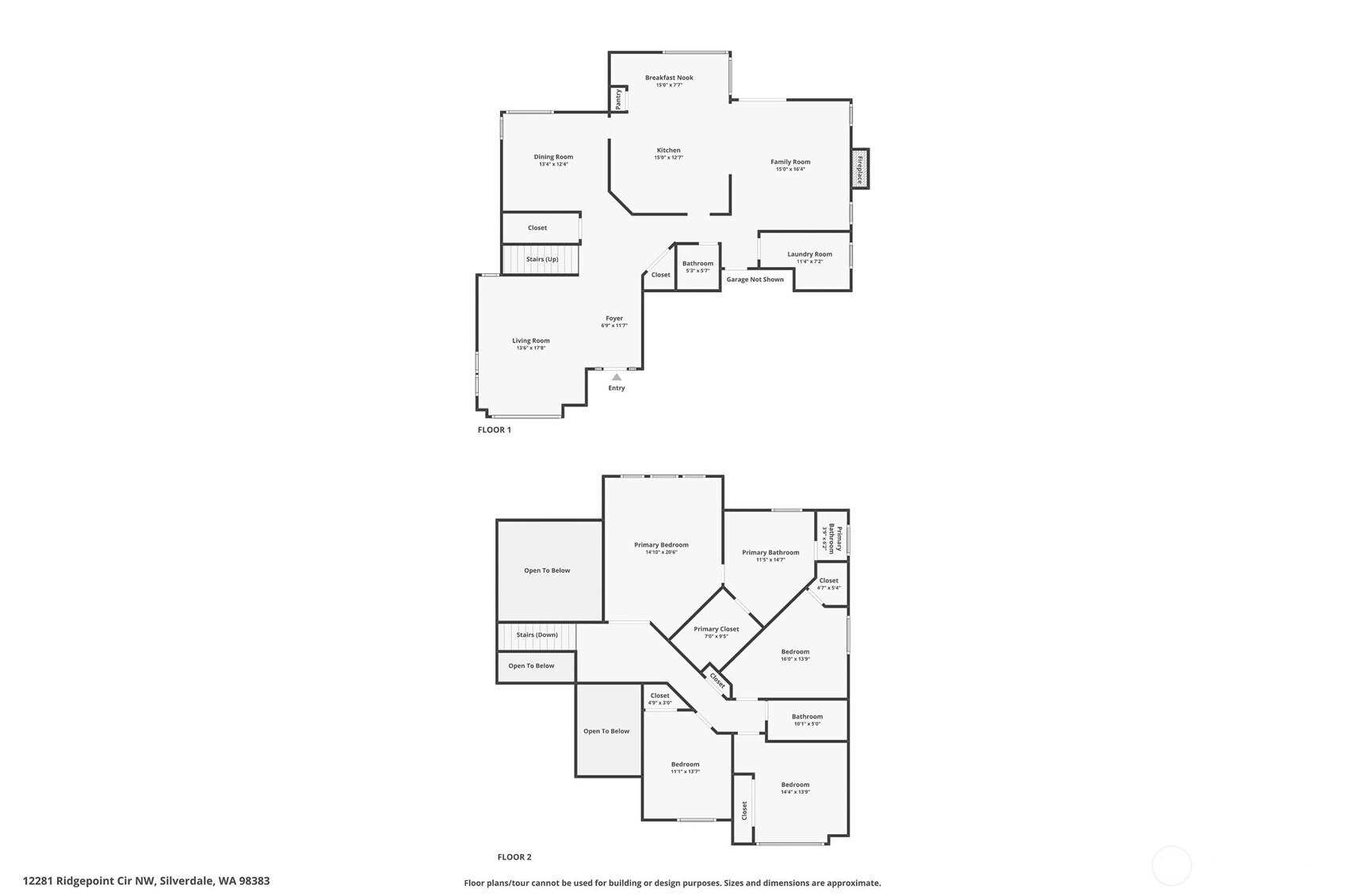
Bedroom & Bathroom Layout
SECOND
BDRM
BDRM
BDRM
BDRM
FULL
BATH
FULL
BATH
MAIN
½
BATH
Property History
Dec 29, 2025
Went Pending
$599,950
NWMLS #2438997
Dec 18, 2025
Price Reduction arrow_downward
$599,950
NWMLS #2438997
Nov 18, 2025
Price Reduction arrow_downward
$615,000
NWMLS #2438997
Oct 15, 2025
Listed
$625,000
NWMLS #2438997
Sep 16, 2025
Back on Market
$681,000
NWMLS #2384244
Sep 03, 2025
Went Pending Inspection
$681,000
NWMLS #2384244
Aug 12, 2025
Price Reduction arrow_downward
$681,000
NWMLS #2384244
Jun 19, 2025
Price Reduction arrow_downward
$682,000
NWMLS #2384244
May 29, 2025
Listed
$698,000
NWMLS #2384244
Dec 30, 2015
Sold
$360,000
More
Listing Details
  • Status
    Pending
  • Last Listed Price
    $599,950
  • Original Price
    $625,000
  • List Date
    October 15, 2025
  • Last Status Change
    December 29, 2025
  • Last Update
    December 29, 2025
  • Days on Market
    89 Days
  • Cumulative DOM
    74 Days
  • Pending Date
    December 28, 2025
  • Days to go Pending
    74
  • $/sqft (Total)
    $242/sqft
  • $/sqft (Finished)
    $242/sqft
  • Listing Source
  • MLS Number
    2438997
  • Listing Broker
    Summer G. Davy
  • Listing Office
    Windermere RE West Sound Inc.
Monthly Payment Estimate
  • Principal and Interest
    $3,145 / month
  • Property Taxes
    $473 / month
  • Homeowners Insurance
    $122 / month
  • TOTAL
    $3,740 / month

  • based on 20% down
    ($119,990)
  • and a
    6.85% Interest Rate
  • About:
    All calculations are estimates only and provided by Mainview LLC. Actual amounts will vary.
House Details
  • Sqft (Total)
    2,481 sqft
  • Sqft (Finished)
    2,481 sqft
  • Sqft (Unfinished)
    None
  • Property Type
    House
  • Sub Type
    2 Story
  • Bedrooms
    4 Bedrooms
  • Bathrooms
    2.5 Bathrooms
  • Lot
    8,712 sqft Lot
  • Lot Size Source
    county
  • Lot #
    Unspecified
  • Project
    RIDGE POINTE WEST
  • Total Stories
    2 stories
  • Basement
    None
  • Sqft Source
    county
Property Tax Info
  • 2025 Property Taxes
    $5,672 / year
  • No Senior Exemption
Public Parcel Data & Maps
Schools
  • School District
    Central Kitsap #401
  • Elementary
    Emerald Heights Elem
  • Middle
    Ridgetop Middle
  • High School
    Central Kitsap High
HOA
  • HOA Dues
    Unspecified
  • Fees Assessed
    Unspecified
  • HOA Dues Include
    Unspecified
  • HOA Contact
    Unspecified
  • Management Contact
Parking
  • Covered
    3-Car
  • Types
    Attached Garage
  • Has Garage
    Yes
  • Nbr of Assigned Spaces
    3
Views
  • Mountain(s)
    Territorial
Construction
  • Year Built
    1989
  • Home Builder
    Unspecified
Cooling
  • Includes
    None
Heating
  • Includes
    Forced Air
Interior
  • Flooring
    Hardwood
    Vinyl
    Carpet
  • Features
    Bath Off Primary
    Double Pane/Storm Window
    Dining Room
    Fireplace
    Security System
    Skylight(s)
    Vaulted Ceiling(s)
    Walk-In Closet(s)
    Water Heater
Property
  • Lot Features
    Curbs
    Paved
  • Site Features
    Cable TV
    Fenced-Fully
    Gas Available
    Patio
    Sprinkler System
Appliances
  • Included
    Dishwasher(s)
    Dryer(s)
    Microwave(s)
    Refrigerator(s)
    Stove(s)/Range(s)
    Washer(s)
Terms
  • 3rd Party Approval Required)
    No
  • Bank Owned (REO)
    No
  • Complex FHA Availability
    Unspecified
  • Potential Terms
    Cash Out
    Conventional
    FHA
    State Bond
    VA Loan
Utilities
  • Energy
    Electric
    Natural Gas
  • Sewer
    Sewer Connected
  • Water Source
    Public
Additional Info
  • Waterfront
    No
  • Air Conditioning (A/C)
    No
  • Buyer Broker's Compensation
    2.5%
  • MLS Area #
    Area 147
  • Number of Photos
    37
  • Last Modification Time
    Monday, December 29, 2025 10:27 AM
  • System Listing ID
    5492776
Update Info
  • Pending Or Ctg
    2025-12-29 10:32:26
  • Price Reduction
    2025-12-18 08:09:43
  • First For Sale
    2025-10-15 13:56:12
Listing details based on information submitted to the MLS GRID as of Monday, December 29, 2025 10:27 AM. All data is obtained from various sources and may not have been verified by broker or MLS GRID. Supplied Open House Information is subject to change without notice. All information should be independently reviewed and verified for accuracy. Properties may or may not be listed by the office/agent presenting the information.
View
Sort

Sharing

 
Pending December 28, 2025
$599,950  
4 BR    2.5 BA    2,481 SQFT  
NWMLS #2438997. Summer G. Davy, Windermere RE West Sound Inc.
Map
 
Listing information is provided by the listing agent except as follows: BuilderB indicates that our system has grouped this listing under a home builder name that doesn't match the name provided by the listing broker. DevelopmentD indicates that our system has grouped this listing under a development name that doesn't match the name provided by the listing broker.