to
Reset
Houses
Townhouses
Condos
Land
Price
to
SQFT
to
Bdrms
to
Baths
to
Lot
to
Yr Built
to
Sold
Listed within...
Listed at least...
Offer Review
New Construction
Waterfront
Short-Sales
REO
Parking
to
Unit Flr
to
Unit Nbr
Listings
Neighborhoods
Complexes
Developments
Cities
Counties
Zip Codes
Neighborhood · Condo · Development
School District
Zip Code
City
County
Builder
Listing Numbers
Broker LAG
Boundary Lines
Labels
View
Sort
For Sale 41 Days Online
$350,000
2 Bedrooms
1.75 Bathrooms
2,064 Sqft House
Built 1977
27,000 Sqft Lot
2-Car Garage
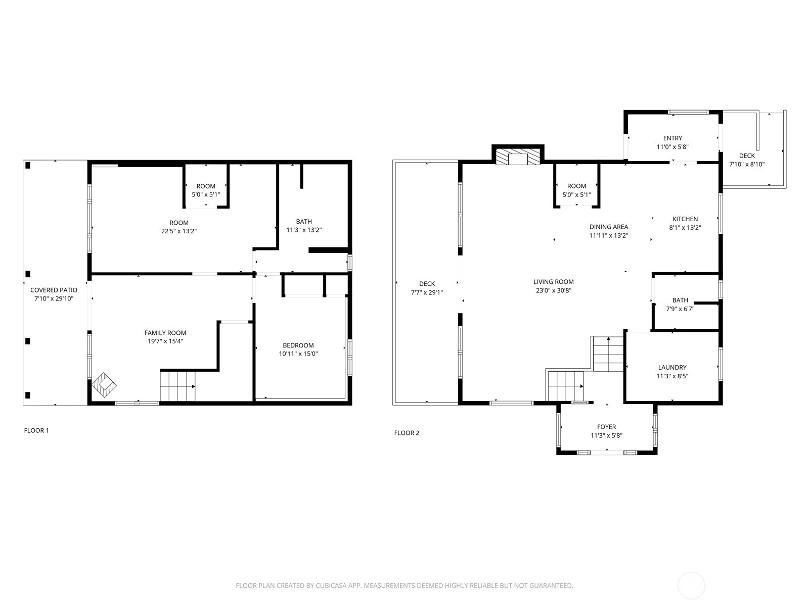
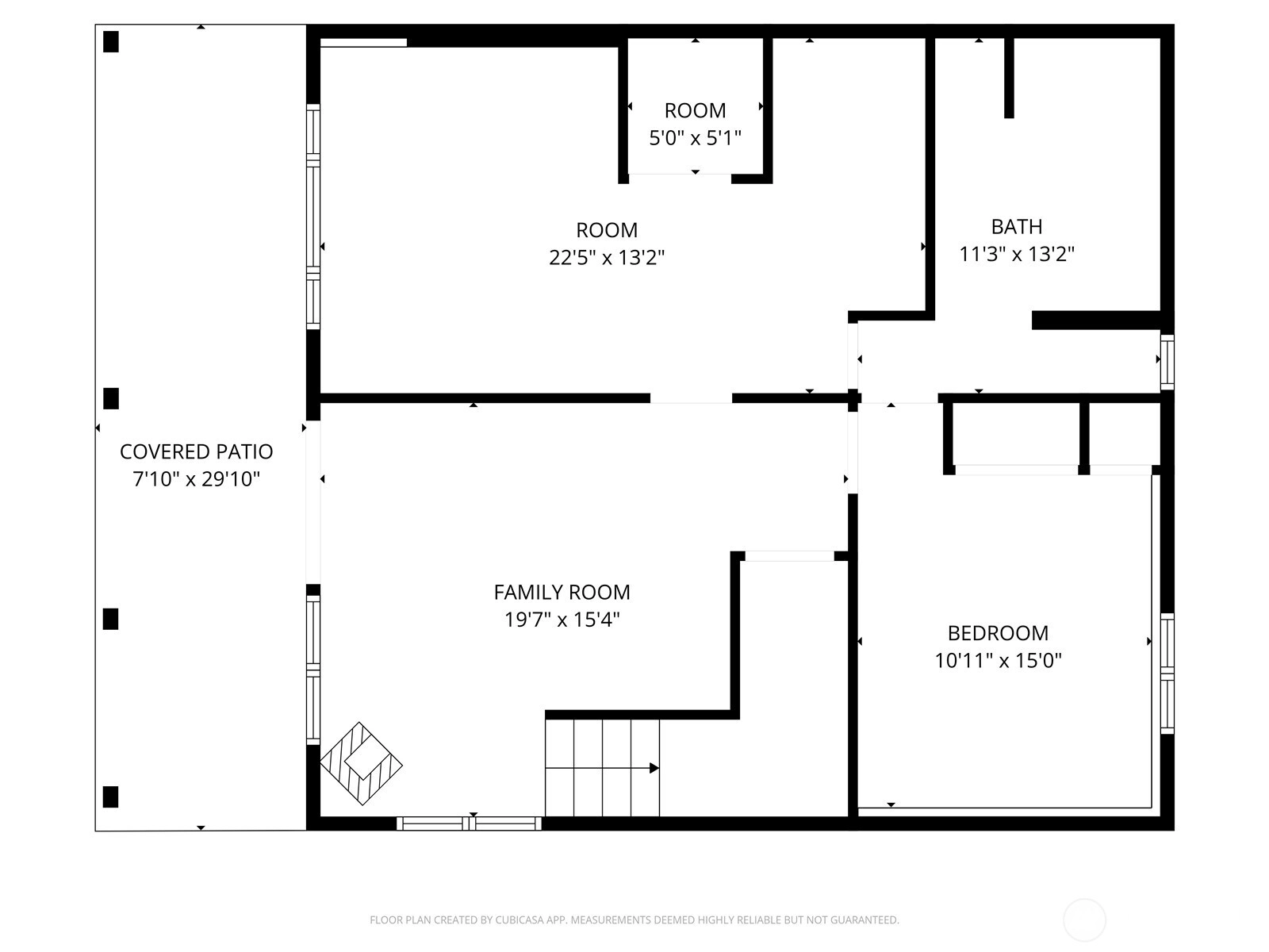
Escape the noise and discover true solitude on Ketron Island. This property offers the rare chance to live "off the grid" in peace. Set on over half an acre surrounded by natural beauty, the home features mountain, meadow, and sound views. Although it needs TLC, the potential is obvious. With 2 bedrooms, 1.75 baths, a shop, a large living room with expansive windows, and a bonus room, it’s the perfect opportunity to create your own island retreat. There's also space for your RV or boat if needed. Whether you are looking for a permanent home or a weekend hideaway, Ketron Island offers independence, nature, & simplicity. It is island living at its purest. Come see for yourself.
Offer Review
Will review offers when submitted
Listing source NWMLS MLS #
2443717
Listed by
Gayle Sammons, John L Scott RE West Seattle
We don't currently have a buyer representative in this area. To be sure that you're getting objective advice, we always suggest buyers work with their own agent, someone who is not affiliated with the seller.
Bedroom & Bathroom Layout
SECOND
¾
BATH
LOWER
BDRM
BDRM
FULL
BATH
Property History
Oct 15, 2025
Listed
$350,000
NWMLS #2443717
Sep 11, 2019
Sold
$240,000
NWMLS #1437322 Annualized 16.2% / yr
Apr 10, 2012
Sold
$79,000
NWMLS #218544
More
Listing Details
  • Status
    For Sale
  • Price
    $350,000
  • Original Price
    Same as current
  • List Date
    October 15, 2025
  • Last Status Change
    October 16, 2025
  • Last Update
    October 24, 2025
  • Days on Market
    41 Days
  • Cumulative DOM
    41 Days
  • $/sqft (Total)
    $170/sqft
  • $/sqft (Finished)
    $170/sqft
  • Listing Source
  • MLS Number
    2443717
  • Listing Broker
    Gayle Sammons
  • Listing Office
    John L Scott RE West Seattle
Monthly Payment Estimate
  • Principal and Interest
    $1,835 / month
  • Property Taxes
    $226 / month
  • Homeowners Insurance
    $85 / month
  • TOTAL
    $2,146 / month

  • based on 20% down
    ($70,000)
  • and a
    6.85% Interest Rate
  • About:
    All calculations are estimates only and provided by Mainview LLC. Actual amounts will vary.
House Details
  • Sqft (Total)
    2,064 sqft
  • Sqft (Finished)
    2,064 sqft
  • Sqft (Unfinished)
    None
  • Property Type
    House
  • Sub Type
    Split Entry
  • Bedrooms
    2 Bedrooms
  • Bathrooms
    1.75 Bathrooms
  • Lot
    27,000 sqft Lot
  • Lot Size Source
    Realist
  • Lot #
    Unspecified
  • Project
    Unspecified
  • Total Stories
    2 stories
  • Basement
    Finished
  • Sqft Source
    Realist
Property Tax Info
  • 2025 Property Taxes
    $2,709 / year
  • No Senior Exemption
Public Parcel Data & Maps
Schools
  • School District
    Steilacoom Historica
  • Elementary
    Buyer To Verify
  • Middle
    Buyer To Verify
  • High School
    Buyer To Verify
HOA
  • HOA Dues
    Unspecified
  • Fees Assessed
    Unspecified
  • HOA Dues Include
    Unspecified
  • HOA Contact
    Unspecified
  • Management Contact
Parking
  • Covered
    2-Car
  • Types
    Attached Carport
    Off Street
    RV Parking
  • Has Garage
    Yes
  • Nbr of Assigned Spaces
    2
Views
  • Mountain(s)
    Partial
    Sound
    Territorial
Construction
  • Year Built
    1977
  • Home Builder
    Unspecified
Cooling
  • Includes
    None
Heating
  • Includes
    Baseboard
    Wall Unit(s)
Interior
  • Flooring
    Vinyl
    Carpet
  • Features
    Ceiling Fan(s)
    Fireplace
    Walk-In Pantry
    Water Heater
    Wired for Generator
Property
  • Lot Features
    Corner Lot
    Open Space
    Secluded
  • Site Features
    Cable TV
    Deck
    High Speed Internet
    Patio
    Propane
    RV Parking
    Shop
Appliances
  • Included
    Dishwasher(s)
    Dryer(s)
    Refrigerator(s)
    Stove(s)/Range(s)
    Trash Compactor
    Washer(s)
Terms
  • 3rd Party Approval Required)
    No
  • Bank Owned (REO)
    No
  • Complex FHA Availability
    Unspecified
  • Potential Terms
    Cash Out
    Conventional
    FHA
    VA Loan
Utilities
  • Energy
    Electric
  • Sewer
    Septic Tank
  • Water Source
    Shared Well
Additional Info
  • Waterfront
    No
  • Air Conditioning (A/C)
    No
  • Buyer Broker's Compensation
    2.5%
  • MLS Area #
    Area 44
  • Number of Photos
    38
  • Last Modification Time
    Friday, October 24, 2025 11:57 AM
  • System Listing ID
    5492946
Update Info
  • First For Sale
    2025-10-15 20:36:54
Listing details based on information submitted to the MLS GRID as of Friday, October 24, 2025 11:57 AM. All data is obtained from various sources and may not have been verified by broker or MLS GRID. Supplied Open House Information is subject to change without notice. All information should be independently reviewed and verified for accuracy. Properties may or may not be listed by the office/agent presenting the information.
View
Sort

Sharing

 
For Sale 41 Days Online
$350,000  
2 BR    1.75 BA    2,064 SQFT  
Offer Review: Anytime
NWMLS #2443717. Gayle Sammons, John L Scott RE West Seattle
Map
 
Listing information is provided by the listing agent except as follows: BuilderB indicates that our system has grouped this listing under a home builder name that doesn't match the name provided by the listing broker. DevelopmentD indicates that our system has grouped this listing under a development name that doesn't match the name provided by the listing broker.