to
Reset
Houses
Townhouses
Condos
Land
Price
to
SQFT
to
Bdrms
to
Baths
to
Lot
to
Yr Built
to
Sold
Listed within...
Listed at least...
Offer Review
New Construction
Waterfront
Short-Sales
REO
Parking
to
Unit Flr
to
Unit Nbr
Listings
Neighborhoods
Complexes
Developments
Cities
Counties
Zip Codes
Neighborhood · Condo · Development
School District
Zip Code
City
County
Builder
Listing Numbers
Broker LAG
Boundary Lines
Labels
View
Sort
Sold Closed January 8, 2026
$1,149,500
Originally $1,195,000
3 Bedrooms
2 Bathrooms
1,581 Sqft House
New Construction
Built 2025
2,378 Sqft Lot
Garage
HOA Dues $2 / month
SALE HISTORY
List price was $1,195,000
The price was later changed to $1,149,500.
It took 35 days to go pending.
Then 49 days to close at $1,149,500
Closed at $727/SQFT.
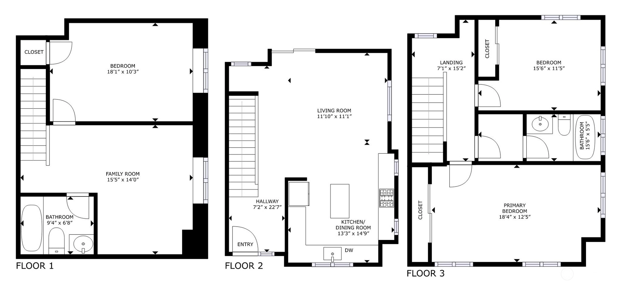
Stunning new construction modern home located at the highest point in Magnolia on a dead-end lane with incredible privacy. Meticulously designed with smooth finishes and custom details throughout, this home offers great views of the mountains and Puget Sound! 3 beds + 2 full baths + spacious media room. Thoughtfully designed floor plan featuring a chef’s kitchen, beautiful entry, and great room living on the main. Top floor has two bedrooms with an oversized primary as well as laundry. Downstairs has large media room, full bathroom, and bedroom. Dedicated parking spot with EV charger. Empty playfield next door offers open space for all residents. Located in the coveted Catharine Blaine school district! See MLS#XXXXXXX for attached SFR.
Offer Review
No offer review date was specified
Listing source NWMLS MLS #
2445590
Listed by
Chris C. Nye, MLS4owners.com
Buyer's broker
Unrepresentd ZDefault, ZNonMember-Office-MLS
Contact our
Magnolia
Real Estate Lead
John L. Scott
Phone...
Bedroom & Bathroom Layout
SECOND
BDRM
FULL
BATH
LOWER
BDRM
BDRM
FULL
BATH
Property History
Jan 09, 2026
Sold
$1,149,500
NWMLS #2445590
Nov 20, 2025
Went Pending
$1,149,500
NWMLS #2445590
Nov 06, 2025
Price Reduction arrow_downward
$1,149,500
NWMLS #2445590
Oct 16, 2025
Listed
$1,195,000
NWMLS #2445590
More
Listing Details
  • Sale Price
    $1,149,500
  • Closing Date
    January 8, 2026
  • Last List Price
    $1,149,500
  • Original Price
    $1,195,000
  • List Date
    October 16, 2025
  • Pending Date
    November 20, 2025
  • Days to go Pending
    35 days
  • $/sqft (Total)
    $727/sqft
  • $/sqft (Finished)
    $727/sqft
  • Listing Source
  • MLS Number
    2445590
  • Listing Broker
    Chris C. Nye
  • Listing Office
    MLS4owners.com
  • Buyer's Broker
    Unrepresentd ZDefault
  • Buyer Broker's Firm
    ZNonMember-Office-MLS
Monthly Payment Estimate
  • Principal and Interest
    $6,026 / month
  • HOA
    $2 / month
  • Property Taxes
    $42 / month
  • Homeowners Insurance
    $223 / month
  • TOTAL
    $6,293 / month

  • based on 20% down
    ($229,900)
  • and a
    6.85% Interest Rate
  • About:
    All calculations are estimates only and provided by Mainview LLC. Actual amounts will vary.
House Details
  • Sqft (Total)
    1,581 sqft
  • Sqft (Finished)
    1,581 sqft
  • Sqft (Unfinished)
    None
  • Property Type
    House
  • Sub Type
    Multi Level
  • Bedrooms
    3 Bedrooms
  • Bathrooms
    2 Bathrooms
  • Lot
    2,378 sqft Lot
  • Lot Size Source
    Survey
  • Lot #
    Unspecified
  • Project
    Unspecified
  • Total Stories
    Unspecified
  • Basement
    Finished
  • Sqft Source
    Plans
Property Tax Info
  • 2025 Property Taxes
    $500 / year
  • No Senior Exemption
Public Parcel Data & Maps
Schools
  • School District
    Seattle
  • Elementary
    Unspecified
  • Middle
    Unspecified
  • High School
    Unspecified
HOA
  • HOA Dues
    $2 / month
  • Fees Assessed
    Monthly
  • HOA Dues Include
    Unspecified
  • HOA Contact
    Unspecified
  • Management Contact
    Unspecified
Parking
  • Covered
    Unspecified
  • Types
    Driveway
    Attached Garage
  • Has Garage
    Yes
Views
  • City
    Mountain(s)
    Sound
    Territorial
Construction
  • Year Built
    2025
  • New Construction
    Yes
  • Construction State
    Unspecified
  • Home Builder
    Unspecified
Cooling
  • Includes
    90%+ High Efficiency
    Ductless
    High Efficiency (Unspecified)
Heating
  • Includes
    90%+ High Efficiency
    Ductless
    Heat Pump
    Hot Water Recirc Pump
    HRV/ERV System
Interior
  • Flooring
    Ceramic Tile
    Concrete
    Engineered Hardwood
  • Features
    Double Pane/Storm Window
    Dining Room
    Fireplace
    High Tech Cabling
    Skylight(s)
    Vaulted Ceiling(s)
    Walk-In Closet(s)
    Water Heater
Property
  • Lot Features
    Cul-De-Sac
    Dead End Street
    Open Space
    Paved
    Secluded
  • Site Features
    Cable TV
    Electric Car Charging
    Fenced-Partially
    High Speed Internet
    Patio
    Rooftop Deck
Appliances
  • Included
    Dishwasher(s)
    Disposal
    Microwave(s)
    Refrigerator(s)
    Stove(s)/Range(s)
Terms
  • Bank Owned (REO)
    No
Utilities
  • Energy
    Electric
  • Sewer
    Sewer Connected
  • Water Source
    Public
Additional Info
  • Waterfront
    No
  • Air Conditioning (A/C)
    Yes
  • Buyer Broker's Compensation
    2%
  • MLS Area #
    Area 700
  • Number of Photos
    33
  • Last Modification Time
    Friday, January 9, 2026 5:34 PM
  • System Listing ID
    5493405
Update Info
  • Closed
    2026-01-09 17:40:03
  • Pending Or Ctg
    2025-11-20 14:47:34
  • Price Reduction
    2025-11-06 05:29:01
  • First For Sale
    2025-10-16 15:26:42
Listing details based on information submitted to the MLS GRID as of Friday, January 9, 2026 5:34 PM. All data is obtained from various sources and may not have been verified by broker or MLS GRID. Supplied Open House Information is subject to change without notice. All information should be independently reviewed and verified for accuracy. Properties may or may not be listed by the office/agent presenting the information.
View
Sort

Sharing

 
Sold January 8, 2026
$1,149,500  
3 BR    2 BA    1,581 SQFT  
NWMLS #2445590. Chris C. Nye, MLS4owners.com
Map
 
Listing information is provided by the listing agent except as follows: BuilderB indicates that our system has grouped this listing under a home builder name that doesn't match the name provided by the listing broker. DevelopmentD indicates that our system has grouped this listing under a development name that doesn't match the name provided by the listing broker.