to
Reset
Houses
Townhouses
Condos
Land
Price
to
SQFT
to
Bdrms
to
Baths
to
Lot
to
Yr Built
to
Sold
Listed within...
Listed at least...
Offer Review
New Construction
Waterfront
Short-Sales
REO
Parking
to
Unit Flr
to
Unit Nbr
Listings
Neighborhoods
Complexes
Developments
Cities
Counties
Zip Codes
Neighborhood · Condo · Development
School District
Zip Code
City
County
Builder
Listing Numbers
Broker LAG
Boundary Lines
Labels
View
Sort
Pending Inspection Went pending in 35 days
$460,000
Originally $425,000
3 Bedrooms
2.5 Bathrooms
2,239 Sqft House
Built 2004
1.41 Acres Lot
2-Car Garage
The seller has reached an agreement with a buyer to sell this property. If things go as planned, the sale will become final in the near future. The buyer and seller have agreed on a price but it's not public until the sale closes. The last published list price was $460,000.
Unleash potential at 17239 Crane St, Tenino, WA. 2,239 sq ft of possibilities in a home that lives like a 4-bedroom with a traditional 3-bedroom septic designation and a 2.5-bath layout. Highlights include a roughed-in unfinished basement for future reconfiguration, newer furnace, and new kitchen cabinets awaiting your final touches. Range and microwave new last year. As-is sale—seller makes no repairs—great for hands-on buyers, builders, or investors seeking instant sweat equity in a friendly neighborhood near amenities. Close to historic downtown Tenino with shopping, recreation, and a railroad museum. Don’t miss this chance to customize and grow value. Bring your vision to life!
Offer Review
No offer review date was specified
Listing source NWMLS MLS #
2446084
Listed by
Dera Hicks, Keller Williams South Sound
Gail Smith, Keller Williams South Sound
We don't currently have a buyer representative in this area. To be sure that you're getting objective advice, we always suggest buyers work with their own agent, someone who is not affiliated with the seller.
Bedroom & Bathroom Layout
SECOND
BDRM
BDRM
BDRM
FULL
BATH
FULL
BATH
MAIN
½
BATH
LOWER
Property History
Nov 21, 2025
Went Pending Inspection
$460,000
NWMLS #2446084
Nov 14, 2025
Price Reduction arrow_downward
$460,000
NWMLS #2446084
Oct 22, 2025
Price Increase arrow_upward
$480,000
NWMLS #2446084
Oct 17, 2025
Listed
$425,000
NWMLS #2446084
Jul 17, 2007
Sold
$395,000
NWMLS #27049193 Annualized 13.1% / yr
Apr 12, 2005
Sold
$299,000
NWMLS #24124633
More
Listing Details
  • Status
    Pending Inspection
  • Last Listed Price
    $460,000
  • Original Price
    $425,000
  • List Date
    October 17, 2025
  • Last Status Change
    November 21, 2025
  • Last Update
    November 21, 2025
  • Days on Market
    39 Days
  • Cumulative DOM
    35 Days
  • Pending Date
    November 21, 2025
  • Days to go Pending
    35
  • $/sqft (Total)
    $205/sqft
  • $/sqft (Finished)
    $205/sqft
  • Listing Source
  • MLS Number
    2446084
  • Listing Broker
    Dera Hicks
  • Listing Office
    Keller Williams South Sound
Monthly Payment Estimate
  • Principal and Interest
    $2,411 / month
  • Property Taxes
    $442 / month
  • Homeowners Insurance
    $99 / month
  • TOTAL
    $2,952 / month

  • based on 20% down
    ($92,000)
  • and a
    6.85% Interest Rate
  • About:
    All calculations are estimates only and provided by Mainview LLC. Actual amounts will vary.
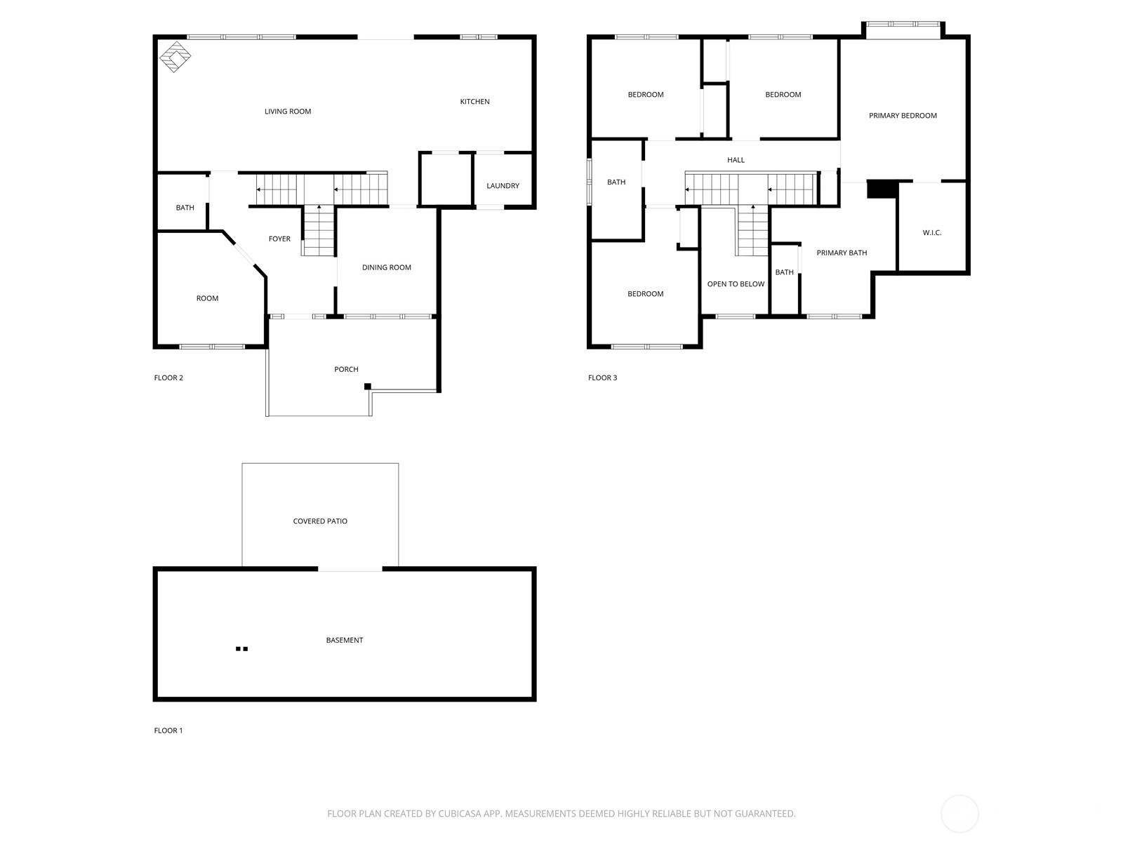
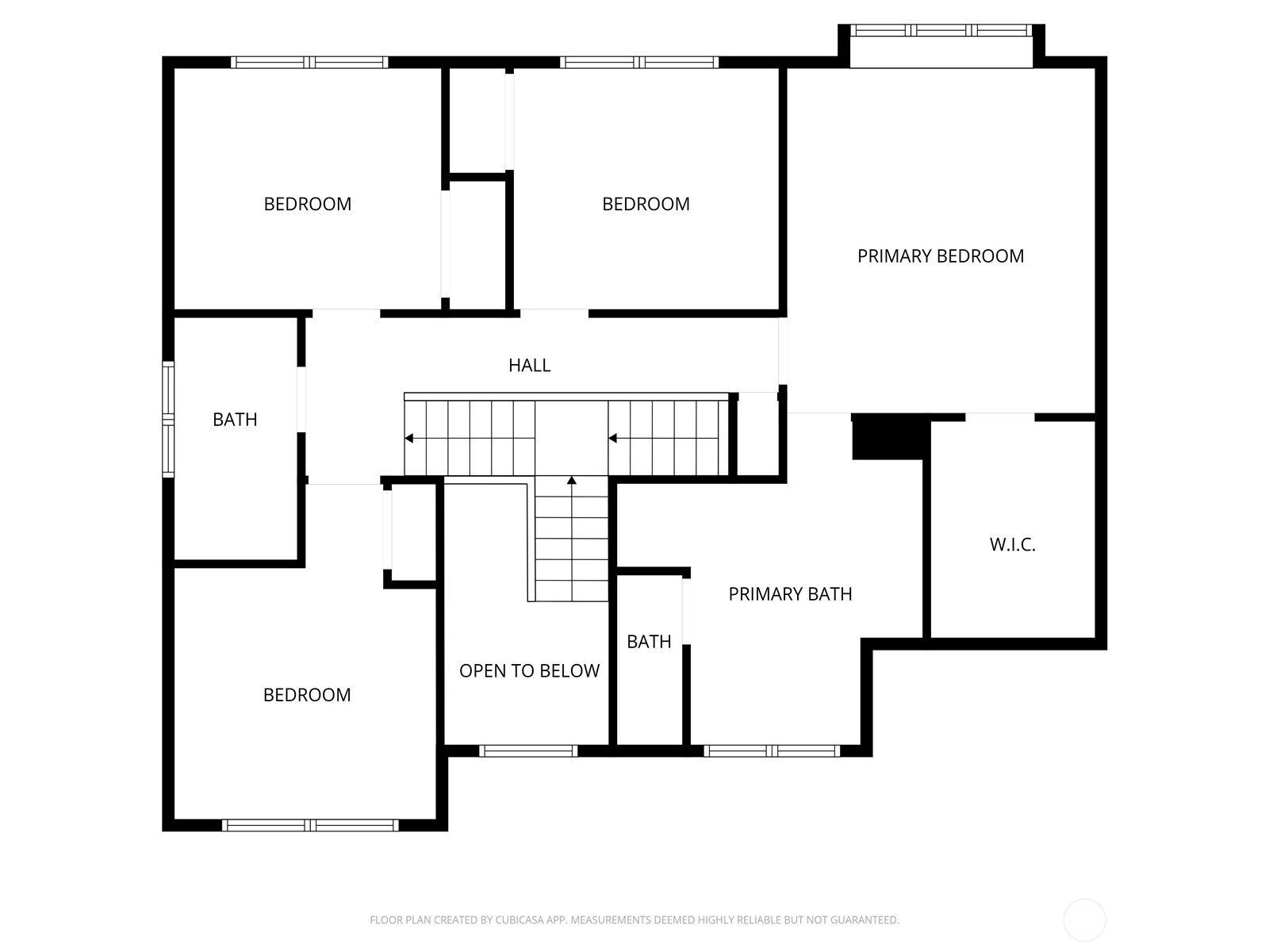
House Details
  • Sqft (Total)
    2,239 sqft
  • Sqft (Finished)
    2,239 sqft
  • Sqft (Unfinished)
    None
  • Property Type
    House
  • Sub Type
    2 Stories + Basement
  • Bedrooms
    3 Bedrooms
  • Bathrooms
    2.5 Bathrooms
  • Lot
    1.41 Acres Lot
  • Lot Size Source
    Public Records
  • Lot #
    Unspecified
  • Project
    Unspecified
  • Total Stories
    3 stories
  • Basement
    Daylight
    Partially Finished
  • Sqft Source
    Public Records
Property Tax Info
  • 2025 Property Taxes
    $5,302 / year
  • No Senior Exemption
Public Parcel Data & Maps
Schools
  • School District
    Tenino
  • Elementary
    Tenino Elem
  • Middle
    Tenino Mid
  • High School
    Tenino High
HOA
  • HOA Dues
    Unspecified
  • Fees Assessed
    Unspecified
  • HOA Dues Include
    Unspecified
  • HOA Contact
    Unspecified
  • Management Contact
Community Features
  • Community Features
    CCRs
Parking
  • Covered
    2-Car
  • Types
    Driveway
    Attached Garage
  • Has Garage
    Yes
  • Nbr of Assigned Spaces
    2
Views
  • Territorial
Construction
  • Year Built
    2004
  • Home Builder
    Unspecified
Cooling
  • Includes
    Forced Air
Heating
  • Includes
    Forced Air
    Stove/Free Standing
Interior
  • Flooring
    Concrete
    Carpet
  • Features
    Bath Off Primary
    Ceiling Fan(s)
    Double Pane/Storm Window
    Dining Room
    Jetted Tub
    Walk-In Closet(s)
    Walk-In Pantry
    Water Heater
Property
  • Lot Features
    Dead End Street
    Open Space
  • Site Features
    Deck
    Hot Tub/Spa
    Propane
Appliances
  • Included
    Dishwasher(s)
    Dryer(s)
    Microwave(s)
    Stove(s)/Range(s)
Terms
  • 3rd Party Approval Required)
    No
  • Bank Owned (REO)
    No
  • Complex FHA Availability
    Unspecified
  • Potential Terms
    Cash Out
    Conventional
Utilities
  • Energy
    Propane
  • Sewer
    Septic Tank
  • Water Source
    Community
Additional Info
  • Waterfront
    No
  • Air Conditioning (A/C)
    Yes
  • Buyer Broker's Compensation
    2.5%
  • MLS Area #
    Area 454
  • Number of Photos
    25
  • Last Modification Time
    Friday, November 21, 2025 3:37 PM
  • System Listing ID
    5493830
Update Info
  • Pending Or Ctg
    2025-11-21 15:51:58
  • Price Reduction
    2025-11-14 15:19:30
  • Price Increase
    2025-10-22 13:48:09
  • First For Sale
    2025-10-17 13:36:59
Listing details based on information submitted to the MLS GRID as of Friday, November 21, 2025 3:37 PM. All data is obtained from various sources and may not have been verified by broker or MLS GRID. Supplied Open House Information is subject to change without notice. All information should be independently reviewed and verified for accuracy. Properties may or may not be listed by the office/agent presenting the information.
View
Sort

Sharing

 
Pending Inspection November 21, 2025
$460,000  
3 BR    2.5 BA    2,239 SQFT  
NWMLS #2446084. Dera Hicks, Keller Williams South Sound
Map
 
Listing information is provided by the listing agent except as follows: BuilderB indicates that our system has grouped this listing under a home builder name that doesn't match the name provided by the listing broker. DevelopmentD indicates that our system has grouped this listing under a development name that doesn't match the name provided by the listing broker.