to
Reset
Houses
Townhouses
Condos
Land
Price
to
SQFT
to
Bdrms
to
Baths
to
Lot
to
Yr Built
to
Sold
Listed within...
Listed at least...
Offer Review
New Construction
Waterfront
Short-Sales
REO
Parking
to
Unit Flr
to
Unit Nbr
Listings
Neighborhoods
Complexes
Developments
Cities
Counties
Zip Codes
Neighborhood · Condo · Development
School District
Zip Code
City
County
Builder
Listing Numbers
Broker LAG
Boundary Lines
Labels
View
Sort
Pending Went pending in 10 days
$1,049,900
4 Bedrooms
2.5 Bathrooms
3,104 Sqft House
Built 1978
16,626 Sqft Lot
3-Car Garage
PENDING SALE. This listing went Pending on November 2, 2025

Some pending sales don't become final. Contact Us if this property is really important to you so we can check on it right now. The seller has reached an agreement with a buyer to sell this property. If things go as planned, the sale will become final in the near future. The buyer and seller have agreed on a price but it's not public until the sale closes. The last published list price was $1,049,900.
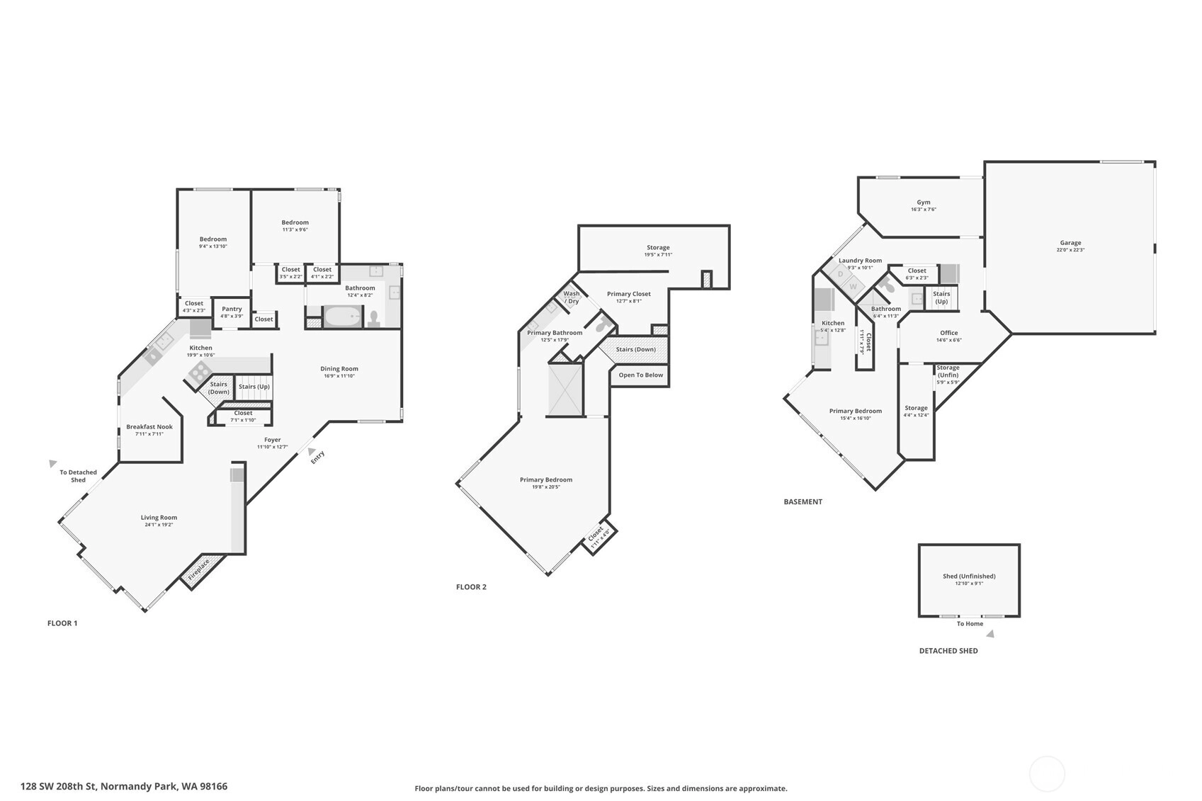
Multi-level NW contemporary with tall ceilings and walls of windows, a Large primary suite with tons of closet space, spa-like bath and ensuite laundry. Great outdoors for entertaining with wraparound deck and large patio in a private setting. Walkout basement offers a 2nd kitchen, laundry, bedroom with separate entrance and flex rooms/storage/office/gym. 2 car garage, carport and large storage shed. Upgrades include newer windows, remodeled baths, dog run, fully fenced back yard and 200 amp service. Lot A rights to The Cove with private beach, pickleball/tennis and clubhouse. Short walk to parks and shopping, and easy access to light rail and 509 to downtown. Move in ready and offered at $275K below June appraisal.
Offer Review
No offer review date was specified
Listing source NWMLS MLS #
2447098
Listed by
David Cuthbert, Portico Real Estate
Scott Power, eXp Realty
Contact our
Normandy Park
Real Estate Lead
TPG Realty | Keller Williams
Phone...
Bedroom & Bathroom Layout
SECOND
BDRM
¾
BATH
MAIN
BDRM
BDRM
FULL
BATH
LOWER
BDRM
¾
BATH
Property History
Nov 08, 2025
Went Pending
$1,049,900
NWMLS #2447098
Nov 02, 2025
Went Pending Inspection
$1,049,900
NWMLS #2447098
Oct 23, 2025
Listed
$1,049,900
NWMLS #2447098
Oct 01, 2025
Listed
$1,124,900
NWMLS #2440299
Jul 16, 2025
Listed
$1,124,900
NWMLS #2407893
Sep 03, 2025
Price Reduction arrow_downward
$1,124,900
NWMLS #2407893
Jul 16, 2025
Listed
$1,175,000
NWMLS #2407893
Jul 10, 2014
Sold
$450,000
More
Listing Details
  • Status
    Pending
  • Last Listed Price
    $1,049,900
  • Original Price
    Same as current
  • List Date
    October 23, 2025
  • Last Status Change
    November 8, 2025
  • Last Update
    November 8, 2025
  • Days on Market
    29 Days
  • Cumulative DOM
    10 Days
  • Pending Date
    November 2, 2025
  • Days to go Pending
    10
  • $/sqft (Total)
    $338/sqft
  • $/sqft (Finished)
    $338/sqft
  • Listing Source
  • MLS Number
    2447098
  • Listing Broker
    David Cuthbert
  • Listing Office
    Portico Real Estate
Monthly Payment Estimate
  • Principal and Interest
    $5,504 / month
  • Property Taxes
    $1,046 / month
  • Homeowners Insurance
    $205 / month
  • TOTAL
    $6,755 / month

  • based on 20% down
    ($209,980)
  • and a
    6.85% Interest Rate
  • About:
    All calculations are estimates only and provided by Mainview LLC. Actual amounts will vary.
House Details
  • Sqft (Total)
    3,104 sqft
  • Sqft (Finished)
    3,104 sqft
  • Sqft (Unfinished)
    None
  • Property Type
    House
  • Sub Type
    Multi Level
  • Bedrooms
    4 Bedrooms
  • Bathrooms
    2.5 Bathrooms
  • Lot
    16,626 sqft Lot
  • Lot Size Source
    KCR
  • Lot #
    Unspecified
  • Project
    Unspecified
  • Total Stories
    Unspecified
  • Basement
    Daylight
    Finished
  • Sqft Source
    Appraisal
Property Tax Info
  • 2025 Property Taxes
    $12,551 / year
  • No Senior Exemption
Public Parcel Data & Maps
Schools
  • School District
    Highline
  • Elementary
    Marvista Elem
  • Middle
    Buyer To Verify
  • High School
    Mount Rainier High
HOA
  • HOA Dues
    Unspecified
  • Fees Assessed
    Unspecified
  • HOA Dues Include
    Unspecified
  • HOA Contact
    Unspecified
  • Management Contact
Community Features
  • Community Features
    Athletic Court
    Boat Launch
    Club House
    Park
    Playground
    Trail(s)
Parking
  • Covered
    3-Car
  • Types
    Attached Carport
    Driveway
    Attached Garage
  • Has Garage
    Yes
  • Nbr of Assigned Spaces
    3
Views
  • Territorial
Construction
  • Year Built
    1978
  • Home Builder
    Unspecified
Cooling
  • Includes
    None
Heating
  • Includes
    Forced Air
Interior
  • Flooring
    Ceramic Tile
    Hardwood
    Carpet
  • Features
    Second Kitchen
    Bath Off Primary
    Double Pane/Storm Window
    Dining Room
    Fireplace
    Skylight(s)
    Vaulted Ceiling(s)
    Walk-In Closet(s)
    Walk-In Pantry
Property
  • Lot Features
    Dead End Street
    Paved
    Secluded
  • Site Features
    Cable TV
    Deck
    Dog Run
    Fenced-Fully
    Gas Available
    High Speed Internet
    Outbuildings
    Patio
Appliances
  • Included
    Dishwasher(s)
    Disposal
    Dryer(s)
    Microwave(s)
    Refrigerator(s)
    Stove(s)/Range(s)
    Washer(s)
Terms
  • 3rd Party Approval Required)
    No
  • Bank Owned (REO)
    No
  • Complex FHA Availability
    Unspecified
  • Potential Terms
    Cash Out
    Conventional
    FHA
    VA Loan
Utilities
  • Energy
    Electric
    Natural Gas
  • Sewer
    Septic Tank
  • Water Source
    Public
Additional Info
  • Waterfront
    No
  • Air Conditioning (A/C)
    No
  • Buyer Broker's Compensation
    2.5%
  • MLS Area #
    Area 130
  • Number of Photos
    40
  • Last Modification Time
    Saturday, November 8, 2025 3:31 PM
  • System Listing ID
    5495081
Update Info
  • Pending Or Ctg
    2025-11-08 15:39:49
  • First For Sale
    2025-10-23 10:47:49
Listing details based on information submitted to the MLS GRID as of Saturday, November 8, 2025 3:31 PM. All data is obtained from various sources and may not have been verified by broker or MLS GRID. Supplied Open House Information is subject to change without notice. All information should be independently reviewed and verified for accuracy. Properties may or may not be listed by the office/agent presenting the information.
View
Sort

Sharing

 
Pending November 2, 2025
$1,049,900  
4 BR    2.5 BA    3,104 SQFT  
NWMLS #2447098. David Cuthbert, Portico Real Estate
Map
 
Listing information is provided by the listing agent except as follows: BuilderB indicates that our system has grouped this listing under a home builder name that doesn't match the name provided by the listing broker. DevelopmentD indicates that our system has grouped this listing under a development name that doesn't match the name provided by the listing broker.