to
Reset
Houses
Townhouses
Condos
Land
Price
to
SQFT
to
Bdrms
to
Baths
to
Lot
to
Yr Built
to
Sold
Listed within...
Listed at least...
Offer Review
New Construction
Waterfront
Short-Sales
REO
Parking
to
Unit Flr
to
Unit Nbr
Listings
Neighborhoods
Complexes
Developments
Cities
Counties
Zip Codes
Neighborhood · Condo · Development
School District
Zip Code
City
County
Builder
Listing Numbers
Broker LAG
Boundary Lines
Labels
View
Sort
Sold Closed December 3, 2025
$950,000
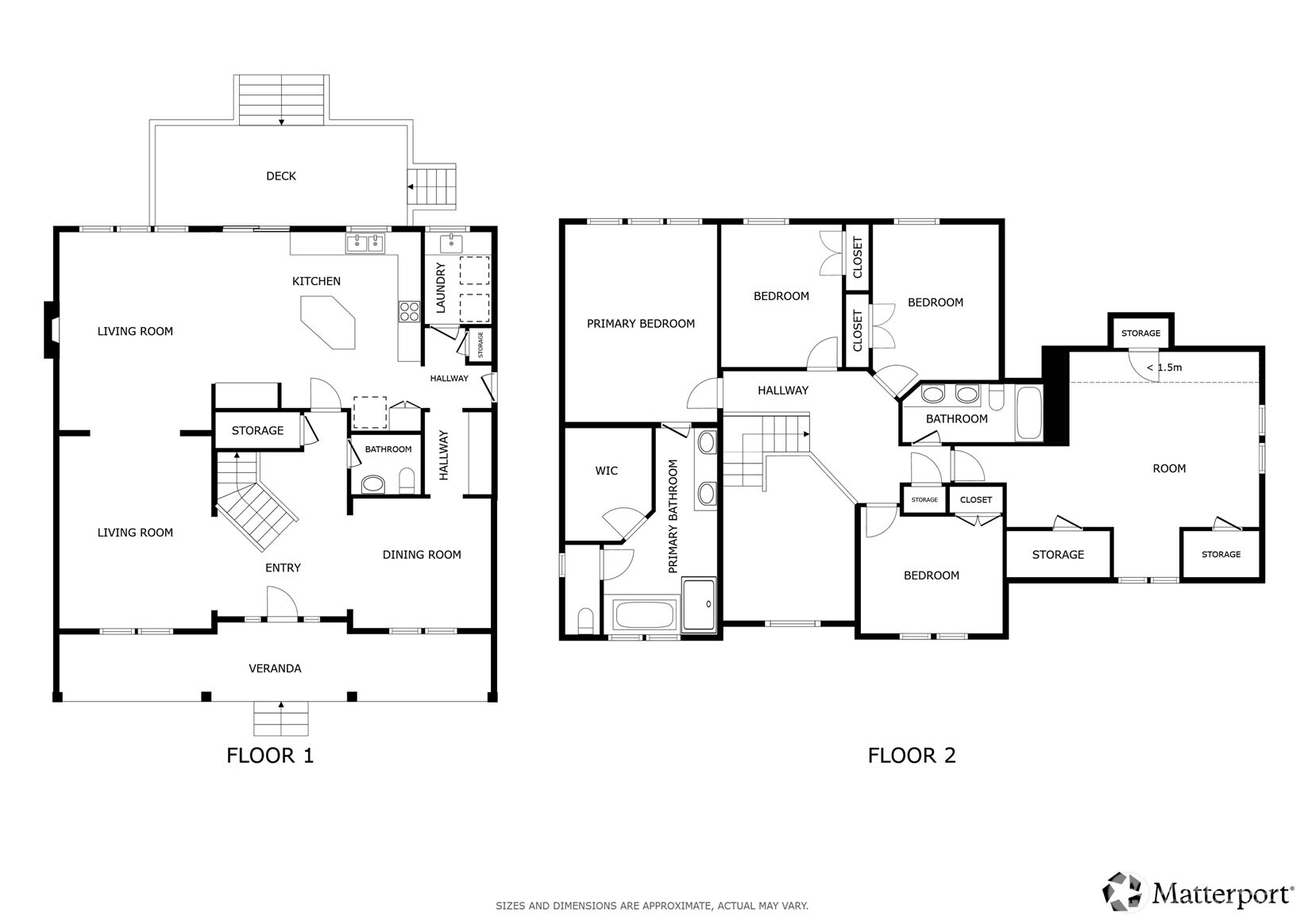
4 Bedrooms
2.5 Bathrooms
2,937 Sqft House
Built 2007
5.5 Acres Lot
2-Car Garage
SALE HISTORY
List price was $975,000
It took 1 days to go pending.
Then 35 days to close at $950,000
Closed at $323/SQFT.
Private & peaceful 5.5-acre retreat only minutes to Kingston waterfront & ferry. Nearly 3,000 sq ft home showcases lovely Mountain & Sound views, plus quintessential charming covered front porch. Inviting foyer anchored by welcoming staircase sets the tone for a spacious traditional interior. Main level open layout includes living room & great room w/gas fireplace, view windows, & slider to freshly stained deck. Entertainers will enjoy formal dining room, butler’s pantry & expansive eat-in kitchen w/ island, newer appliances & ample cabinetry. Upstairs find all 4 bedrooms + bonus room including primary suite w/vaulted ceiling, WIC & full bath. Fiber optic cable provides top-speed connectivity! For Hobby Farmers & Gardeners a dream canvas!
Offer Review
No offer review date was specified
Listing source NWMLS MLS #
2446159
Listed by
Harvey Long, Redfin
Abbie Andersen, Redfin
Buyer's broker
Kalan Wolfe Hatton, Munn Bro's Hood Canal Prop Inc
Contact our
Kingston
Real Estate Lead
My Kitsap Homes, LLC
Phone...
Bedroom & Bathroom Layout
SECOND
BDRM
BDRM
BDRM
BDRM
FULL
BATH
FULL
BATH
MAIN
½
BATH
Property History
Dec 03, 2025
Sold
$950,000
NWMLS #2446159 Annualized 7.4% / yr
Oct 29, 2025
Went Pending
$975,000
NWMLS #2446159
Oct 28, 2025
Listed
$975,000
NWMLS #2446159
Sep 05, 2011
Sold
$345,000
NWMLS #180592
More
Listing Details
  • Sale Price
    $950,000
  • Closing Date
    December 3, 2025
  • Last List Price
    $975,000
  • Original Price
    Same
  • List Date
    October 28, 2025
  • Pending Date
    October 29, 2025
  • Days to go Pending
    1 day
  • $/sqft (Total)
    $323/sqft
  • $/sqft (Finished)
    $323/sqft
  • Listing Source
  • MLS Number
    2446159
  • Listing Broker
    Harvey Long
  • Listing Office
    Redfin
  • Buyer's Broker
    Kalan Wolfe Hatton
  • Buyer Broker's Firm
    Munn Bro's Hood Canal Prop Inc
Monthly Payment Estimate
  • Principal and Interest
    $4,980 / month
  • Property Taxes
    $622 / month
  • Homeowners Insurance
    $187 / month
  • TOTAL
    $5,789 / month

  • based on 20% down
    ($190,000)
  • and a
    6.85% Interest Rate
  • About:
    All calculations are estimates only and provided by Mainview LLC. Actual amounts will vary.
House Details
  • Sqft (Total)
    2,937 sqft
  • Sqft (Finished)
    2,937 sqft
  • Sqft (Unfinished)
    None
  • Property Type
    House
  • Sub Type
    2 Story
  • Bedrooms
    4 Bedrooms
  • Bathrooms
    2.5 Bathrooms
  • Lot
    5.5 Acres Lot
  • Lot Size Source
    Realist - Buyer to Verify
  • Lot #
    Unspecified
  • Project
    Unspecified
  • Total Stories
    2 stories
  • Basement
    None
  • Sqft Source
    Realist - Buyer to Verify
Property Tax Info
  • 2025 Property Taxes
    $7,467 / year
  • No Senior Exemption
Public Parcel Data & Maps
Schools
  • School District
    North Kitsap #400
  • Elementary
    Richard Gordon Elem
  • Middle
    Kingston Middle
  • High School
    Kingston High School
HOA
  • HOA Dues
    Unspecified
  • Fees Assessed
    Unspecified
  • HOA Dues Include
    Unspecified
  • HOA Contact
    Unspecified
  • Management Contact
    Unspecified
Parking
  • Covered
    2-Car
  • Types
    Driveway
    Attached Garage
    RV Parking
  • Has Garage
    Yes
  • Nbr of Assigned Spaces
    2
Views
  • Mountain(s)
    Sound
    Territorial
Construction
  • Year Built
    2007
  • Home Builder
    DuBois Construction Inc.
Cooling
  • Includes
    Forced Air
    Heat Pump
Heating
  • Includes
    Forced Air
    Heat Pump
    Radiant
Interior
  • Flooring
    Engineered Hardwood
    Vinyl
  • Features
    Bath Off Primary
    Ceiling Fan(s)
    Double Pane/Storm Window
    Dining Room
    Fireplace
    High Tech Cabling
    Vaulted Ceiling(s)
    Walk-In Closet(s)
    Walk-In Pantry
    Water Heater
Property
  • Lot Features
    Dead End Street
    Open Space
    Secluded
  • Site Features
    Cable TV
    Deck
    High Speed Internet
    Outbuildings
    Patio
    Propane
    RV Parking
Appliances
  • Included
    Dishwasher(s)
    Dryer(s)
    Microwave(s)
    Refrigerator(s)
    Stove(s)/Range(s)
    Washer(s)
Terms
  • Bank Owned (REO)
    No
Utilities
  • Energy
    Electric
    Propane
  • Sewer
    Septic Tank
  • Water Source
    Public
Additional Info
  • Waterfront
    No
  • Air Conditioning (A/C)
    Yes
  • Buyer Broker's Compensation
    2.5%
  • MLS Area #
    Area 162
  • Number of Photos
    38
  • Last Modification Time
    Saturday, January 3, 2026 4:04 AM
  • System Listing ID
    5496188
Update Info
  • Closed
    2025-12-03 13:31:40
  • Pending Or Ctg
    2025-10-29 22:11:29
  • First For Sale
    2025-10-28 11:03:32
Listing details based on information submitted to the MLS GRID as of Saturday, January 3, 2026 4:04 AM. All data is obtained from various sources and may not have been verified by broker or MLS GRID. Supplied Open House Information is subject to change without notice. All information should be independently reviewed and verified for accuracy. Properties may or may not be listed by the office/agent presenting the information.
View
Sort

Sharing

 
Sold December 3, 2025
$950,000   $975,000
4 BR    2.5 BA    2,937 SQFT  
NWMLS #2446159. Harvey Long, Redfin
Map
 
Listing information is provided by the listing agent except as follows: BuilderB indicates that our system has grouped this listing under a home builder name that doesn't match the name provided by the listing broker. DevelopmentD indicates that our system has grouped this listing under a development name that doesn't match the name provided by the listing broker.