to
Reset
Houses
Townhouses
Condos
Land
Price
to
SQFT
to
Bdrms
to
Baths
to
Lot
to
Yr Built
to
Sold
Listed within...
Listed at least...
Offer Review
New Construction
Waterfront
Short-Sales
REO
Parking
to
Unit Flr
to
Unit Nbr
Listings
Neighborhoods
Complexes
Developments
Cities
Counties
Zip Codes
Neighborhood · Condo · Development
School District
Zip Code
City
County
Builder
Listing Numbers
Broker LAG
Boundary Lines
Labels
View
Sort
Sold Closed December 15, 2025
$537,500
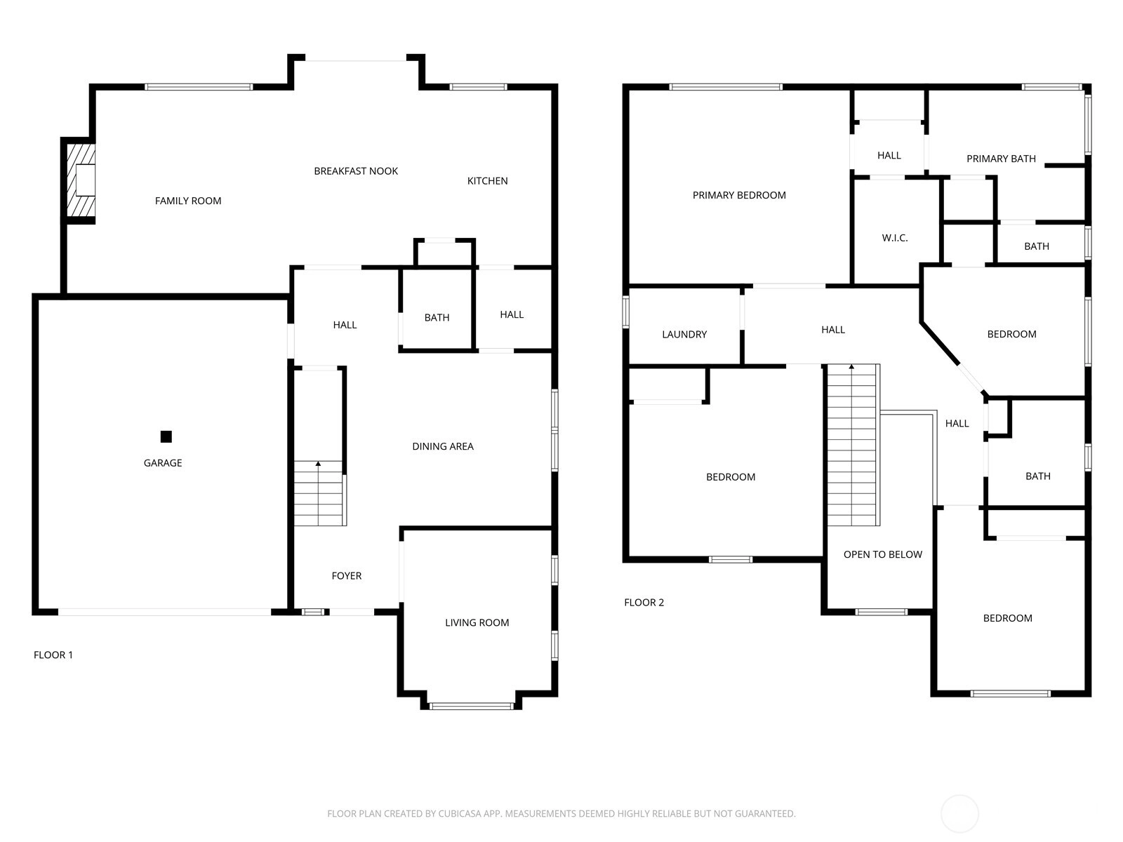
4 Bedrooms
2.5 Bathrooms
2,513 Sqft House
Built 2005
4,500 Sqft Lot
2-Car Garage
HOA Dues $65 / month
SALE HISTORY
List price was $545,000
It took 27 days to go pending.
Then 21 days to close at $537,500
Closed at $214/SQFT.
Nestled in Horizon Pointe, a neighborhood where suburban tranquility meets urban convenience, you’ll find the dream home you’ve been searching for. Featuring brand new 15k roof installed 2025! As you walk in you'll be awed by a grand entryway w/ high ceilings & hardwood floors, a convenient office space & large formal dining rm to your right. Take a few steps past your 1/2 bath & enter the heart of your new home! Very spacious kitchen w/ an island, butlers pantry, & an open concept living rm perfect for entertaining! Cozy up by the fireplace on those cold WA nights, or turn up the A/C in the summer! Upstairs, 3 bedrms, full bath, laundry rm & huge primary suite w/5pc bath & walk-in closet. Close to shopping, parks, trails & 25 mins to JBLM!
Offer Review
No offer review date was specified
Listing source NWMLS MLS #
2449030
Listed by
Jessica Tittarelli, Keller Williams South Sound
Gail Smith, Keller Williams South Sound
Buyer's broker
Katie Sager, eXp Realty
We don't currently have a buyer representative in this area. To be sure that you're getting objective advice, we always suggest buyers work with their own agent, someone who is not affiliated with the seller.
Time Adjusted Estimated Value
Assumptions: The original sale amount reflected a normal arms length sale. Any major updates would add to the value. Any damage or deferred maintenance would subtract from the value.
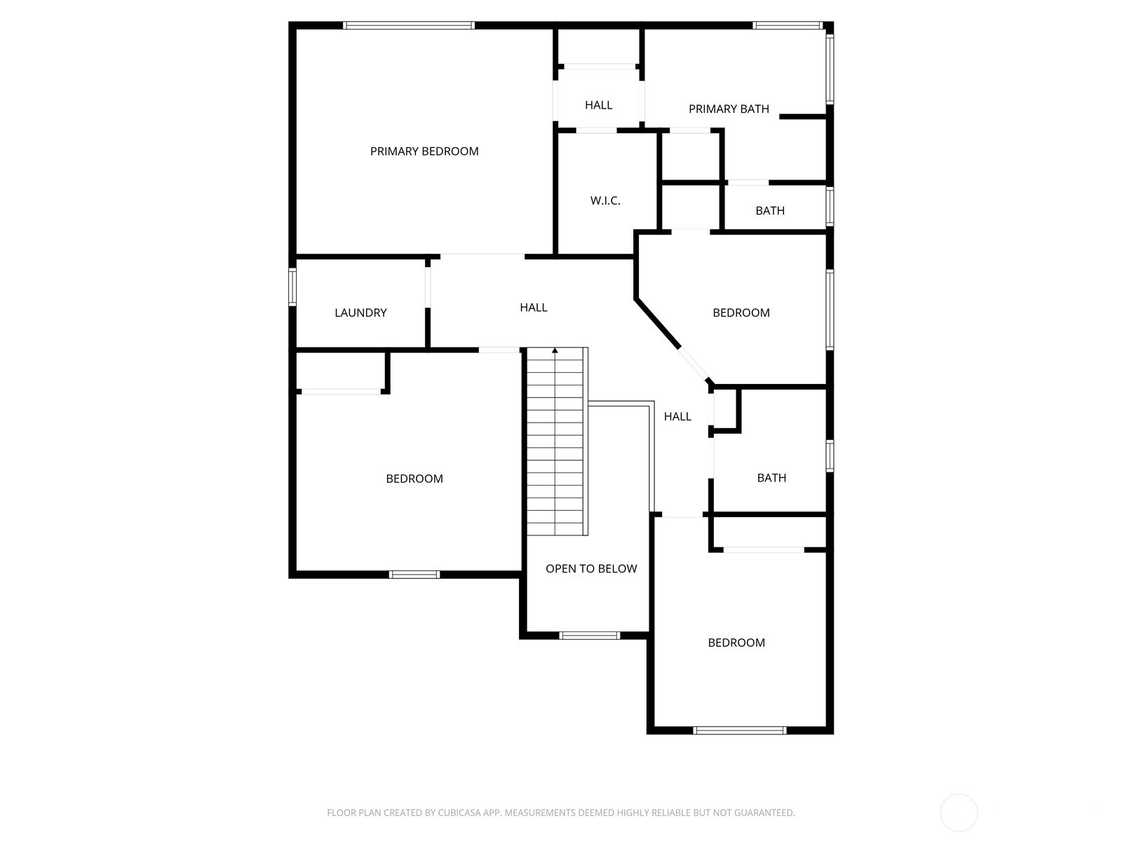
Bedroom & Bathroom Layout
SECOND
BDRM
BDRM
BDRM
BDRM
FULL
BATH
FULL
BATH
MAIN
½
BATH
Property History
Dec 16, 2025
Sold
$537,500
NWMLS #2449030 Annualized 7.2% / yr
Nov 28, 2025
Went Pending
$545,000
NWMLS #2449030
Nov 24, 2025
Went Pending Inspection
$545,000
NWMLS #2449030
Nov 05, 2025
Back on Market
$545,000
NWMLS #2449030
Nov 05, 2025
Went Pending Inspection
$545,000
NWMLS #2449030
Oct 28, 2025
Listed
$545,000
NWMLS #2449030
Oct 26, 2017
Sold
$305,000
NWMLS #1178621 Annualized 7.7% / yr
Jun 01, 2016
Sold
$274,900
NWMLS #926404 Annualized -1% / yr
Feb 20, 2006
Sold
$305,000
More
Listing Details
  • Sale Price
    $537,500
  • Closing Date
    December 15, 2025
  • Last List Price
    $545,000
  • Original Price
    Same
  • List Date
    October 28, 2025
  • Pending Date
    November 24, 2025
  • Days to go Pending
    27 days
  • $/sqft (Total)
    $214/sqft
  • $/sqft (Finished)
    $214/sqft
  • Listing Source
  • MLS Number
    2449030
  • Listing Broker
    Jessica Tittarelli
  • Listing Office
    Keller Williams South Sound
  • Buyer's Broker
    Katie Sager
  • Buyer Broker's Firm
    eXp Realty
Monthly Payment Estimate
  • Principal and Interest
    $2,818 / month
  • HOA
    $65 / month
  • Property Taxes
    $447 / month
  • Homeowners Insurance
    $111 / month
  • TOTAL
    $3,441 / month

  • based on 20% down
    ($107,500)
  • and a
    6.85% Interest Rate
  • About:
    All calculations are estimates only and provided by Mainview LLC. Actual amounts will vary.
House Details
  • Sqft (Total)
    2,513 sqft
  • Sqft (Finished)
    2,513 sqft
  • Sqft (Unfinished)
    None
  • Property Type
    House
  • Sub Type
    2 Story
  • Bedrooms
    4 Bedrooms
  • Bathrooms
    2.5 Bathrooms
  • Lot
    4,500 sqft Lot
  • Lot Size Source
    Realist
  • Lot #
    Unspecified
  • Project
    Unspecified
  • Total Stories
    2 stories
  • Basement
    None
  • Sqft Source
    Realist
Property Tax Info
  • 2025 Property Taxes
    $5,363 / year
  • No Senior Exemption
Public Parcel Data & Maps
Schools
  • School District
    North Thurston
  • Elementary
    Horizons Elem
  • Middle
    Komachin Mid
  • High School
    Timberline High
HOA
  • HOA Dues
    $65 / month
  • Fees Assessed
    Monthly
  • HOA Dues Include
    Common Area Maintenance
    Road Maintenance
  • HOA Contact
    Unspecified
  • Management Contact
    Unspecified
Community Features
  • Community Features
    Athletic Court
    CCRs
    Park
    Playground
    Trail(s)
Parking
  • Covered
    2-Car
  • Types
    Driveway
    Attached Garage
    Off Street
  • Has Garage
    Yes
  • Nbr of Assigned Spaces
    2
Views
  • Territorial
Construction
  • Year Built
    2005
  • Home Builder
    Harr
Cooling
  • Includes
    Central A/C
    Forced Air
Heating
  • Includes
    Forced Air
Interior
  • Flooring
    Hardwood
    Vinyl
    Carpet
  • Features
    Bath Off Primary
    Double Pane/Storm Window
    Dining Room
    Fireplace
    Walk-In Closet(s)
    Water Heater
Property
  • Lot Features
    Paved
    Sidewalk
  • Site Features
    Cable TV
    Fenced-Fully
    Gas Available
    High Speed Internet
    Patio
Appliances
  • Included
    Dishwasher(s)
    Disposal
    Microwave(s)
    Refrigerator(s)
    Stove(s)/Range(s)
Terms
  • Bank Owned (REO)
    No
Utilities
  • Energy
    Natural Gas
  • Sewer
    Sewer Connected
  • Water Source
    Public
Additional Info
  • Waterfront
    No
  • Air Conditioning (A/C)
    Yes
  • Buyer Broker's Compensation
    2.5%
  • MLS Area #
    Area 450
  • Number of Photos
    29
  • Last Modification Time
    Thursday, January 15, 2026 4:04 AM
  • System Listing ID
    5496205
Update Info
  • Closed
    2025-12-16 09:20:38
  • Pending Or Ctg
    2025-11-28 21:31:57
  • Back On Market
    2025-11-05 08:32:54
  • First For Sale
    2025-10-28 11:56:36
Listing details based on information submitted to the MLS GRID as of Thursday, January 15, 2026 4:04 AM. All data is obtained from various sources and may not have been verified by broker or MLS GRID. Supplied Open House Information is subject to change without notice. All information should be independently reviewed and verified for accuracy. Properties may or may not be listed by the office/agent presenting the information.
View
Sort

Sharing

 
Sold December 15, 2025
$537,500   $545,000
4 BR    2.5 BA    2,513 SQFT  
NWMLS #2449030. Jessica Tittarelli, Keller Williams South Sound
Map
 
Listing information is provided by the listing agent except as follows: BuilderB indicates that our system has grouped this listing under a home builder name that doesn't match the name provided by the listing broker. DevelopmentD indicates that our system has grouped this listing under a development name that doesn't match the name provided by the listing broker.