to
Reset
Houses
Townhouses
Condos
Land
Price
to
SQFT
to
Bdrms
to
Baths
to
Lot
to
Yr Built
to
Sold
Listed within...
Listed at least...
Offer Review
New Construction
Waterfront
Short-Sales
REO
Parking
to
Unit Flr
to
Unit Nbr
Listings
Neighborhoods
Complexes
Developments
Cities
Counties
Zip Codes
Neighborhood · Condo · Development
School District
Zip Code
City
County
Builder
Listing Numbers
Broker LAG
Boundary Lines
Labels
View
Sort
Pending Inspection Went pending in 5 days
$749,000
3 Bedrooms
2.5 Bathrooms
1,628 Sqft House
Built 1987
4,792 Sqft Lot
2-Car Garage
HOA Dues $125 / month
PENDING SALE. This listing went Pending Inspection on November 9, 2025

Some pending sales don't become final. Contact Us if this property is really important to you so we can check on it right now. The seller has reached an agreement with a buyer to sell this property. If things go as planned, the sale will become final in the near future. The buyer and seller have agreed on a price but it's not public until the sale closes. The last published list price was $749,000.
Emerald Heights—easy, affordable and convenient + HOA takes care of your lawn! Tons of natural light, hardwood floors, soaring ceilings, cozy gas fireplace & air conditioning. Flexible floorplan includes a main floor bedroom/office, large dining area & sunny kitchen w/garden window, eating bar & door to private patio—perfect for morning coffee. Upstairs, a king-sized primary suite has territorial view, walk-in closet +2nd closet & dual vanity. Spacious 3rd bedroom w/built-in desk & a loft w/custom shelving provide ideal spaces for work or hobbies. Long life tile roof. Set on a private east-facing lot, this home combines comfort & convenience—just minutes from Town Center, walking trails, Nature Preserve, parks & golf. Walk to bus & grocery.
Offer Review
No offer review date was specified
Listing source NWMLS MLS #
2450896
Listed by
Sue Doepp, RE/MAX Northwest
Charles Doepp, RE/MAX Northwest
Contact our
Mill Creek
Real Estate Lead
Buck Real Estate
Phone...
Bedroom & Bathroom Layout
SECOND
BDRM
BDRM
FULL
BATH
FULL
BATH
MAIN
BDRM
½
BATH
Property History
Nov 09, 2025
Went Pending Inspection
$749,000
NWMLS #2450896
Nov 04, 2025
Listed
$749,000
NWMLS #2450896
More
Listing Details
  • Status
    Pending Inspection
  • Last Listed Price
    $749,000
  • Original Price
    Same as current
  • List Date
    November 4, 2025
  • Last Status Change
    November 10, 2025
  • Last Update
    November 10, 2025
  • Days on Market
    17 Days
  • Cumulative DOM
    5 Days
  • Pending Date
    November 9, 2025
  • Days to go Pending
    5
  • $/sqft (Total)
    $460/sqft
  • $/sqft (Finished)
    $460/sqft
  • Listing Source
  • MLS Number
    2450896
  • Listing Broker
    Sue Doepp
  • Listing Office
    RE/MAX Northwest
Monthly Payment Estimate
  • Principal and Interest
    $3,926 / month
  • HOA
    $125 / month
  • Property Taxes
    $591 / month
  • Homeowners Insurance
    $150 / month
  • TOTAL
    $4,792 / month

  • based on 20% down
    ($149,800)
  • and a
    6.85% Interest Rate
  • About:
    All calculations are estimates only and provided by Mainview LLC. Actual amounts will vary.
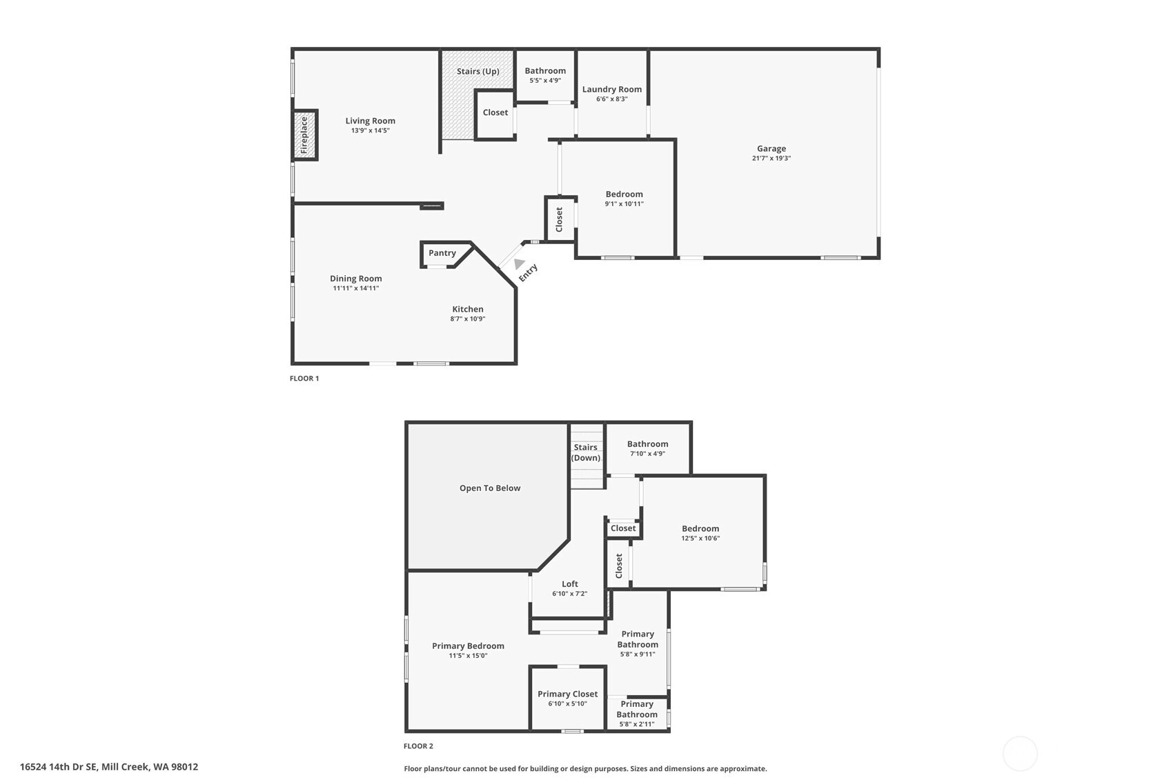
House Details
  • Sqft (Total)
    1,628 sqft
  • Sqft (Finished)
    1,628 sqft
  • Sqft (Unfinished)
    None
  • Property Type
    House
  • Sub Type
    2 Story
  • Bedrooms
    3 Bedrooms
  • Bathrooms
    2.5 Bathrooms
  • Lot
    4,792 sqft Lot
  • Lot Size Source
    Realist
  • Lot #
    32
  • Project
    Emerald Heights
  • Total Stories
    2 stories
  • Basement
    None
  • Sqft Source
    Realist
Property Tax Info
  • 2025 Property Taxes
    $7,092 / year
  • No Senior Exemption
Public Parcel Data & Maps
Schools
  • School District
    Everett
  • Elementary
    Woodside Elem
  • Middle
    Heatherwood Mid
  • High School
    Henry M. Jackson Hig
HOA
  • HOA Dues
    $125 / month
  • Fees Assessed
    Monthly
  • HOA Dues Include
    Common Area Maintenance
    Lawn Service
    Security
  • HOA Contact
    Scott Hameister 206-992-3941
  • Management Contact
Community Features
  • Community Features
    Athletic Court
    CCRs
    Club House
    Golf
    Park
    Playground
    Trail(s)
Parking
  • Covered
    2-Car
  • Types
    Attached Garage
  • Has Garage
    Yes
  • Nbr of Assigned Spaces
    2
Views
  • Territorial
Construction
  • Year Built
    1987
  • Home Builder
    Unspecified
Cooling
  • Includes
    Central A/C
Heating
  • Includes
    Forced Air
Interior
  • Flooring
    Hardwood
    Laminate
    Vinyl
    Carpet
  • Features
    Bath Off Primary
    Ceiling Fan(s)
    Double Pane/Storm Window
    Fireplace
    French Doors
    Loft
    Skylight(s)
    Vaulted Ceiling(s)
    Walk-In Closet(s)
    Water Heater
Property
  • Lot Features
    Corner Lot
    Curbs
    Paved
  • Site Features
    Cable TV
    Fenced-Partially
    High Speed Internet
    Patio
Appliances
  • Included
    Dishwasher(s)
    Disposal
    Dryer(s)
    Microwave(s)
    Refrigerator(s)
    Stove(s)/Range(s)
    Washer(s)
Terms
  • 3rd Party Approval Required)
    No
  • Bank Owned (REO)
    No
  • Complex FHA Availability
    Unspecified
  • Potential Terms
    Cash Out
    Conventional
    FHA
    VA Loan
Utilities
  • Energy
    Natural Gas
  • Sewer
    Sewer Connected
  • Water Source
    Public
Additional Info
  • Waterfront
    No
  • Air Conditioning (A/C)
    Yes
  • Buyer Broker's Compensation
    2.5%
  • MLS Area #
    Area 740
  • Number of Photos
    39
  • Last Modification Time
    Sunday, November 9, 2025 9:03 PM
  • System Listing ID
    5497985
Update Info
  • Pending Or Ctg
    2025-11-09 21:07:01
  • First For Sale
    2025-11-04 13:37:08
Listing details based on information submitted to the MLS GRID as of Sunday, November 9, 2025 9:03 PM. All data is obtained from various sources and may not have been verified by broker or MLS GRID. Supplied Open House Information is subject to change without notice. All information should be independently reviewed and verified for accuracy. Properties may or may not be listed by the office/agent presenting the information.
View
Sort

Sharing

 
Pending Inspection November 9, 2025
$749,000  
3 BR    2.5 BA    1,628 SQFT  
NWMLS #2450896. Sue Doepp, RE/MAX Northwest
Map
 
Listing information is provided by the listing agent except as follows: BuilderB indicates that our system has grouped this listing under a home builder name that doesn't match the name provided by the listing broker. DevelopmentD indicates that our system has grouped this listing under a development name that doesn't match the name provided by the listing broker.