to
Reset
Houses
Townhouses
Condos
Land
Price
to
SQFT
to
Bdrms
to
Baths
to
Lot
to
Yr Built
to
Sold
Listed within...
Listed at least...
Offer Review
New Construction
Waterfront
Short-Sales
REO
Parking
to
Unit Flr
to
Unit Nbr
Listings
Neighborhoods
Complexes
Developments
Cities
Counties
Zip Codes
Neighborhood · Condo · Development
School District
Zip Code
City
County
Builder
Listing Numbers
Broker LAG
Boundary Lines
Labels
View
Sort
Pending Went pending in 7 days
$1,050,000
4 Bedrooms
1.75 Bathrooms
1,560 Sqft House
Built 1960
9,948 Sqft Lot
2-Car Garage
PENDING SALE. This listing went Pending on November 11, 2025

Some pending sales don't become final. Contact Us if this property is really important to you so we can check on it right now. The seller has reached an agreement with a buyer to sell this property. If things go as planned, the sale will become final in the near future. The buyer and seller have agreed on a price but it's not public until the sale closes. The last published list price was $1,050,000.
Charming Lake Hills opportunity! Tucked at the end of a cul-de-sac in Bellevue, single-family home sits on an expansive 9,900+ sq ft lot. The floor plan offers great bones—light-filled living spaces, an easy flow between kitchen, dining, and living areas, and bedrooms grouped for convenience. Ready for updating and repairs, it’s a fantastic canvas to bring your vision to life, whether you refresh finishes, reimagine the kitchen, or open spaces for modern living. Outside, the larger lot provides room to play, garden, or plan future outdoor entertaining. Minutes to parks, trails, shopping, and major commutes, with Bellevue schools nearby. Bring your contractor and creativity—this is the Lake Hills fixer you’ve been waiting for.
Offer Review
No offer review date was specified
Listing source NWMLS MLS #
2452103
Listed by
Jeff Hemer, Northwest Lifestyles
Jeff Hoover, Northwest Lifestyles
Contact our
Bellevue
Real Estate Lead
John L. Scott
Phone...
Bedroom & Bathroom Layout
SECOND
BDRM
BDRM
BDRM
MAIN
FULL
BATH
LOWER
BDRM
¾
BATH
Property History
Nov 11, 2025
Went Pending
$1,050,000
NWMLS #2452103
Nov 04, 2025
Listed
$1,050,000
NWMLS #2452103
More
Listing Details
  • Status
    Pending
  • Last Listed Price
    $1,050,000
  • Original Price
    Same as current
  • List Date
    November 4, 2025
  • Last Status Change
    November 12, 2025
  • Last Update
    November 12, 2025
  • Days on Market
    21 Days
  • Cumulative DOM
    7 Days
  • Pending Date
    November 11, 2025
  • Days to go Pending
    7
  • $/sqft (Total)
    $673/sqft
  • $/sqft (Finished)
    $673/sqft
  • Listing Source
  • MLS Number
    2452103
  • Listing Broker
    Jeff Hemer
  • Listing Office
    Northwest Lifestyles
Monthly Payment Estimate
  • Principal and Interest
    $5,504 / month
  • Property Taxes
    $643 / month
  • Homeowners Insurance
    $205 / month
  • TOTAL
    $6,352 / month

  • based on 20% down
    ($210,000)
  • and a
    6.85% Interest Rate
  • About:
    All calculations are estimates only and provided by Mainview LLC. Actual amounts will vary.
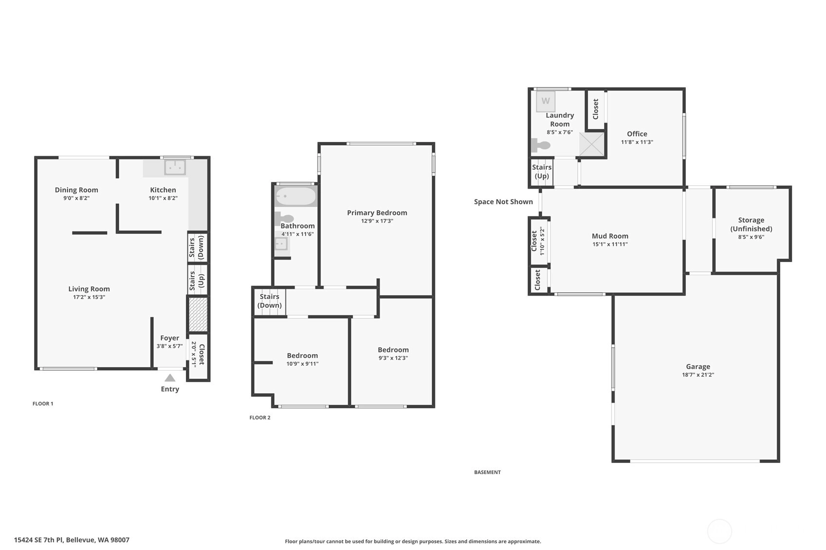
House Details
  • Sqft (Total)
    1,560 sqft
  • Sqft (Finished)
    1,560 sqft
  • Sqft (Unfinished)
    None
  • Property Type
    House
  • Sub Type
    Split Entry
  • Bedrooms
    4 Bedrooms
  • Bathrooms
    1.75 Bathrooms
  • Lot
    9,948 sqft Lot
  • Lot Size Source
    Realist
  • Lot #
    40
  • Project
    Lake Hills
  • Total Stories
    2 stories
  • Basement
    Finished
  • Sqft Source
    Realist
Property Tax Info
  • 2025 Property Taxes
    $7,719 / year
  • No Senior Exemption
Public Parcel Data & Maps
Schools
  • School District
    Bellevue
  • Elementary
    Buyer To Verify
  • Middle
    Buyer To Verify
  • High School
    Buyer To Verify
HOA
  • HOA Dues
    Unspecified
  • Fees Assessed
    Unspecified
  • HOA Dues Include
    Unspecified
  • HOA Contact
    Unspecified
  • Management Contact
Parking
  • Covered
    2-Car
  • Types
    Attached Garage
  • Has Garage
    Yes
  • Nbr of Assigned Spaces
    2
Views
  • Territorial
Construction
  • Year Built
    1960
  • Home Builder
    Unspecified
Cooling
  • Includes
    None
Heating
  • Includes
    Forced Air
Interior
  • Flooring
    Concrete
    Vinyl
  • Features
    Fireplace
Property
  • Lot Features
    Cul-De-Sac
    Curbs
    Paved
  • Site Features
    Deck
    Fenced-Partially
    Patio
Appliances
  • Included
    Washer(s)
Terms
  • 3rd Party Approval Required)
    No
  • Bank Owned (REO)
    No
  • Complex FHA Availability
    Unspecified
  • Potential Terms
    Cash Out
    Conventional
Utilities
  • Energy
    Electric
  • Sewer
    Sewer Connected
  • Water Source
    Public
Additional Info
  • Waterfront
    No
  • Air Conditioning (A/C)
    No
  • Buyer Broker's Compensation
    3%
  • MLS Area #
    Area 530
  • Number of Photos
    31
  • Last Modification Time
    Tuesday, November 11, 2025 6:20 PM
  • System Listing ID
    5498021
Update Info
  • Pending Or Ctg
    2025-11-11 18:26:58
  • First For Sale
    2025-11-04 15:06:15
Listing details based on information submitted to the MLS GRID as of Tuesday, November 11, 2025 6:20 PM. All data is obtained from various sources and may not have been verified by broker or MLS GRID. Supplied Open House Information is subject to change without notice. All information should be independently reviewed and verified for accuracy. Properties may or may not be listed by the office/agent presenting the information.
View
Sort

Sharing

 
Pending November 11, 2025
$1,050,000  
4 BR    1.75 BA    1,560 SQFT  
NWMLS #2452103. Jeff Hemer, Northwest Lifestyles
Map
 
Listing information is provided by the listing agent except as follows: BuilderB indicates that our system has grouped this listing under a home builder name that doesn't match the name provided by the listing broker. DevelopmentD indicates that our system has grouped this listing under a development name that doesn't match the name provided by the listing broker.