to
Reset
Houses
Townhouses
Condos
Land
Price
to
SQFT
to
Bdrms
to
Baths
to
Lot
to
Yr Built
to
Sold
Listed within...
Listed at least...
Offer Review
New Construction
Waterfront
Short-Sales
REO
Parking
to
Unit Flr
to
Unit Nbr
Listings
Neighborhoods
Complexes
Developments
Cities
Counties
Zip Codes
Neighborhood · Condo · Development
School District
Zip Code
City
County
Builder
Listing Numbers
Broker LAG
Boundary Lines
Labels
View
Sort
Pending Went pending in 24 days
$390,000
3 Bedrooms
2.75 Bathrooms
1,989 Sqft House
Built 1980
20,400 Sqft Lot
3-Car Garage
HOA Dues $19 / month
PENDING SALE. This listing went Pending on November 28, 2025

Some pending sales don't become final. Contact Us if this property is really important to you so we can check on it right now. The seller has reached an agreement with a buyer to sell this property. If things go as planned, the sale will become final in the near future. The buyer and seller have agreed on a price but it's not public until the sale closes. The last published list price was $390,000.
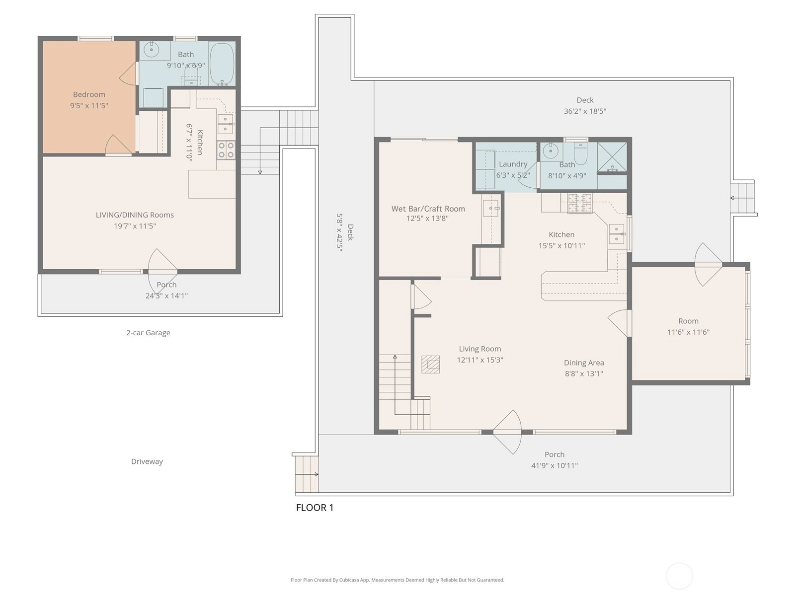
Charming European inspired Chalet home in Lakebay on private setting! Lots of potential here; ready for your care, vision & fresh paint. Cozy wood stove in high ceilinged living room/dining. Wet Bar/craft room with slider to deck and additional room on main floor for flexible living. 2 bedrooms upstairs w/ full bath adjacent to both. 480 square ft carriage house over spacious 2 car garage too, for studio space or office has bedroom & full bath. Shy half acre has park-like vibe, currently w/ mature landscaping, circular driveway & outbuildings--it may be an opportunity for creating something special. Septic system upgraded in 2021. Minutes away to Palmer Lake and private park, play area and dock. Home is as is, where is.
Offer Review
No offer review date was specified
Listing source NWMLS MLS #
2452082
Listed by
Kate Wilson, Windermere RE West Sound Inc.
Contact our
Lakebay
Real Estate Lead
RE/MAX Northwest Realtors
Phone...
Bedroom & Bathroom Layout
SECOND
BDRM
BDRM
BDRM
FULL
BATH
FULL
BATH
MAIN
¾
BATH
Property History
Dec 05, 2025
Went Pending
$390,000
NWMLS #2452082
Nov 28, 2025
Went Pending Inspection
$390,000
NWMLS #2452082
Nov 04, 2025
Listed
$390,000
NWMLS #2452082
More
Listing Details
  • Status
    Pending
  • Last Listed Price
    $390,000
  • Original Price
    Same as current
  • List Date
    November 4, 2025
  • Last Status Change
    December 5, 2025
  • Last Update
    December 5, 2025
  • Days on Market
    33 Days
  • Cumulative DOM
    24 Days
  • Pending Date
    November 28, 2025
  • Days to go Pending
    24
  • $/sqft (Total)
    $196/sqft
  • $/sqft (Finished)
    $196/sqft
  • Listing Source
  • MLS Number
    2452082
  • Listing Broker
    Kate Wilson
  • Listing Office
    Windermere RE West Sound Inc.
Monthly Payment Estimate
  • Principal and Interest
    $2,044 / month
  • HOA
    $19 / month
  • Property Taxes
    $365 / month
  • Homeowners Insurance
    $90 / month
  • TOTAL
    $2,518 / month

  • based on 20% down
    ($78,000)
  • and a
    6.85% Interest Rate
  • About:
    All calculations are estimates only and provided by Mainview LLC. Actual amounts will vary.
House Details
  • Sqft (Total)
    1,989 sqft
  • Sqft (Finished)
    1,989 sqft
  • Sqft (Unfinished)
    None
  • Property Type
    House
  • Sub Type
    2 Story
  • Bedrooms
    3 Bedrooms
  • Bathrooms
    2.75 Bathrooms
  • Lot
    20,400 sqft Lot
  • Lot Size Source
    Title
  • Lot #
    Unspecified
  • Project
    Unspecified
  • Total Stories
    2 stories
  • Basement
    None
  • Sqft Source
    Title
Property Tax Info
  • 2025 Property Taxes
    $4,377 / year
  • No Senior Exemption
Public Parcel Data & Maps
Schools
  • School District
    Peninsula
  • Elementary
    Buyer To Verify
  • Middle
    Key Peninsula Mid
  • High School
    Peninsula High
HOA
  • HOA Dues
    $19 / month
  • Fees Assessed
    Annually
  • HOA Dues Include
    Common Area Maintenance
  • HOA Contact
    Unspecified
  • Management Contact
Community Features
  • Community Features
    Boat Launch
    CCRs
    Park
    Playground
Parking
  • Covered
    3-Car
  • Types
    Detached Carport
    Driveway
    Detached Garage
    RV Parking
  • Has Garage
    Yes
  • Nbr of Assigned Spaces
    3
Views
  • Territorial
Construction
  • Year Built
    1980
  • Home Builder
    Unspecified
Cooling
  • Includes
    None
Heating
  • Includes
    Baseboard
    Stove/Free Standing
Interior
  • Flooring
    Hardwood
    Laminate
    Vinyl
    Carpet
  • Features
    Second Kitchen
    Ceiling Fan(s)
    Double Pane/Storm Window
    Dining Room
    Fireplace
    Skylight(s)
    Vaulted Ceiling(s)
    Water Heater
Property
  • Lot Features
    Drought Resistant Landscape
    Paved
    Secluded
  • Site Features
    Cable TV
    Deck
    High Speed Internet
    Outbuildings
    Patio
    RV Parking
    Shop
Appliances
  • Included
    Dishwasher(s)
    Disposal
    Double Oven
    Dryer(s)
    Refrigerator(s)
    Stove(s)/Range(s)
    Washer(s)
Terms
  • 3rd Party Approval Required)
    No
  • Bank Owned (REO)
    No
  • Complex FHA Availability
    Unspecified
  • Potential Terms
    Cash Out
    Conventional
Utilities
  • Energy
    Electric
    Wood
  • Sewer
    Septic Tank
  • Water Source
    Public
Additional Info
  • Waterfront
    No
  • Air Conditioning (A/C)
    No
  • Buyer Broker's Compensation
    2.5%
  • MLS Area #
    Area 4
  • Number of Photos
    26
  • Last Modification Time
    Friday, December 5, 2025 10:17 AM
  • System Listing ID
    5498067
Update Info
  • Pending Or Ctg
    2025-12-05 10:22:54
  • First For Sale
    2025-11-04 17:10:15
Listing details based on information submitted to the MLS GRID as of Friday, December 5, 2025 10:17 AM. All data is obtained from various sources and may not have been verified by broker or MLS GRID. Supplied Open House Information is subject to change without notice. All information should be independently reviewed and verified for accuracy. Properties may or may not be listed by the office/agent presenting the information.
View
Sort

Sharing

 
Pending November 28, 2025
$390,000  
3 BR    2.75 BA    1,989 SQFT  
NWMLS #2452082. Kate Wilson, Windermere RE West Sound Inc.
Map
 
Listing information is provided by the listing agent except as follows: BuilderB indicates that our system has grouped this listing under a home builder name that doesn't match the name provided by the listing broker. DevelopmentD indicates that our system has grouped this listing under a development name that doesn't match the name provided by the listing broker.