to
Reset
Houses
Townhouses
Condos
Land
Price
to
SQFT
to
Bdrms
to
Baths
to
Lot
to
Yr Built
to
Sold
Listed within...
Listed at least...
Offer Review
New Construction
Waterfront
Short-Sales
REO
Parking
to
Unit Flr
to
Unit Nbr
Listings
Neighborhoods
Complexes
Developments
Cities
Counties
Zip Codes
Neighborhood · Condo · Development
School District
Zip Code
City
County
Builder
Listing Numbers
Broker LAG
Boundary Lines
Labels
View
Sort
Pending Went pending in 56 days
$475,000
Originally $485,000
3 Bedrooms
2.25 Bathrooms
1,768 Sqft House
Built 2019
2,614 Sqft Lot
2-Car Garage
HOA Dues $122 / month
PENDING SALE. This listing went Pending on January 1, 2026

Some pending sales don't become final. Contact Us if this property is really important to you so we can check on it right now. The seller has reached an agreement with a buyer to sell this property. If things go as planned, the sale will become final in the near future. The buyer and seller have agreed on a price but it's not public until the sale closes. The last published list price was $475,000.
Stylish and modern 3-bed home in Manette, Bremerton. Built in 2019, this well-maintained 3-bedroom, 2.25-bathroom home offers modern style and easy living. Enjoy an open floor plan, stainless steel appliances, and a spacious primary suite with a walk-in closet. Features include a 2-car garage, low-maintenance yard, and affordable HOA. Conveniently located near PSNS, downtown Bremerton, and the Seattle ferry, this home combines comfort, value, and location in one perfect package. Say hello to an easy lifestyle- you deserve it!
Offer Review
No offer review date was specified
Listing source NWMLS MLS #
2448946
Listed by
Randi Walker, Keller Williams West Sound
Contact our
Bremerton
Real Estate Lead
My Kitsap Homes, LLC
Phone...
Bedroom & Bathroom Layout
SECOND
BDRM
BDRM
BDRM
FULL
BATH
¾
BATH
LOWER
½
BATH
Property History
Jan 05, 2026
Went Pending
$475,000
NWMLS #2448946
Jan 02, 2026
Went Pending Inspection
$475,000
NWMLS #2448946
Dec 06, 2025
Price Reduction arrow_downward
$475,000
NWMLS #2448946
Nov 06, 2025
Listed
$485,000
NWMLS #2448946
Dec 19, 2019
Sold
$340,800
More
Listing Details
  • Status
    Pending
  • Last Listed Price
    $475,000
  • Original Price
    $485,000
  • List Date
    November 6, 2025
  • Last Status Change
    January 6, 2026
  • Last Update
    January 6, 2026
  • Days on Market
    84 Days
  • Cumulative DOM
    56 Days
  • Pending Date
    January 1, 2026
  • Days to go Pending
    56
  • $/sqft (Total)
    $269/sqft
  • $/sqft (Finished)
    $269/sqft
  • Listing Source
  • MLS Number
    2448946
  • Listing Broker
    Randi Walker
  • Listing Office
    Keller Williams West Sound
Monthly Payment Estimate
  • Principal and Interest
    $2,490 / month
  • HOA
    $122 / month
  • Property Taxes
    $278 / month
  • Homeowners Insurance
    $101 / month
  • TOTAL
    $2,991 / month

  • based on 20% down
    ($95,000)
  • and a
    6.85% Interest Rate
  • About:
    All calculations are estimates only and provided by Mainview LLC. Actual amounts will vary.
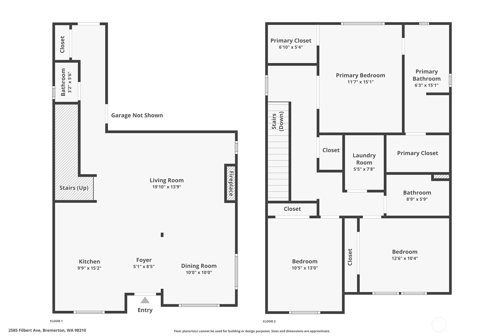
House Details
  • Sqft (Total)
    1,768 sqft
  • Sqft (Finished)
    1,768 sqft
  • Sqft (Unfinished)
    None
  • Property Type
    House
  • Sub Type
    2 Story
  • Bedrooms
    3 Bedrooms
  • Bathrooms
    2.25 Bathrooms
  • Lot
    2,614 sqft Lot
  • Lot Size Source
    County
  • Lot #
    Unspecified
  • Project
    Unspecified
  • Total Stories
    2 stories
  • Sqft Source
    County
Property Tax Info
  • 2025 Property Taxes
    $3,334 / year
  • No Senior Exemption
Public Parcel Data & Maps
Schools
  • School District
    Bremerton #100c
  • Elementary
    View Ridge Elem
  • Middle
    Mtn View Mid
  • High School
    Bremerton High
HOA
  • HOA Dues
    $122 / month
  • Fees Assessed
    Monthly
  • HOA Dues Include
    Common Area Maintenance
  • HOA Contact
    Unspecified
  • Management Contact
Community Features
  • Community Features
    CCRs
Parking
  • Covered
    2-Car
  • Types
    Attached Garage
  • Has Garage
    Yes
  • Nbr of Assigned Spaces
    2
Construction
  • Year Built
    2019
  • Home Builder
    Unspecified
Cooling
  • Includes
    None
Heating
  • Includes
    Forced Air
Interior
  • Features
    Bath Off Primary
    Double Pane/Storm Window
    Fireplace
    French Doors
    Sprinkler System
    Walk-In Closet(s)
Property
Appliances
  • Included
    Dishwasher(s)
    Disposal
    Dryer(s)
    Microwave(s)
    Refrigerator(s)
    See Remarks
    Stove(s)/Range(s)
    Washer(s)
Terms
  • 3rd Party Approval Required)
    No
  • Bank Owned (REO)
    No
  • Complex FHA Availability
    Unspecified
  • Potential Terms
    Cash Out
    Conventional
    FHA
    USDA Loan
    VA Loan
Utilities
  • Energy
    Electric
    Natural Gas
  • Sewer
    Sewer Connected
  • Water Source
    Public
Additional Info
  • Waterfront
    No
  • Air Conditioning (A/C)
    No
  • Buyer Broker's Compensation
    2.5%
  • MLS Area #
    Area 149
  • Number of Photos
    38
  • Last Modification Time
    Monday, January 5, 2026 7:08 PM
  • System Listing ID
    5498598
Update Info
  • Pending Or Ctg
    2026-01-05 19:21:18
  • Price Reduction
    2025-12-06 10:22:17
  • First For Sale
    2025-11-06 11:23:45
Listing details based on information submitted to the MLS GRID as of Monday, January 5, 2026 7:08 PM. All data is obtained from various sources and may not have been verified by broker or MLS GRID. Supplied Open House Information is subject to change without notice. All information should be independently reviewed and verified for accuracy. Properties may or may not be listed by the office/agent presenting the information.
View
Sort

Sharing

 
Pending January 1, 2026
$475,000  
3 BR    2.25 BA    1,768 SQFT  
NWMLS #2448946. Randi Walker, Keller Williams West Sound
Map
 
Listing information is provided by the listing agent except as follows: BuilderB indicates that our system has grouped this listing under a home builder name that doesn't match the name provided by the listing broker. DevelopmentD indicates that our system has grouped this listing under a development name that doesn't match the name provided by the listing broker.