to
Reset
Houses
Townhouses
Condos
Land
Price
to
SQFT
to
Bdrms
to
Baths
to
Lot
to
Yr Built
to
Sold
Listed within...
Listed at least...
Offer Review
New Construction
Waterfront
Short-Sales
REO
Parking
to
Unit Flr
to
Unit Nbr
Listings
Neighborhoods
Complexes
Developments
Cities
Counties
Zip Codes
Neighborhood · Condo · Development
School District
Zip Code
City
County
Builder
Listing Numbers
Broker LAG
Boundary Lines
Labels
View
Sort
For Sale 134 Days Online
$599,000
Originally $664,000
2 Bedrooms
1.75 Bathrooms
1,215 Sqft House
New Construction
Built 2025
1,000 Sqft Lot
1-Car Garage
HOA Dues $30 / month
Only one home remains in this newly built 3-home community. Don’t miss the final opportunity to own modern new construction with the rare combination of a covered garage, private driveway, and fenced yard this close to the city. Located in South Seattle’s vibrant Brighton neighborhood just minutes from Seward Park, this home puts everything you love within easy reach—morning coffee in Hillman City, dinner in Columbia City, and a quick 20-minute commute to downtown. Step inside to bright, open-concept living where the kitchen, dining, and lounge areas flow seamlessly—perfect for entertaining or comfortable everyday living. Two spacious bedrooms offer peaceful retreats, while expansive windows capture territorial views to the south, north, and east. Outside, enjoy the privacy of your fully fenced yard and sun-filled deck—ideal for gardening, pets, weekend mornings, or summer evenings outdoors. Secure parking, dedicated outdoor space, and thoughtful modern design make this home a standout in one of South Seattle’s most connected neighborhoods.
Offer Review
Will review offers when submitted
Listing source NWMLS MLS #
2453073
Listed by
George Clouse, Real Broker LLC
Nicole Dankworth, Real Broker LLC
Contact our
Brighton
Real Estate Lead
John L. Scott
Phone...
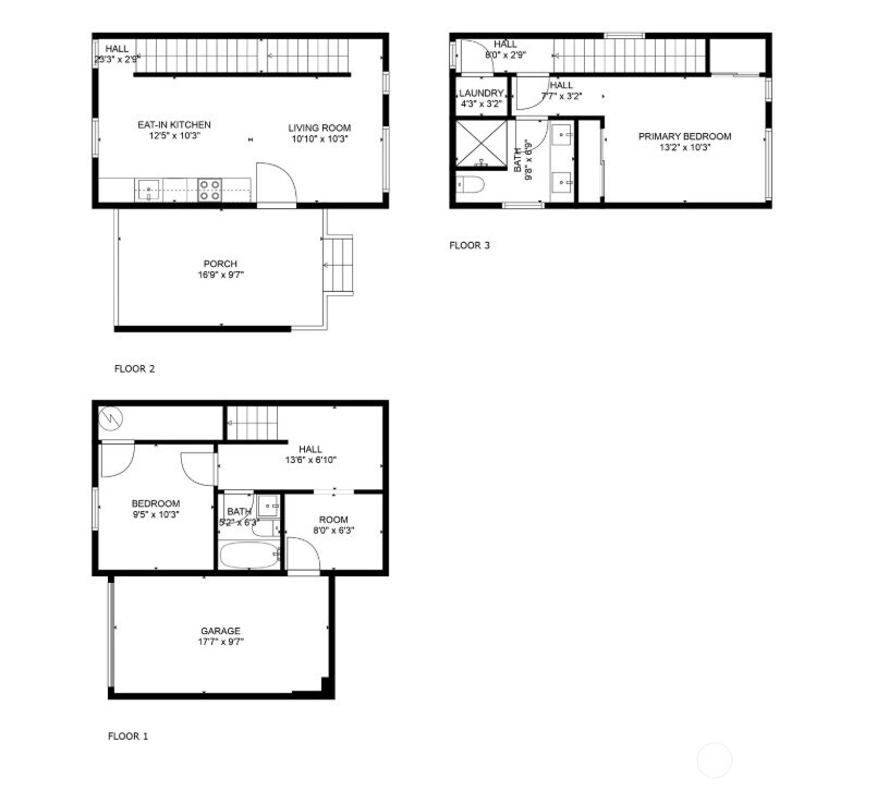
Bedroom & Bathroom Layout
THIRD
BDRM
¾
BATH
SECOND
LOWER
BDRM
FULL
BATH
Property History
Mar 11, 2026
Price Reduction arrow_downward
$599,000
NWMLS #2453073
Mar 02, 2026
Price Reduction arrow_downward
$625,000
NWMLS #2453073
Jan 30, 2026
Price Reduction arrow_downward
$649,000
NWMLS #2453073
Jan 14, 2026
Price Reduction arrow_downward
$659,000
NWMLS #2453073
Nov 06, 2025
Listed
$664,000
NWMLS #2453073
Mar 11, 2026
Price Reduction arrow_downward
$599,000
Mar 02, 2026
Price Reduction arrow_downward
$625,000
Jan 30, 2026
Price Reduction arrow_downward
$649,000
Jan 14, 2026
Price Reduction arrow_downward
$659,000
Nov 06, 2025
Listed
$664,000
Oct 25, 2025
Price Reduction arrow_downward
$699,000
NWMLS #2435725
Sep 19, 2025
Listed
$709,000
NWMLS #2435725
Oct 25, 2025
Price Reduction arrow_downward
$699,000
NWMLS #2435737
Sep 19, 2025
Listed
$709,000
NWMLS #2435737
More
Listing Details
  • Status
    For Sale
  • Price
    $599,000
  • Original Price
    $664,000
  • List Date
    November 5, 2025
  • Last Status Change
    November 6, 2025
  • Last Update
    March 14, 2026
  • Days on Market
    134 Days
  • Cumulative DOM
    134 Days
  • $/sqft (Total)
    $493/sqft
  • $/sqft (Finished)
    Same
  • Listing Source
  • MLS Number
    2453073
  • Listing Broker
    George Clouse
  • Listing Office
    Real Broker LLC
Monthly Payment Estimate
  • Principal and Interest
    $3,140 / month
  • HOA
    $30 / month
  • Property Taxes
    $0 / month
  • Homeowners Insurance
    $122 / month
  • TOTAL
    $3,292 / month

  • based on 20% down
    ($119,800)
  • and a
    6.85% Interest Rate
  • About:
    All calculations are estimates only and provided by Mainview LLC. Actual amounts will vary.
House Details
  • Sqft (Total)
    1,215 sqft
  • Sqft (Finished)
    1,215 sqft
  • Sqft (Unfinished)
    None
  • Property Type
    House
  • Sub Type
    Tri-Level
  • Bedrooms
    2 Bedrooms
  • Bathrooms
    1.75 Bathrooms
  • Lot
    1,000 sqft Lot
  • Lot Size Source
    Condo docs. (est.)
  • Lot #
    Unspecified
  • Project
    Unspecified
  • Total Stories
    3 stories
  • Basement
    None
  • Sqft Source
    Builder
Property Tax Info
  • 2025 Property Taxes
    $1 / year
  • No Senior Exemption
Public Parcel Data & Maps
Schools
  • School District
    Seattle
  • Elementary
    Unspecified
  • Middle
    Unspecified
  • High School
    Unspecified
HOA
  • HOA Dues
    $30 / month
  • Fees Assessed
    Monthly
  • HOA Dues Include
    Common Area Maintenance
  • HOA Contact
    Unspecified
  • Management Contact
Parking
  • Covered
    1-Car
  • Types
    Attached Garage
  • Has Garage
    Yes
  • Nbr of Assigned Spaces
    1
Views
  • Territorial
Construction
  • Year Built
    2025
  • New Construction
    Yes
  • Construction State
    Unspecified
  • Home Builder
    Unspecified
Cooling
  • Includes
    Ductless
Heating
  • Includes
    Ductless
Interior
  • Flooring
    Engineered Hardwood
Property
  • Lot Features
    Paved
    Sidewalk
Appliances
  • Included
    Dishwasher
    Disposal
    Refrigerator
    Stove(s)/Range(s)
Terms
  • 3rd Party Approval Required)
    No
  • Bank Owned (REO)
    No
  • Complex FHA Availability
    Unspecified
  • Potential Terms
    Cash
    Conventional
Utilities
  • Energy
    Electric
  • Sewer
    Sewer Connected
  • Water Source
    Public
Additional Info
  • Waterfront
    No
  • Air Conditioning (A/C)
    Yes
  • Buyer Broker's Compensation
    2.5%
  • MLS Area #
    Area 380
  • Number of Photos
    39
  • Last Modification Time
    Saturday, March 14, 2026 3:23 PM
  • System Listing ID
    5498666
Update Info
  • Price Reduction
    2026-03-11 10:21:52
  • First For Sale
    2025-11-06 13:03:56
Listing details based on information submitted to the MLS GRID as of Saturday, March 14, 2026 3:23 PM. All data is obtained from various sources and may not have been verified by broker or MLS GRID. Supplied Open House Information is subject to change without notice. All information should be independently reviewed and verified for accuracy. Properties may or may not be listed by the office/agent presenting the information.
View
Sort

Sharing

 
For Sale 134 Days Online
$599,000     ▼ Price Reduction $26K
2 BR    1.75 BA    1,215 SQFT  
Offer Review: Anytime
NWMLS #2453073. George Clouse, Real Broker LLC
Map
 
Listing information is provided by the listing agent except as follows: BuilderB indicates that our system has grouped this listing under a home builder name that doesn't match the name provided by the listing broker. DevelopmentD indicates that our system has grouped this listing under a development name that doesn't match the name provided by the listing broker.