to
Reset
Houses
Townhouses
Condos
Land
Price
to
SQFT
to
Bdrms
to
Baths
to
Lot
to
Yr Built
to
Sold
Listed within...
Listed at least...
Offer Review
New Construction
Waterfront
Short-Sales
REO
Parking
to
Unit Flr
to
Unit Nbr
Listings
Neighborhoods
Complexes
Developments
Cities
Counties
Zip Codes
Neighborhood · Condo · Development
School District
Zip Code
City
County
Builder
Listing Numbers
Broker LAG
Boundary Lines
Labels
View
Sort
Sold Closed December 10, 2025
$2,205,220
6 Bedrooms
2.75 Bathrooms
2,890 Sqft House
Built 1969
8,699 Sqft Lot
2-Car Garage
SALE HISTORY
List price was $2,028,000
It took 2 days to go pending.
Then 31 days to close at $2,205,220
Closed at $763/SQFT.
Discover an exceptional opportunity in Somerset, one of Bellevue’s most sought-after neighborhoods! This beautifully maintained 1969 home boasts SPECTACULAR panoramic west-facing views of Lake Washington, DT Seattle, DT Bellevue, and the Olympics. Sunlit and solidly built, enjoy as is with a few updates or remodel to maximize the breathtaking sunsets and unrivaled location. With main level living featuring 3 bedrooms and gracious gathering spaces plus downstairs offering 3 more bedrooms, a huge bonus room, abundant storage, and great multigenerational/MIL possibilities, you can't go wrong! Close to top rated Bellevue schools, parks, community pool, and quick freeway access for easy commutes. Hurry - don't miss this one!
Offer Review Date
This listing's offer review date was Sunday, November 9, 2025.
Listing source NWMLS MLS #
2452665
Listed by
Janet Bell, Windermere Mercer Island
Julie Wilson, Windermere Mercer Island
Buyer's broker
Huiquan Xu, Best Choice Realty LLC
Contact our
Bellevue
Real Estate Lead
John L. Scott
Phone...
Time Adjusted Estimated Value
County Wide
  • In
    King County WA
  • prices for
    Single Family Homes
  • have changed
    10%
  • since
    Dec 10, 2025
  • so a sale price of
    $2,205,220
  • would be approximately this amount today
    $2,429,093
City Wide
  • In
    Bellevue WA
  • prices for
    Single Family Homes
  • have changed
    -0%
  • since
    Dec 10, 2025
  • so a sale price of
    $2,205,220
  • would be approximately this amount today
    $2,205,215
Assumptions: The original sale amount reflected a normal arms length sale. Any major updates would add to the value. Any damage or deferred maintenance would subtract from the value.
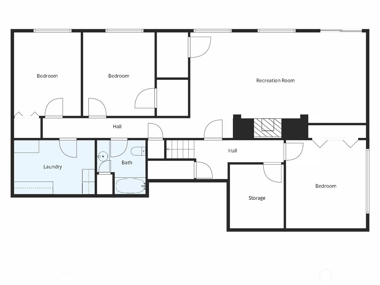
Bedroom & Bathroom Layout
MAIN
BDRM
BDRM
BDRM
FULL
BATH
¾
BATH
LOWER
BDRM
BDRM
BDRM
FULL
BATH
Property History
Dec 12, 2025
Sold
$2,205,220
NWMLS #2452665
Nov 10, 2025
Went Pending
$2,028,000
NWMLS #2452665
Nov 07, 2025
Listed
$2,028,000
NWMLS #2452665
More
Listing Details
  • Sale Price
    $2,205,220
  • Closing Date
    December 10, 2025
  • Last List Price
    $2,028,000
  • Original Price
    Same
  • List Date
    November 7, 2025
  • Pending Date
    November 9, 2025
  • Days to go Pending
    2 days
  • $/sqft (Total)
    $763/sqft
  • $/sqft (Finished)
    $763/sqft
  • Listing Source
  • MLS Number
    2452665
  • Listing Broker
    Janet Bell
  • Listing Office
    Windermere Mercer Island
  • Buyer's Broker
    Huiquan Xu
  • Buyer Broker's Firm
    Best Choice Realty LLC
Monthly Payment Estimate
  • Principal and Interest
    $11,560 / month
  • Property Taxes
    $1,129 / month
  • Homeowners Insurance
    $417 / month
  • TOTAL
    $13,106 / month

  • based on 20% down
    ($441,044)
  • and a
    6.85% Interest Rate
  • About:
    All calculations are estimates only and provided by Mainview LLC. Actual amounts will vary.
House Details
  • Sqft (Total)
    2,890 sqft
  • Sqft (Finished)
    2,890 sqft
  • Sqft (Unfinished)
    None
  • Property Type
    House
  • Sub Type
    1 Story + Basement
  • Bedrooms
    6 Bedrooms
  • Bathrooms
    2.75 Bathrooms
  • Lot
    8,699 sqft Lot
  • Lot Size Source
    King County Records
  • Lot #
    95
  • Project
    Somerset 04
  • Total Stories
    2 stories
  • Basement
    Daylight
    Finished
  • Sqft Source
    King County Records
Property Tax Info
  • 2025 Property Taxes
    $13,550 / year
  • No Senior Exemption
Public Parcel Data & Maps
Schools
  • School District
    Bellevue
  • Elementary
    Somerset Elem
  • Middle
    Tyee Mid
  • High School
    Newport Snr High
HOA
  • HOA Dues
    Unspecified
  • Fees Assessed
    Unspecified
  • HOA Dues Include
    Unspecified
  • HOA Contact
    Unspecified
  • Management Contact
    Unspecified
Parking
  • Covered
    2-Car
  • Types
    Driveway
    Attached Garage
  • Has Garage
    Yes
  • Nbr of Assigned Spaces
    2
Views
  • City
    Lake
    Mountain(s)
    Territorial
Construction
  • Year Built
    1969
  • Home Builder
    Unspecified
Cooling
  • Includes
    Heat Pump
Heating
  • Includes
    Forced Air
Interior
  • Flooring
    Stone
    Vinyl Plank
    Carpet
  • Features
    Bath Off Primary
    Double Pane/Storm Window
    Dining Room
    Fireplace
    Security System
    Vaulted Ceiling(s)
    Walk-In Closet(s)
    Water Heater
Property
  • Lot Features
    Curbs
    Paved
  • Site Features
    Deck
    Fenced-Partially
    Gas Available
    High Speed Internet
Appliances
  • Included
    Dishwasher(s)
    Disposal
    Dryer(s)
    Refrigerator(s)
    Stove(s)/Range(s)
    Washer(s)
Terms
  • Bank Owned (REO)
    No
Utilities
  • Energy
    Electric
    Natural Gas
  • Sewer
    Sewer Connected
  • Water Source
    Public
Additional Info
  • Waterfront
    No
  • Air Conditioning (A/C)
    Yes
  • Buyer Broker's Compensation
    2.5%
  • MLS Area #
    Area 500
  • Number of Photos
    37
  • Last Modification Time
    Saturday, January 10, 2026 4:03 AM
  • System Listing ID
    5499186
Update Info
  • Closed
    2025-12-12 16:39:55
  • Pending Or Ctg
    2025-11-10 11:49:37
  • First For Sale
    2025-11-07 15:27:09
Listing details based on information submitted to the MLS GRID as of Saturday, January 10, 2026 4:03 AM. All data is obtained from various sources and may not have been verified by broker or MLS GRID. Supplied Open House Information is subject to change without notice. All information should be independently reviewed and verified for accuracy. Properties may or may not be listed by the office/agent presenting the information.
View
Sort

Sharing

 
Sold December 10, 2025
$2,205,220   $2,028,000
6 BR    2.75 BA    2,890 SQFT  
NWMLS #2452665. Janet Bell, Windermere Mercer Island
Map
 
Listing information is provided by the listing agent except as follows: BuilderB indicates that our system has grouped this listing under a home builder name that doesn't match the name provided by the listing broker. DevelopmentD indicates that our system has grouped this listing under a development name that doesn't match the name provided by the listing broker.