to
Reset
Houses
Townhouses
Condos
Land
Price
to
SQFT
to
Bdrms
to
Baths
to
Lot
to
Yr Built
to
Sold
Listed within...
Listed at least...
Offer Review
New Construction
Waterfront
Short-Sales
REO
Parking
to
Unit Flr
to
Unit Nbr
Listings
Neighborhoods
Complexes
Developments
Cities
Counties
Zip Codes
Neighborhood · Condo · Development
School District
Zip Code
City
County
Builder
Listing Numbers
Broker LAG
Boundary Lines
Labels
View
Sort
For Sale 29 Days Online
$988,000
Originally $994,900
3 Bedrooms
2.5 Bathrooms
1,803 Sqft House
Built 2024
1,400 Sqft Lot
No Garage
WELCOME HOME! This elevated, free-standing, luxurious 3 bed/2.5 bath home seamlessly blends luxury, function, & style. This NEW, single-family home will knock your socks off! Enjoy EV charging, high-end finishes, 2 west-facing decks w/ stunning sunset views, & fenced yard/dog run. Step into a chef-inspired kitchen featuring: spacious pantry, quartz island, open-concept living/dining area + 1/2 bath. Enjoy sun-filled entertaining or cozy up to your dreamy fireplace. The 2nd level offers two large bedrooms (one w/ deck), + full bath. Upstairs: Primary suite is a TRUE RETREAT— bask in luxury: 5-piece bath, expansive walk-in closet, & private deck with VIEWS of Puget Sound/Olympic Mountains. Blocks from Lincoln Park, Colman Pool, Ferry & Alki.
Offer Review
Will review offers when submitted
Listing source NWMLS MLS #
2453602
Listed by
Candice L Oftebro, COMPASS
Contact our
West Seattle
Real Estate Lead
John L. Scott
Phone...
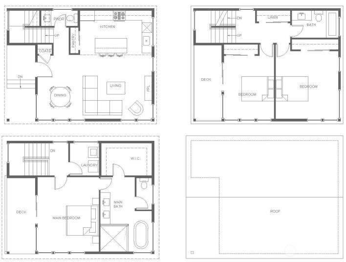
Bedroom & Bathroom Layout
THIRD
SECOND
BDRM
BDRM
BDRM
FULL
BATH
FULL
BATH
MAIN
½
BATH
Property History
Nov 24, 2025
Price Reduction arrow_downward
$988,000
NWMLS #2453602
Nov 08, 2025
Listed
$994,900
NWMLS #2453602
Aug 07, 2025
Listed
$994,900
NWMLS #2418392
Oct 16, 2024
Sold
$975,000
Sep 12, 2024
Went Pending
$1,039,900
Sep 04, 2024
Listed
$1,039,900
Jul 17, 2024
Price Reduction arrow_downward
$1,098,900
NWMLS #2233674
May 10, 2024
Listed
$1,149,900
NWMLS #2233674
More
Listing Details
  • Status
    For Sale
  • Price
    $988,000
  • Original Price
    $994,900
  • List Date
    November 8, 2025
  • Last Status Change
    November 8, 2025
  • Last Update
    December 3, 2025
  • Days on Market
    29 Days
  • Cumulative DOM
    122 Days
  • $/sqft (Total)
    $548/sqft
  • $/sqft (Finished)
    $548/sqft
  • Listing Source
  • MLS Number
    2453602
  • Listing Broker
    Candice L Oftebro
  • Listing Office
    COMPASS
Monthly Payment Estimate
  • Principal and Interest
    $5,179 / month
  • Property Taxes
    $493 / month
  • Homeowners Insurance
    $194 / month
  • TOTAL
    $5,866 / month

  • based on 20% down
    ($197,600)
  • and a
    6.85% Interest Rate
  • About:
    All calculations are estimates only and provided by Mainview LLC. Actual amounts will vary.
House Details
  • Sqft (Total)
    1,803 sqft
  • Sqft (Finished)
    1,803 sqft
  • Sqft (Unfinished)
    None
  • Property Type
    House
  • Sub Type
    Tri-Level
  • Bedrooms
    3 Bedrooms
  • Bathrooms
    2.5 Bathrooms
  • Lot
    1,400 sqft Lot
  • Lot Size Source
    KCR
  • Lot #
    Unspecified
  • Project
    Unspecified
  • Total Stories
    3 stories
  • Basement
    None
  • Sqft Source
    KCR
Property Tax Info
  • 2025 Property Taxes
    $5,916 / year
  • No Senior Exemption
Public Parcel Data & Maps
Schools
  • School District
    Seattle
  • Elementary
    Gatewood
  • Middle
    Madison Mid
  • High School
    West Seattle High
HOA
  • HOA Dues
    Unspecified
  • Fees Assessed
    Unspecified
  • HOA Dues Include
    Unspecified
  • HOA Contact
    Unspecified
  • Management Contact
Community Features
  • Community Features
    CCRs
Parking
  • Covered
    Unspecified
  • Types
    Off Street
  • Has Garage
    No
Views
  • Mountain(s)
    Partial
    Sound
    Territorial
Construction
  • Year Built
    2024
  • New Construction
    No
  • Home Builder
    Unspecified
Cooling
  • Includes
    Ductless
Heating
  • Includes
    Ductless
    Radiant
    Wall Unit(s)
Interior
  • Flooring
    Ceramic Tile
    Vinyl Plank
  • Features
    Bath Off Primary
    Ceiling Fan(s)
    Double Pane/Storm Window
    Dining Room
    Fireplace
    High Tech Cabling
    Vaulted Ceiling(s)
    Walk-In Closet(s)
    Water Heater
Property
  • Lot Features
    Alley
    Curbs
    Paved
    Sidewalk
  • Site Features
    Cable TV
    Deck
    Dog Run
    Electric Car Charging
    Fenced-Fully
    High Speed Internet
Appliances
  • Included
    Dishwasher(s)
    Disposal
    Dryer(s)
    Microwave(s)
    Refrigerator(s)
    Stove(s)/Range(s)
    Washer(s)
Terms
  • 3rd Party Approval Required)
    No
  • Bank Owned (REO)
    No
  • Complex FHA Availability
    Unspecified
  • Potential Terms
    Cash Out
    Conventional
    FHA
    VA Loan
Utilities
  • Energy
    Electric
  • Sewer
    Sewer Connected
  • Water Source
    Public
Additional Info
  • Waterfront
    No
  • Air Conditioning (A/C)
    Yes
  • Buyer Broker's Compensation
    2.5%
  • MLS Area #
    Area 140
  • Number of Photos
    37
  • Last Modification Time
    Wednesday, December 3, 2025 9:57 AM
  • System Listing ID
    5499313
Update Info
  • Price Reduction
    2025-11-24 13:07:52
  • First For Sale
    2025-11-08 09:46:39
Listing details based on information submitted to the MLS GRID as of Wednesday, December 3, 2025 9:57 AM. All data is obtained from various sources and may not have been verified by broker or MLS GRID. Supplied Open House Information is subject to change without notice. All information should be independently reviewed and verified for accuracy. Properties may or may not be listed by the office/agent presenting the information.
View
Sort

Sharing

 
For Sale 29 Days Online
$988,000     ▼ Price Reduction $6K
3 BR    2.5 BA    1,803 SQFT  
Offer Review: Anytime
NWMLS #2453602. Candice L Oftebro, COMPASS
Map
 
Listing information is provided by the listing agent except as follows: BuilderB indicates that our system has grouped this listing under a home builder name that doesn't match the name provided by the listing broker. DevelopmentD indicates that our system has grouped this listing under a development name that doesn't match the name provided by the listing broker.