to
Reset
Houses
Townhouses
Condos
Land
Price
to
SQFT
to
Bdrms
to
Baths
to
Lot
to
Yr Built
to
Sold
Listed within...
Listed at least...
Offer Review
New Construction
Waterfront
Short-Sales
REO
Parking
to
Unit Flr
to
Unit Nbr
Listings
Neighborhoods
Complexes
Developments
Cities
Counties
Zip Codes
Neighborhood · Condo · Development
School District
Zip Code
City
County
Builder
Listing Numbers
Broker LAG
Boundary Lines
Labels
View
Sort
Sold Closed February 12, 2026
$350,000
1 Bedroom
1 Bathroom
758 Sqft Condo
Unit F4
Floor 1
Built 2004
2 Parking Spaces
HOA Dues $630 / month
SALE HISTORY
List price was $350,000
It took 60 days to go pending.
Then 31 days to close at $350,000
Closed at $462/SQFT.
Well-maintained condo w/attached garage in desirable Magnolia at Highlands East! Updates include fresh paint, new LVP flooring & carpet, lighting, garage door opener/components & newer roof. Home features light & bright living room w/cozy fireplace that opens to private deck, kitchen w/ample storage, bedroom w/walk-in closet, spacious bathroom & laundry room, plus a beautiful Cherry Blossom tree at the entry. Community features parks, play areas, & walking path. Ideal location right next to Willis Tucker trail/park featuring an off-leash dog area, picnic shelters, baseball & soccer fields, amphitheater, splash pad, playground & events including farmer’s market, movie nights + more! Easy access to Highway 9, I-5, I-405, & downtown Snohomish!
Offer Review
No offer review date was specified
Project
Magnolia At Highlands East
Listing source NWMLS MLS #
2454574
Listed by
Jessie L. Grandpre, Windermere Real Estate/M2, LLC
Buyer's broker
Melissa Cook, Epique Realty
We don't currently have a buyer representative in this area. To be sure that you're getting objective advice, we always suggest buyers work with their own agent, someone who is not affiliated with the seller.
Time Adjusted Estimated Value
Assumptions: The original sale amount reflected a normal arms length sale. Any major updates would add to the value. Any damage or deferred maintenance would subtract from the value.
Bedroom & Bathroom Layout
MAIN
BDRM
FULL
BATH
Property History
Feb 12, 2026
Sold
$350,000
NWMLS #2454574 Annualized 3.8% / yr
Jan 12, 2026
Went Pending
$350,000
NWMLS #2454574
Nov 13, 2025
Listed
$350,000
NWMLS #2454574
Jan 30, 2006
Sold
$164,950
More
Listing Details
  • Sale Price
    $350,000
  • Closing Date
    February 12, 2026
  • Last List Price
    $350,000
  • Original Price
    Same
  • List Date
    November 13, 2025
  • Pending Date
    January 12, 2026
  • Days to go Pending
    60 days
  • $/sqft (Total)
    $462/sqft
  • $/sqft (Finished)
    $462/sqft
  • Listing Source
  • MLS Number
    2454574
  • Listing Broker
    Jessie L. Grandpre
  • Listing Office
    Windermere Real Estate/M2, LLC
  • Buyer's Broker
    Melissa Cook
  • Buyer Broker's Firm
    Epique Realty
Monthly Payment Estimate
  • Principal and Interest
    $1,835 / month
  • HOA
    $630 / month
  • Property Taxes
    $266 / month
  • Homeowners Insurance
    $85 / month
  • TOTAL
    $2,816 / month

  • based on 20% down
    ($70,000)
  • and a
    6.85% Interest Rate
  • About:
    All calculations are estimates only and provided by Mainview LLC. Actual amounts will vary.
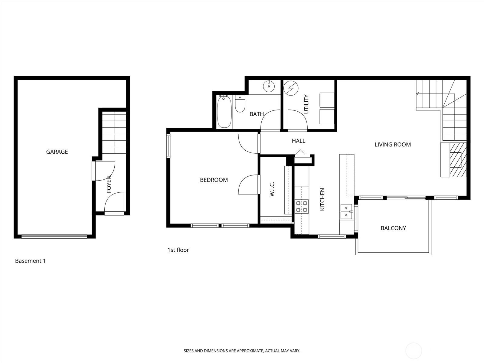
Condo Details
  • Unit #
    F4
  • Unit Floor
    1
  • Sqft (Total)
    758 sqft
  • Sqft (Finished)
    Unspecified
  • Sqft (Unfinished)
    None
  • Property Type
    Condo
  • Sub Type
    Condo (1 Level)
  • Bedrooms
    1 Bedroom
  • Bathrooms
    1 Bathroom
  • Lot Size
    Unspecified
  • Lot Size Source
    Unspecified
  • Project
    Magnolia At Highlands East
  • Total Stories
    1 story
  • Sqft Source
    Realist
Property Tax Info
  • 2025 Property Taxes
    $3,193 / year
  • No Senior Exemption
Public Parcel Data & Maps
Schools
  • School District
    Snohomish
  • Elementary
    Totem Falls
  • Middle
    Valley View Mid
  • High School
    Glacier Peak
HOA
  • HOA Dues
    $630 / month
  • Fees Assessed
    Monthly
  • HOA Dues Include
    Common Area Maintenance
    Lawn Service
    Road Maintenance
    Sewer
    Water
  • Pets Allowed
    Yes
  • HOA Contact
    Unspecified
  • Management Contact
    Unspecified
Community Features
  • Community Features
    Athletic Court
    Cable TV
    High Speed Int Avail
    Outside Entry
    Trail(s)
Building
  • Name
    Magnolia At Highlands East
  • Units in Complex
    96
  • Units in Building
    8
  • Stories in Building
    2
Parking
  • Covered
    1-Car
  • Types
    Individual Garage
  • Has Garage
    Yes
  • Nbr of Assigned Spaces
    2
  • Parking Space Info
    Unspecified
Construction
  • Year Built
    2004
  • Home Builder
    Unspecified
Cooling
  • Includes
    None
Heating
  • Includes
    Baseboard
    Wall Furnace
Interior
  • Flooring
    Ceramic Tile
    Vinyl
    Vinyl Plank
    Carpet
  • Features
    Cooking-Electric
    Dryer-Electric
    Fireplace
    Insulated Windows
    Sprinkler System
    Top Floor
    Walk-In Closet(s)
    Washer
    Water Heater
Property
  • Lot Features
    Dead End Street
    Paved
Appliances
  • Included
    Dishwasher
    Disposal
    Dryer
    Microwave
    Refrigerator
    Stove(s)/Range(s)
    Washer
Terms
  • Bank Owned (REO)
    No
Utilities
  • Energy
    Electric
Additional Info
  • Waterfront
    No
  • Air Conditioning (A/C)
    No
  • Buyer Broker's Compensation
    3%
  • MLS Area #
    Area 740
  • Number of Photos
    40
  • Last Modification Time
    Sunday, March 15, 2026 4:03 AM
  • System Listing ID
    5500199
Update Info
  • Closed
    2026-02-12 17:43:03
  • Pending Or Ctg
    2026-01-12 10:58:11
  • First For Sale
    2025-11-13 12:27:01
Listing details based on information submitted to the MLS GRID as of Sunday, March 15, 2026 4:03 AM. All data is obtained from various sources and may not have been verified by broker or MLS GRID. Supplied Open House Information is subject to change without notice. All information should be independently reviewed and verified for accuracy. Properties may or may not be listed by the office/agent presenting the information.
View
Sort

Sharing

 
Sold February 12, 2026
$350,000  
1 BR    1 BA    758 SQFT  
NWMLS #2454574. Jessie L. Grandpre, Windermere Real Estate/M2, LLC
Map
 
Listing information is provided by the listing agent except as follows: BuilderB indicates that our system has grouped this listing under a home builder name that doesn't match the name provided by the listing broker. DevelopmentD indicates that our system has grouped this listing under a development name that doesn't match the name provided by the listing broker.