to
Reset
Houses
Townhouses
Condos
Land
Price
to
SQFT
to
Bdrms
to
Baths
to
Lot
to
Yr Built
to
Sold
Listed within...
Listed at least...
Offer Review
New Construction
Waterfront
Short-Sales
REO
Parking
to
Unit Flr
to
Unit Nbr
Listings
Neighborhoods
Complexes
Developments
Cities
Counties
Zip Codes
Neighborhood · Condo · Development
School District
Zip Code
City
County
Builder
Listing Numbers
Broker LAG
Boundary Lines
Labels
View
Sort
Sold Closed December 16, 2025
$700,000
3 Bedrooms
1.75 Bathrooms
2,060 Sqft House
Built 1959
17,860 Sqft Lot
1-Car Garage
SALE HISTORY
List price was $679,900
It took 4 days to go pending.
Then 29 days to close at $700,000
Closed at $340/SQFT.
Welcome to this adorable downtown Sumner rambler tucked on one of the area’s most sought-after streets. Offering 3 bedrooms and 1.75 baths, this home features real hardwood floors, a spacious family room with fireplace, and a large rec room perfect for entertaining. Enjoy the open kitchen with dining room and another cozy fireplace. Recent upgrades include a new heat pump, new water heater and new windows. Outside, you’ll love the huge lot with lush, mature gardens and a full sprinkler system a peaceful oasis just minutes from Sumner’s shops, dining, and commuter access and walking distance to both Maple Lawn Elementary and Sumner Middle School. This is a rare opportunity in Sumner.
Offer Review
No offer review date was specified
Listing source NWMLS MLS #
2454816
Listed by
Danielle Bresnahan, Realty One Group Turn Key
Buyer's broker
Sheila Nakata, John L. Scott Enumclaw
Contact our
Sumner
Real Estate Lead
RE/MAX Northwest Realtors
Phone...
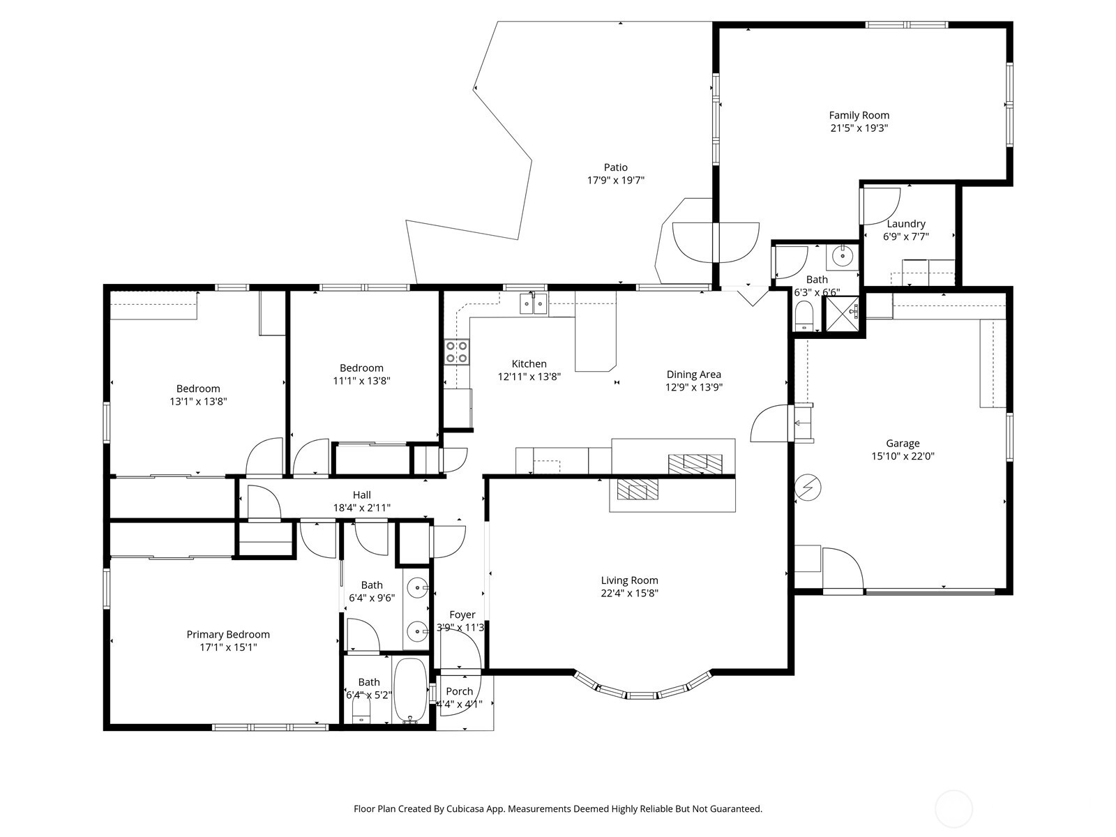
Bedroom & Bathroom Layout
MAIN
BDRM
BDRM
BDRM
FULL
BATH
¾
BATH
Property History
Dec 16, 2025
Sold
$700,000
NWMLS #2454816 Annualized 4.7% / yr
Nov 24, 2025
Went Pending
$679,900
NWMLS #2454816
Nov 17, 2025
Went Pending Inspection
$679,900
NWMLS #2454816
Nov 13, 2025
Listed
$679,900
NWMLS #2454816
Feb 27, 2002
Sold
$233,000
NWMLS #21143805
More
Listing Details
  • Sale Price
    $700,000
  • Closing Date
    December 16, 2025
  • Last List Price
    $679,900
  • Original Price
    Same
  • List Date
    November 13, 2025
  • Pending Date
    November 17, 2025
  • Days to go Pending
    4 days
  • $/sqft (Total)
    $340/sqft
  • $/sqft (Finished)
    $340/sqft
  • Listing Source
  • MLS Number
    2454816
  • Listing Broker
    Danielle Bresnahan
  • Listing Office
    Realty One Group Turn Key
  • Buyer's Broker
    Sheila Nakata
  • Buyer Broker's Firm
    John L. Scott Enumclaw
Monthly Payment Estimate
  • Principal and Interest
    $3,669 / month
  • Property Taxes
    $83 / month
  • Homeowners Insurance
    $141 / month
  • TOTAL
    $3,893 / month

  • based on 20% down
    ($140,000)
  • and a
    6.85% Interest Rate
  • About:
    All calculations are estimates only and provided by Mainview LLC. Actual amounts will vary.
House Details
  • Sqft (Total)
    2,060 sqft
  • Sqft (Finished)
    2,060 sqft
  • Sqft (Unfinished)
    None
  • Property Type
    House
  • Sub Type
    1 Story
  • Bedrooms
    3 Bedrooms
  • Bathrooms
    1.75 Bathrooms
  • Lot
    17,860 sqft Lot
  • Lot Size Source
    Realist
  • Lot #
    Unspecified
  • Project
    Unspecified
  • Total Stories
    1 story
  • Sqft Source
    Realist
Property Tax Info
  • 2025 Property Taxes
    $1,001 / year
  • Yes Senior Exemption
Public Parcel Data & Maps
Schools
  • School District
    Sumner-Bonney Lake
  • Elementary
    Maple Lawn Elem
  • Middle
    Sumner Middle
  • High School
    Sumner Snr High
HOA
  • HOA Dues
    Unspecified
  • Fees Assessed
    Unspecified
  • HOA Dues Include
    Unspecified
  • HOA Contact
    Unspecified
  • Management Contact
    Unspecified
Parking
  • Covered
    1-Car
  • Types
    Attached Garage
    RV Parking
  • Has Garage
    Yes
  • Nbr of Assigned Spaces
    1
Construction
  • Year Built
    1959
  • Home Builder
    Unspecified
Cooling
  • Includes
    Heat Pump
Heating
  • Includes
    Heat Pump
Interior
  • Flooring
    Hardwood
    Vinyl
    Carpet
  • Features
    Bath Off Primary
    Double Pane/Storm Window
    Dining Room
    Fireplace
    French Doors
    Sprinkler System
Property
  • Lot Features
    Curbs
    Paved
    Sidewalk
  • Site Features
    Athletic Court
    Fenced-Fully
    Gas Available
    High Speed Internet
    Patio
    RV Parking
    Sprinkler System
Appliances
  • Included
    Dishwasher(s)
    Microwave(s)
    Refrigerator(s)
    Stove(s)/Range(s)
Terms
  • Bank Owned (REO)
    No
Utilities
  • Energy
    Electric
    Natural Gas
  • Sewer
    Sewer Connected
  • Water Source
    Public
Additional Info
  • Waterfront
    No
  • Air Conditioning (A/C)
    Yes
  • Buyer Broker's Compensation
    2.5%
  • MLS Area #
    Area 74
  • Number of Photos
    36
  • Last Modification Time
    Tuesday, December 16, 2025 3:24 PM
  • System Listing ID
    5500292
Update Info
  • Closed
    2025-12-16 15:37:23
  • Pending Or Ctg
    2025-11-24 17:41:18
  • First For Sale
    2025-11-13 14:22:08
Listing details based on information submitted to the MLS GRID as of Tuesday, December 16, 2025 3:24 PM. All data is obtained from various sources and may not have been verified by broker or MLS GRID. Supplied Open House Information is subject to change without notice. All information should be independently reviewed and verified for accuracy. Properties may or may not be listed by the office/agent presenting the information.
View
Sort

Sharing

 
Sold December 16, 2025
$700,000   $679,900
3 BR    1.75 BA    2,060 SQFT  
NWMLS #2454816. Danielle Bresnahan, Realty One Group Turn Key
Map
 
Listing information is provided by the listing agent except as follows: BuilderB indicates that our system has grouped this listing under a home builder name that doesn't match the name provided by the listing broker. DevelopmentD indicates that our system has grouped this listing under a development name that doesn't match the name provided by the listing broker.