to
Reset
Houses
Townhouses
Condos
Land
Price
to
SQFT
to
Bdrms
to
Baths
to
Lot
to
Yr Built
to
Sold
Listed within...
Listed at least...
Offer Review
New Construction
Waterfront
Short-Sales
REO
Parking
to
Unit Flr
to
Unit Nbr
Listings
Neighborhoods
Complexes
Developments
Cities
Counties
Zip Codes
Neighborhood · Condo · Development
School District
Zip Code
City
County
Builder
Listing Numbers
Broker LAG
Boundary Lines
Labels
View
Sort
Sold Closed December 10, 2025
$1,400,000
6 Bedrooms
3.25 Bathrooms
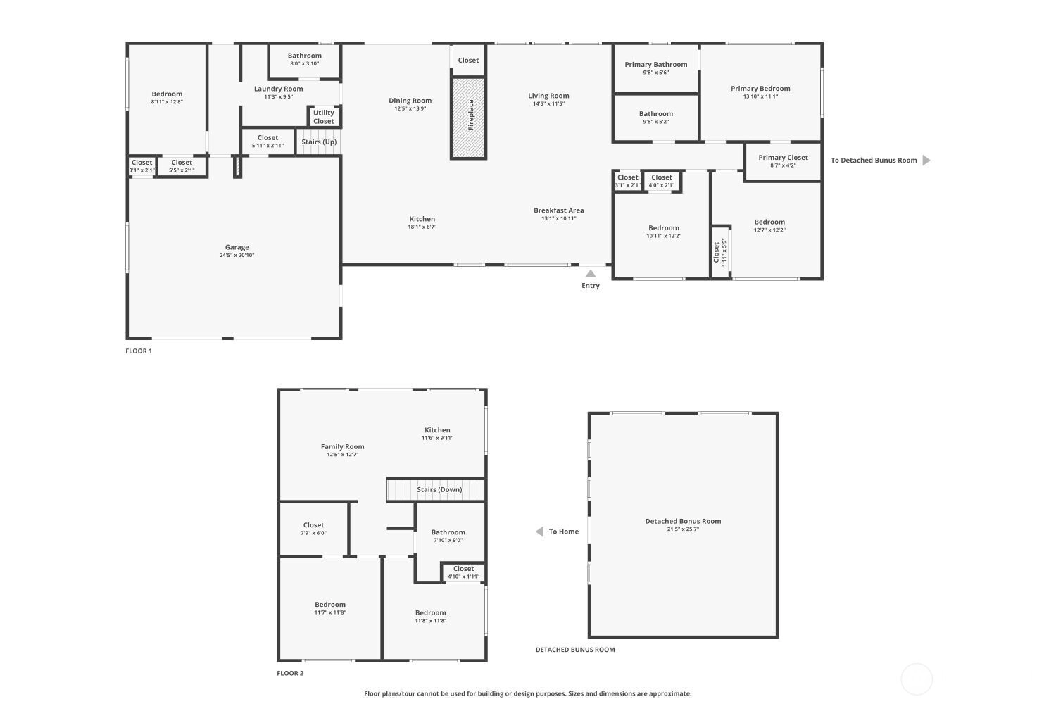
3,124 Sqft House
Built 1960
20,451 Sqft Lot
3-Car Garage
SALE HISTORY
List price was $1,400,000
It took 2 days to go pending.
Then 24 days to close at $1,400,000
Closed at $448/SQFT.
When the owners found this home in July 2025, they saw potential and transformed it into a soulful, modern masterpiece. Step inside and feel the warmth, quality, and calm as the home flows from inviting living spaces to a private deck where time slows and the view steals the show. A complete remodel, with 3000+ sq ft, six bedrooms, and four baths, the home blends 1960 charm with today’s style. A stunning kitchen with an 11’ island, separate upper-level living space for extended living, and versatile studio add flexibility. 2 car garage, carport, additional space. Every bathroom is brand new, and the pre-list inspection is complete. This isn’t just a remodel — it’s a labor of love, ready for your next chapter.
Offer Review
No offer review date was specified
Listing source NWMLS MLS #
2454999
Listed by
Annie Gu, Realty ONE Group Orca Gold
Tom Perry, Realty ONE Group Orca Gold
Buyer's broker
John Zimcosky, Windermere Real Estate/Summit
Contact our
Lake Forest Park
Real Estate Lead
Windermere Real Estate / North, Inc
Phone...
Bedroom & Bathroom Layout
SECOND
BDRM
BDRM
¾
BATH
MAIN
BDRM
BDRM
BDRM
BDRM
FULL
BATH
¾
BATH
¾
BATH
Property History
Dec 10, 2025
Sold
$1,400,000
NWMLS #2454999 Annualized 360.6% / yr
Dec 03, 2025
Went Pending
$1,400,000
NWMLS #2454999
Nov 16, 2025
Went Pending Inspection
$1,400,000
NWMLS #2454999
Nov 16, 2025
Went Pending
$1,400,000
NWMLS #2454999
Nov 14, 2025
Listed
$1,400,000
NWMLS #2454999
Jul 18, 2025
Sold
$760,000
Jul 17, 2025
Listed
$760,000
More
Listing Details
  • Sale Price
    $1,400,000
  • Closing Date
    December 10, 2025
  • Last List Price
    $1,400,000
  • Original Price
    Same
  • List Date
    November 14, 2025
  • Pending Date
    November 16, 2025
  • Days to go Pending
    2 days
  • $/sqft (Total)
    $448/sqft
  • $/sqft (Finished)
    $448/sqft
  • Listing Source
  • MLS Number
    2454999
  • Listing Broker
    Annie Gu
  • Listing Office
    Realty ONE Group Orca Gold
  • Buyer's Broker
    John Zimcosky
  • Buyer Broker's Firm
    Windermere Real Estate/Summit
Monthly Payment Estimate
  • Principal and Interest
    $7,339 / month
  • Property Taxes
    $740 / month
  • Homeowners Insurance
    $269 / month
  • TOTAL
    $8,348 / month

  • based on 20% down
    ($280,000)
  • and a
    6.85% Interest Rate
  • About:
    All calculations are estimates only and provided by Mainview LLC. Actual amounts will vary.
House Details
  • Sqft (Total)
    3,124 sqft
  • Sqft (Finished)
    3,124 sqft
  • Sqft (Unfinished)
    None
  • Property Type
    House
  • Sub Type
    1 1/2 Story
  • Bedrooms
    6 Bedrooms
  • Bathrooms
    3.25 Bathrooms
  • Lot
    20,451 sqft Lot
  • Lot Size Source
    KCAR
  • Lot #
    2
  • Project
    Unspecified
  • Total Stories
    2 stories
  • Basement
    None
  • Sqft Source
    Buyer to Verify
Property Tax Info
  • 2025 Property Taxes
    $8,885 / year
  • No Senior Exemption
Public Parcel Data & Maps
Schools
  • School District
    Shoreline
  • Elementary
    Lake Forest Park Ele
  • Middle
    Kellogg Mid
  • High School
    Shorecrest High
HOA
  • HOA Dues
    Unspecified
  • Fees Assessed
    Unspecified
  • HOA Dues Include
    Unspecified
  • HOA Contact
    Unspecified
  • Management Contact
    Unspecified
Parking
  • Covered
    3-Car
  • Types
    Attached Carport
    Driveway
    Attached Garage
    Off Street
    RV Parking
  • Has Garage
    Yes
  • Nbr of Assigned Spaces
    3
Views
  • Territorial
Construction
  • Year Built
    1960
  • Home Builder
    Unspecified
Cooling
  • Includes
    Ductless
Heating
  • Includes
    90%+ High Efficiency
    Ductless
    Forced Air
    Wall Unit(s)
Interior
  • Flooring
    Ceramic Tile
    See Remarks
  • Features
    Bath Off Primary
    Double Pane/Storm Window
    Dining Room
    Fireplace
    French Doors
    Skylight(s)
    Walk-In Closet(s)
    Water Heater
Property
  • Lot Features
    Dead End Street
    Paved
  • Site Features
    Cable TV
    Deck
    Electric Car Charging
    Gas Available
    Outbuildings
    RV Parking
Appliances
  • Included
    Dishwasher(s)
    Disposal
    Dryer(s)
    Microwave(s)
    Refrigerator(s)
    Stove(s)/Range(s)
    Washer(s)
Terms
  • Bank Owned (REO)
    No
Utilities
  • Energy
    Electric
    Natural Gas
  • Sewer
    Sewer Connected
  • Water Source
    Public
Additional Info
  • Waterfront
    No
  • Air Conditioning (A/C)
    Yes
  • Buyer Broker's Compensation
    2.5%
  • MLS Area #
    Area 720
  • Number of Photos
    34
  • Last Modification Time
    Wednesday, December 10, 2025 4:58 PM
  • System Listing ID
    5500673
Update Info
  • Closed
    2025-12-10 17:10:52
  • Pending Or Ctg
    2025-12-03 16:53:51
  • First For Sale
    2025-11-14 14:34:22
Listing details based on information submitted to the MLS GRID as of Wednesday, December 10, 2025 4:58 PM. All data is obtained from various sources and may not have been verified by broker or MLS GRID. Supplied Open House Information is subject to change without notice. All information should be independently reviewed and verified for accuracy. Properties may or may not be listed by the office/agent presenting the information.
View
Sort

Sharing

 
Sold December 10, 2025
$1,400,000  
6 BR    3.25 BA    3,124 SQFT  
NWMLS #2454999. Annie Gu, Realty ONE Group Orca Gold
Map
 
Listing information is provided by the listing agent except as follows: BuilderB indicates that our system has grouped this listing under a home builder name that doesn't match the name provided by the listing broker. DevelopmentD indicates that our system has grouped this listing under a development name that doesn't match the name provided by the listing broker.