to
Reset
Houses
Townhouses
Condos
Land
Price
to
SQFT
to
Bdrms
to
Baths
to
Lot
to
Yr Built
to
Sold
Listed within...
Listed at least...
Offer Review
New Construction
Waterfront
Short-Sales
REO
Parking
to
Unit Flr
to
Unit Nbr
Listings
Neighborhoods
Complexes
Developments
Cities
Counties
Zip Codes
Neighborhood · Condo · Development
School District
Zip Code
City
County
Builder
Listing Numbers
Broker LAG
Boundary Lines
Labels
View
Sort
Sold Closed December 29, 2025
$575,000
3 Bedrooms
1.75 Bathrooms
1,354 Sqft House
Built 1980
10,890 Sqft Lot
2-Car Garage
HOA Dues $22 / month
SALE HISTORY
List price was $625,000
It took 14 days to go pending.
Then 27 days to close at $575,000
Closed at $425/SQFT.
Welcome to effortless one-level living in the heart of Skyline with a layout that simply lives well. Living room flows into dining area, while well-appointed kitchen offers abundant cabinetry, pantry, generous skylight & pass-thru that makes hosting & everyday meals a breeze. A second living/rec room extends the home’s versatility, anchored by 2-sided fireplace & offering laundry, access to 2-car garage & slider opening to expansive sunroom. Outside is fenced backyard, ideal for garden lovers, pets or relaxed outdoor living. Three comfortable bedrooms include full bath & 3/4 bath, giving room for flexible use. Perfectly positioned to enjoy all amenities: play courts, beach club, nearby beaches & marina with quick access to Wa Park & ferry.
Offer Review
No offer review date was specified
Listing source NWMLS MLS #
2455943
Listed by
Gina Davis, Windermere RE Anacortes Prop.
Kimarie Henning, Windermere RE Anacortes Prop.
Buyer's broker
DiAnn Sager, RE/MAX Gateway
Contact our
Anacortes
Real Estate Lead
Buck Real Estate
Phone...
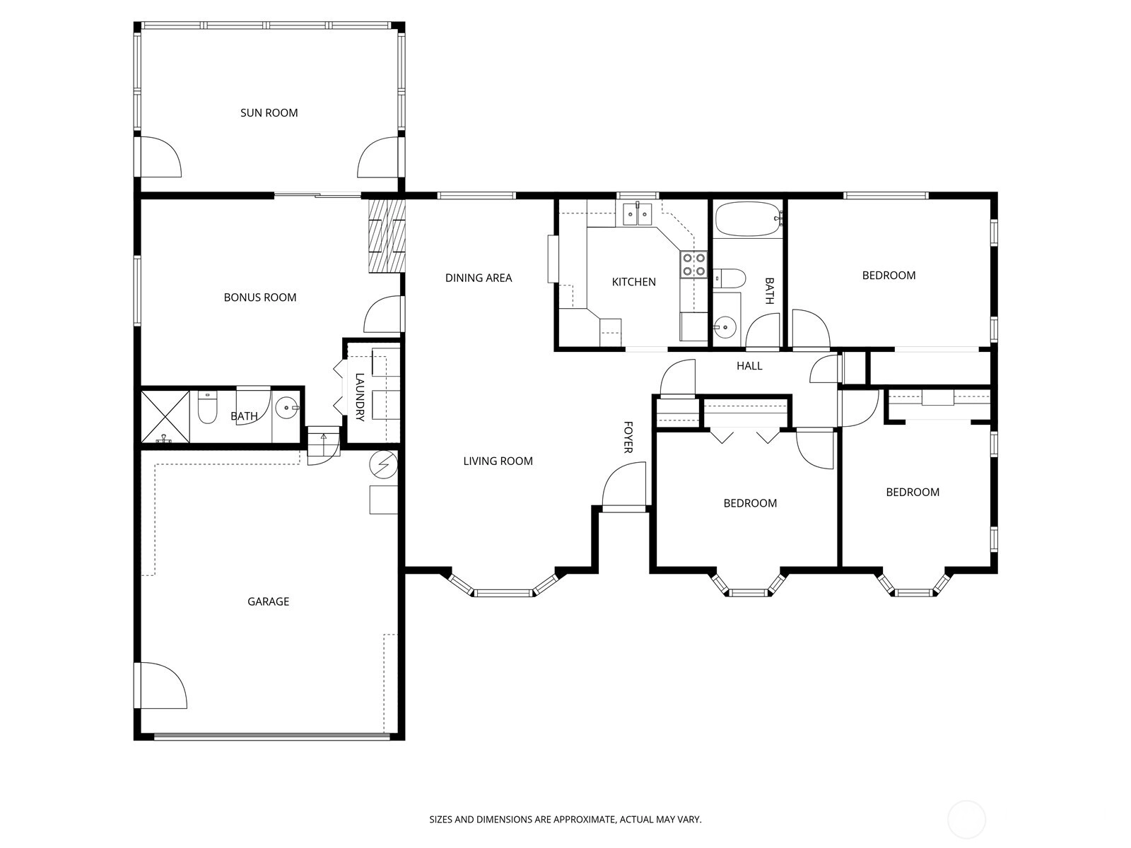
Bedroom & Bathroom Layout
MAIN
BDRM
BDRM
BDRM
FULL
BATH
¾
BATH
Property History
Dec 29, 2025
Sold
$575,000
NWMLS #2455943 Annualized 7.6% / yr
Dec 07, 2025
Went Pending
$625,000
NWMLS #2455943
Dec 02, 2025
Went Pending Inspection
$625,000
NWMLS #2455943
Nov 18, 2025
Listed
$625,000
NWMLS #2455943
Mar 03, 2016
Sold
$280,000
More
Listing Details
  • Sale Price
    $575,000
  • Closing Date
    December 29, 2025
  • Last List Price
    $625,000
  • Original Price
    Same
  • List Date
    November 18, 2025
  • Pending Date
    December 2, 2025
  • Days to go Pending
    14 days
  • $/sqft (Total)
    $425/sqft
  • $/sqft (Finished)
    $425/sqft
  • Listing Source
  • MLS Number
    2455943
  • Listing Broker
    Gina Davis
  • Listing Office
    Windermere RE Anacortes Prop.
  • Buyer's Broker
    DiAnn Sager
  • Buyer Broker's Firm
    RE/MAX Gateway
Monthly Payment Estimate
  • Principal and Interest
    $3,014 / month
  • HOA
    $22 / month
  • Property Taxes
    $39 / month
  • Homeowners Insurance
    $118 / month
  • TOTAL
    $3,192 / month

  • based on 20% down
    ($115,000)
  • and a
    6.85% Interest Rate
  • About:
    All calculations are estimates only and provided by Mainview LLC. Actual amounts will vary.
House Details
  • Sqft (Total)
    1,354 sqft
  • Sqft (Finished)
    1,354 sqft
  • Sqft (Unfinished)
    None
  • Property Type
    House
  • Sub Type
    1 Story
  • Bedrooms
    3 Bedrooms
  • Bathrooms
    1.75 Bathrooms
  • Lot
    10,890 sqft Lot
  • Lot Size Source
    Public records
  • Lot #
    34
  • Project
    Skyline No. 1
  • Total Stories
    1 story
  • Basement
    None
  • Sqft Source
    Public records
Property Tax Info
  • 2025 Property Taxes
    $463 / year
  • Yes Senior Exemption
Public Parcel Data & Maps
  • County
    Skagit County
  • Parcel #
    P59039
  • County Website
    Unspecified
  • County Parcel Map
    Unspecified
  • County GIS Map
    Unspecified
  • About
    County links provided by Mainview LLC
Schools
  • School District
    Anacortes
  • Elementary
    Buyer To Verify
  • Middle
    Unspecified
  • High School
    Unspecified
HOA
  • HOA Dues
    $22 / month
  • Fees Assessed
    Annually
  • HOA Dues Include
    Common Area Maintenance
    See Remarks
  • HOA Contact
    Unspecified
  • Management Contact
    Unspecified
Community Features
  • Community Features
    Athletic Court
    CCRs
    Club House
    Park
    Playground
    Trail(s)
Parking
  • Covered
    2-Car
  • Types
    Driveway
    Attached Garage
    Off Street
  • Has Garage
    Yes
  • Nbr of Assigned Spaces
    2
Views
  • Territorial
Construction
  • Year Built
    1980
  • Home Builder
    Unspecified
Cooling
  • Includes
    None
Heating
  • Includes
    Forced Air
Interior
  • Flooring
    Laminate
    Vinyl
    Carpet
  • Features
    Ceiling Fan(s)
    Double Pane/Storm Window
    Dining Room
    Fireplace
    Skylight(s)
    Solarium/Atrium
    Water Heater
Property
  • Lot Features
    Curbs
    Paved
  • Site Features
    Fenced-Fully
    Gas Available
    Outbuildings
    Patio
Appliances
  • Included
    Dishwasher(s)
    Dryer(s)
    Microwave(s)
    Refrigerator(s)
    Stove(s)/Range(s)
    Washer(s)
Terms
  • Bank Owned (REO)
    No
Utilities
  • Energy
    Electric
    Natural Gas
  • Sewer
    Sewer Connected
  • Water Source
    Public
Additional Info
  • Waterfront
    No
  • Air Conditioning (A/C)
    No
  • Buyer Broker's Compensation
    2.5%
  • MLS Area #
    Area 815
  • Number of Photos
    39
  • Last Modification Time
    Monday, December 29, 2025 4:06 PM
  • System Listing ID
    5501186
Update Info
  • Closed
    2025-12-29 16:16:52
  • Pending Or Ctg
    2025-12-07 11:51:10
  • First For Sale
    2025-11-18 13:20:28
Listing details based on information submitted to the MLS GRID as of Monday, December 29, 2025 4:06 PM. All data is obtained from various sources and may not have been verified by broker or MLS GRID. Supplied Open House Information is subject to change without notice. All information should be independently reviewed and verified for accuracy. Properties may or may not be listed by the office/agent presenting the information.
View
Sort

Sharing

 
Sold December 29, 2025
$575,000   $625,000
3 BR    1.75 BA    1,354 SQFT  
NWMLS #2455943. Gina Davis, Windermere RE Anacortes Prop.
Map
 
Listing information is provided by the listing agent except as follows: BuilderB indicates that our system has grouped this listing under a home builder name that doesn't match the name provided by the listing broker. DevelopmentD indicates that our system has grouped this listing under a development name that doesn't match the name provided by the listing broker.