to
Reset
Houses
Townhouses
Condos
Land
Price
to
SQFT
to
Bdrms
to
Baths
to
Lot
to
Yr Built
to
Sold
Listed within...
Listed at least...
Offer Review
New Construction
Waterfront
Short-Sales
REO
Parking
to
Unit Flr
to
Unit Nbr
Listings
Neighborhoods
Complexes
Developments
Cities
Counties
Zip Codes
Neighborhood · Condo · Development
School District
Zip Code
City
County
Builder
Listing Numbers
Broker LAG
Boundary Lines
Labels
View
Sort
Sold Closed December 19, 2025
$1,009,050
4 Bedrooms
2.5 Bathrooms
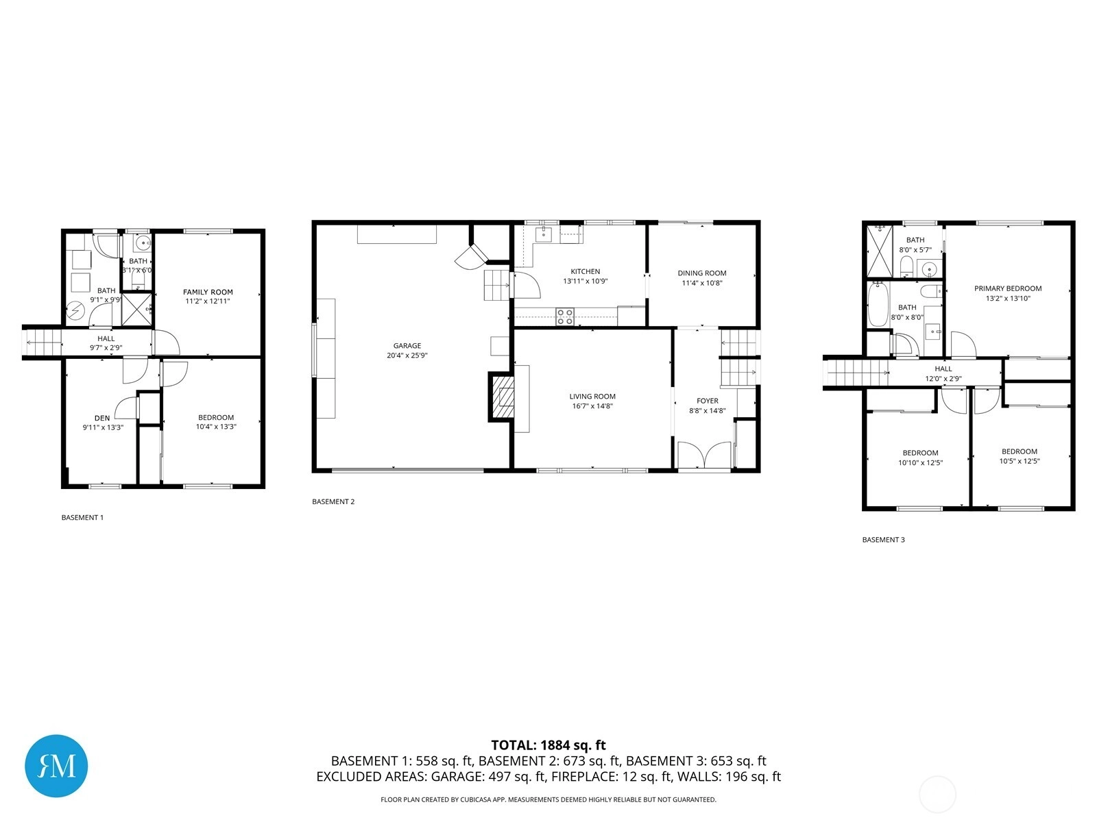
1,960 Sqft House
Built 1968
7,158 Sqft Lot
2-Car Garage
SALE HISTORY
List price was $998,950
It took 4 days to go pending.
Then 25 days to close at $1,009,050
Closed at $515/SQFT.
Move-in ready tri-level on a spacious corner lot in a quiet Regal Park cul-de-sac! This impressive 1,960 sq ft home features 4 bedrooms, 2.5 baths, beautifully updated kitchen, and stylishly renovated bathrooms. The versatile lower level includes a family room, guest bedroom, and a private office/5th bedroom—perfect for visitors or a remote workspace. Quality Presidential roof provides peace of mind. The attached 2-car garage offers a large workbench and impressive storage capacity. Entertain on the expansive 240 sq ft deck overlooking a lush, mature 7,158 sq ft yard. Located in top-rated Shoreline School District with convenient commuter access to local amenities. This Lake Forest Park gem has it all! Ask about lender paid rate buydown.
Offer Review
No offer review date was specified
Listing source NWMLS MLS #
2455878
Listed by
Dave Piedrahita, Keller Williams Rlty Bellevue
Buyer's broker
Kim Mulligan, Engel & Voelkers Seattle DT
Contact our
Lake Forest Park
Real Estate Lead
Windermere Real Estate / North, Inc
Phone...
Bedroom & Bathroom Layout
THIRD
SECOND
BDRM
BDRM
BDRM
FULL
BATH
¾
BATH
LOWER
BDRM
¾
BATH
Property History
Dec 19, 2025
Sold
$1,009,050
NWMLS #2455878 Annualized 5.6% / yr
Nov 25, 2025
Went Pending
$998,950
NWMLS #2455878
Nov 20, 2025
Listed
$998,950
NWMLS #2455878
Oct 13, 2008
Sold
$397,000
NWMLS #28092571 Annualized 7.1% / yr
Jul 16, 2002
Sold
$259,000
NWMLS #22066771
More
Listing Details
  • Sale Price
    $1,009,050
  • Closing Date
    December 19, 2025
  • Last List Price
    $998,950
  • Original Price
    Same
  • List Date
    November 20, 2025
  • Pending Date
    November 24, 2025
  • Days to go Pending
    4 days
  • $/sqft (Total)
    $515/sqft
  • $/sqft (Finished)
    $515/sqft
  • Listing Source
  • MLS Number
    2455878
  • Listing Broker
    Dave Piedrahita
  • Listing Office
    Keller Williams Rlty Bellevue
  • Buyer's Broker
    Kim Mulligan
  • Buyer Broker's Firm
    Engel & Voelkers Seattle DT
Monthly Payment Estimate
  • Principal and Interest
    $5,290 / month
  • Property Taxes
    $675 / month
  • Homeowners Insurance
    $197 / month
  • TOTAL
    $6,162 / month

  • based on 20% down
    ($201,810)
  • and a
    6.85% Interest Rate
  • About:
    All calculations are estimates only and provided by Mainview LLC. Actual amounts will vary.
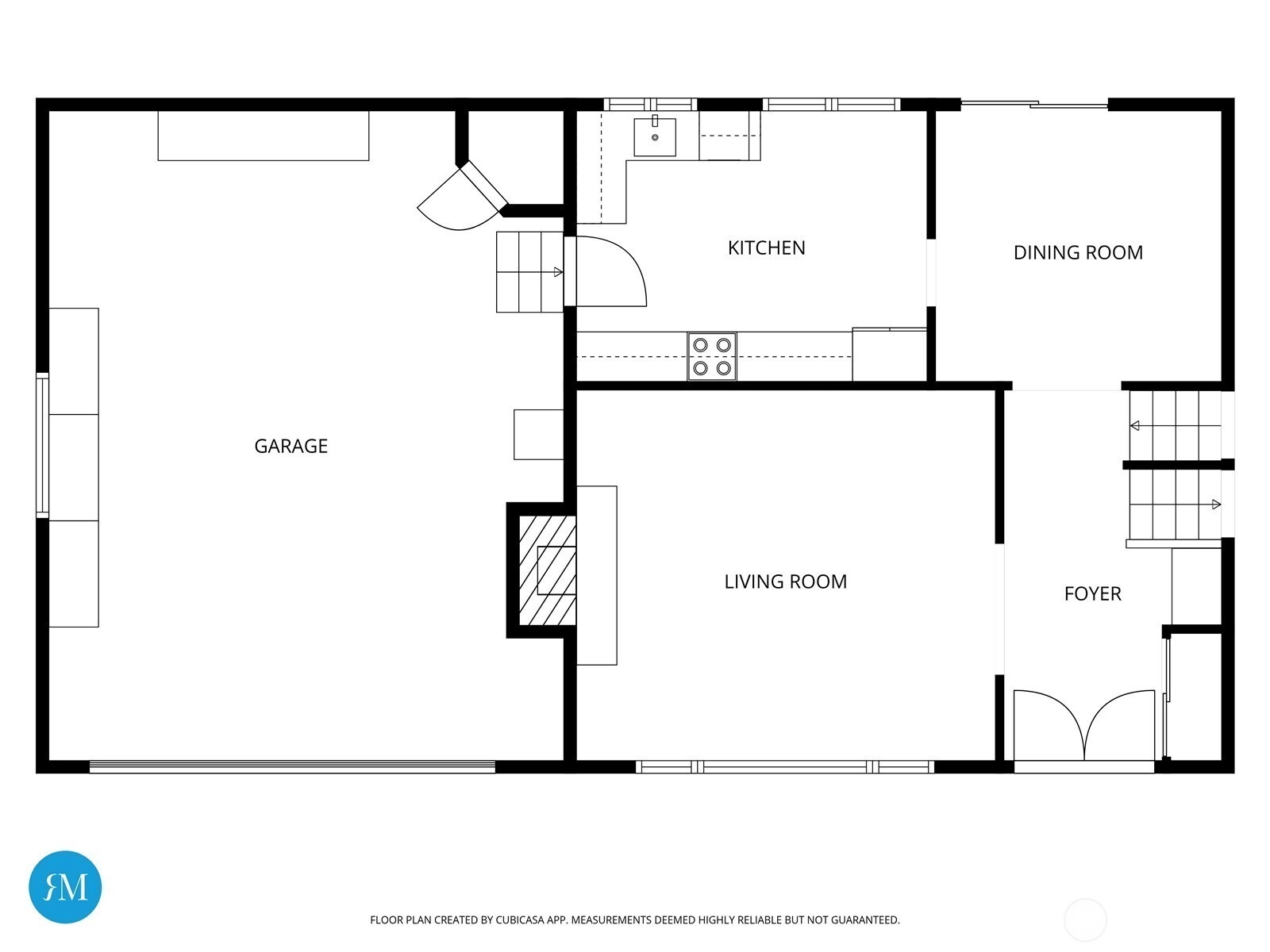
House Details
  • Sqft (Total)
    1,960 sqft
  • Sqft (Finished)
    1,960 sqft
  • Sqft (Unfinished)
    None
  • Property Type
    House
  • Sub Type
    Tri-Level
  • Bedrooms
    4 Bedrooms
  • Bathrooms
    2.5 Bathrooms
  • Lot
    7,158 sqft Lot
  • Lot Size Source
    Public Records
  • Lot #
    Unspecified
  • Project
    Unspecified
  • Total Stories
    3 stories
  • Basement
    None
  • Sqft Source
    Public Records
Property Tax Info
  • 2025 Property Taxes
    $8,104 / year
  • No Senior Exemption
Public Parcel Data & Maps
Schools
  • School District
    Shoreline
  • Elementary
    Lake Forest Park Ele
  • Middle
    Kellogg Mid
  • High School
    Shorecrest High
HOA
  • HOA Dues
    Unspecified
  • Fees Assessed
    Unspecified
  • HOA Dues Include
    Unspecified
  • HOA Contact
    Unspecified
  • Management Contact
    Unspecified
Parking
  • Covered
    2-Car
  • Types
    Attached Garage
  • Has Garage
    Yes
  • Nbr of Assigned Spaces
    2
Views
  • Territorial
Construction
  • Year Built
    1968
  • Home Builder
    Unspecified
Cooling
  • Includes
    None
Heating
  • Includes
    Forced Air
Interior
  • Flooring
    Ceramic Tile
    Hardwood
    Vinyl
    Carpet
  • Features
    Bath Off Primary
    Double Pane/Storm Window
    Dining Room
    Fireplace
    Skylight(s)
    Water Heater
Property
  • Lot Features
    Corner Lot
    Cul-De-Sac
    Curbs
    Paved
  • Site Features
    Cable TV
    Deck
    Fenced-Partially
    Gas Available
    High Speed Internet
Appliances
  • Included
    Dishwasher(s)
    Disposal
    Dryer(s)
    Refrigerator(s)
    Stove(s)/Range(s)
    Washer(s)
Terms
  • Bank Owned (REO)
    No
Utilities
  • Energy
    Electric
    Natural Gas
  • Sewer
    Sewer Connected
  • Water Source
    Public
Additional Info
  • Waterfront
    No
  • Air Conditioning (A/C)
    No
  • Buyer Broker's Compensation
    2.5%
  • MLS Area #
    Area 720
  • Number of Photos
    38
  • Last Modification Time
    Friday, December 19, 2025 1:55 PM
  • System Listing ID
    5501578
Update Info
  • Closed
    2025-12-19 14:01:56
  • Pending Or Ctg
    2025-11-25 13:04:23
  • First For Sale
    2025-11-20 10:06:55
Listing details based on information submitted to the MLS GRID as of Friday, December 19, 2025 1:55 PM. All data is obtained from various sources and may not have been verified by broker or MLS GRID. Supplied Open House Information is subject to change without notice. All information should be independently reviewed and verified for accuracy. Properties may or may not be listed by the office/agent presenting the information.
View
Sort

Sharing

 
Sold December 19, 2025
$1,009,050   $998,950
4 BR    2.5 BA    1,960 SQFT  
NWMLS #2455878. Dave Piedrahita, Keller Williams Rlty Bellevue
Map
 
Listing information is provided by the listing agent except as follows: BuilderB indicates that our system has grouped this listing under a home builder name that doesn't match the name provided by the listing broker. DevelopmentD indicates that our system has grouped this listing under a development name that doesn't match the name provided by the listing broker.