to
Reset
Houses
Townhouses
Condos
Land
Price
to
SQFT
to
Bdrms
to
Baths
to
Lot
to
Yr Built
to
Sold
Listed within...
Listed at least...
Offer Review
New Construction
Waterfront
Short-Sales
REO
Parking
to
Unit Flr
to
Unit Nbr
Listings
Neighborhoods
Complexes
Developments
Cities
Counties
Zip Codes
Neighborhood · Condo · Development
School District
Zip Code
City
County
Builder
Listing Numbers
Broker LAG
Boundary Lines
Labels
View
Sort
For Sale 160 Days Online
$749,950
Originally $759,950
3 Bedrooms
2.75 Bathrooms
2,394 Sqft House
New Construction
Built 2026
6,600 Sqft Lot
3-Car Garage
HOA Dues $80 / month
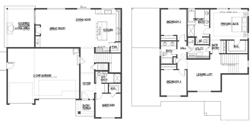
Final opportunity at Mountain Glen by JK Monarch - A Trumark Company. Only 2 homes remain in this sought-after cul-de-sac community, ideally located near schools, shopping, dining& everyday conveniences. Move in just in time for summer and enjoy the perfect blend of comfort, style, and functionality. Designed with today’s lifestyle in mind, the open-concept main floor offers seamless indoor-outdoor living. The spacious great room with cozy gas fireplace flows effortlessly into the dining area and beautifully appointed kitchen—complete with quartz countertops, center island, tile backsplash, stainless steel appliances including gas range, soft-close cabinetry, and a generous walk-in pantry. Step outside to your covered patio overlooking a large, fully fenced and professionally landscaped backyard—perfect for entertaining or relaxing all season long. Upstairs, retreat to the private primary suite featuring a coffered ceiling, walk-in closet, and convenient direct access to the laundry room. The spa-inspired 5-piece ensuite includes a glass and tile shower, soaking tub, and dual vanities. Additional highlights include designer-selected finishes, white millwork, wrought-iron railing, 8' interior doors on the main level, and a heat pump with A/C for year-round comfort. Rare 3-car garage includes a 10' high third bay door—ideal for larger vehicles, recreational gear, or extra storage.
Offer Review
Will review offers when submitted
Builder
Trumark Homes Washington LLC (JK Monarch)
Project
Mountain Glen
Listing source NWMLS MLS #
2456353
Listed by
Gary Hendrickson, Berkshire Hathaway HS SSP
Hannah Ehrenheim, Berkshire Hathaway HS SSP
Contact our
Puyallup
Real Estate Lead
RE/MAX Northwest Realtors
Phone...
Bedroom & Bathroom Layout
SECOND
BDRM
BDRM
BDRM
FULL
BATH
FULL
BATH
MAIN
¾
BATH
Property History
Mar 26, 2026
Price Reduction arrow_downward
$749,950
NWMLS #2456353
Nov 20, 2025
Listed
$759,950
NWMLS #2456353
More
Listing Details
  • Status
    For Sale
  • Price
    $749,950
  • Original Price
    $759,950
  • List Date
    November 20, 2025
  • Last Status Change
    November 20, 2025
  • Last Update
    April 16, 2026
  • Days on Market
    160 Days
  • Cumulative DOM
    19 Days
  • $/sqft (Total)
    $313/sqft
  • $/sqft (Finished)
    $313/sqft
  • Listing Source
  • MLS Number
    2456353
  • Listing Broker
    Gary Hendrickson
  • Listing Office
    Berkshire Hathaway HS SSP
Monthly Payment Estimate
  • Principal and Interest
    $3,931 / month
  • HOA
    $80 / month
  • Property Taxes
    / month
  • Homeowners Insurance
    $150 / month
  • TOTAL
    $4,161 / month

  • based on 20% down
    ($149,990)
  • and a
    6.85% Interest Rate
  • About:
    All calculations are estimates only and provided by Mainview LLC. Actual amounts will vary.
House Details
  • Sqft (Total)
    2,394 sqft
  • Sqft (Finished)
    2,394 sqft
  • Sqft (Unfinished)
    None
  • Property Type
    House
  • Sub Type
    2 Story
  • Bedrooms
    3 Bedrooms
  • Bathrooms
    2.75 Bathrooms
  • Lot
    6,600 sqft Lot
  • Lot Size Source
    Public Records
  • Lot #
    6
  • Project
    Mountain Glen
  • Total Stories
    2 stories
  • Basement
    None
  • Sqft Source
    Builder Plans
Property Tax Info
  • Property Taxes
    Unspecified
  • No Senior Exemption
Public Parcel Data & Maps
Schools
  • School District
    Puyallup
  • Elementary
    Pope Elem
  • Middle
    Glacier View Jr High
  • High School
    Emerald Ridge High
HOA
  • HOA Dues
    $80 / month
  • Fees Assessed
    Annually
  • HOA Dues Include
    Common Area Maintenance
  • HOA Contact
    Unspecified
  • Management Contact
Community Features
  • Community Features
    CCRs
Parking
  • Covered
    3-Car
  • Types
    Attached Garage
  • Has Garage
    Yes
Construction
  • Year Built
    2026
  • New Construction
    Yes
  • Construction State
    Unspecified
  • Home Builder
    Trumark Homes Washington LLC
Cooling
  • Includes
    Forced Air
    Heat Pump
Heating
  • Includes
    Forced Air
    Heat Pump
Interior
  • Flooring
    Ceramic Tile
    Laminate
    Carpet
  • Features
    Bath Off Primary
    Dbl Pane/Storm Window
    Dining Room
    Fireplace
    Loft
    Pantry
    Walk-In Closet(s)
    Water Heater
Property
  • Lot Features
    Curbs
    Paved
    Sidewalk
  • Site Features
    Cable TV
    Electric Car Charging
    Fenced-Fully
    Gas Available
    High Speed Internet
    Patio
Appliances
  • Included
    Dishwasher
    Microwave
    Stove(s)/Range(s)
Terms
  • 3rd Party Approval Required)
    No
  • Bank Owned (REO)
    No
  • Complex FHA Availability
    Unspecified
  • Potential Terms
    Cash
    Conventional
    FHA
    VA Loan
Utilities
  • Energy
    Electric
    Natural Gas
  • Sewer
    Septic Tank
  • Water Source
    Public
Additional Info
  • Waterfront
    No
  • Air Conditioning (A/C)
    Yes
  • Buyer Broker's Compensation
    2.5%
  • MLS Area #
    Area 88
  • Number of Photos
    32
  • Last Modification Time
    Thursday, April 16, 2026 10:46 AM
  • System Listing ID
    5501624
Update Info
  • Price Reduction
    2026-03-28 08:54:24
  • First For Sale
    2025-11-20 11:32:39
Listing details based on information submitted to the MLS GRID as of Thursday, April 16, 2026 10:46 AM. All data is obtained from various sources and may not have been verified by broker or MLS GRID. Supplied Open House Information is subject to change without notice. All information should be independently reviewed and verified for accuracy. Properties may or may not be listed by the office/agent presenting the information.
View
Sort

Sharing

 
For Sale 160 Days Online
$749,950     ▼ Price Reduction $10K
3 BR    2.75 BA    2,394 SQFT  
Offer Review: Anytime
NWMLS #2456353. Gary Hendrickson, Berkshire Hathaway HS SSP
Map
 
Listing information is provided by the listing agent except as follows: BuilderB indicates that our system has grouped this listing under a home builder name that doesn't match the name provided by the listing broker. DevelopmentD indicates that our system has grouped this listing under a development name that doesn't match the name provided by the listing broker.