to
Reset
Houses
Townhouses
Condos
Land
Price
to
SQFT
to
Bdrms
to
Baths
to
Lot
to
Yr Built
to
Sold
Listed within...
Listed at least...
Offer Review
New Construction
Waterfront
Short-Sales
REO
Parking
to
Unit Flr
to
Unit Nbr
Listings
Neighborhoods
Complexes
Developments
Cities
Counties
Zip Codes
Neighborhood · Condo · Development
School District
Zip Code
City
County
Builder
Listing Numbers
Broker LAG
Boundary Lines
Labels
View
Sort
For Sale 162 Days Online
$9,000,000
43 Acres Lot
No Garage
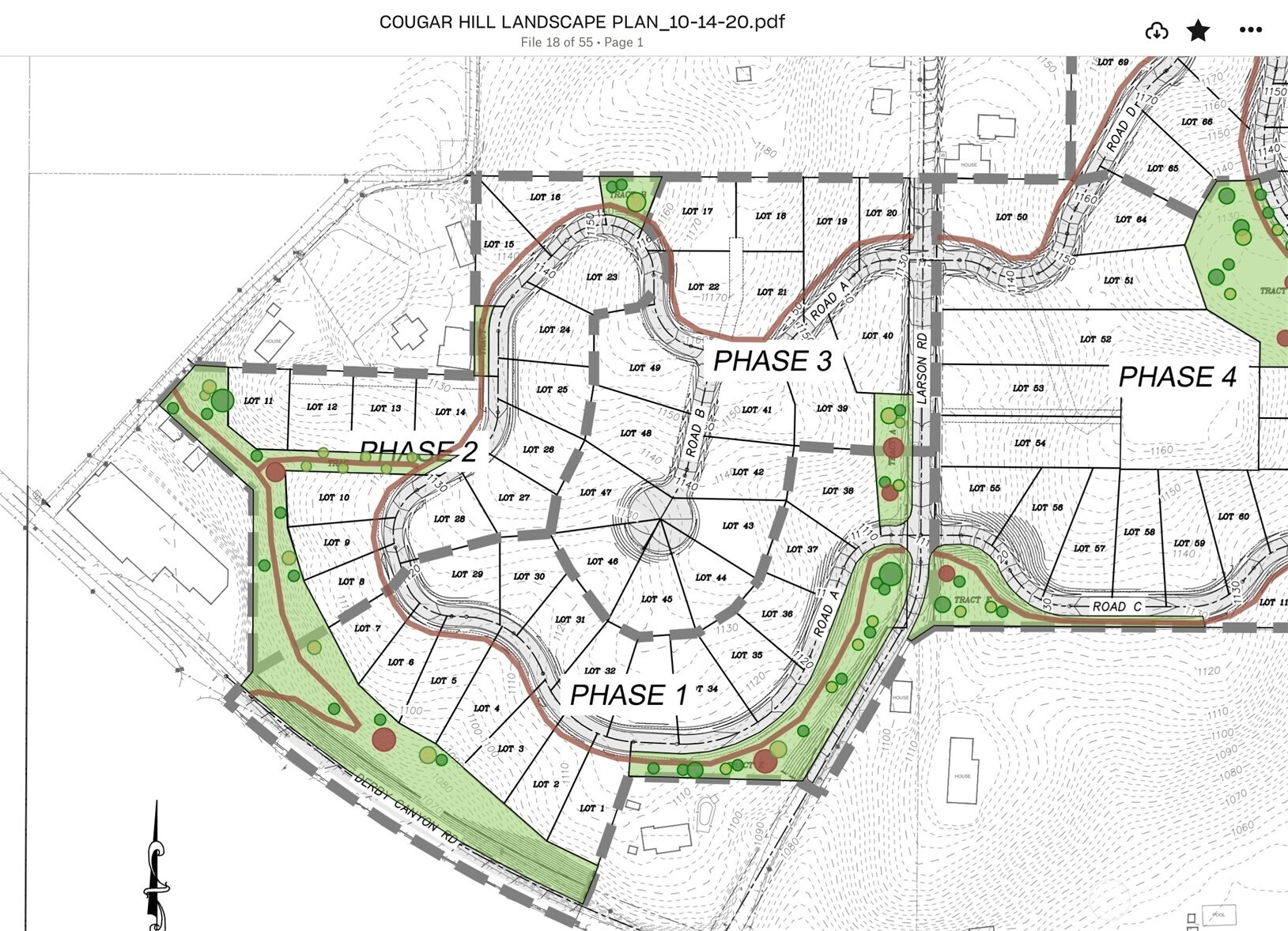
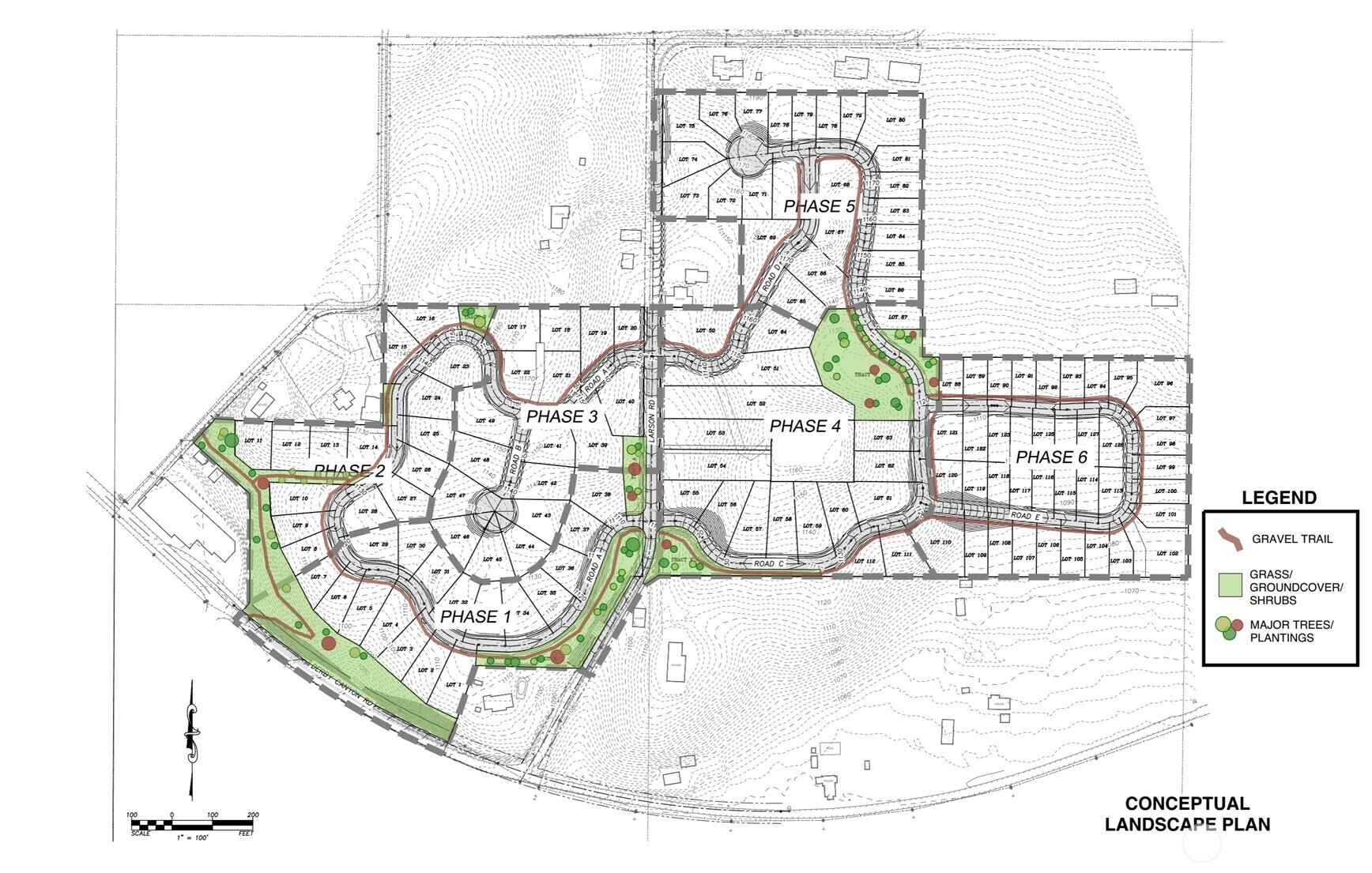
Prelim approved Planned Development In beautiful 4 seasons mecca near Leavenworth, project creates a modern hillside community in Peshastin. Offer to take over the approved project that utilizes prime location, south-facing diverse topography and R-1 zoning to create a haven close to all you enjoy about this area. Builders/developers can create a masterpiece from this south-facing 134-lot canvas. Approval incl. 68 ADUs. Avg lot size 9304’. Sewer, water, fiber, irrig. water at street, allowing for finished lots w/100% utilities. Ideal opportunity to serve the highly desirable housing demands in the upper Wenatchee valley. Contact your agent for this Peshastin property. Options exist on partial purchase sequence w/options.
Offer Review
Will review offers when submitted
Listing source NWMLS MLS #
2455213
Listed by
Michael J. Link, Windermere Bellevue Commons
We don't currently have a buyer representative in this area. To be sure that you're getting objective advice, we always suggest buyers work with their own agent, someone who is not affiliated with the seller.
Property History
Nov 26, 2025
Listed
$9,000,000
NWMLS #2455213
More
Listing Details
  • Status
    For Sale
  • Price
    $9,000,000
  • Original Price
    Same as current
  • List Date
    November 26, 2025
  • Last Status Change
    November 26, 2025
  • Last Update
    January 22, 2026
  • Days on Market
    162 Days
  • Cumulative DOM
    162 Days
  • $/sqft (Total)
    --
  • $/sqft (Finished)
    /sqft
  • Listing Source
  • MLS Number
    2455213
  • Listing Broker
    Michael J. Link
  • Listing Office
    Windermere Bellevue Commons
Monthly Payment Estimate
  • Principal and Interest
    $47,179 / month
  • Property Taxes
    $707 / month
  • Homeowners Insurance
    $1,496 / month
  • TOTAL
    $49,382 / month

  • based on 20% down
    ($1,800,000)
  • and a
    6.85% Interest Rate
  • About:
    All calculations are estimates only and provided by Mainview LLC. Actual amounts will vary.
Property Details
  • Sqft (Total)
    0 sqft
  • Sqft (Finished)
    0 sqft
  • Sqft (Unfinished)
    None
  • Property Type
    Parcel
  • Sub Type
    Res-Less than 1 Acre
  • Bedrooms
    Bedrooms
  • Bathrooms
    0 Bathrooms
  • Lot
    43 Acres Lot
  • Lot Size Source
    CCR
  • Lot #
    1-134
  • Project
    Pine RIdge PD 2020-001
  • Total Stories
    Unspecified
  • Sqft Source
    Unspecified
Property Tax Info
  • 2025 Property Taxes
    $8,480 / year
  • No Senior Exemption
Public Parcel Data & Maps
  • County
    Chelan County
  • Parcel #
    24181630609
  • County Website
    Unspecified
  • County Parcel Map
    Unspecified
  • County GIS Map
    Unspecified
  • About
    County links provided by Mainview LLC
Schools
  • School District
    Cascade
  • Elementary
    Peshastin Dryden Ele
  • Middle
    Icicle River Mid
  • High School
    Cascade High
HOA
  • HOA Dues
    Unspecified
  • Fees Assessed
    Unspecified
  • HOA Dues Include
    Unspecified
  • HOA Contact
    Unspecified
  • Management Contact
Community Features
  • Community Features
    CCRs
    Trail(s)
Parking
  • Covered
    Unspecified
  • Has Garage
    No
Views
  • City
    Mountain(s)
    Partial
    River
    See Remarks
Construction
  • Home Builder
    Unspecified
Cooling
Heating
Interior
Property
Appliances
Terms
  • 3rd Party Approval Required)
    No
  • Bank Owned (REO)
    No
  • Complex FHA Availability
    Unspecified
  • Potential Terms
    Cash Out
    Conventional
    Owner Financing
Utilities
  • Sewer
    In Street
  • Water Source
    Available
    In Street
    See Remarks
    Water Rights
Additional Info
  • Waterfront
    No
  • Air Conditioning (A/C)
    No
  • Buyer Broker's Compensation
    Unspecified
  • MLS Area #
    Area 972
  • Number of Photos
    10
  • Last Modification Time
    Wednesday, January 21, 2026 4:58 PM
  • System Listing ID
    5502818
Update Info
  • First For Sale
    2025-11-26 15:02:44
Listing details based on information submitted to the MLS GRID as of Wednesday, January 21, 2026 4:58 PM. All data is obtained from various sources and may not have been verified by broker or MLS GRID. Supplied Open House Information is subject to change without notice. All information should be independently reviewed and verified for accuracy. Properties may or may not be listed by the office/agent presenting the information.
View
Sort

Sharing

 
For Sale 162 Days Online
$9,000,000  
Offer Review: Anytime
NWMLS #2455213. Michael J. Link, Windermere Bellevue Commons
Map
 
Listing information is provided by the listing agent except as follows: BuilderB indicates that our system has grouped this listing under a home builder name that doesn't match the name provided by the listing broker. DevelopmentD indicates that our system has grouped this listing under a development name that doesn't match the name provided by the listing broker.