to
Reset
Houses
Townhouses
Condos
Land
Price
to
SQFT
to
Bdrms
to
Baths
to
Lot
to
Yr Built
to
Sold
Listed within...
Listed at least...
Offer Review
New Construction
Waterfront
Short-Sales
REO
Parking
to
Unit Flr
to
Unit Nbr
Listings
Neighborhoods
Complexes
Developments
Cities
Counties
Zip Codes
Neighborhood · Condo · Development
School District
Zip Code
City
County
Builder
Listing Numbers
Broker LAG
Boundary Lines
Labels
View
Sort
Sold Closed January 6, 2026
$2,395,000
5 Bedrooms
4.25 Bathrooms
4,250 Sqft House
Built 2020
8,239 Sqft Lot
3-Car Garage
HOA Dues $150 / month
SALE HISTORY
List price was $2,395,000
It took 3 days to go pending.
Then 30 days to close at $2,395,000
Closed at $564/SQFT.
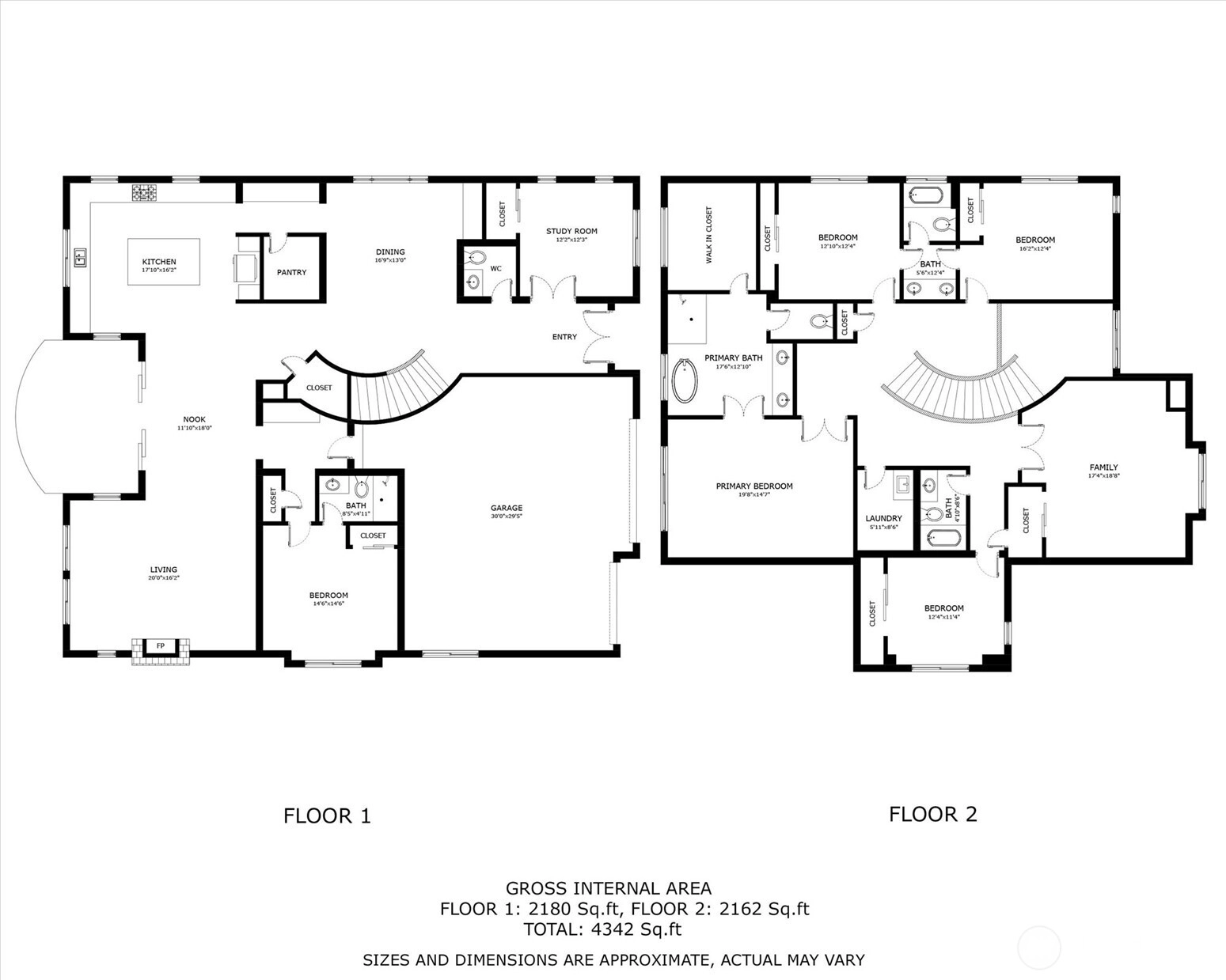
Beautiful home located in the Preserve at Pine Lake. Enjoy quick access to walking trails, convenient shopping, and excellent nearby schools. This spacious 5-Bedroom, 4.5 bath home features an exceptional layout with room for everyone. The main floor includes a guest suite, a large great room, a well-appointed kitchen with eating area, a formal dining room, and a den, offering flexible spaces for both living and entertaining. Upstairs, you’ll find a bonus room, two bedrooms connected by a Jack-and-Jill bath, a generous primary suite with its own private bath, an additional fourth bedroom, a separate hall bath, and a convenient utility room. All furniture and accessories available for sale with home.
Offer Review
No offer review date was specified
Listing source NWMLS MLS #
2457264
Listed by
Tana Whitehead, Coldwell Banker Bain
Buyer's broker
Matt Jensen, The Agency Northwest
Mandy Kaur, The Agency Northwest
Contact our
Sammamish
Real Estate Lead
Compass
Phone...
Time Adjusted Estimated Value
County Wide
  • In
    King County WA
  • prices for
    Single Family Homes
  • have changed
    10%
  • since
    Jan 6, 2026
  • so a sale price of
    $2,395,000
  • would be approximately this amount today
    $2,606,326
Assumptions: The original sale amount reflected a normal arms length sale. Any major updates would add to the value. Any damage or deferred maintenance would subtract from the value.
Bedroom & Bathroom Layout
SECOND
BDRM
BDRM
BDRM
BDRM
FULL
BATH
FULL
BATH
FULL
BATH
MAIN
BDRM
¾
BATH
½
BATH
Property History
Jan 06, 2026
Sold
$2,395,000
NWMLS #2457264 Annualized 8.8% / yr
Dec 12, 2025
Went Pending
$2,395,000
NWMLS #2457264
Dec 07, 2025
Went Pending Inspection
$2,395,000
NWMLS #2457264
Dec 04, 2025
Listed
$2,395,000
NWMLS #2457264
Feb 03, 2020
Sold
$1,449,950
More
Listing Details
  • Sale Price
    $2,395,000
  • Closing Date
    January 6, 2026
  • Last List Price
    $2,395,000
  • Original Price
    Same
  • List Date
    December 4, 2025
  • Pending Date
    December 7, 2025
  • Days to go Pending
    3 days
  • $/sqft (Total)
    $564/sqft
  • $/sqft (Finished)
    $564/sqft
  • Listing Source
  • MLS Number
    2457264
  • Listing Broker
    Tana Whitehead
  • Listing Office
    Coldwell Banker Bain
  • Buyer's Broker
    Matt Jensen
  • Buyer Broker's Firm
    The Agency Northwest
Monthly Payment Estimate
  • Principal and Interest
    $12,555 / month
  • HOA
    $150 / month
  • Property Taxes
    $1,444 / month
  • Homeowners Insurance
    $452 / month
  • TOTAL
    $14,601 / month

  • based on 20% down
    ($479,000)
  • and a
    6.85% Interest Rate
  • About:
    All calculations are estimates only and provided by Mainview LLC. Actual amounts will vary.
House Details
  • Sqft (Total)
    4,250 sqft
  • Sqft (Finished)
    4,250 sqft
  • Sqft (Unfinished)
    None
  • Property Type
    House
  • Sub Type
    2 Story
  • Bedrooms
    5 Bedrooms
  • Bathrooms
    4.25 Bathrooms
  • Lot
    8,239 sqft Lot
  • Lot Size Source
    King County
  • Lot #
    1
  • Project
    Preserve at Pine Lake
  • Total Stories
    2 stories
  • Basement
    None
  • Sqft Source
    King County
Property Tax Info
  • 2025 Property Taxes
    $17,333 / year
  • No Senior Exemption
Public Parcel Data & Maps
Schools
  • School District
    Issaquah
  • Elementary
    Creekside Elem
  • Middle
    Pine Lake Mid
  • High School
    Skyline High
HOA
  • HOA Dues
    $150 / month
  • Fees Assessed
    Annually
  • HOA Dues Include
    Common Area Maintenance
  • HOA Contact
    Unspecified
  • Management Contact
    Unspecified
Parking
  • Covered
    3-Car
  • Types
    Attached Garage
  • Has Garage
    Yes
  • Nbr of Assigned Spaces
    3
Construction
  • Year Built
    2020
  • Home Builder
    JRM Builders. LLC
Cooling
  • Includes
    Central Air
Heating
  • Includes
    Forced Air
Interior
  • Features
    Fireplace
    French Doors
Property
Appliances
  • Included
    Washer
Terms
  • Bank Owned (REO)
    No
Utilities
  • Energy
    Electric
  • Sewer
    Sewer Connected
  • Water Source
    Public
Additional Info
  • Waterfront
    No
  • Air Conditioning (A/C)
    Yes
  • Buyer Broker's Compensation
    2.5%
  • MLS Area #
    Area 540
  • Number of Photos
    38
  • Last Modification Time
    Friday, April 3, 2026 9:20 AM
  • System Listing ID
    5503848
Update Info
  • Closed
    2026-01-06 11:25:53
  • Pending Or Ctg
    2025-12-12 03:04:35
  • First For Sale
    2025-12-04 10:55:16
Listing details based on information submitted to the MLS GRID as of Friday, April 3, 2026 9:20 AM. All data is obtained from various sources and may not have been verified by broker or MLS GRID. Supplied Open House Information is subject to change without notice. All information should be independently reviewed and verified for accuracy. Properties may or may not be listed by the office/agent presenting the information.
View
Sort

Sharing

 
Sold January 6, 2026
$2,395,000  
5 BR    4.25 BA    4,250 SQFT  
NWMLS #2457264. Tana Whitehead, Coldwell Banker Bain
Map
 
Listing information is provided by the listing agent except as follows: BuilderB indicates that our system has grouped this listing under a home builder name that doesn't match the name provided by the listing broker. DevelopmentD indicates that our system has grouped this listing under a development name that doesn't match the name provided by the listing broker.