to
Reset
Houses
Townhouses
Condos
Land
Price
to
SQFT
to
Bdrms
to
Baths
to
Lot
to
Yr Built
to
Sold
Listed within...
Listed at least...
Offer Review
New Construction
Waterfront
Short-Sales
REO
Parking
to
Unit Flr
to
Unit Nbr
Listings
Neighborhoods
Complexes
Developments
Cities
Counties
Zip Codes
Neighborhood · Condo · Development
School District
Zip Code
City
County
Builder
Listing Numbers
Broker LAG
Boundary Lines
Labels
View
Sort
Sold Closed January 30, 2026
$589,500
2 Bedrooms
1.75 Bathrooms
1,537 Sqft House
Built 1967
1.71 Acres Lot
2-Car Garage
SALE HISTORY
List price was $589,500
It took 7 days to go pending.
Then 50 days to close at $589,500
Closed at $384/SQFT.
Nestled on 1.7 acres across two private lots, this charming, well-maintained home has been lovingly cared for by the same owner for 30 years. Enjoy thoughtful updates, a large functional kitchen, a home office, and two spacious bedrooms opening to a deck overlooking the property. A cozy wood-burning fireplace and AC provide year-round comfort. Outside features include a large back deck, covered front porch, wood shed, and detached garage with shop and covered tractor/toy space. The fully fenced yard offers ample room for a garden. Quiet, secluded, and a short walk to the beach, yet close to Gig Harbor and Key Center amenities. It is the perfect place to call Home.
Offer Review
No offer review date was specified
Listing source NWMLS MLS #
2459070
Listed by
Natasha Schmierer Weiss, Hawkins Poe
Buyer's broker
Mark Hopkins, Redfin
Contact our
Lakebay
Real Estate Lead
RE/MAX Northwest Realtors
Phone...
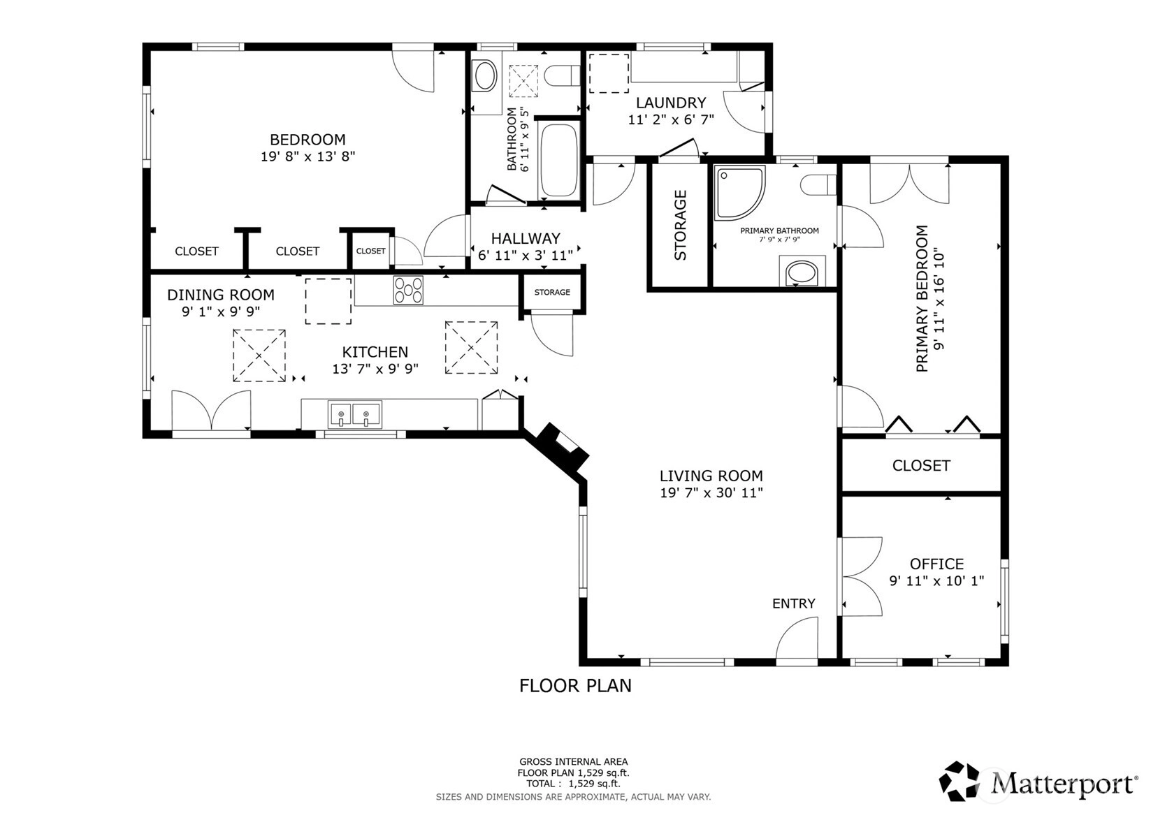
Bedroom & Bathroom Layout
MAIN
BDRM
BDRM
FULL
BATH
¾
BATH
LOWER
Property History
Jan 30, 2026
Sold
$589,500
NWMLS #2459070
Jan 09, 2026
Went Pending
$589,500
NWMLS #2459070
Dec 11, 2025
Went Pending Inspection
$589,500
NWMLS #2459070
Dec 04, 2025
Listed
$589,500
NWMLS #2459070
More
Listing Details
  • Sale Price
    $589,500
  • Closing Date
    January 30, 2026
  • Last List Price
    $589,500
  • Original Price
    Same
  • List Date
    December 4, 2025
  • Pending Date
    December 11, 2025
  • Days to go Pending
    7 days
  • $/sqft (Total)
    $384/sqft
  • $/sqft (Finished)
    $384/sqft
  • Listing Source
  • MLS Number
    2459070
  • Listing Broker
    Natasha Schmierer Weiss
  • Listing Office
    Hawkins Poe
  • Buyer's Broker
    Mark Hopkins
  • Buyer Broker's Firm
    Redfin
Monthly Payment Estimate
  • Principal and Interest
    $3,090 / month
  • Property Taxes
    $431 / month
  • Homeowners Insurance
    $121 / month
  • TOTAL
    $3,642 / month

  • based on 20% down
    ($117,900)
  • and a
    6.85% Interest Rate
  • About:
    All calculations are estimates only and provided by Mainview LLC. Actual amounts will vary.
House Details
  • Sqft (Total)
    1,537 sqft
  • Sqft (Finished)
    1,537 sqft
  • Sqft (Unfinished)
    None
  • Property Type
    House
  • Sub Type
    1 Story
  • Bedrooms
    2 Bedrooms
  • Bathrooms
    1.75 Bathrooms
  • Lot
    1.71 Acres Lot
  • Lot Size Source
    Realist
  • Lot #
    Unspecified
  • Project
    Unspecified
  • Total Stories
    1 story
  • Basement
    Unfinished
  • Sqft Source
    Realist
Property Tax Info
  • 2025 Property Taxes
    $5,171 / year
  • No Senior Exemption
Public Parcel Data & Maps
Schools
  • School District
    Peninsula
  • Elementary
    Unspecified
  • Middle
    Unspecified
  • High School
    Unspecified
HOA
  • HOA Dues
    Unspecified
  • Fees Assessed
    Unspecified
  • HOA Dues Include
    Unspecified
  • HOA Contact
    Unspecified
  • Management Contact
    Unspecified
Parking
  • Covered
    2-Car
  • Types
    Detached Garage
  • Has Garage
    Yes
  • Nbr of Assigned Spaces
    2
Views
  • Territorial
Construction
  • Year Built
    1967
  • Home Builder
    Unspecified
Cooling
  • Includes
    Heat Pump
Heating
  • Includes
    Forced Air
    Heat Pump
Interior
  • Flooring
    Ceramic Tile
    Hardwood
    Carpet
  • Features
    Bath Off Primary
    Double Pane/Storm Window
    Fireplace
    French Doors
    Skylight(s)
    SMART Wired
    Wine/Beverage Refrigerator
Property
Appliances
  • Included
    Dishwasher(s)
    Double Oven
    Dryer(s)
    Microwave(s)
    Refrigerator(s)
    Washer(s)
Terms
  • Bank Owned (REO)
    No
Utilities
  • Energy
    Electric
  • Sewer
    Septic Tank
  • Water Source
    Individual Well
Additional Info
  • Waterfront
    No
  • Air Conditioning (A/C)
    Yes
  • Buyer Broker's Compensation
    2.5%
  • MLS Area #
    Area 4
  • Number of Photos
    31
  • Last Modification Time
    Friday, January 30, 2026 2:07 PM
  • System Listing ID
    5503931
Update Info
  • Closed
    2026-01-30 14:27:58
  • Pending Or Ctg
    2026-01-09 17:57:31
  • First For Sale
    2025-12-04 13:29:04
Listing details based on information submitted to the MLS GRID as of Friday, January 30, 2026 2:07 PM. All data is obtained from various sources and may not have been verified by broker or MLS GRID. Supplied Open House Information is subject to change without notice. All information should be independently reviewed and verified for accuracy. Properties may or may not be listed by the office/agent presenting the information.
View
Sort

Sharing

 
Sold January 30, 2026
$589,500  
2 BR    1.75 BA    1,537 SQFT  
NWMLS #2459070. Natasha Schmierer Weiss, Hawkins Poe
Map
 
Listing information is provided by the listing agent except as follows: BuilderB indicates that our system has grouped this listing under a home builder name that doesn't match the name provided by the listing broker. DevelopmentD indicates that our system has grouped this listing under a development name that doesn't match the name provided by the listing broker.