to
Reset
Houses
Townhouses
Condos
Land
Price
to
SQFT
to
Bdrms
to
Baths
to
Lot
to
Yr Built
to
Sold
Listed within...
Listed at least...
Offer Review
New Construction
Waterfront
Short-Sales
REO
Parking
to
Unit Flr
to
Unit Nbr
Listings
Neighborhoods
Complexes
Developments
Cities
Counties
Zip Codes
Neighborhood · Condo · Development
School District
Zip Code
City
County
Builder
Listing Numbers
Broker LAG
Boundary Lines
Labels
View
Sort
Sold Closed December 15, 2025
$642,500
2 Bedrooms
1.75 Bathrooms
1,616 Sqft House
Waterfront
Built 1975
16,553 Sqft Lot
1-Car Garage
HOA Dues $13 / month
SALE HISTORY
List price was $615,000
It took 2 days to go pending.
Then 8 days to close at $642,500
Closed at $398/SQFT.
Experience rare riverfront living in a secluded Woodland community, perfectly set across the water from Lewis River Golf Club. Lightly used as a vacation retreat since built, this home features 2 bedrooms, 1.5 baths, and a 384 sq ft basement–great for storage, hobbies, or guest overflow. Recent upgrades include a high-efficiency heating and cooling system and reverse osmosis water filtration. Enjoy your own fishing bank and dock or launch your boat from the community ramp. Detached garage, shed, RV/boat storage outbuildings and carport provide plenty of room. Appointment required to view due to private community. Mortgage savings may be available for buyers of this listing.
Offer Review
No offer review date was specified
Listing source NWMLS MLS #
2457315
Listed by
Sean Pennington, Redfin
Buyer's broker
Taryn A. Nelson, Key Results Real Estate
We don't currently have a buyer representative in this area. To be sure that you're getting objective advice, we always suggest buyers work with their own agent, someone who is not affiliated with the seller.
Bedroom & Bathroom Layout
MAIN
BDRM
BDRM
FULL
BATH
¾
BATH
LOWER
Property History
Dec 15, 2025
Sold
$642,500
NWMLS #2457315
Dec 08, 2025
Went Pending
$615,000
NWMLS #2457315
Dec 05, 2025
Listed
$615,000
NWMLS #2457315
More
Listing Details
  • Sale Price
    $642,500
  • Closing Date
    December 15, 2025
  • Last List Price
    $615,000
  • Original Price
    Same
  • List Date
    December 5, 2025
  • Pending Date
    December 7, 2025
  • Days to go Pending
    2 days
  • $/sqft (Total)
    $398/sqft
  • $/sqft (Finished)
    $398/sqft
  • Listing Source
  • MLS Number
    2457315
  • Listing Broker
    Sean Pennington
  • Listing Office
    Redfin
  • Buyer's Broker
    Taryn A. Nelson
  • Buyer Broker's Firm
    Key Results Real Estate
Monthly Payment Estimate
  • Principal and Interest
    $3,368 / month
  • HOA
    $13 / month
  • Property Taxes
    $381 / month
  • Homeowners Insurance
    $130 / month
  • TOTAL
    $3,892 / month

  • based on 20% down
    ($128,500)
  • and a
    6.85% Interest Rate
  • About:
    All calculations are estimates only and provided by Mainview LLC. Actual amounts will vary.
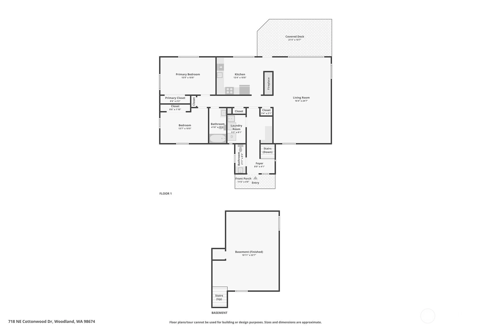
House Details
  • Sqft (Total)
    1,616 sqft
  • Sqft (Finished)
    1,616 sqft
  • Sqft (Unfinished)
    None
  • Property Type
    House
  • Sub Type
    1 Story + Basement
  • Bedrooms
    2 Bedrooms
  • Bathrooms
    1.75 Bathrooms
  • Lot
    16,553 sqft Lot
  • Lot Size Source
    tax
  • Lot #
    Unspecified
  • Project
    Unspecified
  • Total Stories
    2 stories
  • Basement
    Partially Finished
  • Sqft Source
    gis
Property Tax Info
  • 2024 Property Taxes
    $4,575 / year
  • No Senior Exemption
Public Parcel Data & Maps
  • County
    Clark County
  • Parcel #
    121565026
  • County Website
    Unspecified
  • County Parcel Map
    Unspecified
  • County GIS Map
    Unspecified
  • About
    County links provided by Mainview LLC
Schools
  • School District
    Woodland
  • Elementary
    Buyer To Verify
  • Middle
    Woodland Mid
  • High School
    Woodland High
Waterfront
  • Waterfront
    Yes
  • Type
    No Bank
    Ocean Front
    River
  • Frontage
    85 Feet
HOA
  • HOA Dues
    $13 / month
  • Fees Assessed
    Annually
  • HOA Dues Include
    Common Area Maintenance
    Road Maintenance
    Water
  • HOA Contact
    Unspecified
  • Management Contact
    Unspecified
Community Features
  • Community Features
    Boat Launch
    CCRs
Parking
  • Covered
    1-Car
  • Types
    Detached Carport
    Driveway
    Detached Garage
    RV Parking
  • Has Garage
    Yes
  • Nbr of Assigned Spaces
    1
Views
  • Golf Course
    River
Construction
  • Year Built
    1975
  • Home Builder
    Unspecified
Cooling
  • Includes
    Heat Pump
Heating
  • Includes
    Forced Air
Interior
  • Flooring
    Ceramic Tile
    Carpet
  • Features
    Ceiling Fan(s)
    Dining Room
    Fireplace
Property
  • Site Features
    Deck
    Outbuildings
    Patio
    RV Parking
Appliances
  • Included
    Dishwasher(s)
    Dryer(s)
    Microwave(s)
    Refrigerator(s)
    Stove(s)/Range(s)
    Washer(s)
Terms
  • Bank Owned (REO)
    No
Utilities
  • Energy
    Electric
  • Sewer
    Septic Tank
  • Water Source
    See Remarks
    Shared Well
Additional Info
  • Waterfront
    Yes
  • Air Conditioning (A/C)
    Yes
  • Buyer Broker's Compensation
    0%
  • MLS Area #
    Area 1051
  • Number of Photos
    37
  • Last Modification Time
    Monday, December 15, 2025 4:36 PM
  • System Listing ID
    5504173
Update Info
  • Closed
    2025-12-15 16:51:45
  • Pending Or Ctg
    2025-12-08 09:06:35
  • First For Sale
    2025-12-05 09:44:13
Listing details based on information submitted to the MLS GRID as of Monday, December 15, 2025 4:36 PM. All data is obtained from various sources and may not have been verified by broker or MLS GRID. Supplied Open House Information is subject to change without notice. All information should be independently reviewed and verified for accuracy. Properties may or may not be listed by the office/agent presenting the information.
View
Sort

Sharing

 
Sold December 15, 2025
$642,500   $615,000
2 BR    1.75 BA    1,616 SQFT  
NWMLS #2457315. Sean Pennington, Redfin
Map
 
Listing information is provided by the listing agent except as follows: BuilderB indicates that our system has grouped this listing under a home builder name that doesn't match the name provided by the listing broker. DevelopmentD indicates that our system has grouped this listing under a development name that doesn't match the name provided by the listing broker.