to
Reset
Houses
Townhouses
Condos
Land
Price
to
SQFT
to
Bdrms
to
Baths
to
Lot
to
Yr Built
to
Sold
Listed within...
Listed at least...
Offer Review
New Construction
Waterfront
Short-Sales
REO
Parking
to
Unit Flr
to
Unit Nbr
Listings
Neighborhoods
Complexes
Developments
Cities
Counties
Zip Codes
Neighborhood · Condo · Development
School District
Zip Code
City
County
Builder
Listing Numbers
Broker LAG
Boundary Lines
Labels
View
Sort
For Sale 218 Days Online
$1,199,999
Originally $1,249,950
4 Bedrooms
1.75 Bathrooms
1,500 Sqft House
Built 1901
2,520 Sqft Lot
No Garage
Welcome to your fully renovated urban retreat in Capitol Hill! This bright home boasts new wood floors, a terrazzo-tiled bathroom, and updated electrical, water, sewer, and central A/C. Relax in your private garden oasis with a hot tub, ideal for entertaining. One block from light rail and farmers’ market, near restaurants, shops, and parks. Modern comfort meets city convenience. MR (M1) zoning. Also available fully furnished.
Offer Review
Will review offers when submitted
Listing source NWMLS MLS #
2426647
Listed by
Seth Raddue, Aris360
Blake Brown, Aris360
Contact our
Capitol Hill
Real Estate Lead
John L. Scott
Phone...
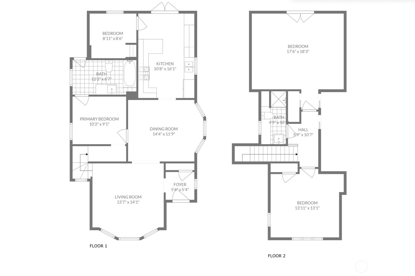
Bedroom & Bathroom Layout
SECOND
BDRM
BDRM
¾
BATH
MAIN
BDRM
BDRM
FULL
BATH
LOWER
Property History
Mar 20, 2026
Price Reduction arrow_downward
$1,199,999
NWMLS #2426647
Dec 15, 2025
Listed
$1,249,950
NWMLS #2426647
Aug 29, 2025
Listed
$1,249,950
NWMLS #2426647
Jun 09, 2020
Sold
$980,000
NWMLS #1615247 Annualized 4.6% / yr
Aug 17, 2017
Sold
$863,000
NWMLS #1138043 Annualized 8.8% / yr
May 11, 2016
Sold
$775,000
NWMLS #915921 Annualized 2.8% / yr
Apr 05, 2007
Sold
$600,000
More
Listing Details
  • Status
    For Sale
  • Price
    $1,199,999
  • Original Price
    $1,249,950
  • List Date
    August 29, 2025
  • Last Status Change
    December 15, 2025
  • Last Update
    March 27, 2026
  • Days on Market
    218 Days
  • Cumulative DOM
    207 Days
  • $/sqft (Total)
    $800/sqft
  • $/sqft (Finished)
    Same
  • Listing Source
  • MLS Number
    2426647
  • Listing Broker
    Seth Raddue
  • Listing Office
    Aris360
Monthly Payment Estimate
  • Principal and Interest
    $6,290 / month
  • Property Taxes
    $764 / month
  • Homeowners Insurance
    $232 / month
  • TOTAL
    $7,286 / month

  • based on 20% down
    ($240,000)
  • and a
    6.85% Interest Rate
  • About:
    All calculations are estimates only and provided by Mainview LLC. Actual amounts will vary.
House Details
  • Sqft (Total)
    1,500 sqft
  • Sqft (Finished)
    1,500 sqft
  • Sqft (Unfinished)
    None
  • Property Type
    House
  • Sub Type
    1 1/2 Stories + Basement
  • Bedrooms
    4 Bedrooms
  • Bathrooms
    1.75 Bathrooms
  • Lot
    2,520 sqft Lot
  • Lot Size Source
    King County
  • Lot #
    10
  • Project
    SE-29-25-4
  • Total Stories
    2 stories
  • Basement
    Unfinished
  • Sqft Source
    King County
Property Tax Info
  • 2025 Property Taxes
    $9,173 / year
  • No Senior Exemption
Public Parcel Data & Maps
Schools
  • School District
    Seattle
  • Elementary
    Lowell
  • Middle
    Meany Mid
  • High School
    Garfield High
HOA
  • HOA Dues
    Unspecified
  • Fees Assessed
    Unspecified
  • HOA Dues Include
    Unspecified
  • HOA Contact
    Unspecified
  • Management Contact
Community Features
  • Community Features
    Park
    Playground
    Trail(s)
Parking
  • Covered
    Unspecified
  • Types
    None
  • Has Garage
    No
Views
  • Territorial
Construction
  • Year Built
    1901
  • Home Builder
    Unspecified
Cooling
  • Includes
    Central Air
Heating
  • Includes
    Forced Air
Interior
  • Flooring
    Hardwood
  • Features
    Dining Room
    French Doors
    Security System
    Skylight(s)
    Vaulted Ceiling(s)
    Water Heater
Property
  • Lot Features
    Curbs
    Paved
    Secluded
    Sidewalk
  • Site Features
    Cable TV
    Deck
    Fenced-Fully
    Gas Available
    High Speed Internet
    Hot Tub/Spa
    Shop
Appliances
  • Included
    Dishwasher
    Disposal
    Dryer
    Microwave
    Refrigerator
    Stove(s)/Range(s)
    Washer
Terms
  • 3rd Party Approval Required)
    No
  • Bank Owned (REO)
    No
  • Complex FHA Availability
    Unspecified
  • Potential Terms
    Cash
    Conventional
    FHA
    VA Loan
Utilities
  • Energy
    Electric
    Natural Gas
  • Sewer
    Sewer Connected
  • Water Source
    Public
Additional Info
  • Waterfront
    No
  • Air Conditioning (A/C)
    Yes
  • Buyer Broker's Compensation
    2.5%
  • MLS Area #
    Area 390
  • Number of Photos
    35
  • Last Modification Time
    Friday, March 27, 2026 10:23 AM
  • System Listing ID
    5505626
Update Info
  • Price Reduction
    2026-03-20 17:41:41
  • First For Sale
    2025-12-15 14:27:18
Listing details based on information submitted to the MLS GRID as of Friday, March 27, 2026 10:23 AM. All data is obtained from various sources and may not have been verified by broker or MLS GRID. Supplied Open House Information is subject to change without notice. All information should be independently reviewed and verified for accuracy. Properties may or may not be listed by the office/agent presenting the information.
View
Sort

Sharing

 
For Sale 218 Days Online
$1,199,999     ▼ Price Reduction $49K
4 BR    1.75 BA    1,500 SQFT  
Offer Review: Anytime
NWMLS #2426647. Seth Raddue, Aris360
Map
 
Listing information is provided by the listing agent except as follows: BuilderB indicates that our system has grouped this listing under a home builder name that doesn't match the name provided by the listing broker. DevelopmentD indicates that our system has grouped this listing under a development name that doesn't match the name provided by the listing broker.