to
Reset
Houses
Townhouses
Condos
Land
Price
to
SQFT
to
Bdrms
to
Baths
to
Lot
to
Yr Built
to
Sold
Listed within...
Listed at least...
Offer Review
New Construction
Waterfront
Short-Sales
REO
Parking
to
Unit Flr
to
Unit Nbr
Listings
Neighborhoods
Complexes
Developments
Cities
Counties
Zip Codes
Neighborhood · Condo · Development
School District
Zip Code
City
County
Builder
Listing Numbers
Broker LAG
Boundary Lines
Labels
View
Sort
Sold Closed May 15, 2026
$1,350,000
Originally $1,490,000
4 Bedrooms
3.5 Bathrooms
4,267 Sqft House (3,819 Finished)
Built 2005
4.76 Acres Lot
6-Car Garage
SALE HISTORY
List price was $1,490,000
The price was later changed to $1,425,000.
It took 71 days to go pending.
Then 72 days to close at $1,350,000
Closed at $316/SQFT.
Own stunning views of Mt Baker from every corner of this custom single floor living, gorgeous custom home, nestled within a gated 5 acre park like setting, complete with invisible dog fence and Lifetime playground. Exceptional value in every detail including the spa like primary suite, 9'-24' cathedral ceilings, French doors, custom alder kitchen cabinets ,double convection oven, and walk-in pantry, wet bar, expansive bonus room and more. Recently added is a spacious laundry mud room and a 448 sq ft, fully independent and permitted suite with full kitchen, laundry, and separate heat pump. The 40’ by 60’ three bay insulated shop is equipped with radiant heat, full power and car lift. Simply too much to list! This is a must see!
Offer Review
No offer review date was specified
Listing source NWMLS MLS #
2461283
Listed by
Christine Rasmussen, Redfin
Buyer's broker
Crystal O'Neill, Windermere Real Estate Whatcom
Contact our
Ferndale
Real Estate Lead
Buck Real Estate
Phone...
Bedroom & Bathroom Layout
SECOND
MAIN
BDRM
BDRM
BDRM
BDRM
FULL
BATH
FULL
BATH
FULL
BATH
½
BATH
Property History
May 15, 2026
Sold
$1,350,000
NWMLS #2461283 Annualized 3.9% / yr
Mar 11, 2026
Went Pending
$1,425,000
NWMLS #2461283
Mar 06, 2026
Went Pending Inspection
$1,425,000
NWMLS #2461283
Feb 07, 2026
Price Reduction arrow_downward
$1,425,000
NWMLS #2461283
Jan 17, 2026
Price Reduction arrow_downward
$1,440,000
NWMLS #2461283
Dec 23, 2025
Listed
$1,490,000
NWMLS #2461283
Sep 09, 2024
Sold
$1,265,000
Sep 09, 2024
Went Pending
$1,275,000
Aug 22, 2024
Went Contingent
$1,275,000
Aug 13, 2024
Went Pending
$1,275,000
Aug 09, 2024
Went Contingent
$1,275,000
Jul 18, 2024
Listed
$1,275,000
More
Listing Details
  • Sale Price
    $1,350,000
  • Closing Date
    May 15, 2026
  • Last List Price
    $1,425,000
  • Original Price
    $1,490,000
  • List Date
    December 23, 2025
  • Pending Date
    March 4, 2026
  • Days to go Pending
    71 days
  • $/sqft (Total)
    $316/sqft
  • $/sqft (Finished)
    $353/sqft
  • Listing Source
  • MLS Number
    2461283
  • Listing Broker
    Christine Rasmussen
  • Listing Office
    Redfin
  • Buyer's Broker
    Crystal O'Neill
  • Buyer Broker's Firm
    Windermere Real Estate Whatcom
Monthly Payment Estimate
  • Principal and Interest
    $7,077 / month
  • Property Taxes
    $659 / month
  • Homeowners Insurance
    $260 / month
  • TOTAL
    $7,996 / month

  • based on 20% down
    ($270,000)
  • and a
    6.85% Interest Rate
  • About:
    All calculations are estimates only and provided by Mainview LLC. Actual amounts will vary.
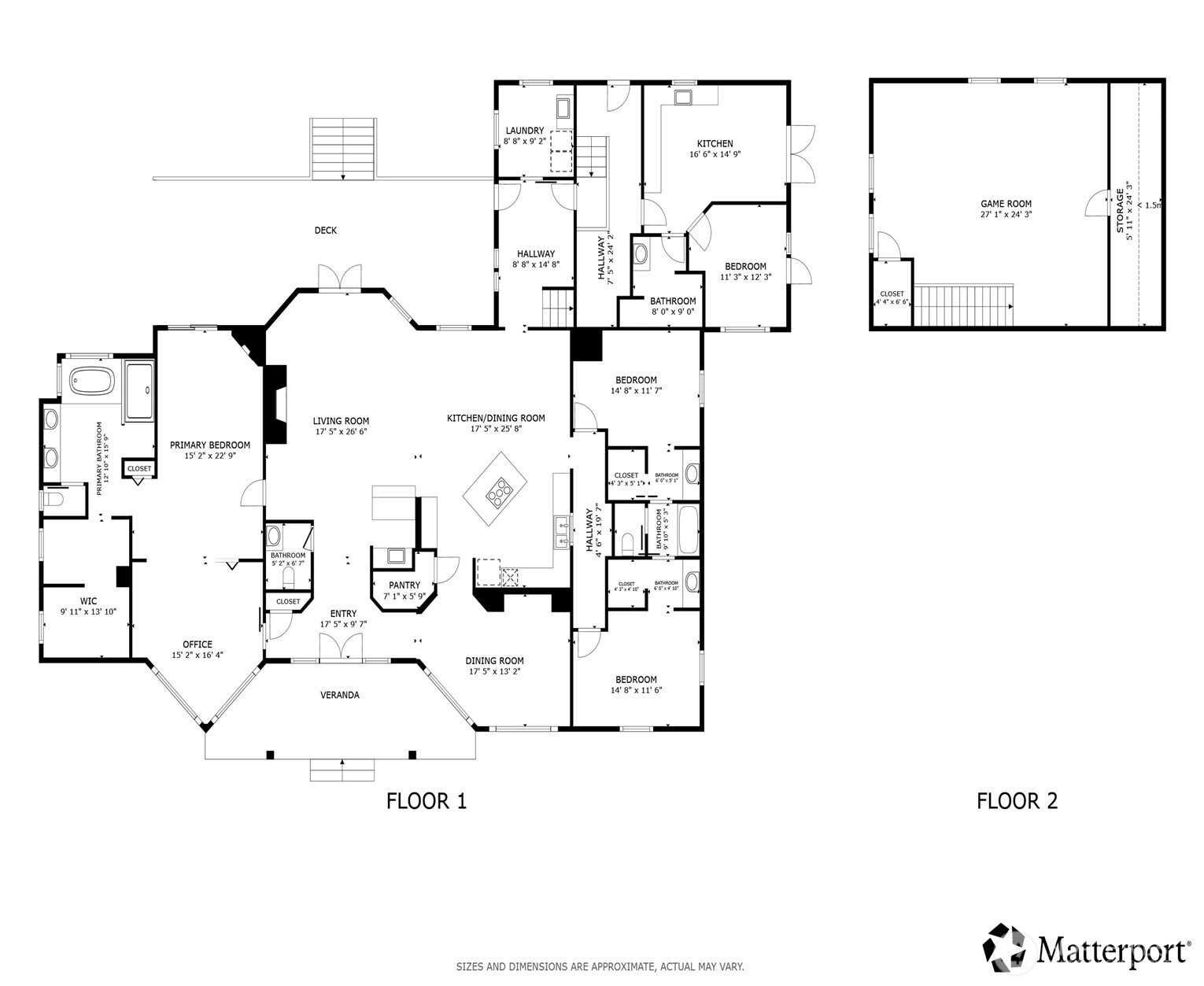
House Details
  • Sqft (Total)
    4,267 sqft
  • Sqft (Finished)
    3,819 sqft
  • Sqft (Unfinished)
    448 sqft
  • Property Type
    House
  • Sub Type
    1 1/2 Story
  • Bedrooms
    4 Bedrooms
  • Bathrooms
    3.5 Bathrooms
  • Lot
    4.76 Acres Lot
  • Lot Size Source
    Realist - Buyer to Verify
  • Lot #
    Unspecified
  • Project
    Unspecified
  • Total Stories
    2 stories
  • Basement
    None
  • Sqft Source
    Realist - Buyer to Verify
Property Tax Info
  • 2025 Property Taxes
    $7,913 / year
  • No Senior Exemption
Public Parcel Data & Maps
  • County
    Whatcom County
  • Parcel #
    3901030342160000
  • County Website
    Unspecified
  • County Parcel Map
    Unspecified
  • County GIS Map
    Unspecified
  • About
    County links provided by Mainview LLC
Schools
  • School District
    Ferndale
  • Elementary
    Buyer To Verify
  • Middle
    Buyer To Verify
  • High School
    Buyer To Verify
HOA
  • HOA Dues
    Unspecified
  • Fees Assessed
    Unspecified
  • HOA Dues Include
    Unspecified
  • HOA Contact
    Unspecified
  • Management Contact
    Unspecified
Parking
  • Covered
    6-Car
  • Types
    Driveway
    RV Parking
  • Has Garage
    Yes
Views
  • Mountains
    Territorial
Construction
  • Year Built
    2005
  • Home Builder
    Unspecified
Cooling
  • Includes
    Central Air
    Ductless
    Forced Air
    Heat Pump
Heating
  • Includes
    Ductless
    Forced Air
    Heat Pump
    Recirculation Pump
Interior
  • Flooring
    Ceramic Tile
    Engineered Hardwood
    Slate
    Carpet
  • Features
    Bath Off Primary
    Built-In Vacuum
    Ceiling Fan(s)
    Dbl Pane/Storm Window
    Dining Room
    Fireplace
    Fireplace (Primary Bedroom)
    French Doors
    High Tech Cabling
    Hot Tub/Spa
    Loft
    Pantry
    Skylight(s)
    Vaulted Ceiling(s)
    Walk-In Closet(s)
    Wet Bar
    Wired for Generator
Property
  • Lot Features
    Dead End Street
    Paved
  • Site Features
    Deck
    Dog Run
    Fenced-Partially
    Gated Entry
    High Speed Internet
    Hot Tub/Spa
    Outbuildings
    Propane
    RV Parking
    Shop
Appliances
  • Included
    Dishwasher
    Disposal
    Double Oven
    Microwave
    Refrigerator
    Stove(s)/Range(s)
    Tankless Water Heater
Terms
  • Bank Owned (REO)
    No
Utilities
  • Energy
    Propane
  • Sewer
    Septic Tank
  • Water Source
    Community
Additional Info
  • Waterfront
    No
  • Air Conditioning (A/C)
    Yes
  • Buyer Broker's Compensation
    2.5%
  • MLS Area #
    Area 870
  • Number of Photos
    40
  • Last Modification Time
    Friday, May 15, 2026 5:48 PM
  • System Listing ID
    5506594
Update Info
  • Closed
    2026-05-15 18:11:29
  • Pending Or Ctg
    2026-03-11 17:28:31
  • Price Reduction
    2026-02-07 22:01:52
  • First For Sale
    2025-12-23 17:13:13
Listing details based on information submitted to the MLS GRID as of Friday, May 15, 2026 5:48 PM. All data is obtained from various sources and may not have been verified by broker or MLS GRID. Supplied Open House Information is subject to change without notice. All information should be independently reviewed and verified for accuracy. Properties may or may not be listed by the office/agent presenting the information.
View
Sort

Sharing

 
Sold May 15, 2026
$1,350,000   $1,425,000
4 BR    3.5 BA    4,267 SQFT  
NWMLS #2461283. Christine Rasmussen, Redfin
Map
 
Listing information is provided by the listing agent except as follows: BuilderB indicates that our system has grouped this listing under a home builder name that doesn't match the name provided by the listing broker. DevelopmentD indicates that our system has grouped this listing under a development name that doesn't match the name provided by the listing broker.