to
Reset
Houses
Townhouses
Condos
Land
Price
to
SQFT
to
Bdrms
to
Baths
to
Lot
to
Yr Built
to
Sold
Listed within...
Listed at least...
Offer Review
New Construction
Waterfront
Short-Sales
REO
Parking
to
Unit Flr
to
Unit Nbr
Listings
Neighborhoods
Complexes
Developments
Cities
Counties
Zip Codes
Neighborhood · Condo · Development
School District
Zip Code
City
County
Builder
Listing Numbers
Broker LAG
Boundary Lines
Labels
View
Sort
For Sale 10 Days Online
$1,450,000
5 Bedrooms
3.25 Bathrooms
5,019 Sqft House (4,620 Finished)
Built 2008
8,062 Sqft Lot
2-Car Garage
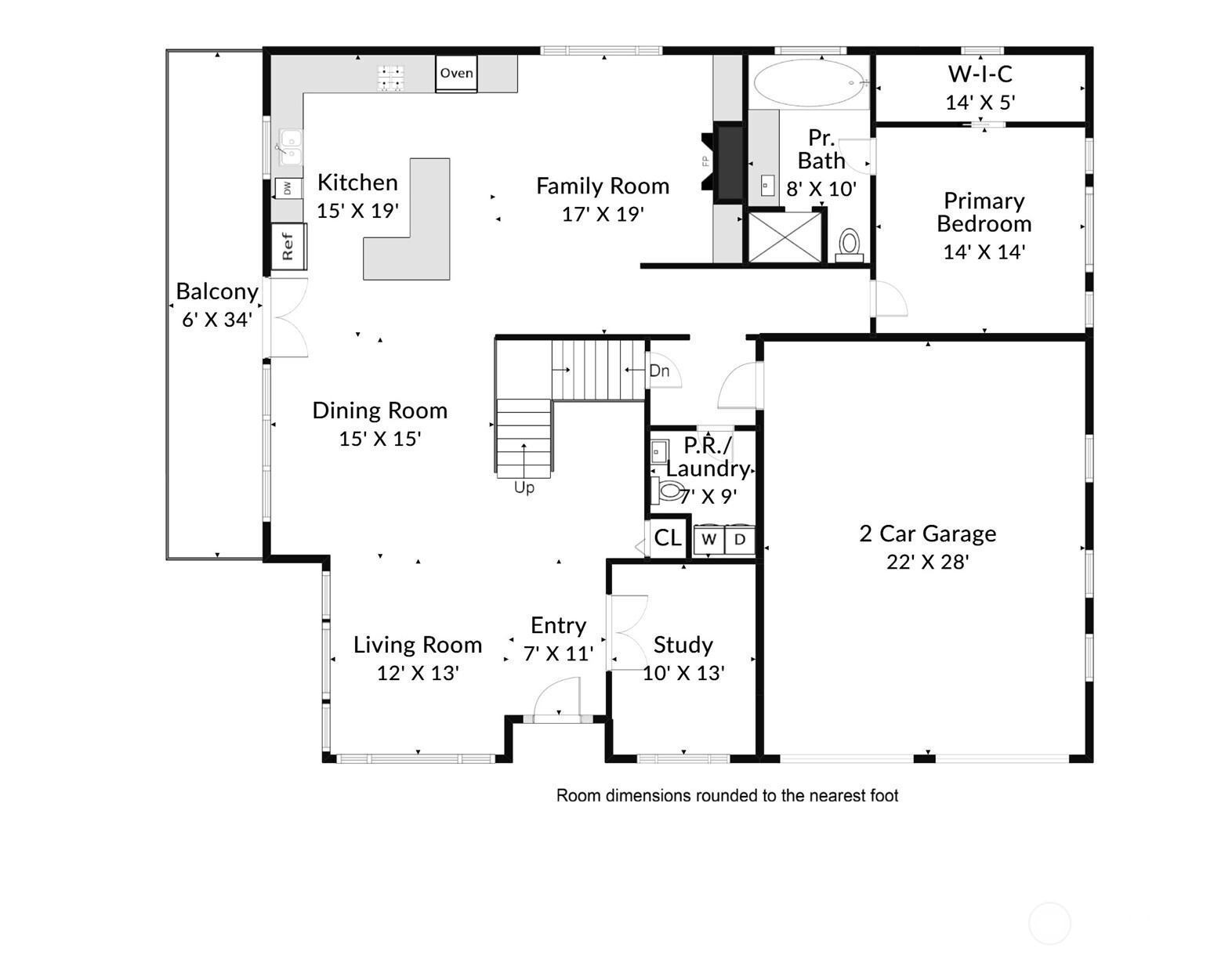
Welcome home to this thoughtful North Hill retreat with tranquil waterfalls, koi pond, and lush established gardens. This 5 bedroom / 3.25 bath property has 2 dens, 2 kitchens, and 2 laundry areas. The single family home currently has the daylight basement as an income producing separate unit with its own entrance. Enter the light-filled main floor with 11 foot ceilings, formal living, study, dining, chef/entertainer's dream kitchen, family room, powder room with laundry, primary suite, two car garage, and view deck. The top floor has 2 bedrooms, full bath, and a large game room with gorgeous views. The daylight basement has 2 bedrooms, den, living room, 3/4 bath, kitchenette, laundry room, tons of storage, and covered patio.
Offer Review Date
Monday, January 12, 2026
(Seller may elect to accept an offer early)
Listing source NWMLS MLS #
2464604
Listed by
Philip A Heier, Windermere RE/Capitol Hill,Inc
Open Houses
Sunday Jan 11, 2026   12pm - 4pm
Contact our
Des Moines
Real Estate Lead
TPG Realty | Keller Williams
Phone...
Bedroom & Bathroom Layout
SECOND
BDRM
BDRM
FULL
BATH
MAIN
BDRM
FULL
BATH
½
BATH
LOWER
BDRM
BDRM
¾
BATH
Property History
Jan 02, 2026
Listed
$1,450,000
NWMLS #2464604
Jan 01, 2026
Listed
$1,450,000
Oct 29, 2020
Sold
$1,087,000
NWMLS #1643553 Annualized 5.2% / yr
Mar 11, 2010
Sold
$635,000
More
Listing Details
  • Status
    For Sale
  • Price
    $1,450,000
  • Original Price
    Same as current
  • List Date
    January 1, 2026
  • Last Status Change
    January 2, 2026
  • Last Update
    January 5, 2026
  • Days on Market
    10 Days
  • Cumulative DOM
    10 Days
  • $/sqft (Total)
    $289/sqft
  • $/sqft (Finished)
    $314/sqft
  • Listing Source
  • MLS Number
    2464604
  • Listing Broker
    Philip A Heier
  • Listing Office
    Windermere RE/Capitol Hill,Inc
Monthly Payment Estimate
  • Principal and Interest
    $7,601 / month
  • Property Taxes
    $1,217 / month
  • Homeowners Insurance
    $278 / month
  • TOTAL
    $9,096 / month

  • based on 20% down
    ($290,000)
  • and a
    6.85% Interest Rate
  • About:
    All calculations are estimates only and provided by Mainview LLC. Actual amounts will vary.
House Details
  • Sqft (Total)
    5,019 sqft
  • Sqft (Finished)
    4,620 sqft
  • Sqft (Unfinished)
    399 sqft
  • Property Type
    House
  • Sub Type
    2 Stories + Basement
  • Bedrooms
    5 Bedrooms
  • Bathrooms
    3.25 Bathrooms
  • Lot
    8,062 sqft Lot
  • Lot Size Source
    Realist
  • Lot #
    Unspecified
  • Project
    Unspecified
  • Total Stories
    3 stories
  • Basement
    Daylight
  • Sqft Source
    Realist
Property Tax Info
  • 2025 Property Taxes
    $14,605 / year
  • No Senior Exemption
Public Parcel Data & Maps
Schools
  • School District
    Highline
  • Elementary
    Buyer To Verify
  • Middle
    Buyer To Verify
  • High School
    Buyer To Verify
HOA
  • HOA Dues
    Unspecified
  • Fees Assessed
    Unspecified
  • HOA Dues Include
    Unspecified
  • HOA Contact
    Unspecified
  • Management Contact
Parking
  • Covered
    2-Car
  • Types
    Attached Garage
    Off Street
  • Has Garage
    Yes
  • Nbr of Assigned Spaces
    2
Views
  • Mountain(s)
    Sound
    Territorial
Construction
  • Year Built
    2008
  • Home Builder
    Unspecified
Cooling
  • Includes
    Central A/C
Heating
  • Includes
    90%+ High Efficiency
Interior
  • Flooring
    Ceramic Tile
    Hardwood
    Vinyl Plank
    Carpet
  • Features
    Second Kitchen
    Second Primary Bedroom
    Bath Off Primary
    Built-In Vacuum
    Double Pane/Storm Window
    Dining Room
    Fireplace
    French Doors
    High Tech Cabling
    Vaulted Ceiling(s)
    Walk-In Closet(s)
    Water Heater
    Wine/Beverage Refrigerator
    Wired for Generator
Property
  • Lot Features
    Corner Lot
    Paved
  • Site Features
    Cable TV
    Deck
    Fenced-Partially
    Gas Available
    High Speed Internet
    Outbuildings
    Patio
Appliances
  • Included
    Dishwasher(s)
    Disposal
    Double Oven
    Dryer(s)
    Microwave(s)
    Refrigerator(s)
    See Remarks
    Stove(s)/Range(s)
    Washer(s)
Terms
  • 3rd Party Approval Required)
    No
  • Bank Owned (REO)
    No
  • Complex FHA Availability
    Unspecified
  • Potential Terms
    Cash Out
    Conventional
    FHA
    VA Loan
Utilities
  • Energy
    Natural Gas
  • Sewer
    Sewer Connected
  • Water Source
    Public
Additional Info
  • Waterfront
    No
  • Air Conditioning (A/C)
    Yes
  • Buyer Broker's Compensation
    2.5%
  • MLS Area #
    Area 130
  • Number of Photos
    40
  • Last Modification Time
    Monday, January 5, 2026 10:46 AM
  • System Listing ID
    5507346
Update Info
  • Public Open Houses
    2026-01-02 10:55:12
  • First For Sale
    2026-01-02 10:48:58
Listing details based on information submitted to the MLS GRID as of Monday, January 5, 2026 10:46 AM. All data is obtained from various sources and may not have been verified by broker or MLS GRID. Supplied Open House Information is subject to change without notice. All information should be independently reviewed and verified for accuracy. Properties may or may not be listed by the office/agent presenting the information.
View
Sort

Sharing

 
OPEN For Sale 10 Days Online
$1,450,000  
5 BR    3.25 BA    5,019 SQFT  
OPEN HOUSES
Sunday Jan 11, 2026   12pm - 4pm
Offer Review: Monday, January 12, 2026
NWMLS #2464604. Philip A Heier, Windermere RE/Capitol Hill,Inc
Map
 
Listing information is provided by the listing agent except as follows: BuilderB indicates that our system has grouped this listing under a home builder name that doesn't match the name provided by the listing broker. DevelopmentD indicates that our system has grouped this listing under a development name that doesn't match the name provided by the listing broker.