to
Reset
Houses
Townhouses
Condos
Land
Price
to
SQFT
to
Bdrms
to
Baths
to
Lot
to
Yr Built
to
Sold
Listed within...
Listed at least...
Offer Review
New Construction
Waterfront
Short-Sales
REO
Parking
to
Unit Flr
to
Unit Nbr
Listings
Neighborhoods
Complexes
Developments
Cities
Counties
Zip Codes
Neighborhood · Condo · Development
School District
Zip Code
City
County
Builder
Listing Numbers
Broker LAG
Boundary Lines
Labels
View
Sort
Pending Went pending in 15 days
$779,000
4 Bedrooms
2.5 Bathrooms
2,271 Sqft House
Built 2010
3,512 Sqft Lot
2-Car Garage
HOA Dues $54 / month
PENDING SALE. This listing went Pending on January 22, 2026

Some pending sales don't become final. Contact Us if this property is really important to you so we can check on it right now. The seller has reached an agreement with a buyer to sell this property. If things go as planned, the sale will become final in the near future. The buyer and seller have agreed on a price but it's not public until the sale closes. The last published list price was $779,000.
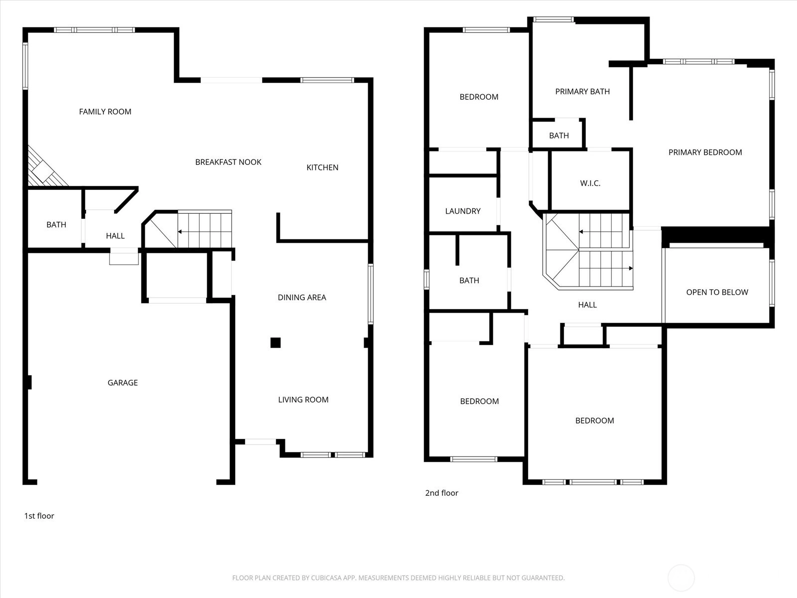
Nestled in Everett within the Mukilteo School District, this inviting four-bedroom, 2.5-bath home offers comfort, space, and convenience. A covered front porch welcomes you inside, where hardwood floors and vaulted ceilings enhance the formal living and dining rooms, creating a bright and airy first impression. The open kitchen features an eating island, granite tile countertops, and a sunny breakfast nook, seamlessly connecting to the family room with a cozy gas fireplace surrounded by abundant natural light. A main-floor half bath adds everyday convenience, just off the 2 Car Garage entry. Step outside to a private backyard designed for low-maintenance living, complete with extensive patio work—ideal for relaxing or entertaining. Upstairs, the spacious owner’s suite is off to the left and includes a five-piece ensuite and a walk-in closet with a custom organizer. As you head down the hall, overlook the formal dining and living on your way to the three additional generously sized bedrooms, a full bath, and an upstairs laundry room, completing the upper level. Enjoy excellent proximity to I-5, nearby Mill Creek Town Center & Silver Lake, shopping, dining, and everyday amenities, making commuting and errands a breeze. Neighborhood offers playground & guest parking. The home has been pre-inspected.
Offer Review
No offer review date was specified
Listing source NWMLS MLS #
2463246
Listed by
Sandy Meyer, RE/MAX Elite
Contact our
Everett
Real Estate Lead
Buck Real Estate
Phone...
Bedroom & Bathroom Layout
SECOND
BDRM
BDRM
BDRM
BDRM
FULL
BATH
FULL
BATH
MAIN
½
BATH
Property History
Jan 22, 2026
Went Pending
$779,000
NWMLS #2463246
Jan 22, 2026
Went Pending
$779,000
Jan 08, 2026
Listed
$779,000
Jan 07, 2026
Listed
$779,000
Jan 07, 2026
Listed
$779,000
NWMLS #2463246
Sep 16, 2025
Price Reduction arrow_downward
$799,995
NWMLS #2430016
Sep 05, 2025
Listed
$813,000
NWMLS #2430016
Sep 16, 2025
Price Reduction arrow_downward
$799,995
NWMLS #2426799
Sep 04, 2025
Listed
$813,000
NWMLS #2426799
More
Listing Details
  • Status
    Pending
  • Last Listed Price
    $779,000
  • Original Price
    Same as current
  • List Date
    January 7, 2026
  • Last Status Change
    January 23, 2026
  • Last Update
    January 23, 2026
  • Days on Market
    50 Days
  • Cumulative DOM
    15 Days
  • Pending Date
    January 22, 2026
  • Days to go Pending
    15
  • $/sqft (Total)
    $343/sqft
  • $/sqft (Finished)
    $343/sqft
  • Listing Source
  • MLS Number
    2463246
  • Listing Broker
    Sandy Meyer
  • Listing Office
    RE/MAX Elite
Monthly Payment Estimate
  • Principal and Interest
    $4,084 / month
  • HOA
    $54 / month
  • Property Taxes
    $514 / month
  • Homeowners Insurance
    $155 / month
  • TOTAL
    $4,807 / month

  • based on 20% down
    ($155,800)
  • and a
    6.85% Interest Rate
  • About:
    All calculations are estimates only and provided by Mainview LLC. Actual amounts will vary.
House Details
  • Sqft (Total)
    2,271 sqft
  • Sqft (Finished)
    2,271 sqft
  • Sqft (Unfinished)
    None
  • Property Type
    House
  • Sub Type
    2 Story
  • Bedrooms
    4 Bedrooms
  • Bathrooms
    2.5 Bathrooms
  • Lot
    3,512 sqft Lot
  • Lot Size Source
    County
  • Lot #
    Unspecified
  • Project
    Unspecified
  • Total Stories
    2 stories
  • Basement
    None
  • Sqft Source
    County
Property Tax Info
  • 2025 Property Taxes
    $6,163 / year
  • No Senior Exemption
Public Parcel Data & Maps
Schools
  • School District
    Mukilteo
  • Elementary
    Buyer To Verify
  • Middle
    Buyer To Verify
  • High School
    Buyer To Verify
HOA
  • HOA Dues
    $54 / month
  • Fees Assessed
    Monthly
  • HOA Dues Include
    Common Area Maintenance
  • HOA Contact
    Luiza Limona, CMCA, AMS, Morris Management, Inc. 425-283-5858
  • Management Contact
Community Features
  • Community Features
    CCRs
    Playground
Parking
  • Covered
    2-Car
  • Types
    Driveway
    Attached Garage
  • Has Garage
    Yes
  • Nbr of Assigned Spaces
    2
Views
  • Territorial
Construction
  • Year Built
    2010
  • Home Builder
    Unspecified
Cooling
  • Includes
    None
Heating
  • Includes
    Fireplace Insert
    Forced Air
Interior
  • Flooring
    Hardwood
    Vinyl
    Carpet
  • Features
    Bath Off Primary
    Double Pane/Storm Window
    Dining Room
    Fireplace
    Security System
    Vaulted Ceiling(s)
    Walk-In Closet(s)
    Water Heater
Property
  • Lot Features
    Corner Lot
    Paved
  • Site Features
    Cable TV
    Fenced-Fully
    Gas Available
    High Speed Internet
    Patio
Appliances
  • Included
    Dishwasher(s)
    Dryer(s)
    Microwave(s)
    Refrigerator(s)
    Stove(s)/Range(s)
    Washer(s)
Terms
  • 3rd Party Approval Required)
    No
  • Bank Owned (REO)
    No
  • Complex FHA Availability
    Unspecified
  • Potential Terms
    Cash Out
    Conventional
    FHA
    USDA Loan
    VA Loan
Utilities
  • Energy
    Electric
    Natural Gas
  • Sewer
    Sewer Connected
  • Water Source
    Public
Additional Info
  • Waterfront
    No
  • Air Conditioning (A/C)
    No
  • Buyer Broker's Compensation
    2.5%
  • MLS Area #
    Area 740
  • Number of Photos
    40
  • Last Modification Time
    Friday, January 23, 2026 3:24 PM
  • System Listing ID
    5508286
Update Info
  • Pending Or Ctg
    2026-01-22 17:23:50
  • First For Sale
    2026-01-07 08:27:55
Listing details based on information submitted to the MLS GRID as of Friday, January 23, 2026 3:24 PM. All data is obtained from various sources and may not have been verified by broker or MLS GRID. Supplied Open House Information is subject to change without notice. All information should be independently reviewed and verified for accuracy. Properties may or may not be listed by the office/agent presenting the information.
View
Sort

Sharing

 
Pending January 22, 2026
$779,000  
4 BR    2.5 BA    2,271 SQFT  
NWMLS #2463246. Sandy Meyer, RE/MAX Elite
Map
 
Listing information is provided by the listing agent except as follows: BuilderB indicates that our system has grouped this listing under a home builder name that doesn't match the name provided by the listing broker. DevelopmentD indicates that our system has grouped this listing under a development name that doesn't match the name provided by the listing broker.