to
Reset
Houses
Townhouses
Condos
Land
Price
to
SQFT
to
Bdrms
to
Baths
to
Lot
to
Yr Built
to
Sold
Listed within...
Listed at least...
Offer Review
New Construction
Waterfront
Short-Sales
REO
Parking
to
Unit Flr
to
Unit Nbr
Listings
Neighborhoods
Complexes
Developments
Cities
Counties
Zip Codes
Neighborhood · Condo · Development
School District
Zip Code
City
County
Builder
Listing Numbers
Broker LAG
Boundary Lines
Labels
View
Sort
Pending Went pending in 31 days
$999,000
Originally $1,030,000
4 Bedrooms
3 Bathrooms
2,846 Sqft House
Built 1992
18,775 Sqft Lot
2-Car Garage
HOA Dues $132 / month
PENDING SALE. This listing went Pending on February 6, 2026

Some pending sales don't become final. Contact Us if this property is really important to you so we can check on it right now. The seller has reached an agreement with a buyer to sell this property. If things go as planned, the sale will become final in the near future. The buyer and seller have agreed on a price but it's not public until the sale closes. The last published list price was $999,000.
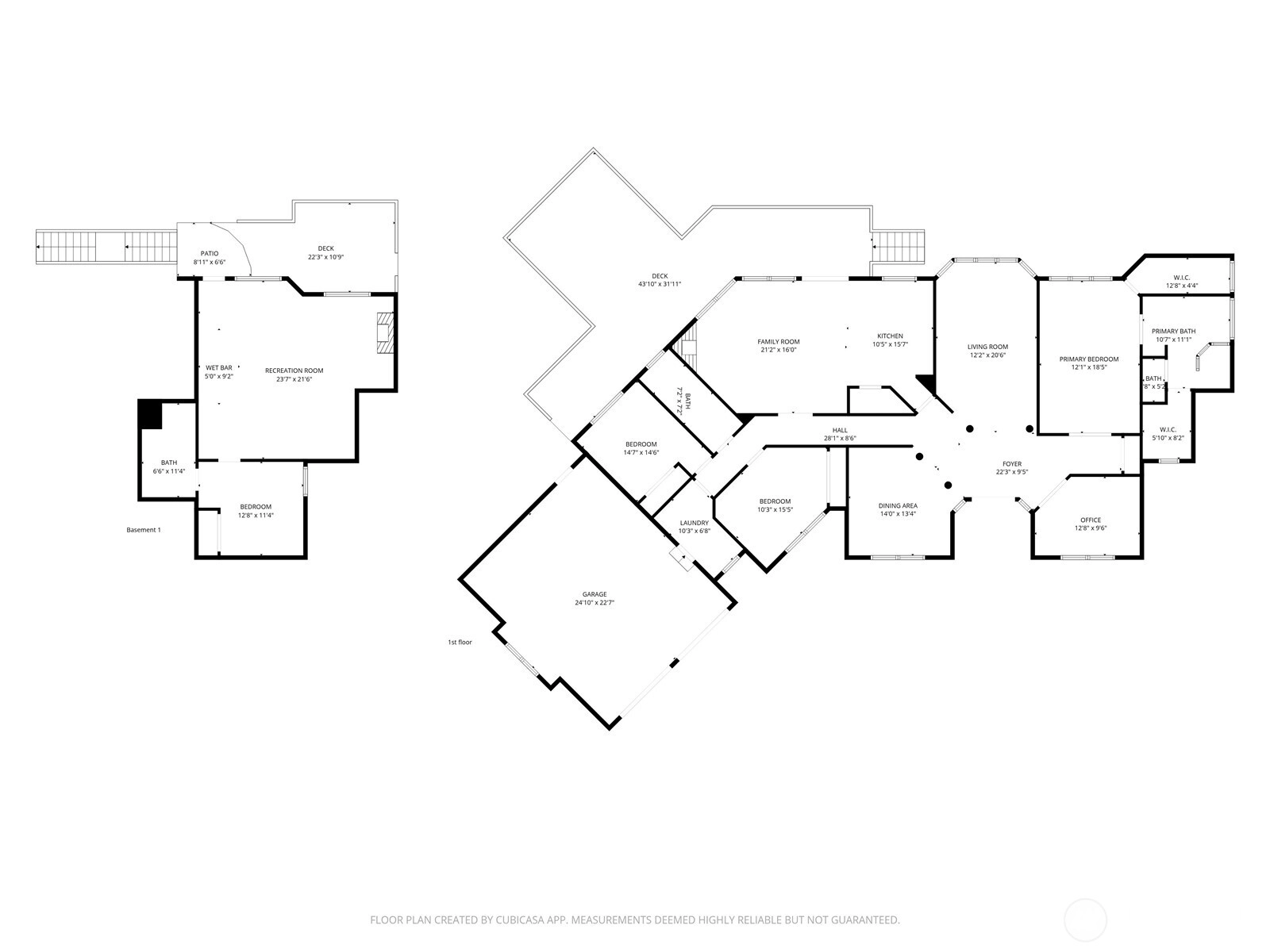
Set on a large, private lot in Canterwood, this thoughtfully designed one-story home with basement offers easy main-level living and flexible space for guests. The home is approached by a gentle drive and framed by mature landscaping, creating a quiet feel. The main level includes three bedrooms, highlighted by a spacious primary suite with vaulted ceilings, dual closets, and a five-piece bath. The lower level features a large recreation room with wet bar, a fourth bedroom, and bath, ideal guest quarters with private entry. A generous deck extends the living space outdoors and looks out over the surrounding greenery. Canterwood amenities include golf, tennis, pickleball, clubhouse, pool, gym, and convenient access to shopping and Hwy 16.
Offer Review
No offer review date was specified
Listing source NWMLS MLS #
2464629
Listed by
Paige Schulte, Neighborhood Experts Real Est.
Michelle Charlton, Neighborhood Experts Real Est.
Contact our
Gig Harbor
Real Estate Lead
RE/MAX Northwest Realtors
Phone...
Bedroom & Bathroom Layout
MAIN
BDRM
BDRM
BDRM
FULL
BATH
FULL
BATH
LOWER
BDRM
FULL
BATH
Property History
Feb 06, 2026
Went Pending
$999,000
NWMLS #2464629
Jan 22, 2026
Price Reduction arrow_downward
$999,000
NWMLS #2464629
Jan 07, 2026
Listed
$1,030,000
NWMLS #2464629
More
Listing Details
  • Status
    Pending
  • Last Listed Price
    $999,000
  • Original Price
    $1,030,000
  • List Date
    January 6, 2026
  • Last Status Change
    February 7, 2026
  • Last Update
    February 7, 2026
  • Days on Market
    51 Days
  • Cumulative DOM
    31 Days
  • Pending Date
    February 6, 2026
  • Days to go Pending
    31
  • $/sqft (Total)
    $351/sqft
  • $/sqft (Finished)
    $351/sqft
  • Listing Source
  • MLS Number
    2464629
  • Listing Broker
    Paige Schulte
  • Listing Office
    Neighborhood Experts Real Est.
Monthly Payment Estimate
  • Principal and Interest
    $5,237 / month
  • HOA
    $132 / month
  • Property Taxes
    $884 / month
  • Homeowners Insurance
    $196 / month
  • TOTAL
    $6,449 / month

  • based on 20% down
    ($199,800)
  • and a
    6.85% Interest Rate
  • About:
    All calculations are estimates only and provided by Mainview LLC. Actual amounts will vary.
House Details
  • Sqft (Total)
    2,846 sqft
  • Sqft (Finished)
    2,846 sqft
  • Sqft (Unfinished)
    None
  • Property Type
    House
  • Sub Type
    1 Story + Basement
  • Bedrooms
    4 Bedrooms
  • Bathrooms
    3 Bathrooms
  • Lot
    18,775 sqft Lot
  • Lot Size Source
    Public Records
  • Lot #
    Unspecified
  • Project
    Unspecified
  • Total Stories
    2 stories
  • Basement
    Finished
  • Sqft Source
    Public Records
Property Tax Info
  • 2025 Property Taxes
    $10,608 / year
  • No Senior Exemption
Public Parcel Data & Maps
Schools
  • School District
    Peninsula
  • Elementary
    Purdy Elem
  • Middle
    Harbor Ridge Mid
  • High School
    Peninsula High
HOA
  • HOA Dues
    $132 / month
  • Fees Assessed
    Quarterly
  • HOA Dues Include
    Common Area Maintenance
    Road Maintenance
    Security
    Snow Removal
  • HOA Contact
    Unspecified
  • Management Contact
Community Features
  • Community Features
    Athletic Court
    CCRs
    Club House
    Gated
    Golf
    Park
    Playground
    Trail(s)
Parking
  • Covered
    2-Car
  • Types
    Driveway
    Attached Garage
    Off Street
  • Has Garage
    Yes
  • Nbr of Assigned Spaces
    2
Views
  • Territorial
Construction
  • Year Built
    1992
  • Home Builder
    Unspecified
Cooling
  • Includes
    None
Heating
  • Includes
    Forced Air
Interior
  • Flooring
    Hardwood
    Carpet
  • Features
    Bath Off Primary
    Double Pane/Storm Window
    Dining Room
    Fireplace
    French Doors
    Sprinkler System
    Walk-In Closet(s)
    Water Heater
    Wet Bar
Property
  • Lot Features
    Paved
  • Site Features
    Deck
    Fenced-Fully
    Gas Available
    High Speed Internet
    Patio
    Sprinkler System
Appliances
  • Included
    Dishwasher(s)
    Disposal
    Microwave(s)
    Refrigerator(s)
    Stove(s)/Range(s)
    Washer(s)
Terms
  • 3rd Party Approval Required)
    No
  • Bank Owned (REO)
    No
  • Complex FHA Availability
    Unspecified
  • Potential Terms
    Cash Out
    Conventional
    FHA
    VA Loan
Utilities
  • Energy
    Electric
    Natural Gas
  • Sewer
    Septic Tank
  • Water Source
    Public
Additional Info
  • Waterfront
    No
  • Air Conditioning (A/C)
    No
  • Buyer Broker's Compensation
    2.5%
  • MLS Area #
    Area 8
  • Number of Photos
    38
  • Last Modification Time
    Friday, February 6, 2026 8:29 PM
  • System Listing ID
    5508449
Update Info
  • Pending Or Ctg
    2026-02-06 20:42:31
  • Price Reduction
    2026-01-22 14:04:50
  • First For Sale
    2026-01-07 13:26:30
Listing details based on information submitted to the MLS GRID as of Friday, February 6, 2026 8:29 PM. All data is obtained from various sources and may not have been verified by broker or MLS GRID. Supplied Open House Information is subject to change without notice. All information should be independently reviewed and verified for accuracy. Properties may or may not be listed by the office/agent presenting the information.
View
Sort

Sharing

 
Pending February 6, 2026
$999,000  
4 BR    3 BA    2,846 SQFT  
NWMLS #2464629. Paige Schulte, Neighborhood Experts Real Est.
Map
 
Listing information is provided by the listing agent except as follows: BuilderB indicates that our system has grouped this listing under a home builder name that doesn't match the name provided by the listing broker. DevelopmentD indicates that our system has grouped this listing under a development name that doesn't match the name provided by the listing broker.