to
Reset
Houses
Townhouses
Condos
Land
Price
to
SQFT
to
Bdrms
to
Baths
to
Lot
to
Yr Built
to
Sold
Listed within...
Listed at least...
Offer Review
New Construction
Waterfront
Short-Sales
REO
Parking
to
Unit Flr
to
Unit Nbr
Listings
Neighborhoods
Complexes
Developments
Cities
Counties
Zip Codes
Neighborhood · Condo · Development
School District
Zip Code
City
County
Builder
Listing Numbers
Broker LAG
Boundary Lines
Labels
View
Sort
Pending Inspection Went pending in 1 days
$875,000
5 Bedrooms
3 Bathrooms
3,133 Sqft House
Built 1976
5.09 Acres Lot
2-Car Garage
The seller has reached an agreement with a buyer to sell this property. If things go as planned, the sale will become final in the near future. The buyer and seller have agreed on a price but it's not public until the sale closes. The last published list price was $875,000.
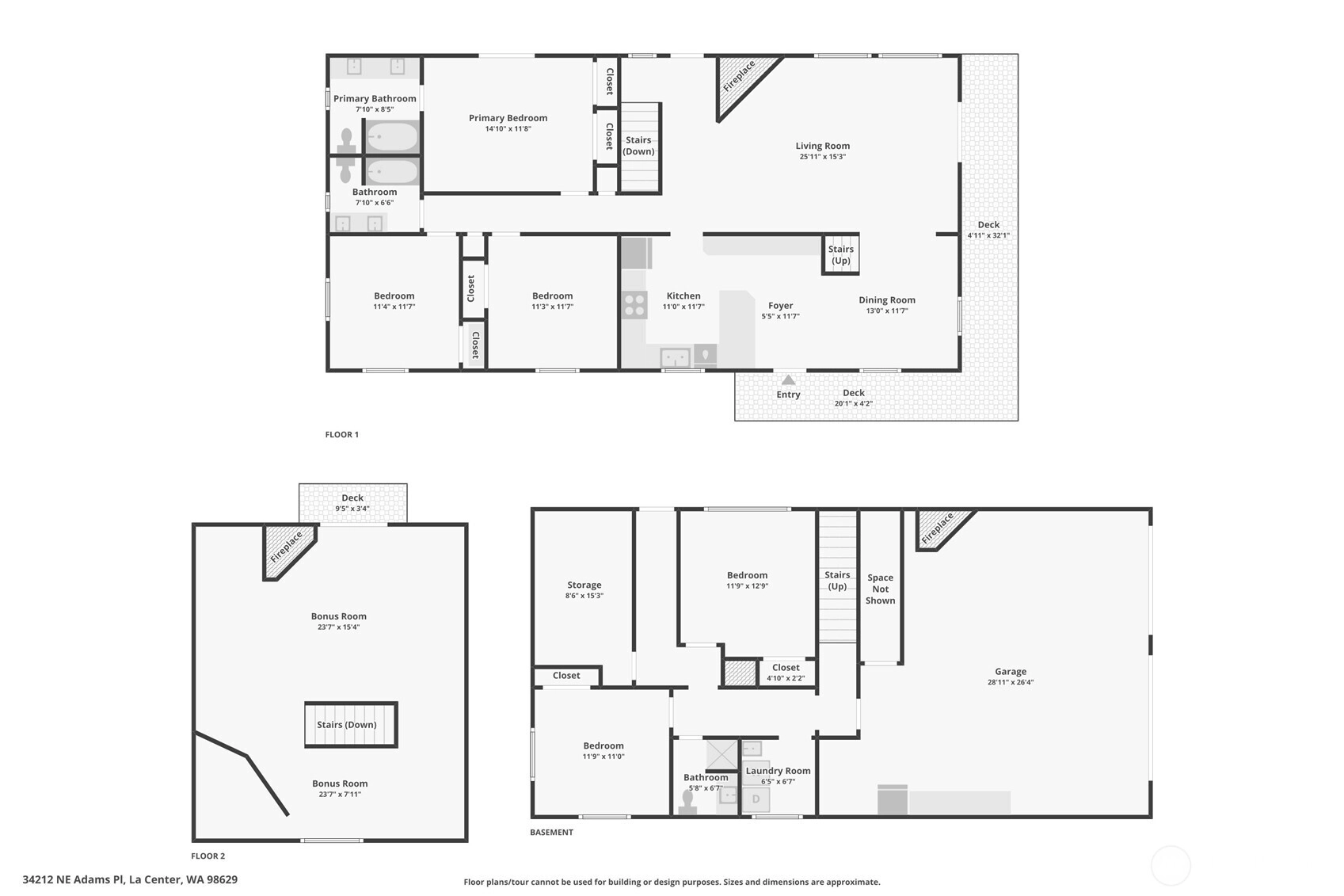
Territorial views. Covered front porch. Living rm stone surround pellet stove, French doors. Eat bar SS kitchen, pot filler, granite, pantry storage. Dining w/board & batten wainscoting. Main-level vaulted primary suite, double closets, dual-sink tiled vanity, shower w/dual shower heads. 2 addtl bdrms, full bath on main. Lower level: 2 more bdrms, laundry, storage rm, full bath. Upper-level bonus rm pellet stove, wet bar, slider to balcony, ceiling fan, sloped ceiling. Engineered hrdwd, carpet, vinyl. Starlink internet. Wrap-around deck, patio, fire pit. 2-car garage, fireplace, built-ins. 5.09 acres. 3 cross-fenced gated pastures, outbuildings. Permalock metal roof. RV parking. Mortgage savings may be available for buyers of this listing.
Offer Review
No offer review date was specified
Listing source NWMLS MLS #
2463373
Listed by
Fred Sanchez, Redfin
We don't currently have a buyer representative in this area. To be sure that you're getting objective advice, we always suggest buyers work with their own agent, someone who is not affiliated with the seller.
Bedroom & Bathroom Layout
SECOND
MAIN
BDRM
BDRM
BDRM
FULL
BATH
FULL
BATH
LOWER
BDRM
BDRM
FULL
BATH
Property History
Jan 10, 2026
Went Pending Inspection
$875,000
NWMLS #2463373
Jan 09, 2026
Listed
$875,000
NWMLS #2463373
More
Listing Details
  • Status
    Pending Inspection
  • Last Listed Price
    $875,000
  • Original Price
    Same as current
  • List Date
    January 9, 2026
  • Last Status Change
    January 11, 2026
  • Last Update
    January 11, 2026
  • Days on Market
    27 Days
  • Cumulative DOM
    1 Days
  • Pending Date
    January 10, 2026
  • Days to go Pending
    1
  • $/sqft (Total)
    $279/sqft
  • $/sqft (Finished)
    $279/sqft
  • Listing Source
  • MLS Number
    2463373
  • Listing Broker
    Fred Sanchez
  • Listing Office
    Redfin
Monthly Payment Estimate
  • Principal and Interest
    $4,587 / month
  • Property Taxes
    $587 / month
  • Homeowners Insurance
    $173 / month
  • TOTAL
    $5,347 / month

  • based on 20% down
    ($175,000)
  • and a
    6.85% Interest Rate
  • About:
    All calculations are estimates only and provided by Mainview LLC. Actual amounts will vary.
House Details
  • Sqft (Total)
    3,133 sqft
  • Sqft (Finished)
    3,133 sqft
  • Sqft (Unfinished)
    None
  • Property Type
    House
  • Sub Type
    2 Stories + Basement
  • Bedrooms
    5 Bedrooms
  • Bathrooms
    3 Bathrooms
  • Lot
    5.09 Acres Lot
  • Lot Size Source
    County GIS
  • Lot #
    Unspecified
  • Project
    Unspecified
  • Total Stories
    3 stories
  • Basement
    Daylight
    Finished
  • Sqft Source
    County GIS
Property Tax Info
  • 2025 Property Taxes
    $7,039 / year
  • No Senior Exemption
Public Parcel Data & Maps
  • County
    Clark County
  • Parcel #
    259379000
  • County Website
    Unspecified
  • County Parcel Map
    Unspecified
  • County GIS Map
    Unspecified
  • About
    County links provided by Mainview LLC
Schools
  • School District
    La Center
  • Elementary
    Lacenter Elem
  • Middle
    Lacenter Mid
  • High School
    La Center High
HOA
  • HOA Dues
    Unspecified
  • Fees Assessed
    Unspecified
  • HOA Dues Include
    Unspecified
  • HOA Contact
    Unspecified
  • Management Contact
Parking
  • Covered
    2-Car
  • Types
    Driveway
    Attached Garage
    RV Parking
  • Has Garage
    Yes
  • Nbr of Assigned Spaces
    2
Views
  • Territorial
Construction
  • Year Built
    1976
  • Home Builder
    Unspecified
Cooling
  • Includes
    Heat Pump
Heating
  • Includes
    Heat Pump
Interior
  • Flooring
    Ceramic Tile
    Engineered Hardwood
    Vinyl
    Carpet
  • Features
    Bath Off Primary
    Ceiling Fan(s)
    Double Pane/Storm Window
    Dining Room
    Fireplace
    French Doors
    Vaulted Ceiling(s)
Property
  • Lot Features
    Paved
  • Site Features
    Deck
    Dog Run
    Fenced-Fully
    High Speed Internet
    Outbuildings
    Patio
    RV Parking
    Shop
Appliances
  • Included
    Dishwasher(s)
    Disposal
    Refrigerator(s)
    Stove(s)/Range(s)
Terms
  • 3rd Party Approval Required)
    No
  • Bank Owned (REO)
    No
  • Complex FHA Availability
    Unspecified
  • Potential Terms
    Cash Out
    Conventional
    FHA
    VA Loan
Utilities
  • Energy
    Electric
  • Sewer
    Septic Tank
  • Water Source
    Public
Additional Info
  • Waterfront
    No
  • Air Conditioning (A/C)
    Yes
  • Buyer Broker's Compensation
    2.25%
  • MLS Area #
    Area 1070
  • Number of Photos
    40
  • Last Modification Time
    Saturday, January 10, 2026 6:34 PM
  • System Listing ID
    5509166
Update Info
  • Pending Or Ctg
    2026-01-10 18:37:46
  • First For Sale
    2026-01-09 05:58:48
Listing details based on information submitted to the MLS GRID as of Saturday, January 10, 2026 6:34 PM. All data is obtained from various sources and may not have been verified by broker or MLS GRID. Supplied Open House Information is subject to change without notice. All information should be independently reviewed and verified for accuracy. Properties may or may not be listed by the office/agent presenting the information.
View
Sort

Sharing

 
Pending Inspection January 10, 2026
$875,000  
5 BR    3 BA    3,133 SQFT  
NWMLS #2463373. Fred Sanchez, Redfin
Map
 
Listing information is provided by the listing agent except as follows: BuilderB indicates that our system has grouped this listing under a home builder name that doesn't match the name provided by the listing broker. DevelopmentD indicates that our system has grouped this listing under a development name that doesn't match the name provided by the listing broker.