to
Reset
Houses
Townhouses
Condos
Land
Price
to
SQFT
to
Bdrms
to
Baths
to
Lot
to
Yr Built
to
Sold
Listed within...
Listed at least...
Offer Review
New Construction
Waterfront
Short-Sales
REO
Parking
to
Unit Flr
to
Unit Nbr
Listings
Neighborhoods
Complexes
Developments
Cities
Counties
Zip Codes
Neighborhood · Condo · Development
School District
Zip Code
City
County
Builder
Listing Numbers
Broker LAG
Boundary Lines
Labels
View
Sort
Pending Inspection Went pending in 3 days
$640,000
4 Bedrooms
2.25 Bathrooms
2,484 Sqft House
Built 1976
11,820 Sqft Lot
2-Car Garage
HOA Dues $20 / month
The seller has reached an agreement with a buyer to sell this property. If things go as planned, the sale will become final in the near future. The buyer and seller have agreed on a price but it's not public until the sale closes. The last published list price was $640,000.
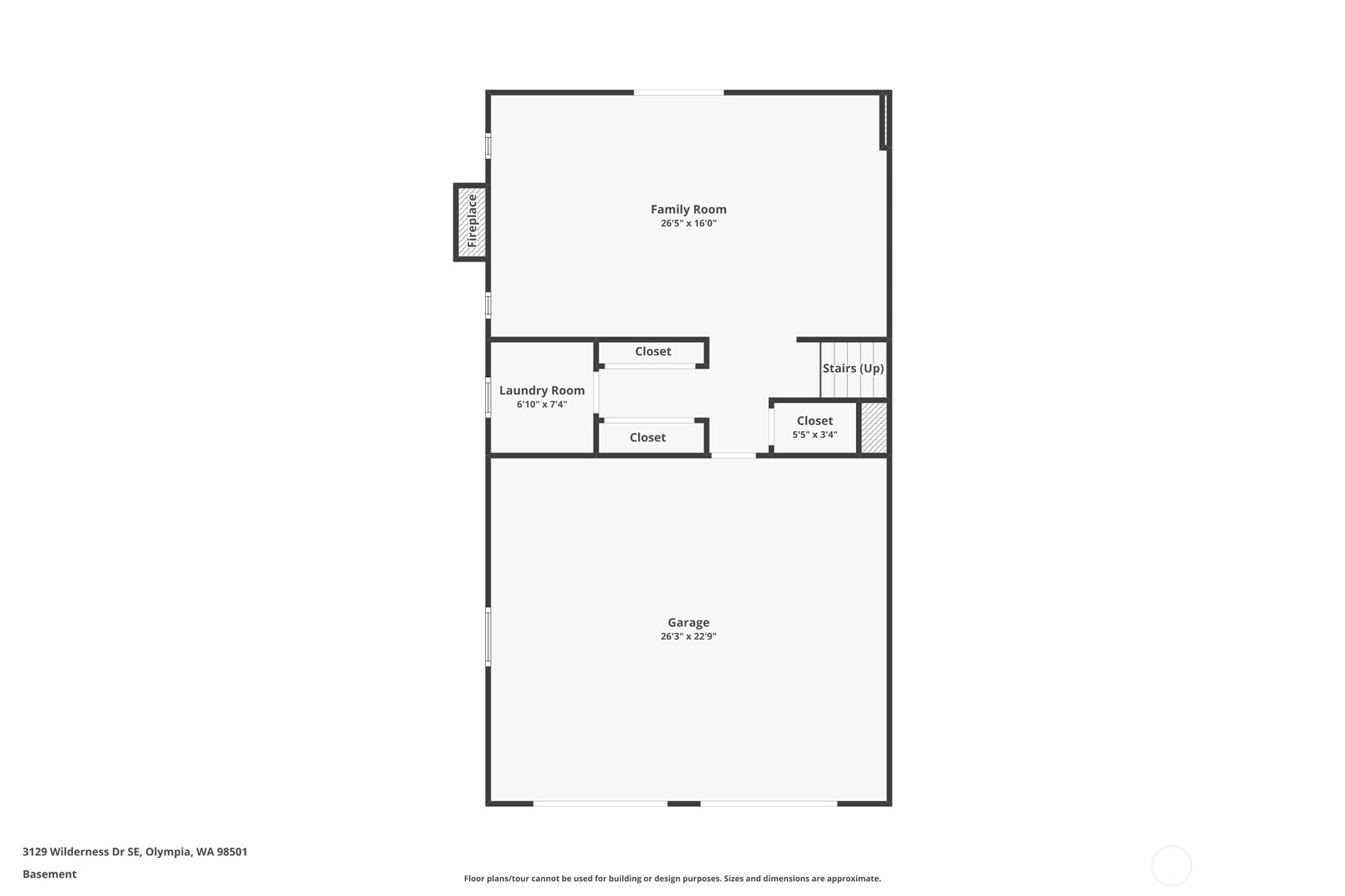
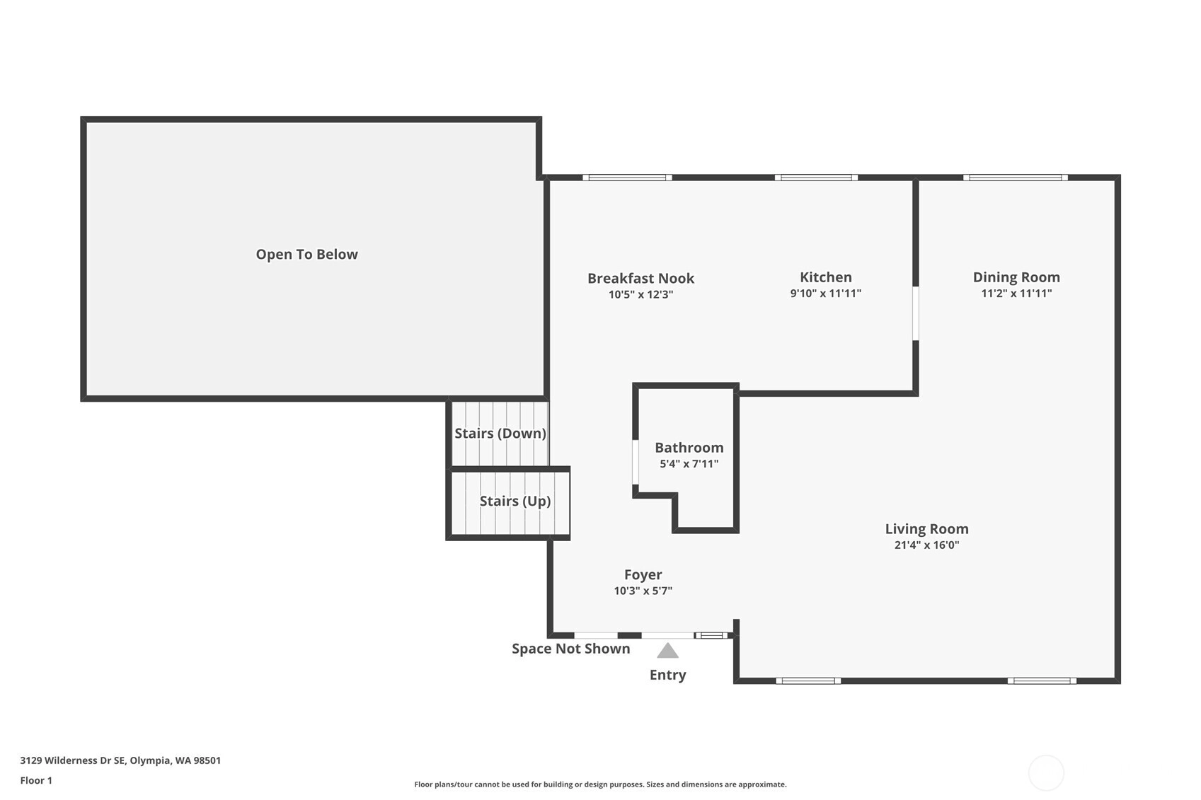
Wonderful Wilderness! Combine this popular SE Oly neighborhood with 2486 sq/ft of classic, flexible, 4bdrm/2.25ba living and discover a rare offering. This handsome, well-maintained, solidly built design on .27+ acres, offers room to grow indoors and out. Special features range from a white trim package, and beautifully crafted painted gas fireplace surround in the generous living/dinning room to the huge family room, with an inviting brick hearth and gas fireplace. Other features include a large primary suite with an on-trend, completely upgraded primary 3/4 bath, a recently remodeled guest bath, built-in den/office cabinetry in the 4th bedroom, extra large secondary bedrooms, two big utility area pantry closets, a newer AC/central air conditioning system and a spacious two car garage with work bench plus much more. Conveniently located minutes to grocery, eateries, and home/garden stores, lovely parks, LBA Woods, trails and services. Stroll, bike or drive just minutes to highly rated Centennial Elementary, with nearby to Washington MS and Olympia High nearby. The gorgeous,.27 acre lot backs to a green space for privacy, and includes a fully fenced back yard with a built-in outdoor eating space/deck, plenty of gardening light with special spaces for yard structures, a fire-pit, raised beds and space for throwing the ball with buddies or Fido. Take your daily stroll through this lovely, tree lined neighborhood and find your happy place in 2026!
Offer Review
No offer review date was specified
Listing source NWMLS MLS #
2469780
Listed by
Susan Roewe, RE/MAX Advantage
We don't currently have a buyer representative in this area. To be sure that you're getting objective advice, we always suggest buyers work with their own agent, someone who is not affiliated with the seller.
Bedroom & Bathroom Layout
THIRD
SECOND
BDRM
BDRM
BDRM
BDRM
FULL
BATH
¾
BATH
MAIN
½
BATH
LOWER
Property History
Jan 24, 2026
Went Pending Inspection
$640,000
NWMLS #2469780
Jan 21, 2026
Listed
$640,000
NWMLS #2469780
Aug 26, 2019
Sold
$420,000
More
Listing Details
  • Status
    Pending Inspection
  • Last Listed Price
    $640,000
  • Original Price
    Same as current
  • List Date
    January 21, 2026
  • Last Status Change
    January 25, 2026
  • Last Update
    January 25, 2026
  • Days on Market
    6 Days
  • Cumulative DOM
    3 Days
  • Pending Date
    January 24, 2026
  • Days to go Pending
    3
  • $/sqft (Total)
    $258/sqft
  • $/sqft (Finished)
    $258/sqft
  • Listing Source
  • MLS Number
    2469780
  • Listing Broker
    Susan Roewe
  • Listing Office
    RE/MAX Advantage
Monthly Payment Estimate
  • Principal and Interest
    $3,355 / month
  • HOA
    $20 / month
  • Property Taxes
    $447 / month
  • Homeowners Insurance
    $130 / month
  • TOTAL
    $3,952 / month

  • based on 20% down
    ($128,000)
  • and a
    6.85% Interest Rate
  • About:
    All calculations are estimates only and provided by Mainview LLC. Actual amounts will vary.
House Details
  • Sqft (Total)
    2,484 sqft
  • Sqft (Finished)
    2,484 sqft
  • Sqft (Unfinished)
    None
  • Property Type
    House
  • Sub Type
    Tri-Level
  • Bedrooms
    4 Bedrooms
  • Bathrooms
    2.25 Bathrooms
  • Lot
    11,820 sqft Lot
  • Lot Size Source
    Public Records
  • Lot #
    Unspecified
  • Project
    Unspecified
  • Total Stories
    3 stories
  • Basement
    Daylight
  • Sqft Source
    Public Records
Property Tax Info
  • 2025 Property Taxes
    $5,364 / year
  • No Senior Exemption
Public Parcel Data & Maps
Schools
  • School District
    Olympia
  • Elementary
    Centennial Elem
  • Middle
    Wash Mid
  • High School
    Olympia High
HOA
  • HOA Dues
    $20 / month
  • Fees Assessed
    Annually
  • HOA Dues Include
    Common Area Maintenance
  • HOA Contact
    John Cusik-Wilderness Property Owners Assoc.
  • Management Contact
Community Features
  • Community Features
    CCRs
    Park
    Trail(s)
Parking
  • Covered
    2-Car
  • Types
    Driveway
    Attached Garage
  • Has Garage
    Yes
  • Nbr of Assigned Spaces
    2
Construction
  • Year Built
    1976
  • Home Builder
    Unspecified
Cooling
  • Includes
    90%+ High Efficiency
    Central A/C
    Forced Air
Heating
  • Includes
    90%+ High Efficiency
    Forced Air
Interior
  • Flooring
    Ceramic Tile
    Laminate
    Vinyl
    Carpet
  • Features
    Bath Off Primary
    Ceiling Fan(s)
    Double Pane/Storm Window
    Dining Room
    Fireplace
    High Tech Cabling
    Skylight(s)
    Water Heater
    Wine Cellar
Property
  • Lot Features
    Paved
  • Site Features
    Cable TV
    Deck
    Fenced-Fully
    Gas Available
    High Speed Internet
    Outbuildings
    Patio
    Sprinkler System
Appliances
  • Included
    Dishwasher(s)
    Disposal
    Microwave(s)
    Stove(s)/Range(s)
Terms
  • 3rd Party Approval Required)
    No
  • Bank Owned (REO)
    No
  • Complex FHA Availability
    Unspecified
  • Potential Terms
    Cash Out
    Conventional
    FHA
    VA Loan
Utilities
  • Energy
    Electric
    Natural Gas
  • Sewer
    Septic Tank
  • Water Source
    Public
Additional Info
  • Waterfront
    No
  • Air Conditioning (A/C)
    Yes
  • Buyer Broker's Compensation
    2.5%
  • MLS Area #
    Area 448
  • Number of Photos
    40
  • Last Modification Time
    Saturday, January 24, 2026 10:03 PM
  • System Listing ID
    5512195
Update Info
  • Pending Or Ctg
    2026-01-24 22:15:23
  • First For Sale
    2026-01-21 16:22:21
Listing details based on information submitted to the MLS GRID as of Saturday, January 24, 2026 10:03 PM. All data is obtained from various sources and may not have been verified by broker or MLS GRID. Supplied Open House Information is subject to change without notice. All information should be independently reviewed and verified for accuracy. Properties may or may not be listed by the office/agent presenting the information.
View
Sort

Sharing

 
Pending Inspection January 24, 2026
$640,000  
4 BR    2.25 BA    2,484 SQFT  
NWMLS #2469780. Susan Roewe, RE/MAX Advantage
Map
 
Listing information is provided by the listing agent except as follows: BuilderB indicates that our system has grouped this listing under a home builder name that doesn't match the name provided by the listing broker. DevelopmentD indicates that our system has grouped this listing under a development name that doesn't match the name provided by the listing broker.