to
Reset
Houses
Townhouses
Condos
Land
Price
to
SQFT
to
Bdrms
to
Baths
to
Lot
to
Yr Built
to
Sold
Listed within...
Listed at least...
Offer Review
New Construction
Waterfront
Short-Sales
REO
Parking
to
Unit Flr
to
Unit Nbr
Listings
Neighborhoods
Complexes
Developments
Cities
Counties
Zip Codes
Neighborhood · Condo · Development
School District
Zip Code
City
County
Builder
Listing Numbers
Broker LAG
Boundary Lines
Labels
View
Sort
Sold Closed February 17, 2026
$2,200,000
4 Bedrooms
2.75 Bathrooms
3,510 Sqft House
Built 1996
14,571 Sqft Lot
3-Car Garage
HOA Dues $49 / month
SALE HISTORY
List price was $2,395,000
It took 4 days to go pending.
Then 22 days to close at $2,200,000
Closed at $627/SQFT.
One-owner William E Buchan luxury home in Bellevue’s coveted Lakemont neighborhood. This traditional 4BD/2.5BA beauty features formal entry with soaring ceiling, elegant living & dining rooms, exquiste millwork, hardwoods & solid wood cabinetry. Updated chef’s kitchen opens to sunken family room. Main also features den/office with custom built-ins and updated .75 bath. Upstairs: lake view primary suite with seating area, five-piece en suite bath & walk-in closet, plus 3 other bedrooms, updated full bath & spacious bonus room. 3-car attached garage with shop space, efficient heating/cooling systems. Situated on private 0.33-acre lot at end of quiet cul de sac. Issaquah Schools. Near shopping, recreation & I-90 to Greater Eastside & Seattle.
Offer Review
No offer review date was specified
Listing source NWMLS MLS #
2471123
Listed by
Brad Davis, KW Greater Seattle
Buyer's broker
Tanya Miziun, eXp Realty
Contact our
Bellevue
Real Estate Lead
John L. Scott
Phone...
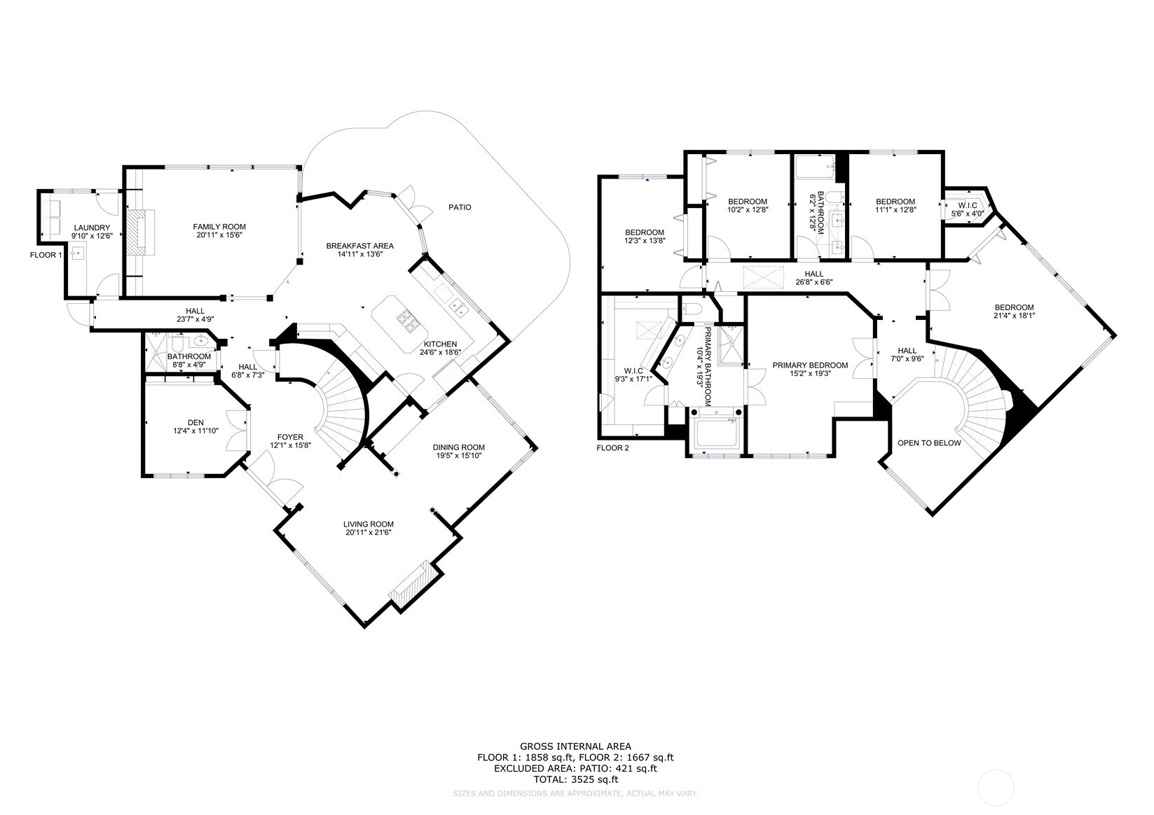
Bedroom & Bathroom Layout
SECOND
BDRM
BDRM
BDRM
BDRM
FULL
BATH
FULL
BATH
MAIN
¾
BATH
Property History
Feb 17, 2026
Sold
$2,200,000
NWMLS #2471123
Jan 26, 2026
Went Pending
$2,395,000
NWMLS #2471123
Jan 22, 2026
Listed
$2,395,000
NWMLS #2471123
More
Listing Details
  • Sale Price
    $2,200,000
  • Closing Date
    February 17, 2026
  • Last List Price
    $2,395,000
  • Original Price
    Same
  • List Date
    January 22, 2026
  • Pending Date
    January 26, 2026
  • Days to go Pending
    4 days
  • $/sqft (Total)
    $627/sqft
  • $/sqft (Finished)
    $627/sqft
  • Listing Source
  • MLS Number
    2471123
  • Listing Broker
    Brad Davis
  • Listing Office
    KW Greater Seattle
  • Buyer's Broker
    Tanya Miziun
  • Buyer Broker's Firm
    eXp Realty
Monthly Payment Estimate
  • Principal and Interest
    $11,533 / month
  • HOA
    $49 / month
  • Property Taxes
    $1,756 / month
  • Homeowners Insurance
    $416 / month
  • TOTAL
    $13,754 / month

  • based on 20% down
    ($440,000)
  • and a
    6.85% Interest Rate
  • About:
    All calculations are estimates only and provided by Mainview LLC. Actual amounts will vary.
House Details
  • Sqft (Total)
    3,510 sqft
  • Sqft (Finished)
    3,510 sqft
  • Sqft (Unfinished)
    None
  • Property Type
    House
  • Sub Type
    2 Story
  • Bedrooms
    4 Bedrooms
  • Bathrooms
    2.75 Bathrooms
  • Lot
    14,571 sqft Lot
  • Lot Size Source
    Realist/County Records
  • Lot #
    Unspecified
  • Project
    Unspecified
  • Total Stories
    2 stories
  • Basement
    None
  • Sqft Source
    Realist/County Records
Property Tax Info
  • 2025 Property Taxes
    $21,066 / year
  • No Senior Exemption
Public Parcel Data & Maps
Schools
  • School District
    Issaquah
  • Elementary
    Sunset Elem
  • Middle
    Issaquah Mid
  • High School
    Issaquah High
HOA
  • HOA Dues
    $49 / month
  • Fees Assessed
    Monthly
  • HOA Dues Include
    Common Area Maintenance
  • HOA Contact
    Unspecified
  • Management Contact
    Unspecified
Community Features
  • Community Features
    CCRs
Parking
  • Covered
    3-Car
  • Types
    Attached Garage
  • Has Garage
    Yes
  • Nbr of Assigned Spaces
    3
Views
  • Lake
    Mountain(s)
    Partial
    Territorial
Construction
  • Year Built
    1996
  • Home Builder
    William E Buchan
Cooling
  • Includes
    Central A/C
Heating
  • Includes
    90%+ High Efficiency
    Forced Air
Interior
  • Flooring
    Ceramic Tile
    Hardwood
    Vinyl
    Carpet
  • Features
    Bath Off Primary
    Dbl Pane/Storm Window
    Dining Room
    Fireplace
    Vaulted Ceilings
    Walk-In Closet(s)
    Water Heater
Property
  • Lot Features
    Dead End Street
    Paved
  • Site Features
    Cable TV
    Patio
    Sprinkler System
Appliances
  • Included
    Dishwasher(s)
    Dryer(s)
    Microwave(s)
    Refrigerator(s)
    Washer(s)
Terms
  • Bank Owned (REO)
    No
Utilities
  • Energy
    Electric
    Natural Gas
  • Sewer
    Sewer Connected
  • Water Source
    Public
Additional Info
  • Waterfront
    No
  • Air Conditioning (A/C)
    Yes
  • Buyer Broker's Compensation
    2.5%
  • MLS Area #
    Area 500
  • Number of Photos
    40
  • Last Modification Time
    Wednesday, March 4, 2026 9:52 AM
  • System Listing ID
    5512628
Update Info
  • Closed
    2026-02-17 19:02:27
  • Pending Or Ctg
    2026-01-26 16:47:52
  • First For Sale
    2026-01-22 13:40:52
Listing details based on information submitted to the MLS GRID as of Wednesday, March 4, 2026 9:52 AM. All data is obtained from various sources and may not have been verified by broker or MLS GRID. Supplied Open House Information is subject to change without notice. All information should be independently reviewed and verified for accuracy. Properties may or may not be listed by the office/agent presenting the information.
View
Sort

Sharing

 
Sold February 17, 2026
$2,200,000   $2,395,000
4 BR    2.75 BA    3,510 SQFT  
NWMLS #2471123. Brad Davis, KW Greater Seattle
Map
 
Listing information is provided by the listing agent except as follows: BuilderB indicates that our system has grouped this listing under a home builder name that doesn't match the name provided by the listing broker. DevelopmentD indicates that our system has grouped this listing under a development name that doesn't match the name provided by the listing broker.