to
Reset
Houses
Townhouses
Condos
Land
Price
to
SQFT
to
Bdrms
to
Baths
to
Lot
to
Yr Built
to
Sold
Listed within...
Listed at least...
Offer Review
New Construction
Waterfront
Short-Sales
REO
Parking
to
Unit Flr
to
Unit Nbr
Listings
Neighborhoods
Complexes
Developments
Cities
Counties
Zip Codes
Neighborhood · Condo · Development
School District
Zip Code
City
County
Builder
Listing Numbers
Broker LAG
Boundary Lines
Labels
View
Sort
Pending Inspection Went pending in 8 days
$419,000
4 Bedrooms
2.5 Bathrooms
2,016 Sqft House
Built 1998
23,980 Sqft Lot
2-Car Garage
The seller has reached an agreement with a buyer to sell this property. If things go as planned, the sale will become final in the near future. The buyer and seller have agreed on a price but it's not public until the sale closes. The last published list price was $419,000.
Welcome to this inviting home on McBee St with thoughtful updates and an incredible outdoor lifestyle. Enjoy fresh interior paint (2025) and exterior paint (2024). New side fencing, and a furnace and A/C replaced in 2022. Inside, you’ll find a large entry with half bath, and flexible living spaces including a formal dining or sitting area plus a spacious main living room. The kitchen offers an eating space, beautiful wood cabinets, tile backsplash, pantry, and double oven range. The primary bedroom features double closets and a private bath with new vanity and toilet. Step outside to a large backyard oasis with mature grape vine, walnut trees, and an impressive variety of fruit trees including cherry, plum, apple, apricot, peach, and donut peach. A finished 12x16 office shed with power is perfect for remote work or hobbies, along with a greenhouse, chicken coop, root cellar, storage shed and play set. Semi-finished garage with storage racks and large laundry room completes this unique property—perfect for those seeking space, comfort, and a backyard built for living.
Offer Review
No offer review date was specified
Listing source NWMLS MLS #
2472005
Listed by
Lynn E. Garza, Windermere RE K-2 Realty
Kate Jimenez, Windermere RE K-2 Realty
We don't currently have a buyer representative in this area. To be sure that you're getting objective advice, we always suggest buyers work with their own agent, someone who is not affiliated with the seller.
Bedroom & Bathroom Layout
SECOND
BDRM
BDRM
BDRM
BDRM
FULL
BATH
FULL
BATH
MAIN
½
BATH
Property History
Feb 03, 2026
Went Pending Inspection
$419,000
NWMLS #2472005
Jan 26, 2026
Listed
$419,000
NWMLS #2472005
Mar 28, 2021
Sold
$340,000
More
Listing Details
  • Status
    Pending Inspection
  • Last Listed Price
    $419,000
  • Original Price
    Same as current
  • List Date
    January 26, 2026
  • Last Status Change
    February 4, 2026
  • Last Update
    February 4, 2026
  • Days on Market
    10 Days
  • Cumulative DOM
    8 Days
  • Pending Date
    February 3, 2026
  • Days to go Pending
    8
  • $/sqft (Total)
    $208/sqft
  • $/sqft (Finished)
    $208/sqft
  • Listing Source
  • MLS Number
    2472005
  • Listing Broker
    Lynn E. Garza
  • Listing Office
    Windermere RE K-2 Realty
Monthly Payment Estimate
  • Principal and Interest
    $2,196 / month
  • Property Taxes
    $357 / month
  • Homeowners Insurance
    $94 / month
  • TOTAL
    $2,647 / month

  • based on 20% down
    ($83,800)
  • and a
    6.85% Interest Rate
  • About:
    All calculations are estimates only and provided by Mainview LLC. Actual amounts will vary.
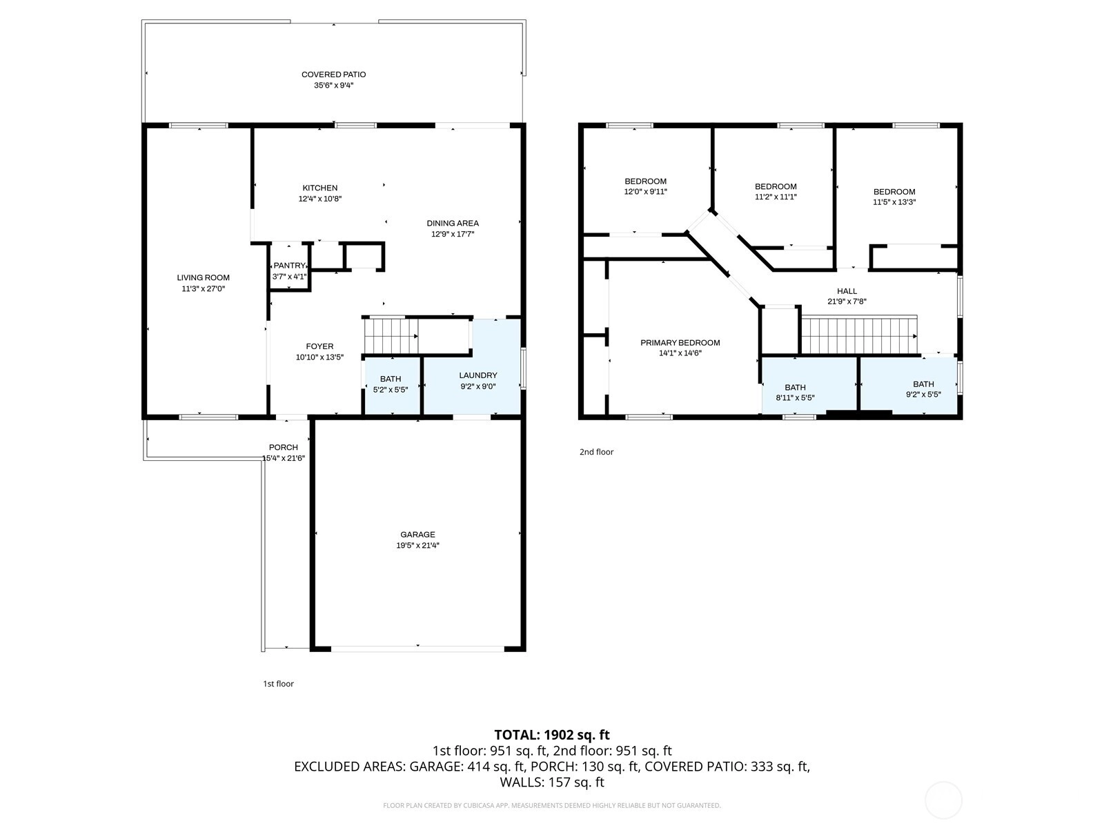
House Details
  • Sqft (Total)
    2,016 sqft
  • Sqft (Finished)
    2,016 sqft
  • Sqft (Unfinished)
    None
  • Property Type
    House
  • Sub Type
    2 Story
  • Bedrooms
    4 Bedrooms
  • Bathrooms
    2.5 Bathrooms
  • Lot
    23,980 sqft Lot
  • Lot Size Source
    Public Records
  • Lot #
    1
  • Project
    MONTINI ADD
  • Total Stories
    2 stories
  • Basement
    None
  • Sqft Source
    Public Records
Property Tax Info
  • 2025 Property Taxes
    $4,283 / year
  • No Senior Exemption
Public Parcel Data & Maps
  • County
    Grant County
  • Parcel #
    120612000
  • County Website
    Unspecified
  • County Parcel Map
    Unspecified
  • County GIS Map
    Unspecified
  • About
    County links provided by Mainview LLC
Schools
  • School District
    Moses Lake
  • Elementary
    Buyer To Verify
  • Middle
    Buyer To Verify
  • High School
    Buyer To Verify
HOA
  • HOA Dues
    Unspecified
  • Fees Assessed
    Unspecified
  • HOA Dues Include
    Unspecified
  • HOA Contact
    Unspecified
  • Management Contact
Parking
  • Covered
    2-Car
  • Types
    Driveway
    Attached Garage
    RV Parking
  • Has Garage
    Yes
  • Nbr of Assigned Spaces
    2
Views
  • Territorial
Construction
  • Year Built
    1998
  • Home Builder
    Unspecified
Cooling
  • Includes
    Central A/C
Heating
  • Includes
    Forced Air
Interior
  • Flooring
    Ceramic Tile
    Laminate
    Vinyl
    Carpet
  • Features
    Bath Off Primary
    Double Pane/Storm Window
    Dining Room
    Walk-In Pantry
    Water Heater
Property
  • Lot Features
    Corner Lot
    Paved
  • Site Features
    Fenced-Partially
    Green House
    High Speed Internet
    Outbuildings
    Patio
    RV Parking
    Sprinkler System
Appliances
  • Included
    Dishwasher(s)
    Double Oven
    Refrigerator(s)
    Stove(s)/Range(s)
Terms
  • 3rd Party Approval Required)
    No
  • Bank Owned (REO)
    No
  • Complex FHA Availability
    Unspecified
  • Potential Terms
    Cash Out
    Conventional
    FHA
    USDA Loan
    VA Loan
Utilities
  • Energy
    Electric
  • Sewer
    Septic Tank
  • Water Source
    Shared Well
Additional Info
  • Waterfront
    No
  • Air Conditioning (A/C)
    Yes
  • Buyer Broker's Compensation
    2.5%
  • MLS Area #
    Area 297
  • Number of Photos
    40
  • Last Modification Time
    Tuesday, February 3, 2026 10:00 PM
  • System Listing ID
    5513437
Update Info
  • Pending Or Ctg
    2026-02-03 22:03:27
  • First For Sale
    2026-01-26 06:05:43
Listing details based on information submitted to the MLS GRID as of Tuesday, February 3, 2026 10:00 PM. All data is obtained from various sources and may not have been verified by broker or MLS GRID. Supplied Open House Information is subject to change without notice. All information should be independently reviewed and verified for accuracy. Properties may or may not be listed by the office/agent presenting the information.
View
Sort

Sharing

 
Pending Inspection February 3, 2026
$419,000  
4 BR    2.5 BA    2,016 SQFT  
NWMLS #2472005. Lynn E. Garza, Windermere RE K-2 Realty
Map
 
Listing information is provided by the listing agent except as follows: BuilderB indicates that our system has grouped this listing under a home builder name that doesn't match the name provided by the listing broker. DevelopmentD indicates that our system has grouped this listing under a development name that doesn't match the name provided by the listing broker.