to
Reset
Houses
Townhouses
Condos
Land
Price
to
SQFT
to
Bdrms
to
Baths
to
Lot
to
Yr Built
to
Sold
Listed within...
Listed at least...
Offer Review
New Construction
Waterfront
Short-Sales
REO
Parking
to
Unit Flr
to
Unit Nbr
Listings
Neighborhoods
Complexes
Developments
Cities
Counties
Zip Codes
Neighborhood · Condo · Development
School District
Zip Code
City
County
Builder
Listing Numbers
Broker LAG
Boundary Lines
Labels
View
Sort
Sold Closed February 13, 2026
$432,077
2 Bedrooms
1.75 Bathrooms
1,760 Sqft House
Built 1964
19,200 Sqft Lot
1-Car Garage
SALE HISTORY
List price was $429,000
It took 6 days to go pending.
Then 11 days to close at $432,077
Closed at $246/SQFT.
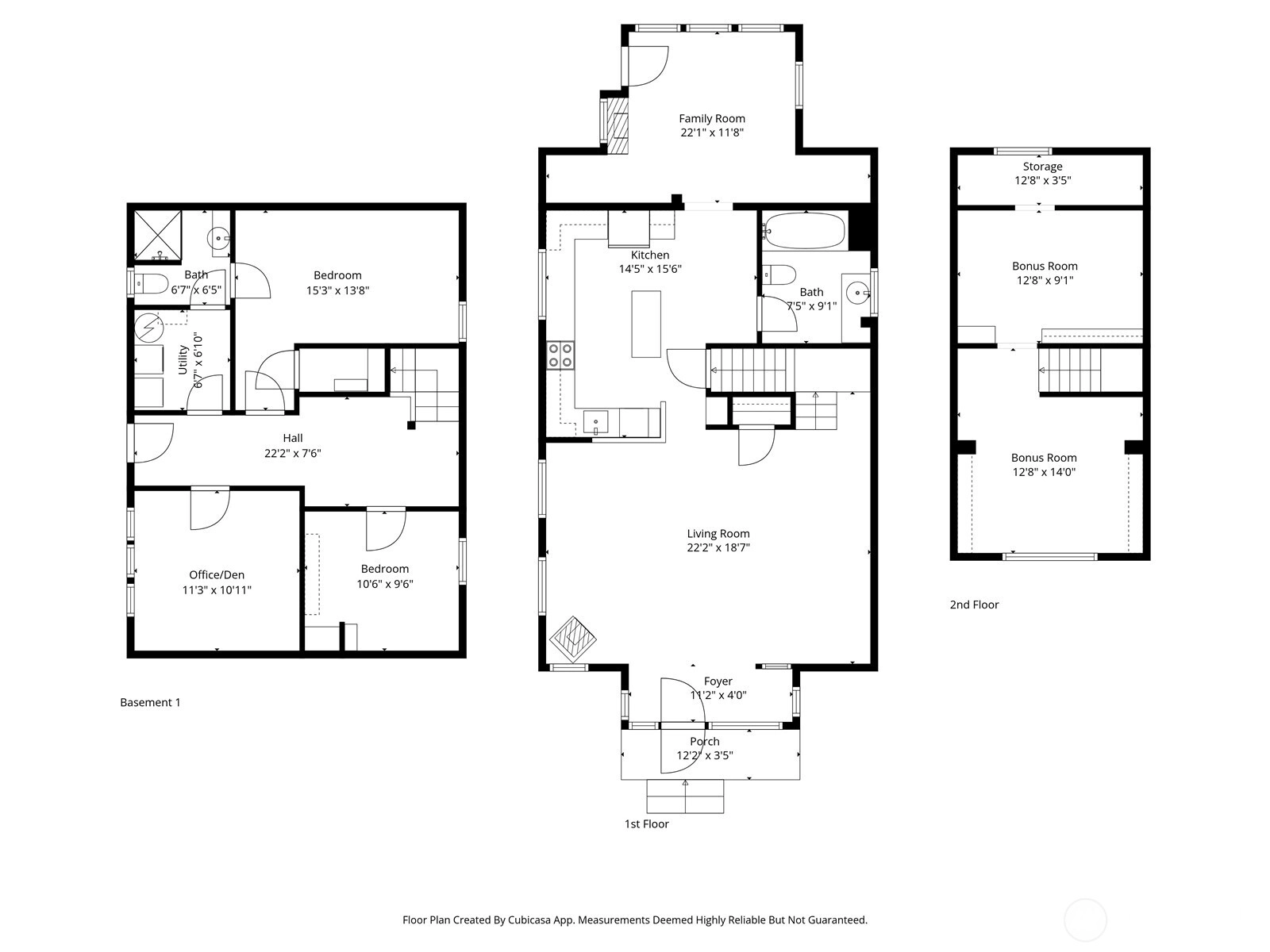
A rare opportunity offering two parcels - one featuring a charming A-frame home with a detached garage and shed, plus a separate vacant lot, creating exceptional potential for investors or visionary homeowners. The A-frame residence is rich in character, showcasing dramatic high-angled vaulted ceilings, a two-room loft, and a light-filled back family/sunroom that connects seamlessly to a multi-level deck overlooking the tranquil outdoor setting. Partial updates include refreshed bathrooms and kitchen, while the remainder of the home presents a true fixer opportunity ready for personalization. The basement level provides additional living space with bedrooms and a dedicated office, offering flexibility for a variety of needs. Outside, the property feels peaceful and private, surrounded by natural beauty, yet enjoys an ideal central location with quick access to highways, shopping, and dining. A unique chance to unlock value, expand, or reimagine.
Offer Review Date
This listing's offer review date was Sunday, February 1, 2026.
Listing source NWMLS MLS #
2470162
Listed by
Doug Walker, John L. Scott, Inc.
Buyer's broker
Serg Lobodzinskiy, Skyline Properties, Inc.
Contact our
Bonney Lake
Real Estate Lead
TPG Realty | Keller Williams
Phone...
Bedroom & Bathroom Layout
MAIN
FULL
BATH
LOWER
BDRM
BDRM
¾
BATH
Property History
Feb 18, 2026
Sold
$432,077
NWMLS #2470162
Feb 02, 2026
Went Pending
$429,000
NWMLS #2470162
Jan 27, 2026
Listed
$429,000
NWMLS #2470162
More
Listing Details
  • Sale Price
    $432,077
  • Closing Date
    February 13, 2026
  • Last List Price
    $429,000
  • Original Price
    Same
  • List Date
    January 27, 2026
  • Pending Date
    February 2, 2026
  • Days to go Pending
    6 days
  • $/sqft (Total)
    $246/sqft
  • $/sqft (Finished)
    $245/sqft
  • Listing Source
  • MLS Number
    2470162
  • Listing Broker
    Doug Walker
  • Listing Office
    John L. Scott, Inc.
  • Buyer's Broker
    Serg Lobodzinskiy
  • Buyer Broker's Firm
    Skyline Properties, Inc.
Monthly Payment Estimate
  • Principal and Interest
    $2,265 / month
  • Property Taxes
    $525 / month
  • Homeowners Insurance
    $96 / month
  • TOTAL
    $2,886 / month

  • based on 20% down
    ($86,415)
  • and a
    6.85% Interest Rate
  • About:
    All calculations are estimates only and provided by Mainview LLC. Actual amounts will vary.
House Details
  • Sqft (Total)
    1,760 sqft
  • Sqft (Finished)
    1,760 sqft
  • Sqft (Unfinished)
    None
  • Property Type
    House
  • Sub Type
    Multi Level
  • Bedrooms
    2 Bedrooms
  • Bathrooms
    1.75 Bathrooms
  • Lot
    19,200 sqft Lot
  • Lot Size Source
    tax records (2 parcels)
  • Lot #
    70
  • Project
    Cedarview
  • Total Stories
    Unspecified
  • Sqft Source
    realist
Property Tax Info
  • 2025 Property Taxes
    $6,297 / year
  • No Senior Exemption
Public Parcel Data & Maps
Schools
  • School District
    Sumner-Bonney Lake
  • Elementary
    Unspecified
  • Middle
    Unspecified
  • High School
    Unspecified
HOA
  • HOA Dues
    Unspecified
  • Fees Assessed
    Unspecified
  • HOA Dues Include
    Unspecified
  • HOA Contact
    Unspecified
  • Management Contact
    Unspecified
Parking
  • Covered
    1-Car
  • Types
    Driveway
    Detached Garage
    RV Parking
  • Has Garage
    Yes
  • Nbr of Assigned Spaces
    1
Views
  • Territorial
Construction
  • Year Built
    1964
  • Home Builder
    Unspecified
Cooling
  • Includes
    None
Heating
  • Includes
    Stove/Free Standing
    Wall Unit(s)
Interior
  • Flooring
    Ceramic Tile
    Hardwood
    Laminate
    Vinyl
  • Features
    Bath Off Primary
    Ceiling Fan(s)
    Dbl Pane/Storm Window
    Loft
    Skylight(s)
    Vaulted Ceilings
Property
  • Lot Features
    Paved
  • Site Features
    Cable TV
    Deck
    Fenced-Partially
    Outbuildings
    RV Parking
Appliances
  • Included
    Dishwasher(s)
    Refrigerator(s)
    Stove(s)/Range(s)
Terms
  • Bank Owned (REO)
    No
Utilities
  • Energy
    Electric
    Pellet
  • Sewer
    Septic Tank
  • Water Source
    Public
Additional Info
  • Waterfront
    No
  • Air Conditioning (A/C)
    No
  • Buyer Broker's Compensation
    2.5%
  • MLS Area #
    Area 109
  • Number of Photos
    31
  • Last Modification Time
    Wednesday, February 18, 2026 4:57 PM
  • System Listing ID
    5513795
Update Info
  • Closed
    2026-02-18 17:16:15
  • Pending Or Ctg
    2026-02-02 13:51:57
  • First For Sale
    2026-01-27 15:24:45
Listing details based on information submitted to the MLS GRID as of Wednesday, February 18, 2026 4:57 PM. All data is obtained from various sources and may not have been verified by broker or MLS GRID. Supplied Open House Information is subject to change without notice. All information should be independently reviewed and verified for accuracy. Properties may or may not be listed by the office/agent presenting the information.
View
Sort

Sharing

 
Sold February 13, 2026
$432,077   $429,000
2 BR    1.75 BA    1,760 SQFT  
NWMLS #2470162. Doug Walker, John L. Scott, Inc.
Map
 
Listing information is provided by the listing agent except as follows: BuilderB indicates that our system has grouped this listing under a home builder name that doesn't match the name provided by the listing broker. DevelopmentD indicates that our system has grouped this listing under a development name that doesn't match the name provided by the listing broker.