to
Reset
Houses
Townhouses
Condos
Land
Price
to
SQFT
to
Bdrms
to
Baths
to
Lot
to
Yr Built
to
Sold
Listed within...
Listed at least...
Offer Review
New Construction
Waterfront
Short-Sales
REO
Parking
to
Unit Flr
to
Unit Nbr
Listings
Neighborhoods
Complexes
Developments
Cities
Counties
Zip Codes
Neighborhood · Condo · Development
School District
Zip Code
City
County
Builder
Listing Numbers
Broker LAG
Boundary Lines
Labels
View
Sort
Sold Closed March 12, 2026
$3,395,000
6 Bedrooms
4.75 Bathrooms
4,640 Sqft House
Built 2016
11,250 Sqft Lot
3-Car Garage
SALE HISTORY
List price was $3,395,000
It took 23 days to go pending.
Then 21 days to close at $3,395,000
Closed at $732/SQFT.
Exceptional newer construction by Aspen Homes in premier Northend location. Enjoy lake views, classic design and smart-home features throughout. 18-foot ceilings set the stage for effortless entertaining, complemented by chef’s kitchen and refined outdoor living with gas fireplace & built-in BBQ. Ideal, spacious layout: 6 bedrooms (4 up together) plus main level office and additional lower level flex spaces provide versatile living options. Primary suite offers a serene, spa-inspired retreat. Thoughtful, quality construction: extensive millwork, triple paned windows, integrated automation, EV charging & oversized 3 car garage. Experience Mercer Island living at its finest: top-rated schools and convenient I-90 access to both Bellevue and Seattle.
Offer Review
No offer review date was specified
Listing source NWMLS MLS #
2470196
Listed by
Kelly Weisfield, COMPASS
Buyer's broker
Courtney Williams, Windermere RE Magnolia
Julie Bouscaren, Windermere Real Estate Midtown
Contact our
Mercer Island
Real Estate Lead
John L. Scott
Phone...
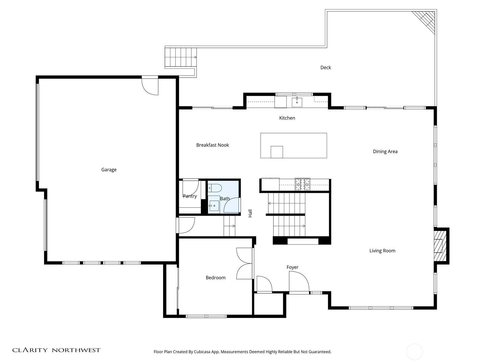
Bedroom & Bathroom Layout
SECOND
BDRM
BDRM
BDRM
BDRM
FULL
BATH
FULL
BATH
¾
BATH
MAIN
½
BATH
LOWER
BDRM
BDRM
¾
BATH
¾
BATH
Property History
Mar 12, 2026
Sold
$3,395,000
NWMLS #2470196 Annualized 2.9% / yr
Feb 23, 2026
Went Pending
$3,395,000
NWMLS #2470196
Feb 19, 2026
Went Pending Inspection
$3,395,000
NWMLS #2470196
Jan 27, 2026
Listed
$3,395,000
NWMLS #2470196
Sep 26, 2025
Listed
$3,590,000
NWMLS #2438401
Sep 10, 2025
Listed
$3,785,000
NWMLS #2431859
Apr 25, 2018
Sold
$2,700,000
More
Listing Details
  • Sale Price
    $3,395,000
  • Closing Date
    March 12, 2026
  • Last List Price
    $3,395,000
  • Original Price
    Same
  • List Date
    January 27, 2026
  • Pending Date
    February 19, 2026
  • Days to go Pending
    23 days
  • $/sqft (Total)
    $732/sqft
  • $/sqft (Finished)
    $732/sqft
  • Listing Source
  • MLS Number
    2470196
  • Listing Broker
    Kelly Weisfield
  • Listing Office
    COMPASS
  • Buyer's Broker
    Courtney Williams
  • Buyer Broker's Firm
    Windermere RE Magnolia
Monthly Payment Estimate
  • Principal and Interest
    $17,797 / month
  • Property Taxes
    $1,503 / month
  • Homeowners Insurance
    $635 / month
  • TOTAL
    $19,935 / month

  • based on 20% down
    ($679,000)
  • and a
    6.85% Interest Rate
  • About:
    All calculations are estimates only and provided by Mainview LLC. Actual amounts will vary.
House Details
  • Sqft (Total)
    4,640 sqft
  • Sqft (Finished)
    4,640 sqft
  • Sqft (Unfinished)
    None
  • Property Type
    House
  • Sub Type
    2 Stories + Basement
  • Bedrooms
    6 Bedrooms
  • Bathrooms
    4.75 Bathrooms
  • Lot
    11,250 sqft Lot
  • Lot Size Source
    KCR
  • Lot #
    Unspecified
  • Project
    Unspecified
  • Total Stories
    3 stories
  • Basement
    Finished
  • Sqft Source
    KCR
Property Tax Info
  • 2025 Property Taxes
    $18,034 / year
  • No Senior Exemption
Public Parcel Data & Maps
Schools
  • School District
    Mercer Island
  • Elementary
    Buyer To Verify
  • Middle
    Islander Mid
  • High School
    Mercer Isl High
HOA
  • HOA Dues
    Unspecified
  • Fees Assessed
    Unspecified
  • HOA Dues Include
    Unspecified
  • HOA Contact
    Unspecified
  • Management Contact
    Unspecified
Community Features
  • Community Features
    Trail(s)
Parking
  • Covered
    3-Car
  • Types
    Driveway
    Attached Garage
  • Has Garage
    Yes
  • Nbr of Assigned Spaces
    6
Views
  • Lake
    Mountains
    Partial
    Territorial
Construction
  • Year Built
    2016
  • Home Builder
    Unspecified
Cooling
  • Includes
    90%+ High Efficiency
    Central Air
    HEPA Air Filtration
Heating
  • Includes
    90%+ High Efficiency
    Forced Air
    Radiant
Interior
  • Flooring
    Ceramic Tile
    Engineered Hardwood
    Carpet
  • Features
    Bath Off Primary
    Dbl Pane/Storm Window
    Dining Room
    Fireplace
    French Doors
    High Tech Cabling
    Pantry
    Security System
    Skylight(s)
    SMART Wired
    Sprinkler System
    Vaulted Ceiling(s)
    Walk-In Closet(s)
    Wet Bar
Property
  • Lot Features
    Corner Lot
    Dead End Street
    Paved
  • Site Features
    Cable TV
    Deck
    Electric Car Charging
    Fenced-Fully
    Gas Available
    High Speed Internet
    Sprinkler System
Appliances
  • Included
    Dishwasher
    Disposal
    Double Oven
    Microwave
    Refrigerator
    Stove(s)/Range(s)
Terms
  • Bank Owned (REO)
    No
Utilities
  • Energy
    Electric
    Natural Gas
  • Sewer
    Sewer Connected
  • Water Source
    Public
Additional Info
  • Waterfront
    No
  • Air Conditioning (A/C)
    Yes
  • Buyer Broker's Compensation
    2.5%
  • MLS Area #
    Area 510
  • Number of Photos
    39
  • Last Modification Time
    Sunday, April 12, 2026 4:03 AM
  • System Listing ID
    5513828
Update Info
  • Closed
    2026-03-12 18:47:51
  • Pending Or Ctg
    2026-02-23 22:06:52
  • First For Sale
    2026-01-27 17:16:48
Listing details based on information submitted to the MLS GRID as of Sunday, April 12, 2026 4:03 AM. All data is obtained from various sources and may not have been verified by broker or MLS GRID. Supplied Open House Information is subject to change without notice. All information should be independently reviewed and verified for accuracy. Properties may or may not be listed by the office/agent presenting the information.
View
Sort

Sharing

 
Sold March 12, 2026
$3,395,000  
6 BR    4.75 BA    4,640 SQFT  
NWMLS #2470196. Kelly Weisfield, COMPASS
Map
 
Listing information is provided by the listing agent except as follows: BuilderB indicates that our system has grouped this listing under a home builder name that doesn't match the name provided by the listing broker. DevelopmentD indicates that our system has grouped this listing under a development name that doesn't match the name provided by the listing broker.